新潟県新潟市北区松浜3丁目 中古一戸建て 4LDK 32,000,000円の物件情報

南向きの日当たり良好。小学校・中学校・バス停徒歩5分圏内の立地も魅力です。

物件名/所在地 詳細 価格
【中古住宅】新潟市北区松浜3丁目 カーポート付戸建
新潟県新潟市北区松浜3丁目
  • 土地面積
    :286.4㎡ /86.63坪
  • 建物面積
    :124.2㎡ /37.57坪
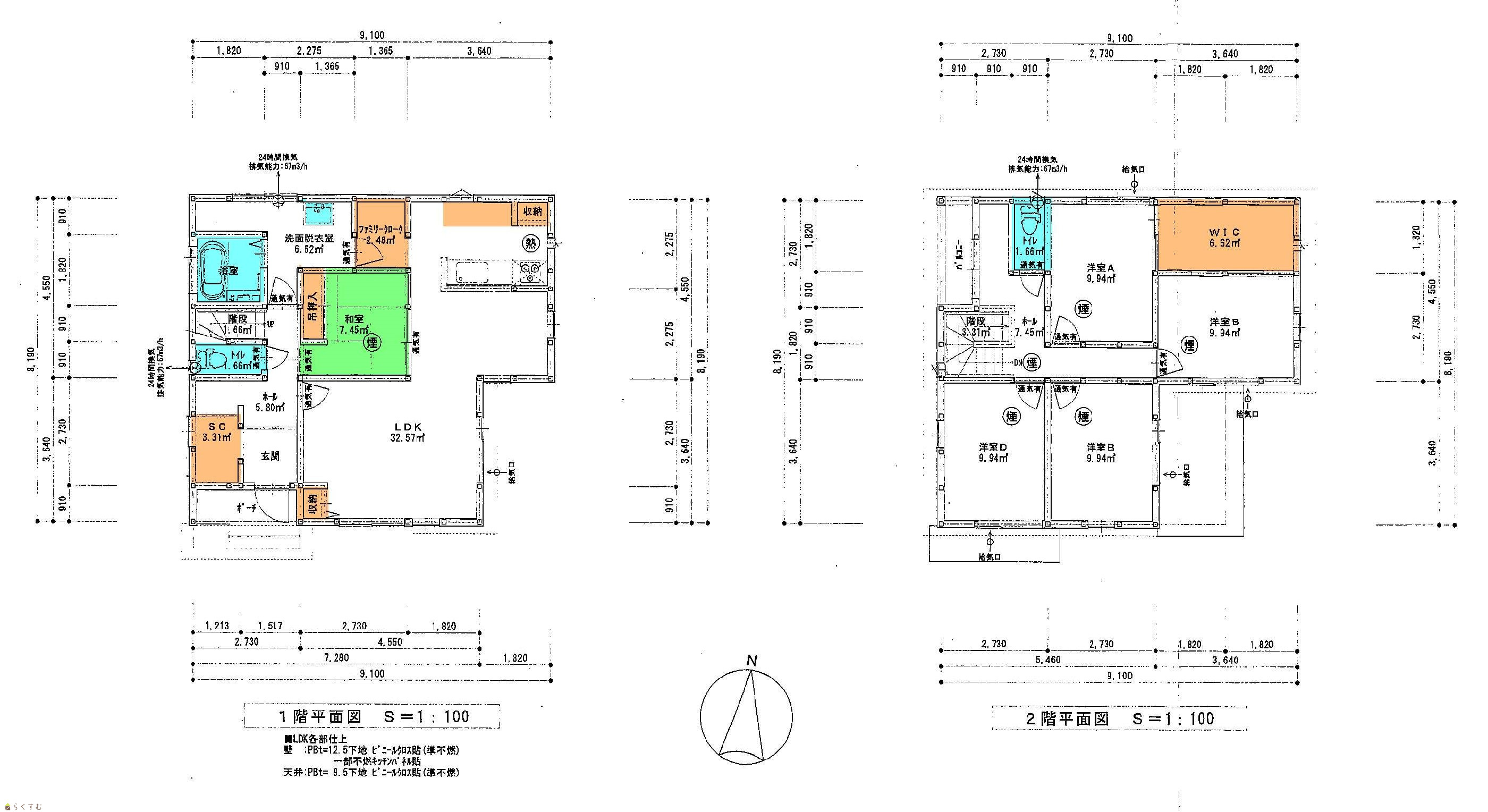
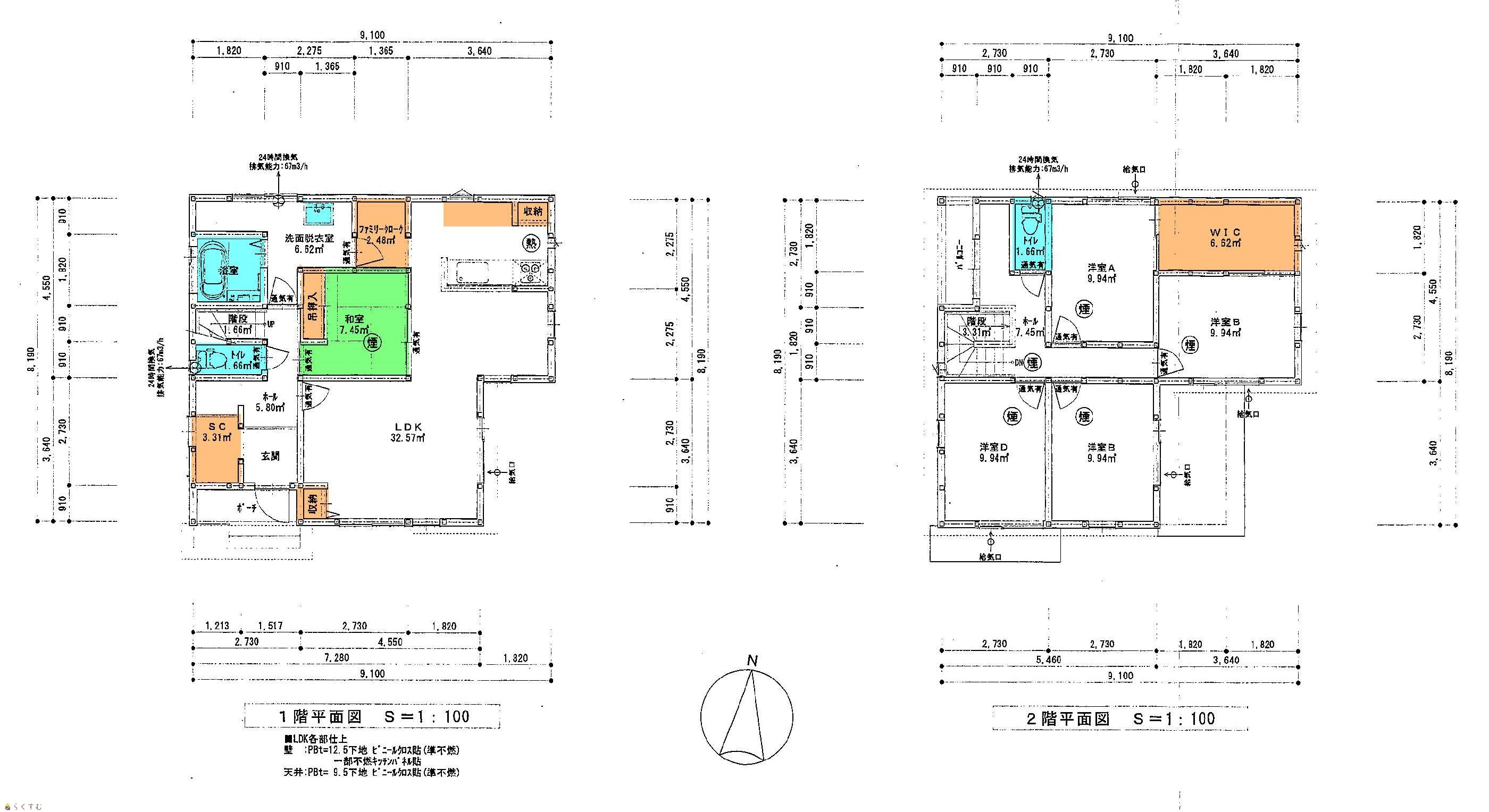
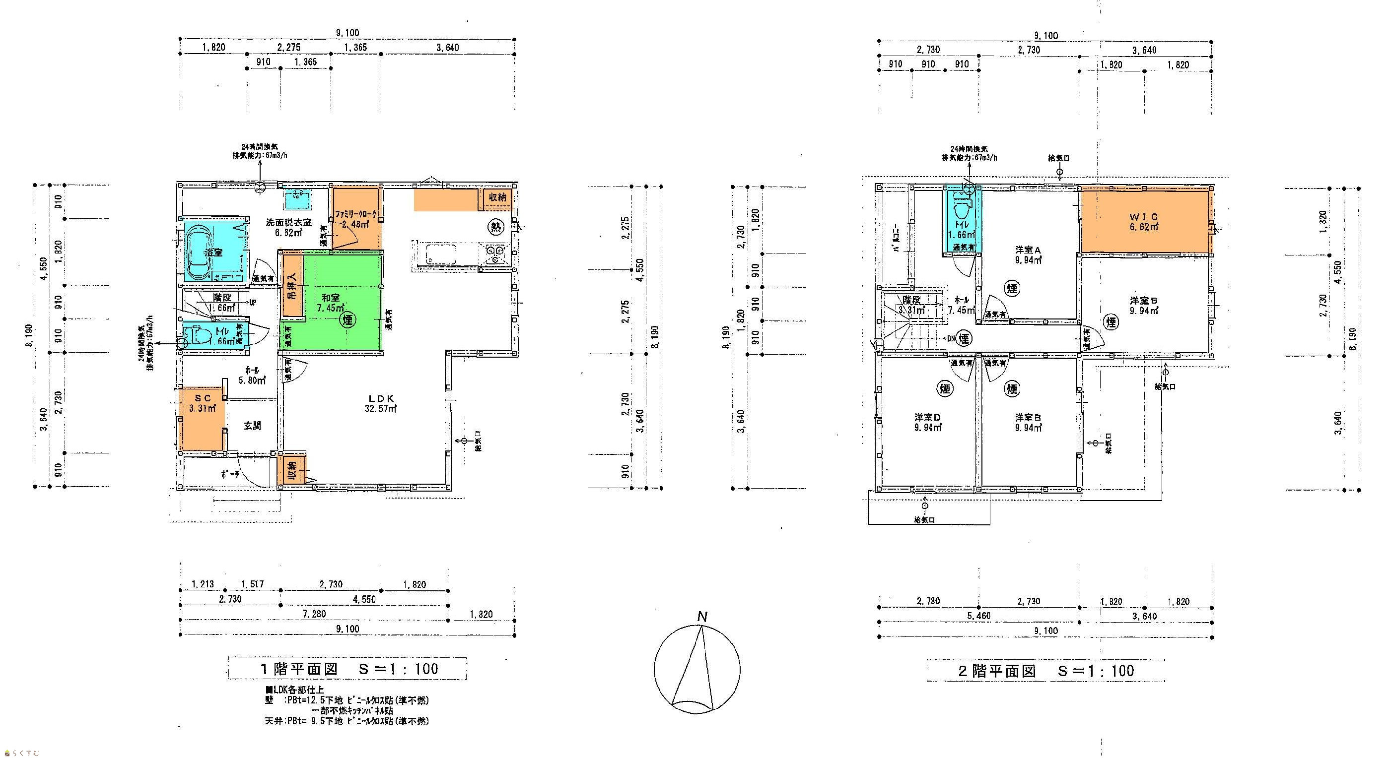
  • 間取り
    :4LDK
  • 築年月
    :2018年4月
32,000,000
  • 【中古住宅】新潟市北区松浜3丁目 カーポート付戸建
    株式会社フォレス・タカダ
  • この物件を問い合わせる/無料
  • TEL: 0258-39-2919 0258-39-2919

物件画像

外観
間取り
物件画像
※画像クリックで拡大表示
外観
物件画像
※画像クリックで拡大表示
間取り図
詳細画像
物件画像
和室とLDK
物件画像
シューズクロークのある玄関
物件画像
広いお庭と駐車スペース
物件画像
ダイニング・キッチン
物件画像
キッチン
物件画像
たっぷり収納できるファミリークローク
物件画像
洗面脱衣室
物件画像
ユニットバス
物件画像
収納のあるトイレ
物件画像
2階トイレ
物件画像
多目的で使える12帖の洋室(仕切り可能)
物件画像
洋室6帖
物件画像
たっぷり収納できるウォークインクローゼット
物件画像
地図画像


物件概要

落ち着いた雰囲気の内外装。
物件コード 00125-200095
物件名 【中古住宅】新潟市北区松浜3丁目 カーポート付戸建
交通 駅:白新線 新崎駅から徒歩61分、バス:松浜中学前から徒歩2分
物件所在地 新潟県新潟市北区松浜3丁目
物件種別 中古一戸建て
構造 木造 階建 地上2階建
建ぺい率/容積率 60%/200%
建物面積 1階 65.41㎡/ 2階 58.79㎡/ 計 124.2㎡ /37.57坪
土地面積 286.4㎡ /86.63坪
築年月 2018年4月(築8年)
入居(引き渡し)時期 相談
用途地域 第1種中高層住居専用地域 地目 宅地  (現状:宅地)
都市計画 市街化区域 学校区 松浜小学校(278m)・松浜中学校(291m)
形状 間口 15.95m × 奥行 18.26m 道路 市道 北1-42号線 幅員4m
私道 - その他の制限 建築基準法第22条・道路斜線制限有・隣地斜線制限有
  • 【中古住宅】新潟市北区松浜3丁目 カーポート付戸建
    株式会社フォレス・タカダ
  • この物件を問い合わせる/無料
  • TEL: 0258-39-2919 0258-39-2919

物件詳細情報

所在階/階数 - 号室 -
販売価格 32,000,000円 方位
間取り 4LDK (和室:4.5畳) (洋室:12、6、6)
南向きの日当たり良好。小学校・中学校・バス停徒歩5分圏内の立地も魅力です。
専有面積 - バルコニー面積 -
その他面積 2.48㎡ /0.75坪  バルコニー 駐車場 -
管理費 - 修繕積立金 -
現況 居住中
仲介手数料 1,122,000円
利用制限 -
設備 高台に立地、日当り良好、閑静な住宅街、LDK15帖以上、築10年以内、駐車3台以上可能、南向き、TVインターホン、複層ガラス、食器洗浄乾燥機、3口コンロ、追いだき機能付き、温水洗浄便座、トイレ2か所以上、シャワー付き洗面台、24時間換気システム、ルーフバルコニー、ウォークインクローゼット、シューズインクローゼット
取引態様 一般
備考 -
取り扱い会社

株式会社フォレス・タカダ

新潟県長岡市摂田屋5-6-22

情報登録日 2024/11/05 次回更新予定日 2026/05/21
取引条件有効期限 2025/06/30
  • 【中古住宅】新潟市北区松浜3丁目 カーポート付戸建
    株式会社フォレス・タカダ
  • この物件を問い合わせる/無料
  • TEL: 0258-39-2919 0258-39-2919

この物件の地図・周辺情報・行政情報

この物件の周辺情報・行政情報を詳しく見る
【周辺情報】
物件の近くにあるコンビニや銀行・学校など、アイコン付のマップで詳しく表示できます!
【行政情報】
水道料や下水道料・ガス料金など、暮らしに関係のある情報を表示しています。

担当取扱い店舗情報

取扱い店舗画像
株式会社フォレス・タカダ
TEL: 0258-39-2919
所在地: 新潟県長岡市摂田屋5-6-22
交通: 信越線〔宮内駅〕徒歩13分
営業時間: 8:30~17:30/定休日:隔週土曜・日曜日・祝/会社カレンダーによる
免許番号: 新潟県知事(8)第3591号
所属団体名: 新潟県宅地建物取引業協会 長岡支部
取引態様: 一般
ホームページ: http://www.takada-arc.com