新潟県長岡市東宮内町3153-2 中古一戸建て 6DK 14,900,000円の物件情報

スーパーや銀行等も近く、利便性抜群の好立地。1階車庫・居住エリアは2階3階です。

物件名/所在地 詳細 価格
東宮内町中古建て
新潟県長岡市東宮内町3153-2
  • 土地面積
    :149.83㎡ /45.32坪
  • 建物面積
    :227.7㎡ /68.87坪
  • 間取り
    :6DK
  • 築年月
    :1986年3月
14,900,000
  • 東宮内町中古建て
    株式会社フォレス・タカダ
  • この物件を問い合わせる/無料
  • TEL: 0258-39-2919 0258-39-2919

物件画像

外観
間取り
物件画像
※画像クリックで拡大表示
外観
物件画像
※画像クリックで拡大表示
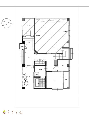
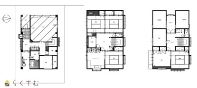
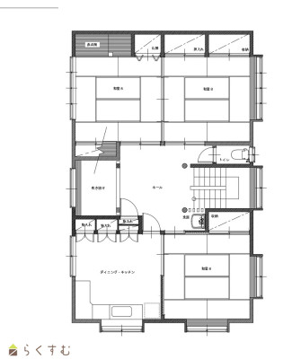
平面図(1階~3階)
詳細画像
物件画像
平面図(1階)
物件画像
平面図(2階)
物件画像
平面図(3階)
物件画像
玄関前アプローチ
物件画像
玄関
物件画像
和室2間
物件画像
DK
物件画像
2階ホール吹抜け
物件画像
3階居室(和・洋)
物件画像
3階ホール(屋根裏収納入口)
物件画像
屋根裏収納
物件画像
脱衣室/浴室
物件画像
2台※車の高さ注意
物件画像
建物裏側/植栽・畑
物件画像
地図画像


物件概要

スーパーや銀行等も近く、利便性抜群の好立地。1階車庫・居住エリアは2階3階です。
物件コード 00125-200094
物件名 東宮内町中古建て
交通 駅:上越線 宮内駅から徒歩9分、バス:東宮内から徒歩3分
物件所在地 新潟県長岡市東宮内町3153-2
物件種別 中古一戸建て
構造 木造・鉄骨造 階建 地上3階建
建ぺい率/容積率 60%/200%
建物面積 1階 66.52㎡/ 2階 81.69㎡/ 3階 79.49㎡/ 計 227.7㎡ /68.87坪
土地面積 149.83㎡ /45.32坪
築年月 1986年3月(築39年)
入居(引き渡し)時期 相談
用途地域 第1種住居地域 地目 宅地
都市計画 市街化区域 学校区 宮内小学校(445m)・宮内中学校(598m)
形状 - 道路 市道398号線幅員5.9m 消雪設備あり
私道 なし その他の制限 建築基準法第22条・まちなか居住区域・三種高度地区
  • 東宮内町中古建て
    株式会社フォレス・タカダ
  • この物件を問い合わせる/無料
  • TEL: 0258-39-2919 0258-39-2919

物件詳細情報

所在階/階数 - 号室 -
販売価格 14,900,000円 方位 西
間取り 6DK (和室:8.0畳、8.0畳、8.0畳、8.0畳) (洋室:6.0、8.0)
DK8.0
専有面積 - バルコニー面積 -
その他面積 - 駐車場 -
管理費 - 修繕積立金 -
現況 空家
仲介手数料 557,700円
利用制限 -
設備 閑静な住宅街、スーパー近く、駐車2台可能、都市ガス、上水道、下水道、2世帯向き
取引態様 一般
備考 1階:車庫・物置・浴室/2階:Dキッチン・8帖和室×3室・トイレ/3階:8帖和室×1室・8帖洋室×1室・6帖洋室×1室・屋根裏部屋2室※3階のミニキッチン・トイレは現在使用できません。使用する場合は別途工事が必要です(買主負担) ■売主「契約不適合責任」免責 ■消雪組合費+町会費(買主負担)
取り扱い会社

株式会社フォレス・タカダ

新潟県長岡市摂田屋5-6-22

情報登録日 2025/06/20 次回更新予定日 2025/11/10
取引条件有効期限 2025/09/30
  • 東宮内町中古建て
    株式会社フォレス・タカダ
  • この物件を問い合わせる/無料
  • TEL: 0258-39-2919 0258-39-2919

この物件の地図・周辺情報・行政情報

この物件の周辺情報・行政情報を詳しく見る
【周辺情報】
物件の近くにあるコンビニや銀行・学校など、アイコン付のマップで詳しく表示できます!
【行政情報】
水道料や下水道料・ガス料金など、暮らしに関係のある情報を表示しています。
ローソン 長岡笹崎一丁目店(コンビニ)まで410m
セブン-イレブン 長岡宮内駅前通り店(コンビニ)まで360m
原信 宮内店(スーパー)まで540m
ウオロク 要町店(スーパー)まで620m
(生協)こどもクリニック(病院)まで130m
長岡信用金庫 宮内支店(銀行)まで480m
越後宮内郵便局(郵便局)まで340m

※カメラのアイコンがある場合は、マウスをポイントするとその施設の画像がご覧いただけます。


担当取扱い店舗情報

取扱い店舗画像
株式会社フォレス・タカダ
TEL: 0258-39-2919
所在地: 新潟県長岡市摂田屋5-6-22
交通: 信越線〔宮内駅〕徒歩13分
営業時間: 8:30~17:30/定休日:隔週土曜・日曜日・祝/会社カレンダーによる
免許番号: 新潟県知事(8)第3591号
所属団体名: 新潟県宅地建物取引業協会 長岡支部
取引態様: 一般
ホームページ: http://www.takada-arc.com