新潟県柏崎市西山町尾町159-14石地マンション415 中古マンション 1DK 400,000円の物件情報

1DK、1台分駐車場付き、石地海水浴場まで徒歩10分

物件名/所在地 詳細 価格
西山町石地売分譲マンション
415号室
新潟県柏崎市西山町尾町159-14石地マンション415
  • 専有面積
    :25.08㎡ /7.58坪
  • 間取り
    :1DK
  • 築年月
    :1975年7月
400,000
  • 西山町石地売分譲マンション
    株式会社 ホーメックス
  • この物件を問い合わせる/無料
  • TEL: 0257-24-0034 0257-24-0034

物件画像

外観
間取り
物件画像
※画像クリックで拡大表示
外観
物件画像
※画像クリックで拡大表示
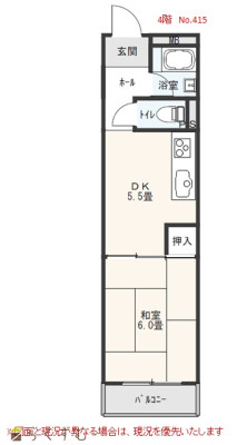
間取り図
詳細画像
物件画像
キッチン
物件画像
和室
物件画像
和室
物件画像
ホール
物件画像
浴室
物件画像
バルコニー
物件画像
外観
物件画像
地図画像


物件概要

物件コード 00088-200742
物件名 西山町石地売分譲マンション
交通 駅:越後線 石地駅から徒歩71分、バス:羅石前から徒歩9分
物件所在地 新潟県柏崎市西山町尾町159-14石地マンション415
物件種別 中古マンション
構造 鉄筋コン 階建 地上5階建
建ぺい率/容積率 -
建物面積 -
土地面積 4,816㎡ /1,456.84坪
築年月 1975年7月(築50年)
入居(引き渡し)時期 相談
用途地域 無指定 地目 山林
都市計画 都市計画区域外 学校区 二田小学校(6,948m)・西山中学校(6,412m)
形状 - 道路 私道
私道 - その他の制限 -
  • 西山町石地売分譲マンション
    株式会社 ホーメックス
  • この物件を問い合わせる/無料
  • TEL: 0257-24-0034 0257-24-0034

物件詳細情報

所在階/階数 4階/5階 号室 415号室
販売価格 400,000円 方位
間取り 1DK (和室:6畳)
DK5.5
専有面積 25.08㎡ /7.58坪 バルコニー面積 2.4㎡ /0.72坪
その他面積 - 駐車場 1台
管理費 4,500円 修繕積立金 1,100円
現況 空家
仲介手数料 330,000円
水道使用料(定額/月額) 1,400円
利用制限 -
設備 エレベーター、駐車場空きあり、2口コンロ、都市ガス、下水道、別荘
取引態様 専属専任
備考 駐車場:1台分無料
管理組合に加入して頂きます。
現況有姿売買
トイレと給湯器は故障していて使用できません。
仲介手数料別途
取り扱い会社

株式会社 ホーメックス

新潟県柏崎市土合628-1

情報登録日 2025/12/18 次回更新予定日 2026/05/21
取引条件有効期限 2024/09/17
  • 西山町石地売分譲マンション
    株式会社 ホーメックス
  • この物件を問い合わせる/無料
  • TEL: 0257-24-0034 0257-24-0034

この物件の地図・周辺情報・行政情報

この物件の周辺情報・行政情報を詳しく見る
【周辺情報】
物件の近くにあるコンビニや銀行・学校など、アイコン付のマップで詳しく表示できます!
【行政情報】
水道料や下水道料・ガス料金など、暮らしに関係のある情報を表示しています。
石地郵便局(郵便局)まで1420m

※カメラのアイコンがある場合は、マウスをポイントするとその施設の画像がご覧いただけます。


担当取扱い店舗情報

取扱い店舗画像
株式会社 ホーメックス
TEL: 0257-24-0034
所在地: 新潟県柏崎市土合628-1
交通:
営業時間: 8:30~17:30/定休日:土・日・祝(対応可能です) 年末年始・お盆・GW
免許番号: 新潟県知事(9)第3199号
所属団体名: 新潟県宅地建物取引業協会 柏崎支部
取引態様: 専属専任
ホームページ: http://homex.co.jp/