新潟県見附市元町二丁目1265-6 投資物件・その他 5,000,000円の物件情報

緑豊かで静かな環境、広い空間はスポ-ジム/スタジオ/アトリエ/事務所/テレワ-ク/学習塾/工房/作業所/倉庫/等の用途にお薦めの物件です。

物件名/所在地 詳細 価格
表面利回り
見附市元町二丁目690番4他3筆土地建物(その他)
新潟県見附市元町二丁目1265-6
  • 土地面積
    :329.18㎡ /99.57坪
  • 建ぺい率
    :60%
  • 容積率
    :200%
5,000,000
-
  • 見附市元町二丁目690番4他3筆土地建物(その他)
    有限会社 まえざわ
  • この物件を問い合わせる/無料
  • TEL: 0257-23-7385 0257-23-7385

物件画像

外観
間取り
物件画像
※画像クリックで拡大表示
建物全面道路より
物件画像
※画像クリックで拡大表示
建物図面
詳細画像
物件画像
建物背面
物件画像
一階室内
物件画像
二階室内
物件画像
三階室内
物件画像
1階冷蔵庫
物件画像
1階フロント
物件画像
1階冷蔵庫
物件画像
応接会議室
物件画像
事務機器
物件画像
1階フリ-スペ-ス
物件画像
トイレ正面
物件画像
3階①
物件画像
3階②
物件画像
3階③
物件画像
3階④
物件画像
3階⑤
物件画像
3階⑥
物件画像
建物前景入口
物件画像
売り物件:看板
物件画像
物件案内図


物件概要

上下水道/電気/プロパンガス(全面道路に都市ガス有り)2Fに男女別トイレ/荷物専用エレベ-タ-設備(1~2階)/広い駐車場があります。
物件コード 00081-200017
物件名 見附市元町二丁目690番4他3筆土地建物(その他)
交通 駅:信越線 見附駅から徒歩30分、バス:ふぁみりあ前から徒歩8分
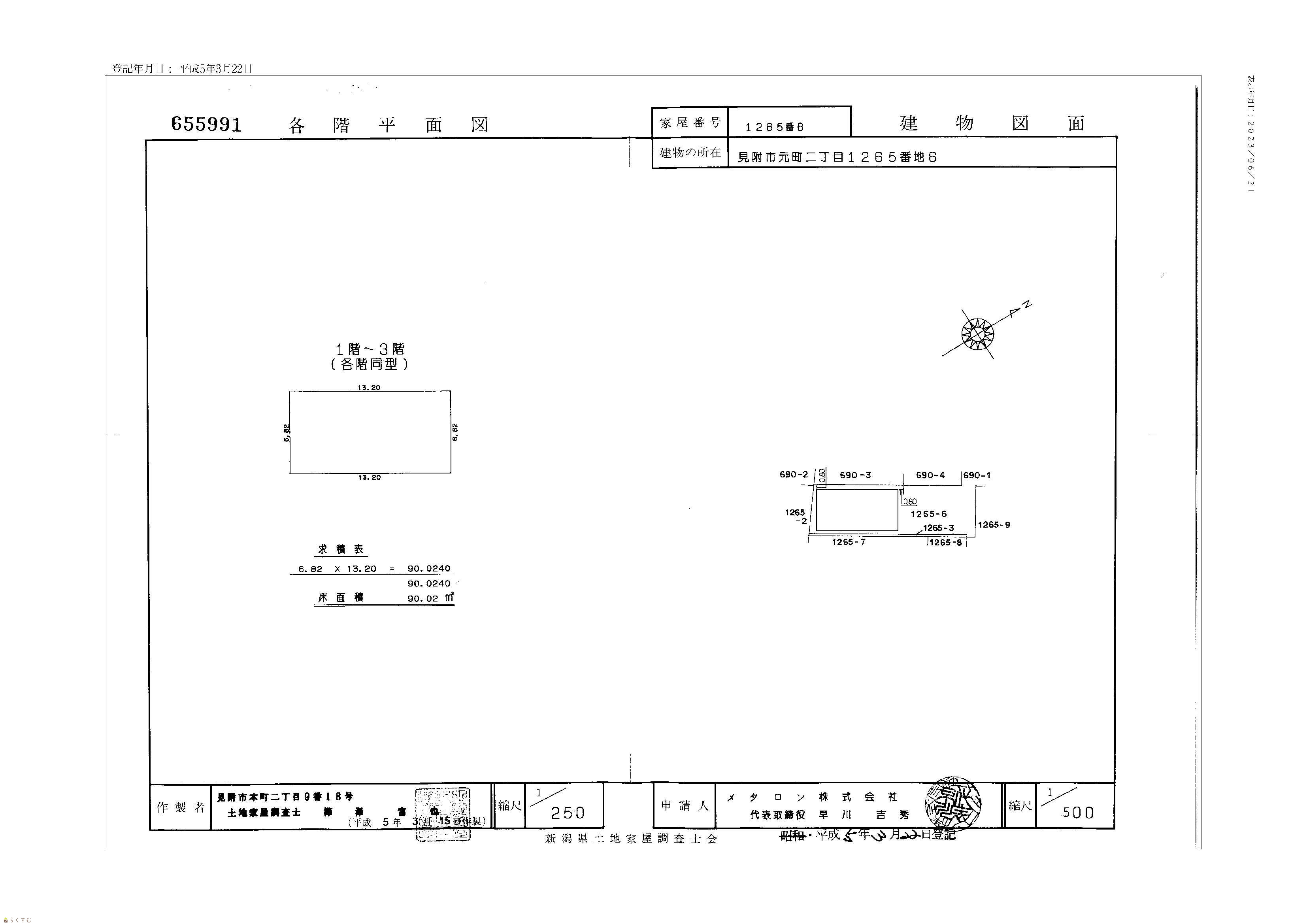
物件所在地 新潟県見附市元町二丁目1265-6
物件種別 投資物件・その他
物件区分 その他
構造 鉄骨 階建 地上3階建
建ぺい率/容積率 60%/200%
建物面積 1階 90.02㎡/ 2階 90.02㎡/ 3階 90.02㎡/ 計 270.06㎡ /81.69坪
土地面積 329.18㎡ /99.57坪
築年月 1992年12月(築33年)
入居(引き渡し)時期 相談
用途地域 準工業地域 地目 宅地  (現状:宅地)
都市計画 市街化区域 学校区 見附小学校(556m)・見附中学校(356m)
形状 間口 8.5m × 奥行 26m 道路 -
私道 - その他の制限 建築基準法第22条指定地域
  • 見附市元町二丁目690番4他3筆土地建物(その他)
    有限会社 まえざわ
  • この物件を問い合わせる/無料
  • TEL: 0257-23-7385 0257-23-7385

物件詳細情報

所在階/階数 - 号室 -
販売価格 5,000,000円 方位 -
表面利回り(満室想定時) - 満室想定年収 - (想定月収: - )
現行利回り - 現行年間年収 -
住戸数 -
間取り -
専有面積 - バルコニー面積 -
その他面積 - 駐車場 建物前及び裏側複数台可
管理費 - 修繕積立金 -
現況 空家
仲介手数料 231,000円
利用制限 -
設備 駐車場(近隣含む)
取引態様 一般
備考 広い室内空間はスポ-ツジム/スタジオ/アトリエ/事務所/テレワ-ク/学習塾/工房/作業所/倉庫/等の用途にお薦めの物件です。
建物は基礎共に頑丈な造りです。また、室内はとても綺麗な状態です。
取り扱い会社

有限会社 まえざわ

新潟県柏崎市上田尻1697番地

情報登録日 2025/04/29 次回更新予定日 2026/05/21
取引条件有効期限 2023/08/31
  • 見附市元町二丁目690番4他3筆土地建物(その他)
    有限会社 まえざわ
  • この物件を問い合わせる/無料
  • TEL: 0257-23-7385 0257-23-7385

この物件の地図・周辺情報・行政情報

この物件の周辺情報・行政情報を詳しく見る
【周辺情報】
物件の近くにあるコンビニや銀行・学校など、アイコン付のマップで詳しく表示できます!
【行政情報】
水道料や下水道料・ガス料金など、暮らしに関係のある情報を表示しています。

担当取扱い店舗情報

取扱い店舗画像
有限会社 まえざわ
TEL: 0257-23-7385
所在地: 新潟県柏崎市上田尻1697番地
交通: 北陸自動車道柏崎インタ-から500メ-トル
営業時間: 9:00~21:00/定休日:水曜日
免許番号: 新潟県知事(5)4410号
所属団体名: (有)まえざわ
取引態様: 一般
ホームページ: http://ymaezawa.sakura.ne.jp