新潟県長岡市小国町桐沢1825-3 中古一戸建て 5LDK 8,500,000円の物件情報

令和7年4月20日価格改定 ミサワホーム施工スムストック住宅 落雪高床式3階建てなので降雪時期も安心です

物件名/所在地 詳細 価格
【ミサワホームのスムストック:高床式5LDK】小国町桐沢
新潟県長岡市小国町桐沢1825-3
  • 土地面積
    :314.42㎡ /95.11坪
  • 建物面積
    :205.14㎡ /62.05坪
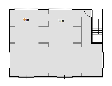
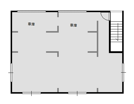
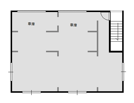
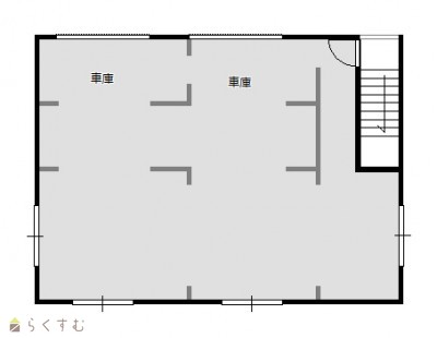
  • 間取り
    :5LDK
  • 築年月
    :2000年11月
8,500,000
  • 【ミサワホームのスムストック:高床式5LDK】小国町桐沢
    ミサワホーム北越 株式会社
  • この物件を問い合わせる/無料
  • TEL: 0120-486-330 0120-486-330

物件画像

外観
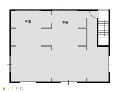
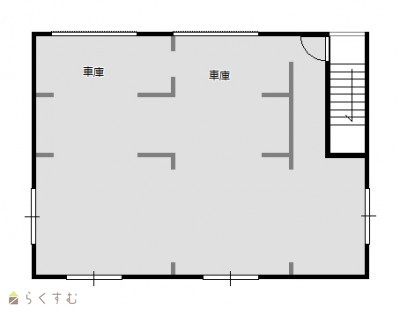
間取り
物件画像
※画像クリックで拡大表示
外観
物件画像
※画像クリックで拡大表示
間取図
詳細画像
物件画像
間取図
物件画像
間取図
物件画像
外観
物件画像
車庫
物件画像
居間
物件画像
和室
物件画像
ホール
物件画像
浴室
物件画像
トイレ
物件画像
周辺
物件画像
前面道路
物件画像
前面道路
物件画像
地図画像


物件概要

アフターメンテナンスも継続します。田舎暮らしにも最適です。
物件コード 00080-200194
物件名 【ミサワホームのスムストック:高床式5LDK】小国町桐沢
交通 バス:法坂から徒歩14分
物件所在地 新潟県長岡市小国町桐沢1825-3
物件種別 中古一戸建て
構造 木造 階建 地上3階建
建ぺい率/容積率 70%/200%
建物面積 1階 68.72㎡/ 2階 71.83㎡/ 3階 64.59㎡/ 計 205.14㎡ /62.05坪
土地面積 314.42㎡ /95.11坪
築年月 2000年11月(築25年)
入居(引き渡し)時期 相談
用途地域 用途の指定のない地域 地目 宅地
都市計画 都市計画区域外 学校区 小国小学校(1,665m)・小国中学校(1,868m)
形状 - 道路 北側11M県道(消雪あり)
私道 - その他の制限 -
  • 【ミサワホームのスムストック:高床式5LDK】小国町桐沢
    ミサワホーム北越 株式会社
  • この物件を問い合わせる/無料
  • TEL: 0120-486-330 0120-486-330

物件詳細情報

所在階/階数 - 号室 -
販売価格 8,500,000円 方位 指定なし
間取り 5LDK
専有面積 - バルコニー面積 -
その他面積 68.72㎡ /20.78坪  高床 駐車場 -
管理費 - 修繕積立金 -
現況 空家
仲介手数料 346,500円
利用制限 -
設備 日当り良好、耐震構造、駐車3台以上可能、複層ガラス、システムキッチン、追いだき機能付き、バス1坪以上、温水洗浄便座、トイレ2か所以上、シャワー付き洗面台、24時間換気システム、ルーフバルコニー、LPG、上水道、下水道、ウォークインクローゼット、全居室収納あり、BS端子、別荘、田舎暮らし
取引態様 専任
備考 -
取り扱い会社

ミサワホーム北越 株式会社

新潟県長岡市古正寺2丁目71番地

情報登録日 2025/05/03 次回更新予定日 2026/05/21
取引条件有効期限 2025/09/30
  • 【ミサワホームのスムストック:高床式5LDK】小国町桐沢
    ミサワホーム北越 株式会社
  • この物件を問い合わせる/無料
  • TEL: 0120-486-330 0120-486-330

この物件の地図・周辺情報・行政情報

この物件の周辺情報・行政情報を詳しく見る
【周辺情報】
物件の近くにあるコンビニや銀行・学校など、アイコン付のマップで詳しく表示できます!
【行政情報】
水道料や下水道料・ガス料金など、暮らしに関係のある情報を表示しています。

担当取扱い店舗情報

取扱い店舗画像
ミサワホーム北越 株式会社
TEL: 0120-486-330
所在地: 新潟県長岡市古正寺2丁目71番地
交通: 長岡駅
営業時間: 9:00~18:00/定休日:火・水
免許番号: 国土交通大臣(3)8557号
所属団体名: 新潟県宅地建物取引協会 長岡支部
取引態様: 専任
ホームページ: http://hokuetsu.misawa.co.jp