新潟県見附市嶺崎1丁目11-5 中古一戸建て 4LDK 11,600,000円の物件情報

閑静な住宅街に立地し、公園のそばの為、四季を体感できる住環境。

物件名/所在地 詳細 価格
見附市嶺崎1丁目土地建物
新潟県見附市嶺崎1丁目11-5
  • 土地面積
    :338.44㎡ /102.37坪
  • 建物面積
    :108.05㎡ /32.68坪
  • 間取り
    :4LDK
  • 築年月
    :2007年5月
11,600,000
  • 見附市嶺崎1丁目土地建物
    橋本建設 株式会社
  • この物件を問い合わせる/無料
  • TEL: 0258-63-1112 0258-63-1112

物件画像

外観
間取り
物件画像
※画像クリックで拡大表示
外観
物件画像
※画像クリックで拡大表示
間取り
詳細画像
物件画像
ダイニング
物件画像
和室
物件画像
エントランス
物件画像
バスルーム
物件画像
トイレ
物件画像
寝室
物件画像
洋室
物件画像
洋室
物件画像
ワーキングスペース
物件画像
洗面所
物件画像
印刷用地図


物件概要

4LDKの間取りで、平成19年建築、比較的きれいな戸建です。お求めやすい価格です。
物件コード 00070-200104
物件名 見附市嶺崎1丁目土地建物
交通 駅:信越線 見附駅から徒歩39分
物件所在地 新潟県見附市嶺崎1丁目11-5
物件種別 中古一戸建て
構造 木造 階建 地上2階建
建ぺい率/容積率 70%/200%
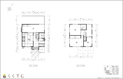
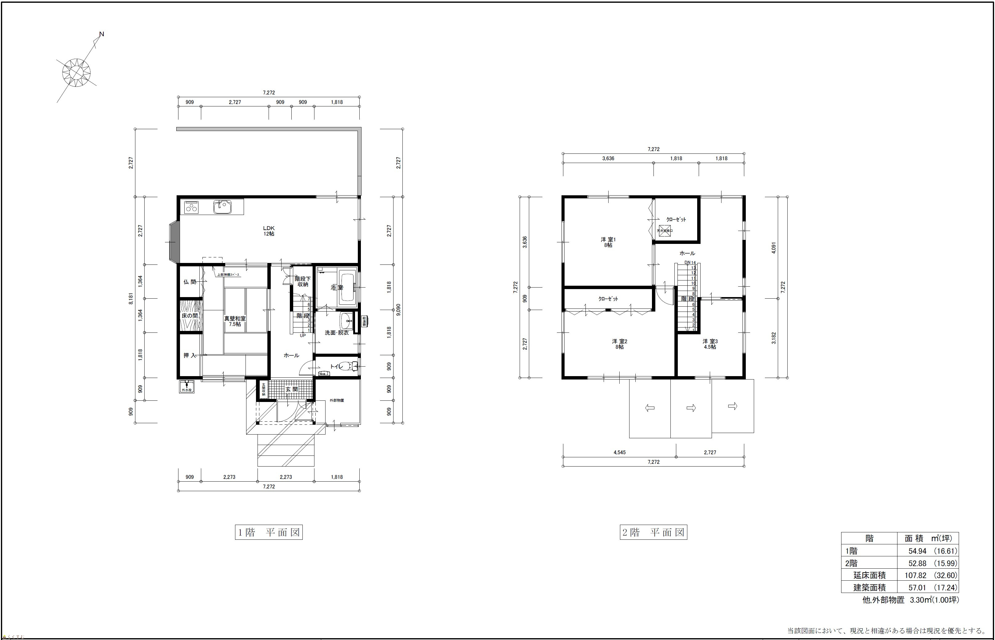
建物面積 1階 55.06㎡/ 2階 52.99㎡/ 計 108.05㎡ /32.68坪
土地面積 338.44㎡ /102.37坪
築年月 2007年5月(築19年)
入居(引き渡し)時期 随時入居(引き渡し)可
用途地域 無指定 地目 宅地
都市計画 市街化調整区域 学校区 見附小学校(1,214m)・見附中学校(1,293m)
形状 - 道路 見附市道
私道 - その他の制限 公園法、都市計画法、22条区域、開発の許可(必要な場合あり)
  • 見附市嶺崎1丁目土地建物
    橋本建設 株式会社
  • この物件を問い合わせる/無料
  • TEL: 0258-63-1112 0258-63-1112

物件詳細情報

所在階/階数 - 号室 -
販売価格 11,600,000円 方位 -
間取り 4LDK (和室:7.5畳) (洋室:8、8、4.5)
LDK12
専有面積 - バルコニー面積 -
その他面積 - 駐車場 -
管理費 - 修繕積立金 -
現況 空家
仲介手数料 448,800円
消雪費用 15,000円
年間額について詳細確認中
見附市の借地部分の費用 260円
年間260円程度
利用制限 -
設備 閑静な住宅街、駐車2台可能、TVインターホン、システムキッチン、3口コンロ、追いだき機能付き、温水洗浄便座、都市ガス、上水道、下水道、即引き渡し可能
取引態様 一般
備考 閑静な住宅街に立地している為、穏やかな生活を送ることが可能です。また、公園のそばの為、自然環境に恵まれ、四季折々を体感できる自然豊かな住環境です。近隣には郵便局やスーパーも立地しているので、生活利便性も良好です。4LDKなので、ファミリー向けとしても良好な間取りです。平成19年建築で、比較的きれいな戸建です。経済的にもバランスがとりやすい、お求めやすい価格です。
取り扱い会社

橋本建設 株式会社

新潟県見附市市野坪町31-3

情報登録日 2026/03/06 次回更新予定日 2026/05/21
取引条件有効期限 2027/03/31
  • 見附市嶺崎1丁目土地建物
    橋本建設 株式会社
  • この物件を問い合わせる/無料
  • TEL: 0258-63-1112 0258-63-1112

この物件の地図・周辺情報・行政情報

この物件の周辺情報・行政情報を詳しく見る
【周辺情報】
物件の近くにあるコンビニや銀行・学校など、アイコン付のマップで詳しく表示できます!
【行政情報】
水道料や下水道料・ガス料金など、暮らしに関係のある情報を表示しています。

担当取扱い店舗情報

取扱い店舗画像
橋本建設 株式会社
TEL: 0258-63-1112
所在地: 新潟県見附市市野坪町31-3
交通: 見附駅
営業時間: 9:00~17:00/定休日:水・木曜日
免許番号: 新潟県知事(9)第3180号
所属団体名: 公益社団法人 新潟県宅地建物取引業協会 三条支部
取引態様: 一般
ホームページ: http://hashikenhome.com/