新潟県三島郡出雲崎町船橋18 中古一戸建て 7K 5,500,000円の物件情報

キッチン、トイレ2か所、車庫2棟あり。保育園近くの物件!

物件名/所在地 詳細 価格
出雲崎町船橋中古住宅
新潟県三島郡出雲崎町船橋18
  • 土地面積
    :396.69㎡ /119.99坪
  • 建物面積
    :165.77㎡ /50.14坪
  • 間取り
    :7K
  • 築年月
    :1983年9月
5,500,000
  • 出雲崎町船橋中古住宅
    株式会社 山六木材
  • この物件を問い合わせる/無料
  • TEL: 0258-78-4413 0258-78-4413

物件画像

外観
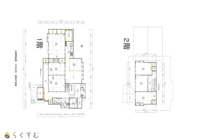
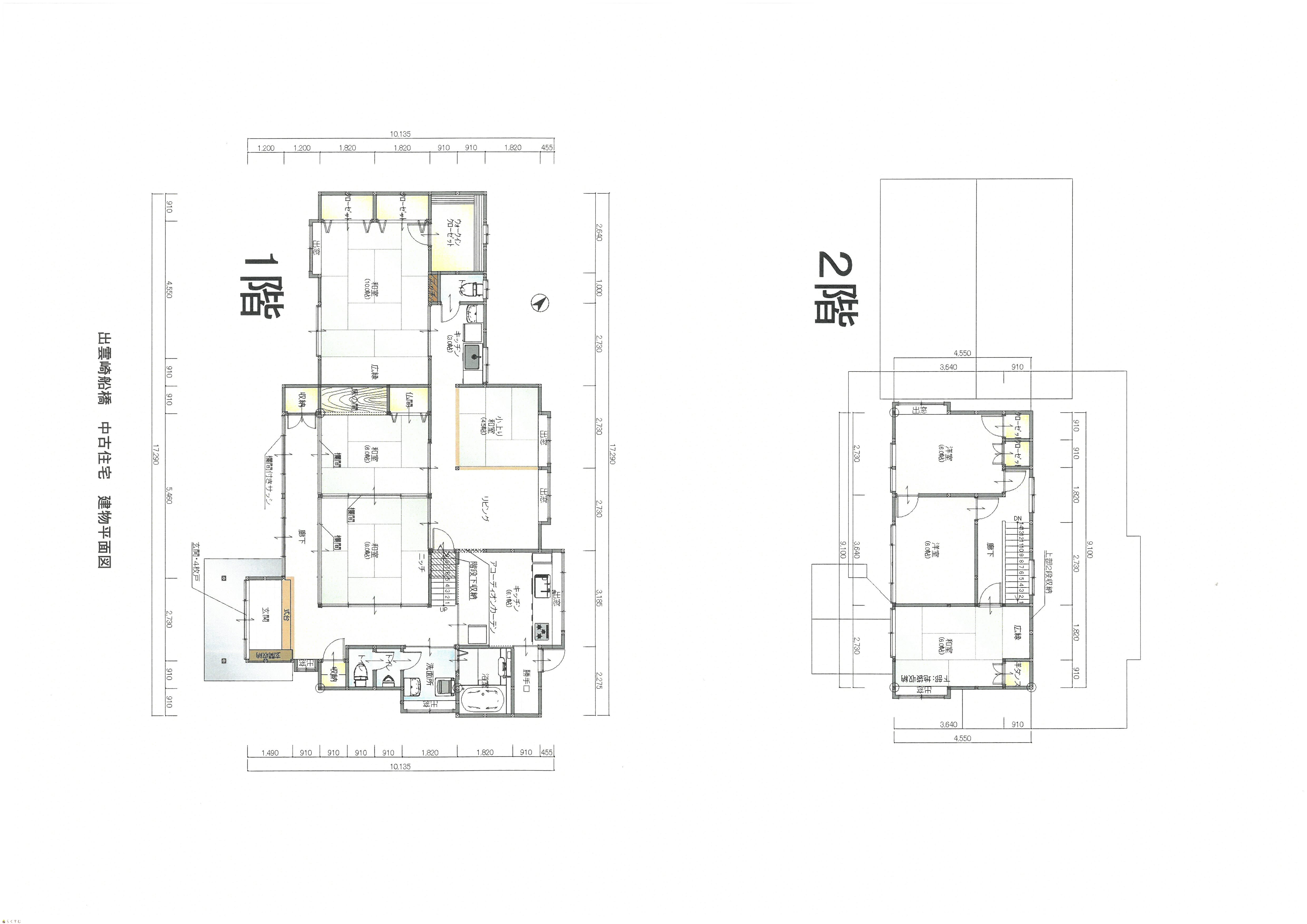
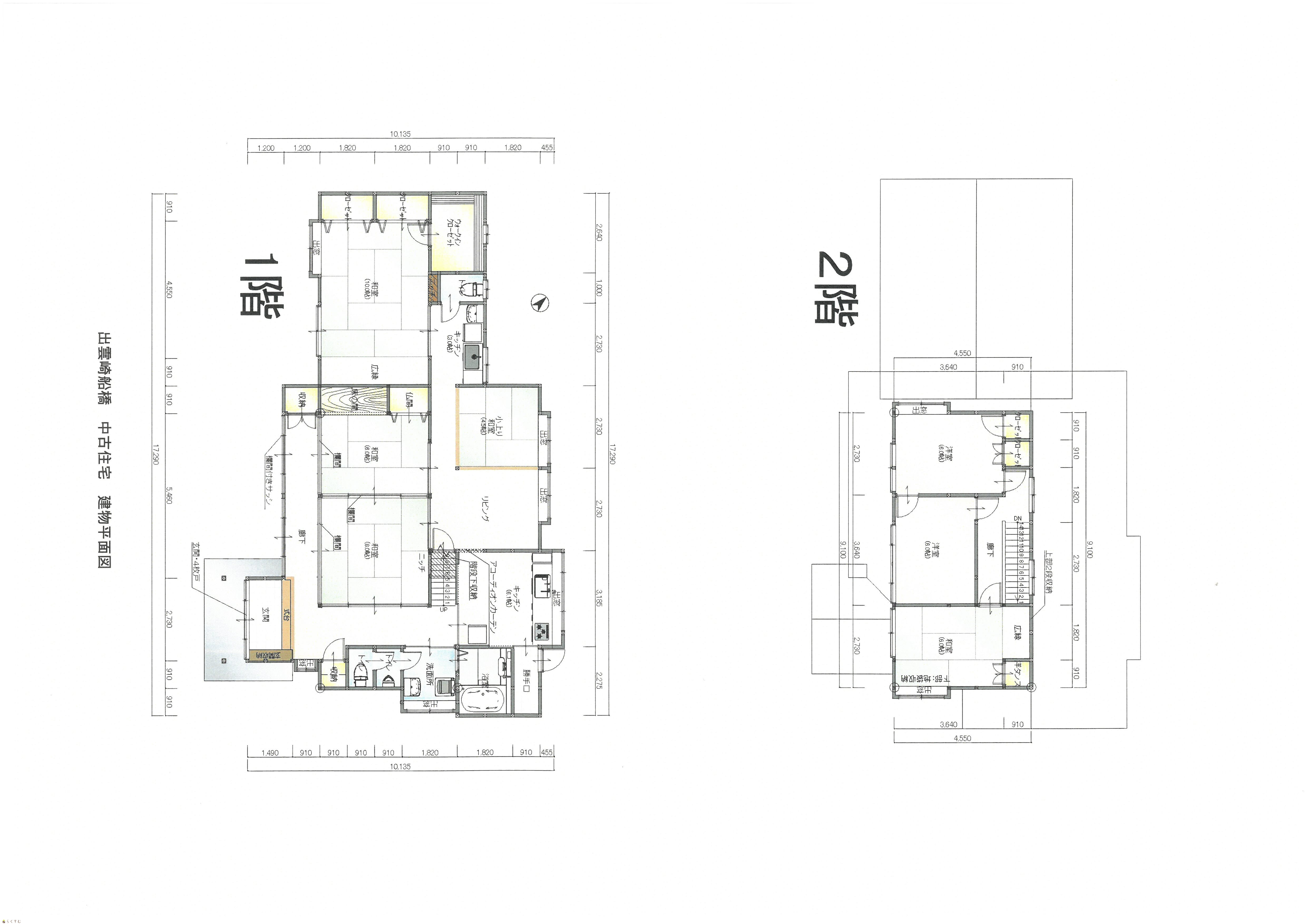
間取り
物件画像
※画像クリックで拡大表示
外観
物件画像
※画像クリックで拡大表示
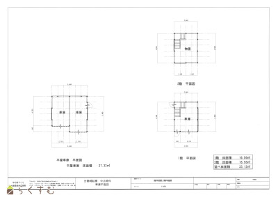
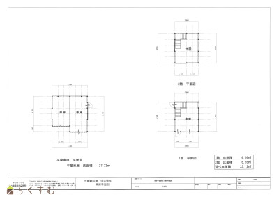
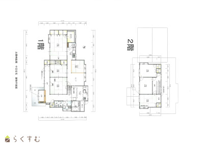
建物平面図
詳細画像
物件画像
外観
物件画像
1階和室
物件画像
台所
物件画像
お風呂
物件画像
トイレ
物件画像
トイレ
物件画像
1階ミニキッチン、トイレ
物件画像
2階洋室
物件画像
2階洋室
物件画像
2階和室
物件画像
車庫平面図


物件概要

物件コード 00063-200094
物件名 出雲崎町船橋中古住宅
交通 駅:越後線 小木ノ城駅から徒歩5分、バス:出雲崎駅前から徒歩33分
物件所在地 新潟県三島郡出雲崎町船橋18
物件種別 中古一戸建て
構造 木造 階建 地上2階建
建ぺい率/容積率 -
建物面積 1階 123.82㎡/ 2階 41.95㎡/ 計 165.77㎡ /50.14坪
土地面積 396.69㎡ /119.99坪
築年月 1983年9月(築42年)
入居(引き渡し)時期 相談
用途地域 用途の指定のない地域 地目 宅地
都市計画 都市計画区域外 学校区 出雲崎小学校(2,207m)・出雲崎中学校(2,413m)
形状 間口 22m 道路 南側:町道
私道 - その他の制限 -
  • 出雲崎町船橋中古住宅
    株式会社 山六木材
  • この物件を問い合わせる/無料
  • TEL: 0258-78-4413 0258-78-4413

物件詳細情報

所在階/階数 - 号室 -
販売価格 5,500,000円 方位 -
間取り 7K (和室:8畳、6畳、4.5畳、10畳、6畳) (洋室:6、6)
専有面積 - バルコニー面積 -
その他面積 - 駐車場 -
管理費 - 修繕積立金 -
現況 空家
仲介手数料 330,000円
利用制限 -
設備 日当り良好、閑静な住宅街、駐車2台可能、追いだき機能付き、トイレ2か所以上、LPG、上水道、下水道、別荘、田舎暮らし
取引態様 一般
備考 ・未登記建物(車庫)
・車庫2棟あり
・トイレ2か所あり、ミニキッチン、洗面
・現況有姿取引となります。
取り扱い会社

株式会社 山六木材

新潟県三島郡出雲崎町松本99-1

情報登録日 2025/04/24 次回更新予定日 2026/01/04
取引条件有効期限 2025/07/31
  • 出雲崎町船橋中古住宅
    株式会社 山六木材
  • この物件を問い合わせる/無料
  • TEL: 0258-78-4413 0258-78-4413

この物件の地図・周辺情報・行政情報

この物件の周辺情報・行政情報を詳しく見る
【周辺情報】
物件の近くにあるコンビニや銀行・学校など、アイコン付のマップで詳しく表示できます!
【行政情報】
水道料や下水道料・ガス料金など、暮らしに関係のある情報を表示しています。
出雲崎町立出雲崎小学校(学校)まで2500m
出雲崎町立出雲崎中学校(学校)まで3500m
出雲崎郵便局(郵便局)まで2700m
柏崎信用金庫出雲崎支店(銀行)まで2900m
出雲崎町役場(市区町村機関)まで2900m
出雲崎町町民体育館(市区町村機関)まで4100m
小木之城保育園(学校)まで240m

※カメラのアイコンがある場合は、マウスをポイントするとその施設の画像がご覧いただけます。


担当取扱い店舗情報

取扱い店舗画像
株式会社 山六木材
TEL: 0258-78-4413
所在地: 新潟県三島郡出雲崎町松本99-1
交通: JR 出雲崎駅
営業時間: 8:15~17:30/定休日:水曜・年末年始休暇、GW、夏季休暇
免許番号: 新潟県知事(3)第5114号
所属団体名: 新潟県宅地建物取引協会 長岡支部
取引態様: 一般
ホームページ: https://yama-roku-moku.com/