新潟県長岡市大曲戸新田38-16 中古一戸建て 5LDK 16,800,000円の物件情報

物件名/所在地 詳細 価格
長岡市大曲戸新田売り住宅
新潟県長岡市大曲戸新田38-16
  • 土地面積
    :193.29㎡ /58.47坪
  • 建物面積
    :107㎡ /32.36坪
  • 間取り
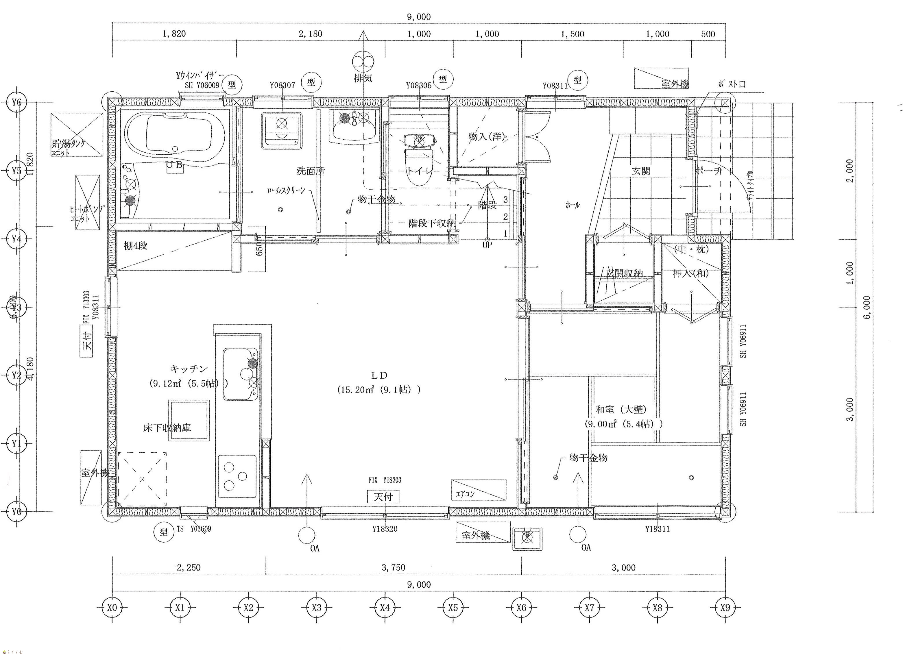
    :5LDK
  • 築年月
    :2009年3月
16,800,000
  • 長岡市大曲戸新田売り住宅
    佐藤リアルティ 株式会社
  • この物件を問い合わせる/無料
  • TEL: 0258-34-3718 0258-34-3718

物件画像

外観
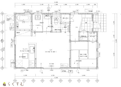
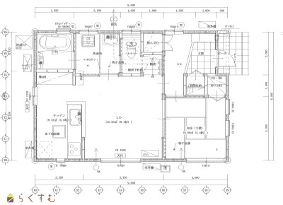
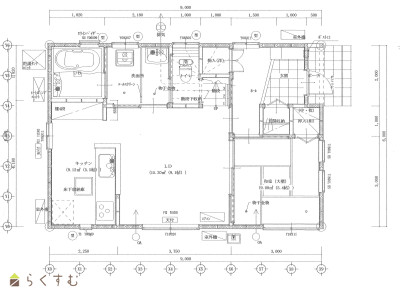
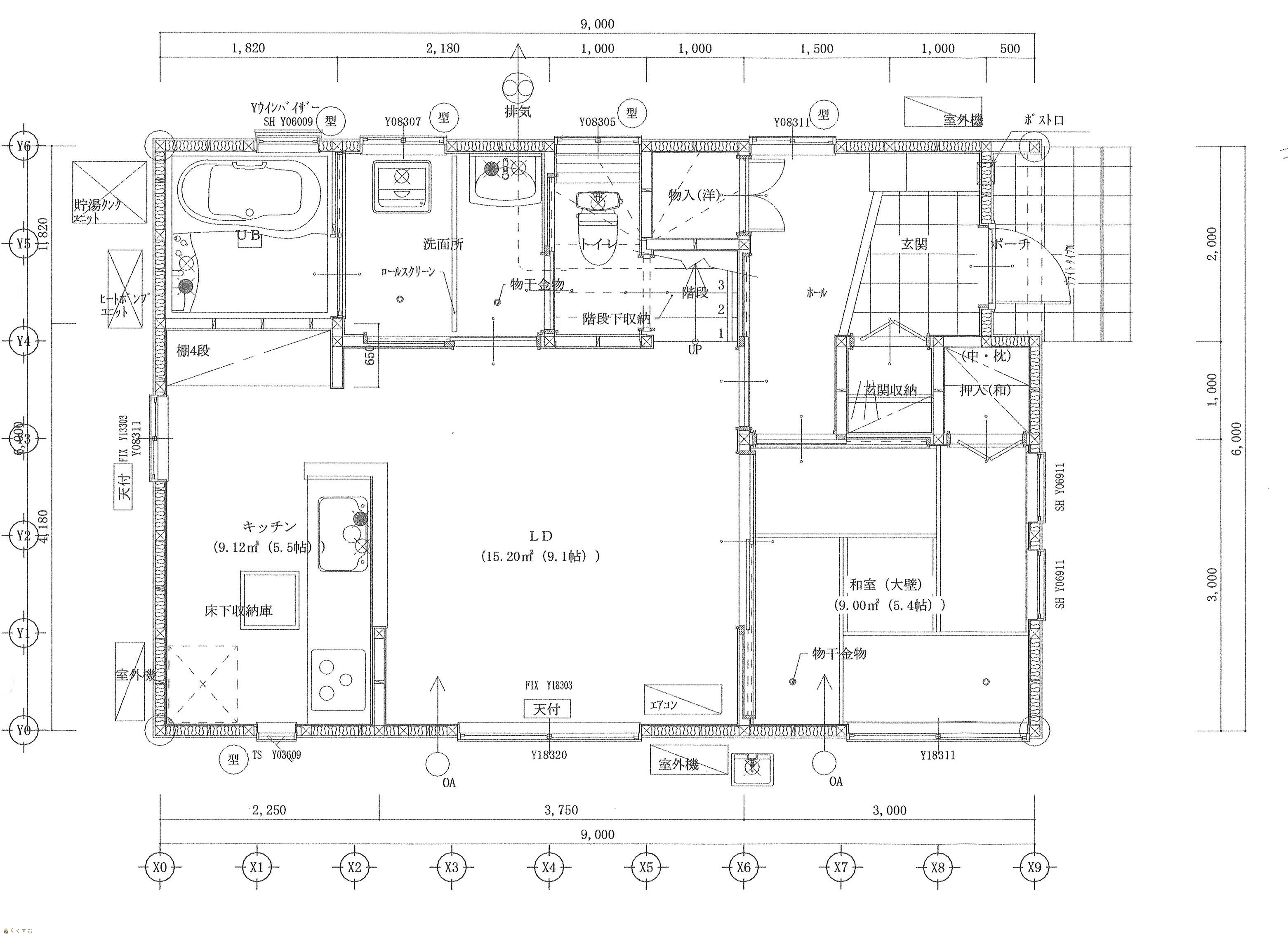
間取り
物件画像
※画像クリックで拡大表示
外観
物件画像
※画像クリックで拡大表示
間取り
詳細画像
物件画像
間取り2


物件概要

物件コード 00056-200192
物件名 長岡市大曲戸新田売り住宅
交通 駅:信越線 押切駅から徒歩24分、バス:大口から徒歩10分
物件所在地 新潟県長岡市大曲戸新田38-16
物件種別 中古一戸建て
構造 木造 階建 地上2階建
建ぺい率/容積率 60%/200%
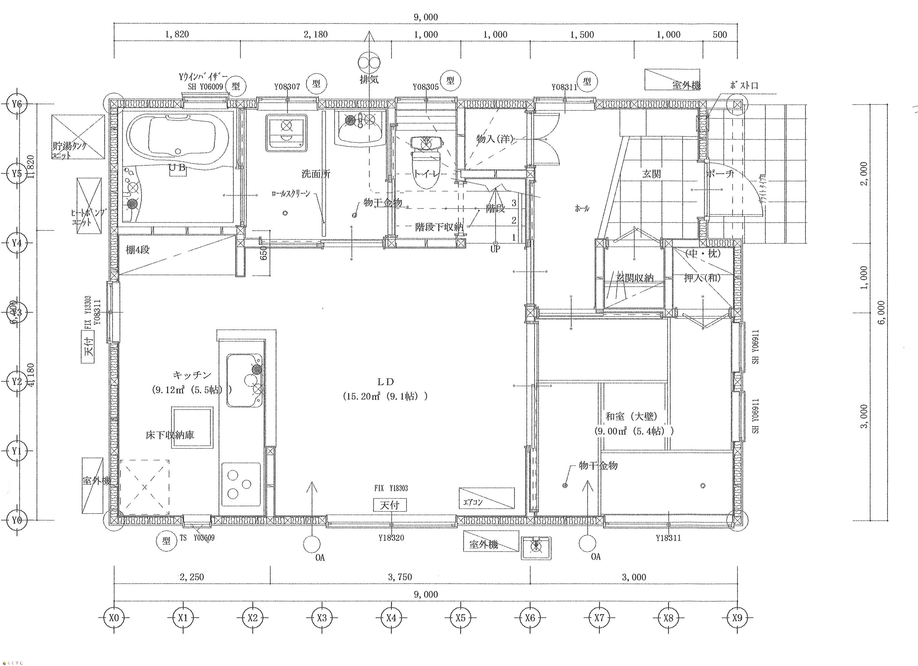
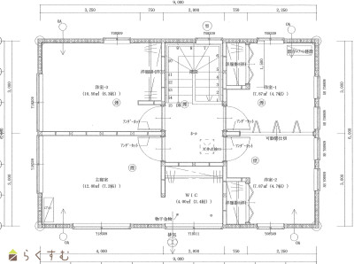
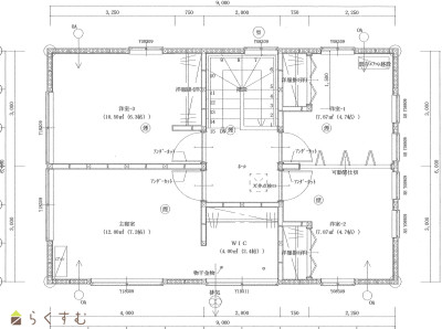
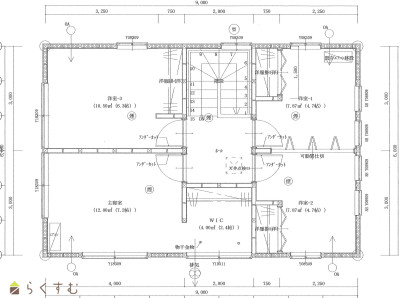
建物面積 1階 53㎡/ 2階 54㎡/ 計 107㎡ /32.36坪
土地面積 193.29㎡ /58.47坪
築年月 2009年3月(築17年)
入居(引き渡し)時期 随時入居(引き渡し)可
用途地域 第1種住居地域 地目 宅地  (現状:宅地)
都市計画 市街化区域 学校区 上通小学校(474m)・中之島中学校(4,246m)
形状 間口 12m × 奥行 15m 道路 北向き公道6m 消雪道路
私道 - その他の制限 建築基準法22条区域
  • 長岡市大曲戸新田売り住宅
    佐藤リアルティ 株式会社
  • この物件を問い合わせる/無料
  • TEL: 0258-34-3718 0258-34-3718

物件詳細情報

所在階/階数 - 号室 -
販売価格 16,800,000円 方位
間取り 5LDK (和室:5.4畳) (洋室:7.2、6.3、4.7、4.7)
LDK9.1
専有面積 - バルコニー面積 -
その他面積 - 駐車場 -
管理費 - 修繕積立金 -
現況 空家
仲介手数料 620,400円
利用制限 -
設備 閑静な住宅街、駐車2台可能、駐車3台以上可能、システムキッチン、カウンターキッチン、IHクッキングヒーター、追いだき機能付き、バス1坪以上、温水洗浄便座、シャワー付き洗面台、エアコンあり、オール電化、上水道、下水道
取引態様 一般
備考 ご契約後、動産撤去→ハウスクリーニングを施しお引き渡しとなります。
取り扱い会社

佐藤リアルティ 株式会社

新潟県長岡市笹崎1-4-5武蔵ビル 2F

情報登録日 2025/08/18 次回更新予定日 2026/05/21
取引条件有効期限 2026/03/13
  • 長岡市大曲戸新田売り住宅
    佐藤リアルティ 株式会社
  • この物件を問い合わせる/無料
  • TEL: 0258-34-3718 0258-34-3718

この物件の地図・周辺情報・行政情報

この物件の周辺情報・行政情報を詳しく見る
【周辺情報】
物件の近くにあるコンビニや銀行・学校など、アイコン付のマップで詳しく表示できます!
【行政情報】
水道料や下水道料・ガス料金など、暮らしに関係のある情報を表示しています。

担当取扱い店舗情報

取扱い店舗画像
佐藤リアルティ 株式会社
TEL: 0258-34-3718
所在地: 新潟県長岡市笹崎1-4-5武蔵ビル 2F
交通: 宮内駅
営業時間: 9:00~18:00/定休日:日、祝日
免許番号: 新潟県知事(3)第5117号
所属団体名: 全日本不動産協会 新潟県本部
取引態様: 一般
ホームページ: http://sato-realty.co.jp/