新潟県魚沼市中家652-5 中古一戸建て 7DK 3,800,000円の物件情報

2部屋を一つの大きな寝室にリフォーム!アルミカーポート新設

物件名/所在地 詳細 価格
魚沼市中家 オール電化住宅 商談中
新潟県魚沼市中家652-5
  • 土地面積
    :512.86㎡ /155.14坪
  • 建物面積
    :198.9㎡ /60.16坪
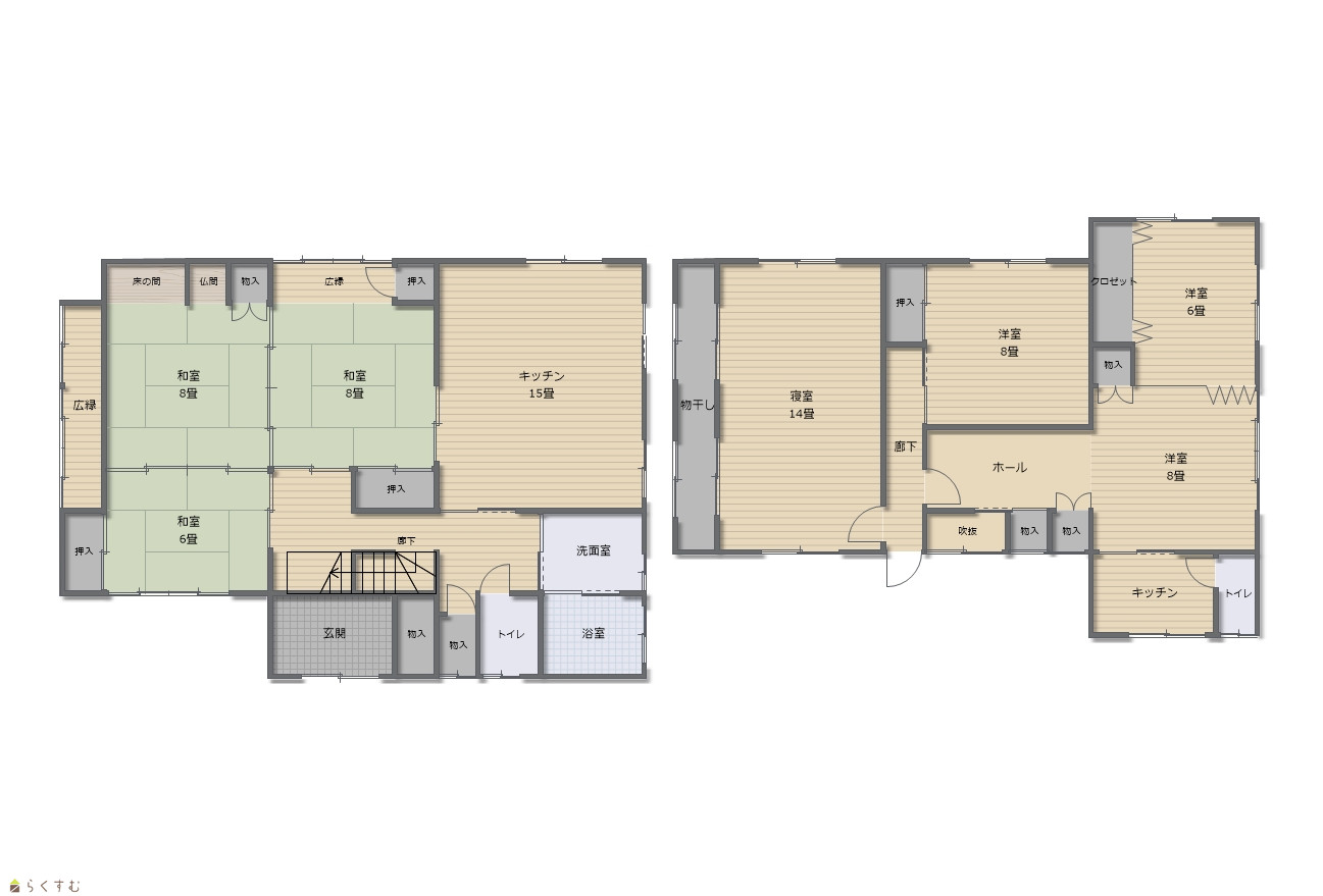
  • 間取り
    :7DK
  • 築年月
    :1972年9月
3,800,000
  • 魚沼市中家 オール電化住宅 商談中
    ブレイン・リアルエステート合同会社
  • この物件を問い合わせる/無料
  • TEL: 0258-86-6934 0258-86-6934

物件画像

外観
間取り
物件画像
※画像クリックで拡大表示
外観
物件画像
※画像クリックで拡大表示
間取
詳細画像
物件画像
現地外観
物件画像
カーポート
物件画像
車庫
物件画像
玄関
物件画像
1階和室
物件画像
1階和室
物件画像
キッチン
物件画像
洗面室
物件画像
お風呂
物件画像
トイレ
物件画像
2階洋室
物件画像
2階洋室
物件画像
2階洋室 別角度
物件画像
2階洋室
物件画像
2階キッチン
物件画像
1階トイレ
物件画像
2階 洋室
物件画像
外観
物件画像
物件画像
地図画像


物件概要

物件コード 00044-200679
物件名 魚沼市中家 オール電化住宅 商談中
交通 駅:只見線 藪神駅から徒歩52分、バス:新保から徒歩40分
物件所在地 新潟県魚沼市中家652-5
物件種別 中古一戸建て
構造 木造 階建 地上2階建
建ぺい率/容積率 70%/200%
建物面積 1階 107.3㎡/ 2階 91.6㎡/ 計 198.9㎡ /60.16坪
土地面積 512.86㎡ /155.14坪
築年月 1972年9月(築53年)
入居(引き渡し)時期 相談
用途地域 無指定 地目 宅地
都市計画 非線引き都市計画区域 学校区 広神東小学校(2,192m)・広神中学校(3,862m)
形状 間口 28m × 奥行 13.8m 道路 東側:県道 幅員11.5m 北側:県道 幅員7.2m
私道 - その他の制限 -
  • 魚沼市中家 オール電化住宅 商談中
    ブレイン・リアルエステート合同会社
  • この物件を問い合わせる/無料
  • TEL: 0258-86-6934 0258-86-6934

物件詳細情報

所在階/階数 - 号室 -
販売価格 3,800,000円 方位 -
間取り 7DK
2階リフォーム済み
専有面積 - バルコニー面積 -
その他面積 - 駐車場 -
管理費 - 修繕積立金 -
現況 居住中
仲介手数料 330,000円
利用制限 -
設備 角地、日当り良好、閑静な住宅街、駐車3台以上可能、駐車場融雪設備あり、TVインターホン、バス1坪以上、温水洗浄便座、トイレ2か所以上、エアコンあり、LPG、上水道、下水道、内装リフォーム済み
取引態様 専任
備考 ・現況有姿の引き渡しとなり、契約不適合責任免責
取り扱い会社

ブレイン・リアルエステート合同会社

新潟県長岡市大島本町3丁目10番8号202号室

情報登録日 2025/08/08 次回更新予定日 2025/11/10
取引条件有効期限 2025/09/18
  • 魚沼市中家 オール電化住宅 商談中
    ブレイン・リアルエステート合同会社
  • この物件を問い合わせる/無料
  • TEL: 0258-86-6934 0258-86-6934

この物件の地図・周辺情報・行政情報

この物件の周辺情報・行政情報を詳しく見る
【周辺情報】
物件の近くにあるコンビニや銀行・学校など、アイコン付のマップで詳しく表示できます!
【行政情報】
水道料や下水道料・ガス料金など、暮らしに関係のある情報を表示しています。

担当取扱い店舗情報

取扱い店舗画像
ブレイン・リアルエステート合同会社
TEL: 0258-86-6934
所在地: 新潟県長岡市大島本町3丁目10番8号202号室
交通:
営業時間: 9:30~18:00/定休日:水曜日、日曜日
免許番号: 新潟県知事(3)第4978号
所属団体名: ブレインリアルエステート合同会社
取引態様: 専任
ホームページ: http://www.brain-niigata.co.jp