新潟県長岡市旭町1丁目1-11サーパス旭町804 中古マンション 2LDK 18,500,000円の物件情報

長岡駅から徒歩10分の立地です。

物件名/所在地 詳細 価格
サーパス旭町 804
804号室
新潟県長岡市旭町1丁目1-11サーパス旭町804
  • 専有面積
    :68.74㎡ /20.79坪
  • 間取り
    :2LDK
  • 築年月
    :2006年1月
18,500,000
  • サーパス旭町 804
    株式会社 高野不動産販売
  • この物件を問い合わせる/無料
  • TEL: 0258-33-7711 0258-33-7711

物件画像

外観
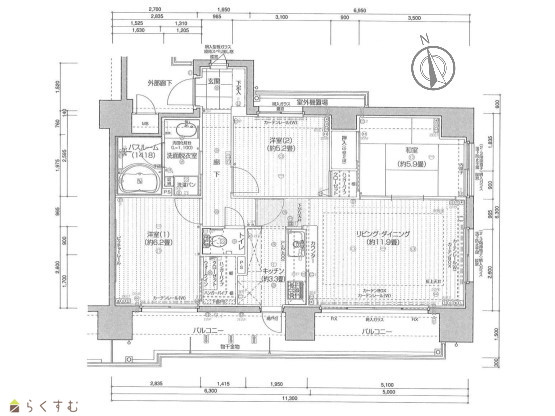
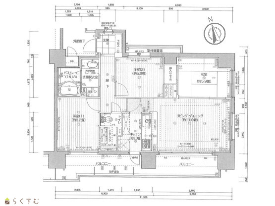
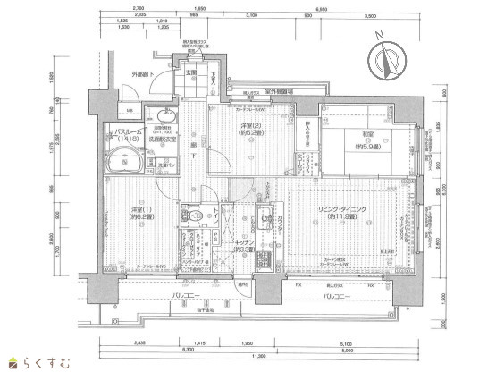
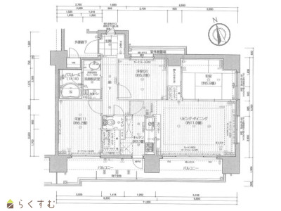
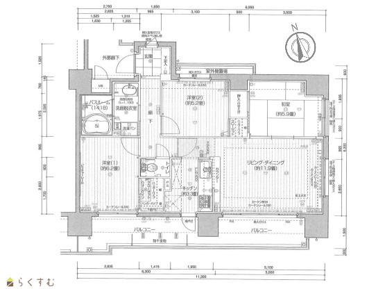
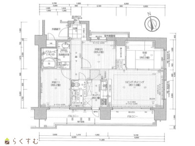
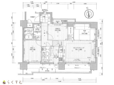
間取り
物件画像
※画像クリックで拡大表示
外観
物件画像
※画像クリックで拡大表示
リビングと和室をつなげてあります。
詳細画像
物件画像
バルコニーからの眺望
物件画像
リビング
物件画像
リビング 
物件画像
リビング
物件画像
キッチン
物件画像
キッチン
物件画像
インターフォン、床暖房
物件画像
トイレ
物件画像
キッチン、食器棚付き
物件画像
バルコニー
物件画像
廊下よりリビング
物件画像
玄関
物件画像
脱衣場
物件画像
洋室
物件画像
洋室
物件画像
浴室
物件画像
地図画像


物件概要

角部屋で日当たり良好!駐車場空きあり
物件コード 00041-200933
物件名 サーパス旭町 804
交通 駅:上越新幹線 長岡駅から徒歩8分、バス:南町1丁目から徒歩1分
物件所在地 新潟県長岡市旭町1丁目1-11サーパス旭町804
物件種別 中古マンション
構造 鉄筋コン 階建 地上10階地下1階建
建ぺい率/容積率 90%/399%
建物面積 計 3,551.97㎡ /1,074.47坪
土地面積 640.32㎡ /193.69坪
築年月 2006年1月(築20年)
入居(引き渡し)時期 随時入居(引き渡し)可
用途地域 商業地域 地目 宅地  (現状:宅地)
都市計画 市街化区域 学校区 阪之上小学校(756m)・南中学校(403m)
形状 - 道路 -
私道 - その他の制限 -
  • サーパス旭町 804
    株式会社 高野不動産販売
  • この物件を問い合わせる/無料
  • TEL: 0258-33-7711 0258-33-7711

物件詳細情報

所在階/階数 8階/10階 号室 804号室
販売価格 18,500,000円 方位
間取り 2LDK (和室:5.9畳) (洋室:6.2、5.2)
LDK11.9
専有面積 68.74㎡ /20.79坪 バルコニー面積 15.42㎡ /4.66坪
その他面積 - 駐車場 13,000円~
管理費 14,900円 修繕積立金 17,600円
現況 空家
仲介手数料 676,500円
CATV 770円
インターネット 2,835円
警備料 692円
町内費 500円
利用制限 ペット:相談、楽器:相談
設備 角部屋、2階以上、日当り良好、最寄駅近く、洗濯機置き場、エレベーター、和室あり、駐車場空きあり、平面駐車場、南向き、管理人常駐(日中)、TV付きインターホン、エントランスオートロック、ガスコンロ設置済み、温水洗浄便座、シャワー付き洗面台、床暖房、都市ガス、公営水道、下水道、ウォークインクローゼット、シューズBOX、CATV、即入居可能、ペット相談、楽器相談
取引態様 一般
備考 -
取り扱い会社

株式会社 高野不動産販売

新潟県長岡市柏町1丁目4-33

情報登録日 2026/01/08 次回更新予定日 2026/04/05
取引条件有効期限 2026/04/08
  • サーパス旭町 804
    株式会社 高野不動産販売
  • この物件を問い合わせる/無料
  • TEL: 0258-33-7711 0258-33-7711

この物件の地図・周辺情報・行政情報

この物件の周辺情報・行政情報を詳しく見る
【周辺情報】
物件の近くにあるコンビニや銀行・学校など、アイコン付のマップで詳しく表示できます!
【行政情報】
水道料や下水道料・ガス料金など、暮らしに関係のある情報を表示しています。
セブン-イレブン 長岡旭町店(コンビニ)まで170m
ファミリーマート 長岡弓町店(コンビニ)まで310m
柏薬局(ドラッグストア)まで490m
悠久調剤薬局(ドラッグストア)まで430m
渡辺医院(病院)まで500m
内科 高野医院(病院)まで490m
長岡信用金庫 台町支店(銀行)まで450m
第四北越銀行 長岡市役所支店(銀行)まで420m
郵便ポスト(郵便局)まで620m

※カメラのアイコンがある場合は、マウスをポイントするとその施設の画像がご覧いただけます。


担当取扱い店舗情報

取扱い店舗画像
株式会社 高野不動産販売
TEL: 0258-33-7711
所在地: 新潟県長岡市柏町1丁目4-33
交通: 長岡駅
営業時間: 9:00~17:30/定休日:土曜日・日曜日・祝日・お盆・年末年始
免許番号: 新潟県知事(1)第5568号
所属団体名: (公社)新潟県宅地建物取引業協会,(公社)首都圏不動産公正取引協議会,(公財)日本賃貸住宅管理協会
取引態様: 一般
ホームページ: https://www.tknf.co.jp