新潟県長岡市旭町2-3-7チサンマンション旭町 401 中古マンション 2DK 2,000,000円の物件情報

長岡市駅から徒歩約10分の利便性のよい立地です。

物件名/所在地 詳細 価格
チサンマンション旭町
401号室
新潟県長岡市旭町2-3-7チサンマンション旭町 401
  • 専有面積
    :45.73㎡ /13.83坪
  • 間取り
    :2DK
  • 築年月
    :1980年12月
2,000,000
  • チサンマンション旭町
    髙頭不動産 株式会社
  • この物件を問い合わせる/無料
  • TEL: 0120-1818-27 0120-1818-27

物件画像

外観
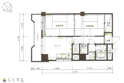
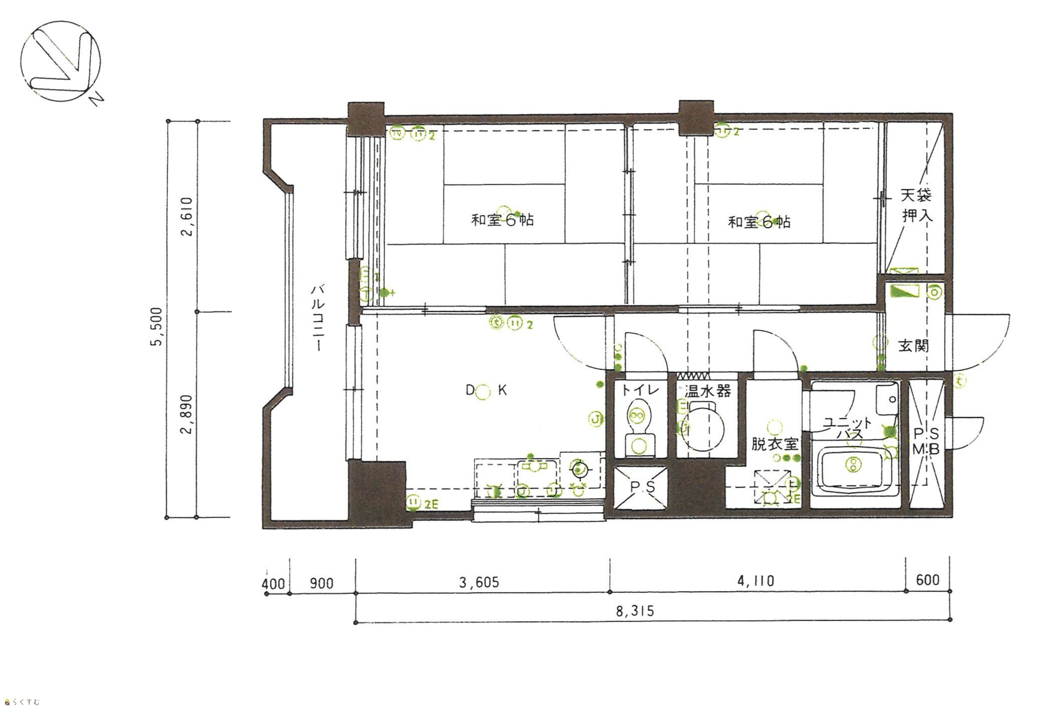
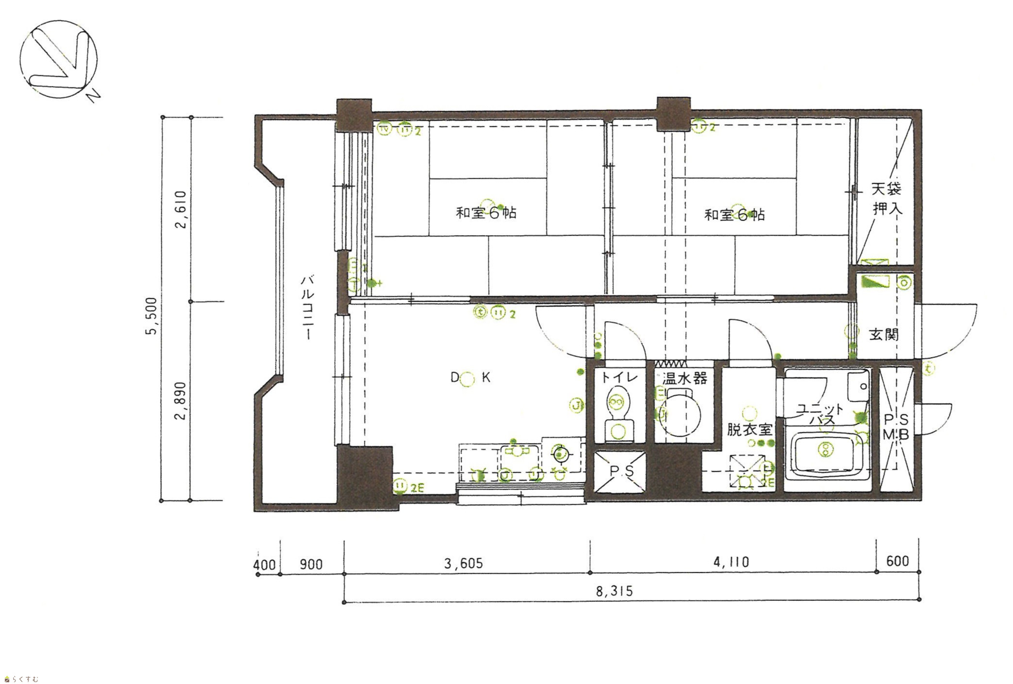
間取り
物件画像
※画像クリックで拡大表示
外観
物件画像
※画像クリックで拡大表示
間取り
詳細画像
物件画像
ホール
物件画像
DK
物件画像
和室
物件画像
トイレ
物件画像
浴室
物件画像
脱衣・洗濯機置き場
物件画像
キッチン
物件画像
和室
物件画像
リビング


物件概要

物件コード 00040-201188
物件名 チサンマンション旭町
交通 駅:信越線 長岡駅から徒歩10分
物件所在地 新潟県長岡市旭町2-3-7チサンマンション旭町 401
物件種別 中古マンション
構造 鉄筋コン 階建 地上6階建
建ぺい率/容積率 80%/400%
建物面積 計 1,819.72㎡ /550.46坪
土地面積 463.5㎡ /140.2坪
築年月 1980年12月(築45年)
入居(引き渡し)時期 随時入居(引き渡し)可
用途地域 商業地域 地目 宅地  (現状:宅地)
都市計画 市街化区域 学校区 阪之上小学校(733m)・南中学校(473m)
形状 - 道路 公道
私道 - その他の制限 -
  • チサンマンション旭町
    髙頭不動産 株式会社
  • この物件を問い合わせる/無料
  • TEL: 0120-1818-27 0120-1818-27

物件詳細情報

所在階/階数 4階/6階 号室 401号室
販売価格 2,000,000円 方位 南東
間取り 2DK (和室:6畳、6畳)
5.5
専有面積 45.73㎡ /13.83坪 バルコニー面積 5.41㎡ /1.63坪
その他面積 - 駐車場 -
管理費 9,400円 修繕積立金 11,300円
現況 空家
仲介手数料 330,000円
利用制限 ペット:不可、楽器:不可
設備 角部屋、2階以上、日当り良好、閑静な住宅街、最寄駅近く、エレベーター、和室あり、南向き、都市ガス、公営水道、下水道、即入居可能
取引態様 一般
備考 -
取り扱い会社

髙頭不動産 株式会社

新潟県長岡市千歳1-3-25

情報登録日 2026/01/07 次回更新予定日 2026/05/21
取引条件有効期限 2026/04/06
  • チサンマンション旭町
    髙頭不動産 株式会社
  • この物件を問い合わせる/無料
  • TEL: 0120-1818-27 0120-1818-27

この物件の地図・周辺情報・行政情報

この物件の周辺情報・行政情報を詳しく見る
【周辺情報】
物件の近くにあるコンビニや銀行・学校など、アイコン付のマップで詳しく表示できます!
【行政情報】
水道料や下水道料・ガス料金など、暮らしに関係のある情報を表示しています。

担当取扱い店舗情報

取扱い店舗画像
髙頭不動産 株式会社
TEL: 0120-1818-27
所在地: 新潟県長岡市千歳1-3-25
交通: 長岡駅
営業時間: 8時30分~17時30分(大手支店は9時~18時)/定休日:本社:土日祝日(事前予約での対応可能)、支店:日曜祝日第5土曜(毎年2月下旬から3月は休みなし)
免許番号: 新潟県知事(17)第191号
所属団体名: 新潟県宅地建物取引協会 長岡支部
取引態様: 一般
ホームページ: http://www.takato-f.com