新潟県長岡市前田2丁目8-16 中古一戸建て 5LDK 42,000,000円の物件情報

【更に価格改定しました!】4,500万円(R7.3.24)→4,200万円(R7.9.22)三井ホーム様施工の南西角地、5LDKの広々住宅です!前面道路が融雪道路、2台分電動シャッター付インナーガレージで冬場も安心です☆彡

物件名/所在地 詳細 価格
前田二丁目 売住宅
新潟県長岡市前田2丁目8-16
  • 土地面積
    :396.7㎡ /120坪
  • 建物面積
    :345.29㎡ /104.45坪
  • 間取り
    :5LDK
  • 築年月
    :1999年11月
42,000,000
  • 前田二丁目 売住宅
    髙頭不動産 株式会社
  • この物件を問い合わせる/無料
  • TEL: 0120-1818-27 0120-1818-27

物件画像

外観
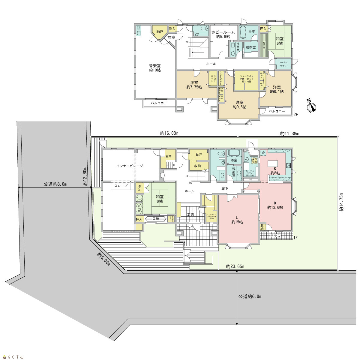
間取り
物件画像
※画像クリックで拡大表示
外観
物件画像
※画像クリックで拡大表示
間取
詳細画像
物件画像
玄関
物件画像
1階ホール
物件画像
1階浴室
物件画像
リビング
物件画像
キッチン
物件画像
和室8帖
物件画像
2階洗面室
物件画像
2階浴室
物件画像
和室6帖
物件画像
洋室8.1帖
物件画像
洋室9.5帖
物件画像
洋室7.75帖
物件画像
音楽室
物件画像
2階トイレ
物件画像
2階ホール
物件画像
ガレージ
物件画像
玄関ホール
物件画像
お庭
物件画像
1階洗面室
物件画像
地図
動画


物件概要

2階にも洗面所・浴室・トイレがあり、2世帯としてもお住まいになれます♪
物件コード 00040-201012
物件名 前田二丁目 売住宅
交通 駅:信越線 長岡駅から徒歩24分、バス:前田町から徒歩3分
物件所在地 新潟県長岡市前田2丁目8-16
物件種別 中古一戸建て
構造 木造 階建 地上2階建
建ぺい率/容積率 70%/200%
建物面積 1階 190.05㎡/ 2階 155.24㎡/ 計 345.29㎡ /104.45坪
土地面積 396.7㎡ /120坪
築年月 1999年11月(築26年)
入居(引き渡し)時期 相談
用途地域 第1種中高層住居専用地域 地目 宅地  (現状:宅地)
都市計画 市街化区域 学校区 四郎丸小学校(551m)・南中学校(1,409m)
形状 間口 23.6m × 奥行 14.7m 道路 南側 公道 幅員約6m、西側 公道 幅員約8m
私道 - その他の制限 -
  • 前田二丁目 売住宅
    髙頭不動産 株式会社
  • この物件を問い合わせる/無料
  • TEL: 0120-1818-27 0120-1818-27

物件詳細情報

所在階/階数 - 号室 -
販売価格 42,000,000円 方位
間取り 5LDK (和室:8畳、6畳) (洋室:9.5、8.1、7.75)
L15 D12.6 K8
音楽室19帖、ホビールーム5.9帖、納戸あり
専有面積 - バルコニー面積 -
その他面積 - 駐車場 -
管理費 - 修繕積立金 -
現況 空家
仲介手数料 1,452,000円
利用制限 -
設備 角地、日当り良好、閑静な住宅街、スーパー近く、フラット35S適合、修繕記録あり、瑕疵担保保険付き、LDK15帖以上、駐車2台可能、南向き、TVインターホン、複層ガラス、食器洗浄乾燥機、3口コンロ、追いだき機能付き、バス1坪以上、温水洗浄便座、トイレ2か所以上、都市ガス、上水道、下水道、ウォークインクローゼット、全居室収納あり、シューズBOX、シューズインクローゼット、2世帯向き
取引態様 一般
備考 ※第二種高度地区、建築基準法第22条区域、まちなか居住区域に該当します。
取り扱い会社

髙頭不動産 株式会社

新潟県長岡市千歳1-3-25

情報登録日 2025/10/20 次回更新予定日 2025/12/30
取引条件有効期限 2025/06/06
  • 前田二丁目 売住宅
    髙頭不動産 株式会社
  • この物件を問い合わせる/無料
  • TEL: 0120-1818-27 0120-1818-27

この物件の地図・周辺情報・行政情報

この物件の周辺情報・行政情報を詳しく見る
【周辺情報】
物件の近くにあるコンビニや銀行・学校など、アイコン付のマップで詳しく表示できます!
【行政情報】
水道料や下水道料・ガス料金など、暮らしに関係のある情報を表示しています。

担当取扱い店舗情報

取扱い店舗画像
髙頭不動産 株式会社
TEL: 0120-1818-27
所在地: 新潟県長岡市千歳1-3-25
交通: 長岡駅
営業時間: 8時30分~17時30分(大手支店は9時~18時)/定休日:本社:土日祝日(事前予約での対応可能)、支店:日曜祝日第5土曜(毎年2月下旬から3月は休みなし)
免許番号: 新潟県知事(17)第191号
所属団体名: 新潟県宅地建物取引協会 長岡支部
取引態様: 一般
ホームページ: http://www.takato-f.com