新潟県見附市田井町2657 中古一戸建て 9DK 5,000,000円の物件情報

田井町の自然の魅力満載の高床式住宅 畑をしながらスローライフを楽しんでみませんか? 湧き水も使えます!

物件名/所在地 詳細 価格
和風住宅(高床式)~自然豊かな環境です~
新潟県見附市田井町2657
  • 土地面積
    :795.77㎡ /240.72坪
  • 建物面積
    :355.77㎡ /107.62坪
  • 間取り
    :9DK
  • 築年月
    :2005年3月
5,000,000
  • 和風住宅(高床式)~自然豊かな環境です~
    ふどうさんの相談所 (ライフデザイン合同会社 イオン長岡店)
  • この物件を問い合わせる/無料
  • TEL: 0258-94-4370 0258-94-4370

物件画像

外観
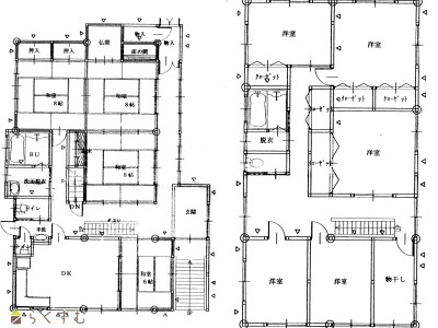
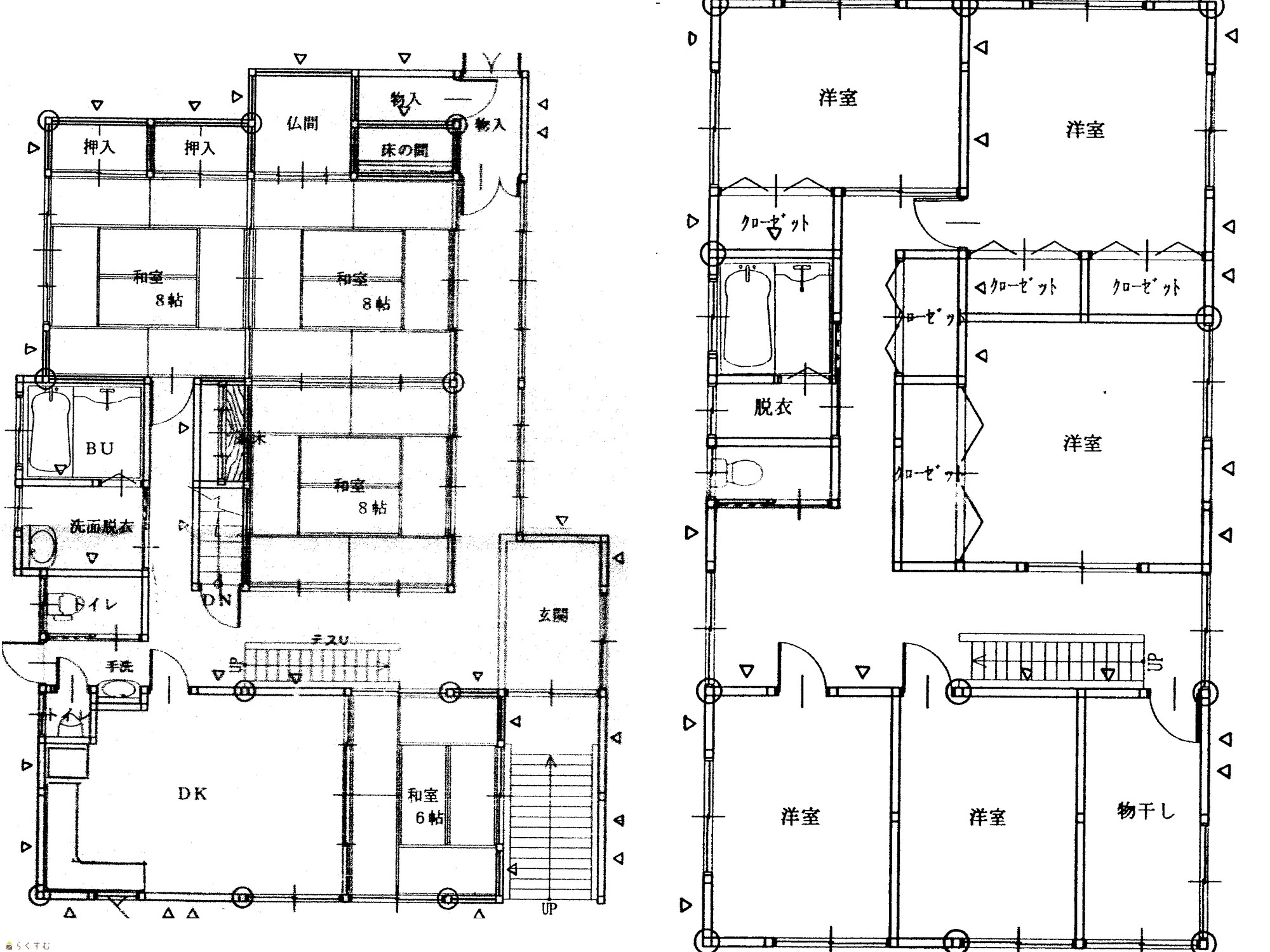
間取り
物件画像
※画像クリックで拡大表示
外観
物件画像
※画像クリックで拡大表示
間取り
詳細画像
物件画像
玄関
物件画像
ホール
物件画像
和室
物件画像
和室
物件画像
キッチン
物件画像
バスルーム
物件画像
トイレ
物件画像
洋室
物件画像
洋室
物件画像
物件画像
物件画像
高床部分
物件画像
物件画像
物件画像
湧き水
物件画像
印刷用地図


物件概要

田井町の自然の魅力満載の高床式住宅 畑をしながらスローライフを楽しんでみませんか? 湧き水も使えます!
物件コード 00039-200288
物件名 和風住宅(高床式)~自然豊かな環境です~
交通 駅:信越線 押切駅から徒歩70分、バス:田井から徒歩6分
物件所在地 新潟県見附市田井町2657
物件種別 中古一戸建て
構造 木造 階建 地上3階建
建ぺい率/容積率 70%/200%
建物面積 1階 131.51㎡/ 2階 124.89㎡/ 3階 99.37㎡/ 計 355.77㎡ /107.62坪
土地面積 795.77㎡ /240.72坪
築年月 2005年3月(築20年)
入居(引き渡し)時期 相談
用途地域 無指定 地目 宅地
都市計画 市街化調整区域 学校区 田井小学校(574m)・南中学校(1,518m)
形状 - 道路 見附市道(2項道路)
私道 - その他の制限 敷地の一部が土砂災害警戒区域、土砂災害特別警戒区域に存します。
  • 和風住宅(高床式)~自然豊かな環境です~
    ふどうさんの相談所 (ライフデザイン合同会社 イオン長岡店)
  • この物件を問い合わせる/無料
  • TEL: 0258-94-4370 0258-94-4370

物件詳細情報

所在階/階数 - 号室 -
販売価格 5,000,000円 方位
間取り 9DK (和室:8畳、8畳、6畳) (洋室:8、8、8、6、6、6)
DK12
専有面積 - バルコニー面積 -
その他面積 - 駐車場 -
管理費 - 修繕積立金 -
現況 居住中
仲介手数料 330,000円
利用制限 -
設備 閑静な住宅街、駐車3台以上可能、TVインターホン、複層ガラス、システムキッチン、3口コンロ、追いだき機能付き、バス1坪以上、温水洗浄便座、トイレ2か所以上、シャワー付き洗面台、エアコンあり、都市ガス、上水道、下水道、2世帯向き、田舎暮らし
取引態様 一般
備考 居住中のため内覧希望の場合はご希望の日時をお伝えください!
取り扱い会社

ふどうさんの相談所 (ライフデザイン合同会社 イオン長岡店)

新潟県長岡市古正寺1-249-1イオン長岡店3F

情報登録日 2025/10/06 次回更新予定日 2025/11/10
取引条件有効期限 2025/12/30
  • 和風住宅(高床式)~自然豊かな環境です~
    ふどうさんの相談所 (ライフデザイン合同会社 イオン長岡店)
  • この物件を問い合わせる/無料
  • TEL: 0258-94-4370 0258-94-4370

この物件の地図・周辺情報・行政情報

この物件の周辺情報・行政情報を詳しく見る
【周辺情報】
物件の近くにあるコンビニや銀行・学校など、アイコン付のマップで詳しく表示できます!
【行政情報】
水道料や下水道料・ガス料金など、暮らしに関係のある情報を表示しています。

担当取扱い店舗情報

取扱い店舗画像
ふどうさんの相談所 (ライフデザイン合同会社 イオン長岡店)
TEL: 0258-94-4370
所在地: 新潟県長岡市古正寺1-249-1イオン長岡店3F
交通: 長岡駅
営業時間: 10:00~20:00/定休日:年末年始・特別日はお休みいたします
免許番号: 新潟県知事(3)第5090号
所属団体名: 全日本不動産協会 新潟県本部
取引態様: 一般
ホームページ: http://life-dn.com