田井町の自然の魅力満載の高床式住宅 畑をしながらスローライフを楽しんでみませんか? 湧き水も使えます!
| 物件名/所在地 | 詳細 | 価格 |
|---|---|---|
| 和風住宅(高床式)~自然豊かな環境です~
新潟県見附市田井町2657 |
|
5,000,000円 |
| 田井町の自然の魅力満載の高床式住宅 畑をしながらスローライフを楽しんでみませんか? 湧き水も使えます! | |||
| 物件コード | 00039-200288 | ||
|---|---|---|---|
| 物件名 | 和風住宅(高床式)~自然豊かな環境です~ | ||
| 交通 | 駅:信越線 押切駅から徒歩70分、バス:田井から徒歩6分 | ||
| 物件所在地 | 新潟県見附市田井町2657 | ||
| 物件種別 | 中古一戸建て | ||
| 構造 | 木造 | 階建 | 地上3階建 |
| 建ぺい率/容積率 | 70%/200% | ||
| 建物面積 | 1階 131.51㎡/ 2階 124.89㎡/ 3階 99.37㎡/ 計 355.77㎡ /107.62坪 | ||
| 土地面積 | 795.77㎡ /240.72坪 | ||
| 築年月 | 2005年3月(築20年) | ||
| 入居(引き渡し)時期 | 相談 | ||
| 用途地域 | 無指定 | 地目 | 宅地 |
| 都市計画 | 市街化調整区域 | 学校区 | 田井小学校(574m)・南中学校(1,518m) |
| 形状 | - | 道路 | 見附市道(2項道路) |
| 私道 | - | その他の制限 | 敷地の一部が土砂災害警戒区域、土砂災害特別警戒区域に存します。 |
| 所在階/階数 | - | 号室 | - |
|---|---|---|---|
| 販売価格 | 5,000,000円 | 方位 | 南 |
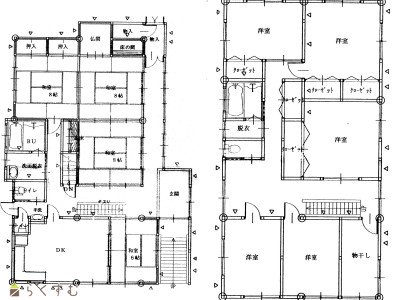
| 間取り |
9DK (和室:8畳、8畳、6畳) (洋室:8、8、8、6、6、6) DK12 |
||
| 専有面積 | - | バルコニー面積 | - |
| その他面積 | - | 駐車場 | - |
| 管理費 | - | 修繕積立金 | - |
| 現況 | 居住中 | ||
| 仲介手数料 | 330,000円 | ||
| 利用制限 | - | ||
| 設備 | 閑静な住宅街、駐車3台以上可能、TVインターホン、複層ガラス、システムキッチン、3口コンロ、追いだき機能付き、バス1坪以上、温水洗浄便座、トイレ2か所以上、シャワー付き洗面台、エアコンあり、都市ガス、上水道、下水道、2世帯向き、田舎暮らし | ||
| 取引態様 | 一般 | ||
| 備考 | 居住中のため内覧希望の場合はご希望の日時をお伝えください! | ||
| 取り扱い会社 |
ふどうさんの相談所 (ライフデザイン合同会社 イオン長岡店) 新潟県長岡市古正寺1-249-1イオン長岡店3F |
||
| 情報登録日 | 2025/10/06 | 次回更新予定日 | 2025/11/10 |
| 取引条件有効期限 | 2025/12/30 | ||
| TEL: | 0258-94-4370 | |
|---|---|---|
| 所在地: | 新潟県長岡市古正寺1-249-1イオン長岡店3F | |
| 交通: | 長岡駅 | |
| 営業時間: | 10:00~20:00/定休日:年末年始・特別日はお休みいたします | |
| 免許番号: | 新潟県知事(3)第5090号 | |
| 所属団体名: | 全日本不動産協会 新潟県本部 | |
| 取引態様: | 一般 | |
| ホームページ: | http://life-dn.com | |