新潟県長岡市末広2丁目2番20号 中古一戸建て 3LDK 21,800,000円の物件情報

末広公園の前、築1年の住宅

物件名/所在地 詳細 価格
末広2丁目 築浅住宅   【価格を変更しました。】
新潟県長岡市末広2丁目2番20号
  • 土地面積
    :168㎡ /50.82坪
  • 建物面積
    :106.82㎡ /32.31坪
  • 間取り
    :3LDK
  • 築年月
    :2024年2月
21,800,000
  • 末広2丁目 築浅住宅   【価格を変更しました。】
    ふどうさんの相談所 (ライフデザイン合同会社 イオン長岡店)
  • この物件を問い合わせる/無料
  • TEL: 0258-94-4370 0258-94-4370

物件画像

外観
間取り
物件画像
※画像クリックで拡大表示
外観
物件画像
※画像クリックで拡大表示
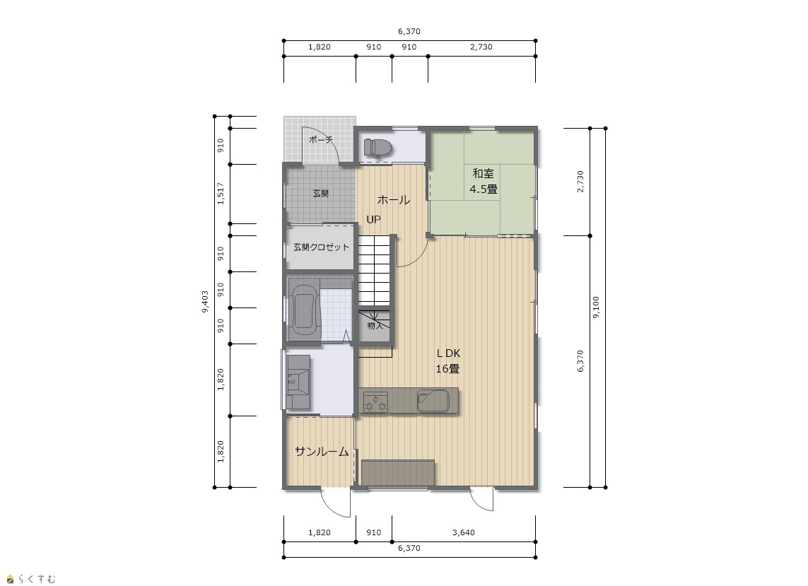
1F PLAN
詳細画像
物件画像
2F PLAN
物件画像
LDK
物件画像
対面キッチン
物件画像
ダイニング
物件画像
洗面室
物件画像
サンルーム
物件画像
浴室
物件画像
トイレ
物件画像
玄関クロゼット
物件画像
2F 書斎
物件画像
洋室
物件画像
ウォークインクロゼット
物件画像
洋室
物件画像
ウォークインクロゼット
物件画像
外観2
物件画像
地図画像


物件概要

物件コード 00039-200272
物件名 末広2丁目 築浅住宅   【価格を変更しました。】
交通 駅:上越新幹線 長岡駅から徒歩27分、バス:錦3丁目から徒歩2分
物件所在地 新潟県長岡市末広2丁目2番20号
物件種別 中古一戸建て
構造 木造 階建 -
建ぺい率/容積率 50%/100%
建物面積 1階 56.31㎡/ 2階 50.51㎡/ 計 106.82㎡ /32.31坪
土地面積 168㎡ /50.82坪
築年月 2024年2月(築1年)
入居(引き渡し)時期 相談
用途地域 第1種低層住居専用地域 地目 宅地
都市計画 市街化区域 学校区 豊田小学校(440m)・旭岡中学校(533m)
形状 間口 8.1m × 奥行 20.8m 道路 長岡市道
私道 - その他の制限 -
  • 末広2丁目 築浅住宅   【価格を変更しました。】
    ふどうさんの相談所 (ライフデザイン合同会社 イオン長岡店)
  • この物件を問い合わせる/無料
  • TEL: 0258-94-4370 0258-94-4370

物件詳細情報

所在階/階数 - 号室 -
販売価格 21,800,000円 方位
間取り 3LDK (和室:4.5畳) (洋室:7.5、6、3)
LDK16
専有面積 - バルコニー面積 -
その他面積 - 駐車場 -
管理費 - 修繕積立金 -
現況 空家
仲介手数料 785,400円
利用制限 -
設備 日当り良好、閑静な住宅街、新築時図面あり、建物確認・完了検査済証あり、LDK15帖以上、築10年以内、駐車2台可能、駐車3台以上可能、TVインターホン、複層ガラス、デインプルキー、システムキッチン、カウンターキッチン、IHクッキングヒーター、バス1坪以上、温水洗浄便座、トイレ2か所以上、エアコンあり、上水道、下水道、ウォークインクローゼット、シューズインクローゼット
取引態様 専任
備考 内見の前にお伝えするべき事項(①ご近所トラブルがあります。②告知事項があります。)ので、あらかじめお電話でお問い合わせください。
取り扱い会社

ふどうさんの相談所 (ライフデザイン合同会社 イオン長岡店)

新潟県長岡市古正寺1-249-1イオン長岡店3F

情報登録日 2025/09/04 次回更新予定日 2025/11/10
取引条件有効期限 2025/10/31
  • 末広2丁目 築浅住宅   【価格を変更しました。】
    ふどうさんの相談所 (ライフデザイン合同会社 イオン長岡店)
  • この物件を問い合わせる/無料
  • TEL: 0258-94-4370 0258-94-4370

この物件の地図・周辺情報・行政情報

この物件の周辺情報・行政情報を詳しく見る
【周辺情報】
物件の近くにあるコンビニや銀行・学校など、アイコン付のマップで詳しく表示できます!
【行政情報】
水道料や下水道料・ガス料金など、暮らしに関係のある情報を表示しています。

担当取扱い店舗情報

取扱い店舗画像
ふどうさんの相談所 (ライフデザイン合同会社 イオン長岡店)
TEL: 0258-94-4370
所在地: 新潟県長岡市古正寺1-249-1イオン長岡店3F
交通: 長岡駅
営業時間: 10:00~20:00/定休日:年末年始・特別日はお休みいたします
免許番号: 新潟県知事(3)第5090号
所属団体名: 全日本不動産協会 新潟県本部
取引態様: 専任
ホームページ: http://life-dn.com