新潟県長岡市曙2丁目4番20 投資物件・その他 128,000,000円の物件情報

物件名/所在地 詳細 価格
表面利回り
曙2丁目 1棟売マンション 土地246坪
新潟県長岡市曙2丁目4番20
  • 土地面積
    :813.41㎡ /246.05坪
  • 建ぺい率
    :60%
  • 容積率
    :200%
128,000,000
-
  • 曙2丁目 1棟売マンション 土地246坪
    株式会社 金井不動産
  • この物件を問い合わせる/無料
  • TEL: 0120-35-3901 0120-35-3901

物件画像

外観
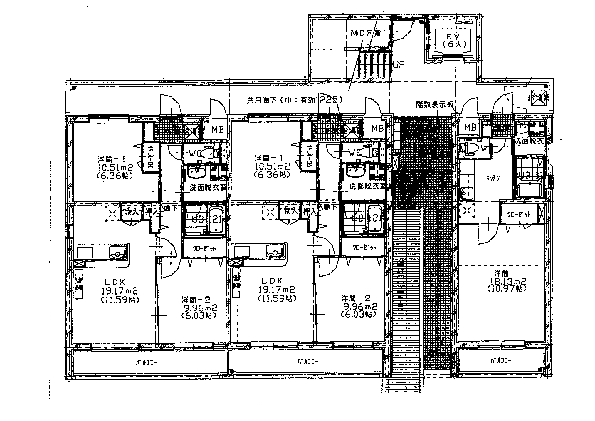
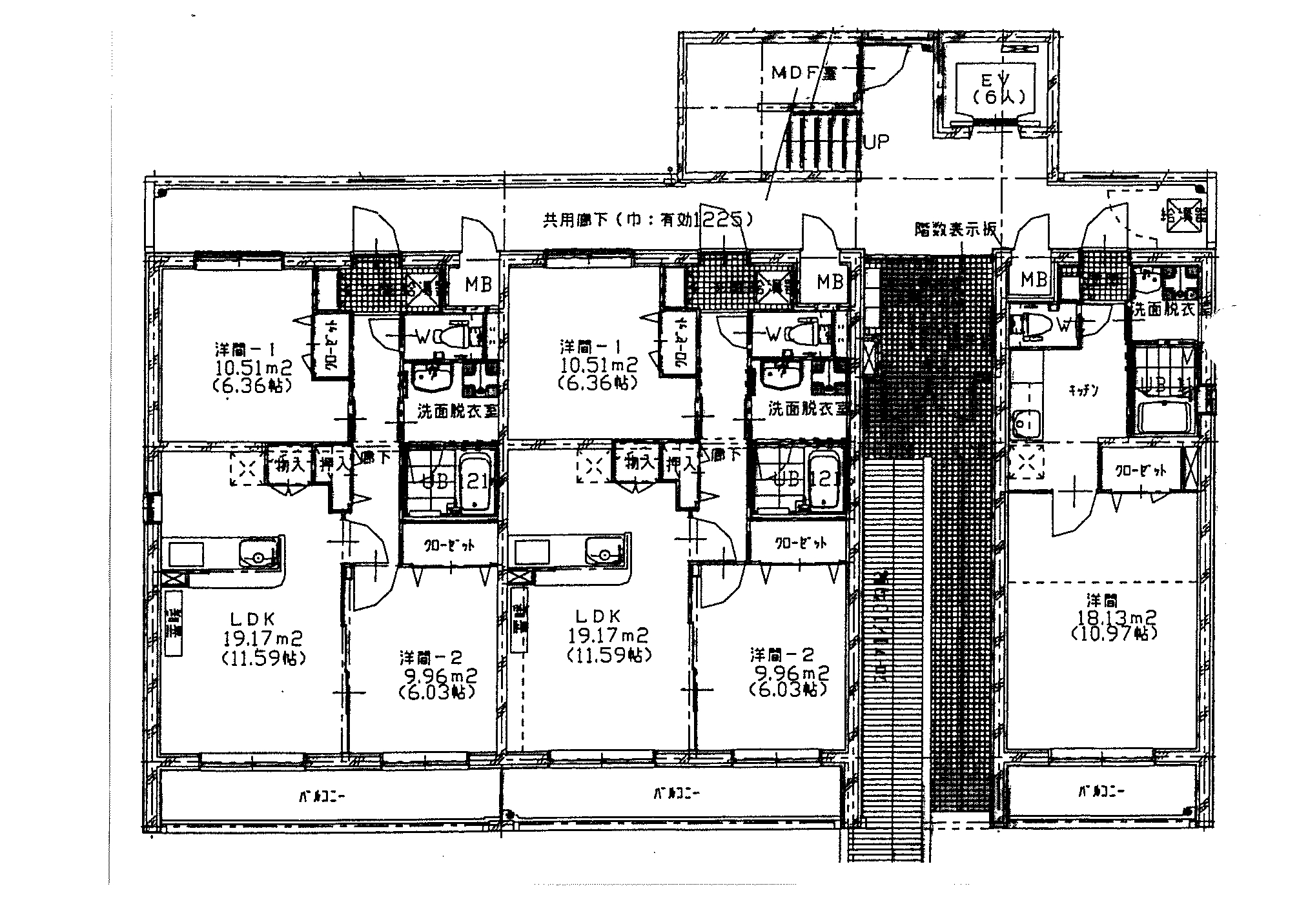
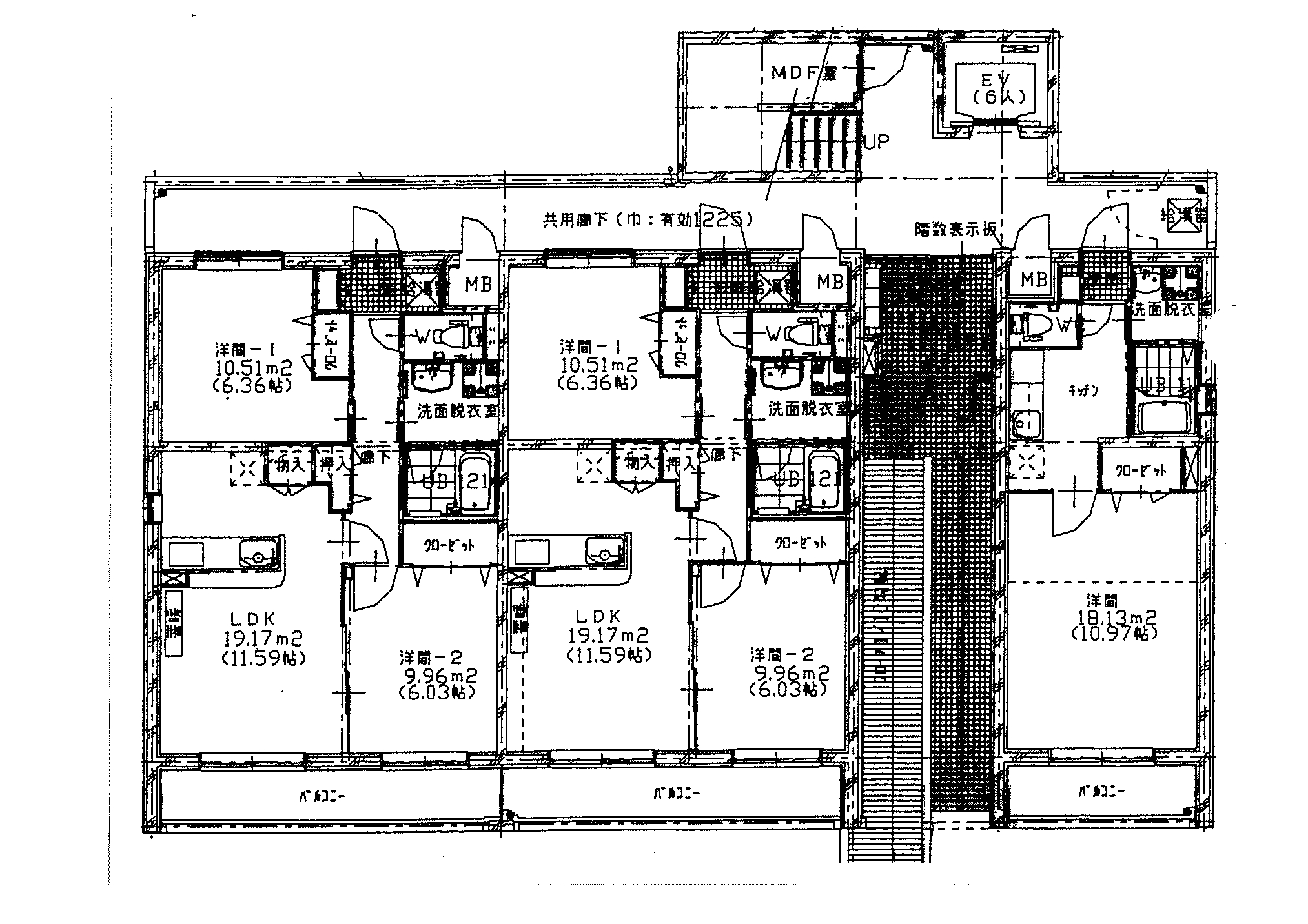
間取り
物件画像
※画像クリックで拡大表示
外観
物件画像
※画像クリックで拡大表示
図面
詳細画像
物件画像
キッチン
物件画像
キッチン
物件画像
トイレ
物件画像
洗面
物件画像
バスルーム
物件画像
ダイニング
物件画像
洋室
物件画像
IHクッキングヒーター
物件画像
流し
物件画像
収納
物件画像
洋室
物件画像
収納
物件画像
設備
物件画像
バルコニー
物件画像
廊下
物件画像
エコキュート
物件画像
エレベーター


物件概要

物件コード 00014-200203
物件名 曙2丁目 1棟売マンション 土地246坪
交通 バス:曙2丁目から徒歩1分
物件所在地 新潟県長岡市曙2丁目4番20
物件種別 投資物件・その他
物件区分 その他
構造 鉄筋コン 階建 地上3階建
建ぺい率/容積率 60%/200%
建物面積 1階 159.26㎡/ 2階 177.46㎡/ 3階 177.46㎡/ 計 514.18㎡ /155.53坪
土地面積 813.41㎡ /246.05坪
築年月 2008年3月(築18年)
入居(引き渡し)時期 相談
用途地域 第2種住居地域 地目 宅地  (現状:宅地)
都市計画 市街化区域 学校区 豊田小学校(645m)・旭岡中学校(702m)
形状 間口 20m × 奥行 38m 道路 東側市道幅員18m
私道 - その他の制限 第3種高度地区
  • 曙2丁目 1棟売マンション 土地246坪
    株式会社 金井不動産
  • この物件を問い合わせる/無料
  • TEL: 0120-35-3901 0120-35-3901

物件詳細情報

所在階/階数 - 号室 -
販売価格 128,000,000円 方位 -
表面利回り(満室想定時) - 満室想定年収 - (想定月収: - )
現行利回り - 現行年間年収 -
住戸数 -
間取り -
専有面積 - バルコニー面積 -
その他面積 - 駐車場 付無料
管理費 - 修繕積立金 -
現況 賃貸中
仲介手数料 4,290,000円
利用制限 -
設備 エレベーター、駐車場(近隣含む)
取引態様 一般
備考 現在空室  戸
取り扱い会社

株式会社 金井不動産

新潟県長岡市要町3-1-26

情報登録日 2023/11/18 次回更新予定日 2026/05/21
取引条件有効期限 2024/03/31
  • 曙2丁目 1棟売マンション 土地246坪
    株式会社 金井不動産
  • この物件を問い合わせる/無料
  • TEL: 0120-35-3901 0120-35-3901

この物件の地図・周辺情報・行政情報

この物件の周辺情報・行政情報を詳しく見る
【周辺情報】
物件の近くにあるコンビニや銀行・学校など、アイコン付のマップで詳しく表示できます!
【行政情報】
水道料や下水道料・ガス料金など、暮らしに関係のある情報を表示しています。

担当取扱い店舗情報

取扱い店舗画像
株式会社 金井不動産
TEL: 0120-35-3901
所在地: 新潟県長岡市要町3-1-26
交通: 長岡駅大手口①バス乗場より乗車~溝橋下車徒歩約4分
営業時間: 9:30~18:00/定休日:日曜・祝祭日
免許番号: 新潟県知事(16)第495号
所属団体名: 新潟県宅地建物取引業協会 長岡支部
取引態様: 一般
ホームページ: http://www.3901.com