
北園橋通り!第四北越銀行長岡北支店前!













| 物件名/所在地 | 詳細 | 価格 | 
|---|---|---|
| 北園町218番地.226番地 新潟県長岡市北園町218番地.226番地 | 
 | 32,300,000円 | 
 
							
						| 北園橋通り!第四北越銀行長岡北支店前! | |||
| 物件コード | 00012-200097 | ||
|---|---|---|---|
| 物件名 | 北園町218番地.226番地 | ||
| 交通 | 駅:信越線 北長岡駅から徒歩28分、バス:宝1丁目から徒歩2分 | ||
| 物件所在地 | 新潟県長岡市北園町218番地.226番地 | ||
| 物件種別 | 売土地・分譲地 | ||
| 物件区分 | 売土地 | ||
| 構造 | - | 階建 | - | 
| 建ぺい率/容積率 | 60%/200% | ||
| 建物面積 | - | ||
| 土地面積 | 925.61㎡ /279.99坪 | ||
| 築年月 | - | ||
| 入居(引き渡し)時期 | 随時入居(引き渡し)可 | ||
| 用途地域 | 準工業地域 | 地目 | 宅地 (現状:建付地) | 
| 都市計画 | 市街化区域 | 学校区 | 新町小学校(1,773m)・北中学校(649m) | 
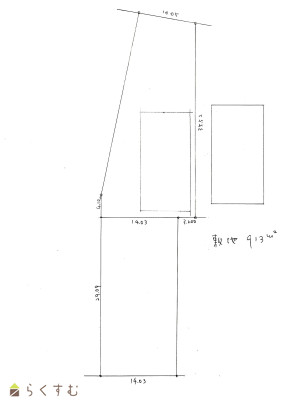
| 形状 | 間口 14.03m × 奥行 64.61m | 道路 | 東幹線69号線 幅員16m | 
| 私道 | - | その他の制限 | - | 
 
							
						| 所在階/階数 | - | 号室 | - | 
|---|---|---|---|
| 販売価格 | 32,300,000円 | 方位 | - | 
| 間取り | - | ||
| 専有面積 | - | バルコニー面積 | - | 
| その他面積 | - | 駐車場 | - | 
| 管理費 | - | 修繕積立金 | - | 
| 現況 | - | ||
| 仲介手数料 | 1,131,900円 | ||
| 利用制限 | - | ||
| 設備 | 前道6m以上、所有権、電気、都市ガス(宅地内)、上水道(宅地内)、下水道(宅地内)、事業用向け | ||
| 取引態様 | 一般 | ||
| 備考 | 解体相談。 | ||
| 取り扱い会社 | 株式会社 新日本地所 新潟県長岡市殿町1-3-3 | ||
| 情報登録日 | 2024/11/27 | 次回更新予定日 | 2025/11/14 | 
| 取引条件有効期限 | 2024/11/30 | ||
 
							
						 
						| TEL: | 0258-33-8166 | |
|---|---|---|
| 所在地: | 新潟県長岡市殿町1-3-3 | |
| 交通: | 長岡駅より350m | |
| 営業時間: | 9:00~17:00/定休日:土曜・日曜・祭日 但し3月は土曜営業 | |
| 免許番号: | 新潟県知事(14)第1068号 | |
| 所属団体名: | 新潟県宅地建物取引業協会 長岡支部 | |
| 取引態様: | 一般 | |