長岡市与板町城山1-5-4 中古一戸建て 6DK 15,000,000円の物件情報

城山公園目の前で日当たり良好です。

物件名/所在地 詳細 価格
売住宅『与板町城山1』 他に家庭用菜園土地42坪付き
長岡市与板町城山1-5-4
  • 土地面積
    :425.07㎡ /128.58坪
  • 建物面積
    :146.15㎡ /44.21坪
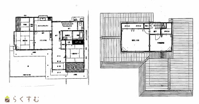
  • 間取り
    :6DK
  • 築年月
    :1998年3月
15,000,000
  • 売住宅『与板町城山1』 他に家庭用菜園土地42坪付き
    ㈱スタッフサイトウ不動産部
  • この物件を問い合わせる/無料
  • TEL: 0258-24-0623 0258-24-0623

物件画像

外観
間取り
物件画像
※画像クリックで拡大表示
外観
物件画像
※画像クリックで拡大表示
間取り
詳細画像
物件画像
倉庫
物件画像
リビング
物件画像
和室
物件画像
バスルーム
物件画像
トイレ
物件画像
キッチン
物件画像
子供部屋
物件画像
駐車場
物件画像
外観
物件画像
周辺
物件画像
別途家庭菜園用地付き
物件画像
別途家庭菜園用地付き
物件画像
印刷用地図


物件概要

物件コード 00011-200340
物件名 売住宅『与板町城山1』 他に家庭用菜園土地42坪付き
交通 バス:城山団地から徒歩3分
物件所在地 長岡市与板町城山1-5-4
物件種別 中古一戸建て
構造 木造 階建 地上2階建
建ぺい率/容積率 60%/200%
建物面積 計 146.15㎡ /44.21坪
土地面積 425.07㎡ /128.58坪
築年月 1998年3月(築28年)
入居(引き渡し)時期 相談
用途地域 第1種住居地域 地目 宅地  (現状:宅地)
都市計画 市街化区域 学校区 与板小学校(1,411m)・与板中学校(1,366m)
形状 間口 17m × 奥行 25m 道路 与板178号線/与板179号線
私道 - その他の制限 -
  • 売住宅『与板町城山1』 他に家庭用菜園土地42坪付き
    ㈱スタッフサイトウ不動産部
  • この物件を問い合わせる/無料
  • TEL: 0258-24-0623 0258-24-0623

物件詳細情報

所在階/階数 - 号室 -
販売価格 15,000,000円 方位 -
間取り 6DK (和室:3畳、8畳、8畳) (洋室:8、10、6)
専有面積 - バルコニー面積 -
その他面積 - 駐車場 -
管理費 - 修繕積立金 -
現況 空家
仲介手数料 561,000円
利用制限 -
設備 角地、日当り良好、閑静な住宅街、駐車2台可能、駐車3台以上可能、南向き、追いだき機能付き、エアコンあり、都市ガス、上水道、下水道、田舎暮らし
取引態様 一般
備考 -
取り扱い会社

㈱スタッフサイトウ不動産部

新潟県長岡市蔵王2丁目4番17号

情報登録日 2026/04/17 次回更新予定日 2026/05/21
取引条件有効期限 2026/08/31
  • 売住宅『与板町城山1』 他に家庭用菜園土地42坪付き
    ㈱スタッフサイトウ不動産部
  • この物件を問い合わせる/無料
  • TEL: 0258-24-0623 0258-24-0623

この物件の地図・周辺情報・行政情報

この物件の周辺情報・行政情報を詳しく見る
【周辺情報】
物件の近くにあるコンビニや銀行・学校など、アイコン付のマップで詳しく表示できます!
【行政情報】
水道料や下水道料・ガス料金など、暮らしに関係のある情報を表示しています。
大光銀行 与板支店(銀行)まで740m

※カメラのアイコンがある場合は、マウスをポイントするとその施設の画像がご覧いただけます。


担当取扱い店舗情報

取扱い店舗画像
㈱スタッフサイトウ不動産部
TEL: 0258-24-0623
所在地: 新潟県長岡市蔵王2丁目4番17号
交通: JR北長岡駅
営業時間: 8:30~17:30/定休日:第2・4土曜・日曜・祭日
免許番号: 新潟県知事(2)第5364号
所属団体名: 新潟県宅地建物取引業協会 長岡支部
取引態様: 一般
ホームページ: http://hokuetsu-fudousan.com