新潟県三条市興野3丁目158番2 新築一戸建て 3LDK 22,900,000円の物件情報

小中学校や保育園至近、商業施設が徒歩圏内多数! 東三条駅まで徒歩7分♪通勤通学も便利! スムーズな家事動線で時短を実現♪

物件名/所在地 詳細 価格
三条市興野3丁目 建売住宅
新潟県三条市興野3丁目158番2
  • 土地面積
    :202.48㎡ /61.25坪
  • 建物面積
    :92.53㎡ /27.99坪
  • 間取り
    :3LDK
  • 築年月
    :2025年7月
22,900,000
  • 三条市興野3丁目 建売住宅
    有限会社 一代工務店
  • この物件を問い合わせる/無料
  • TEL: 0258-34-2221 0258-34-2221

物件画像

外観
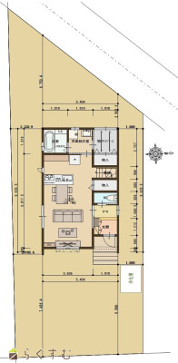
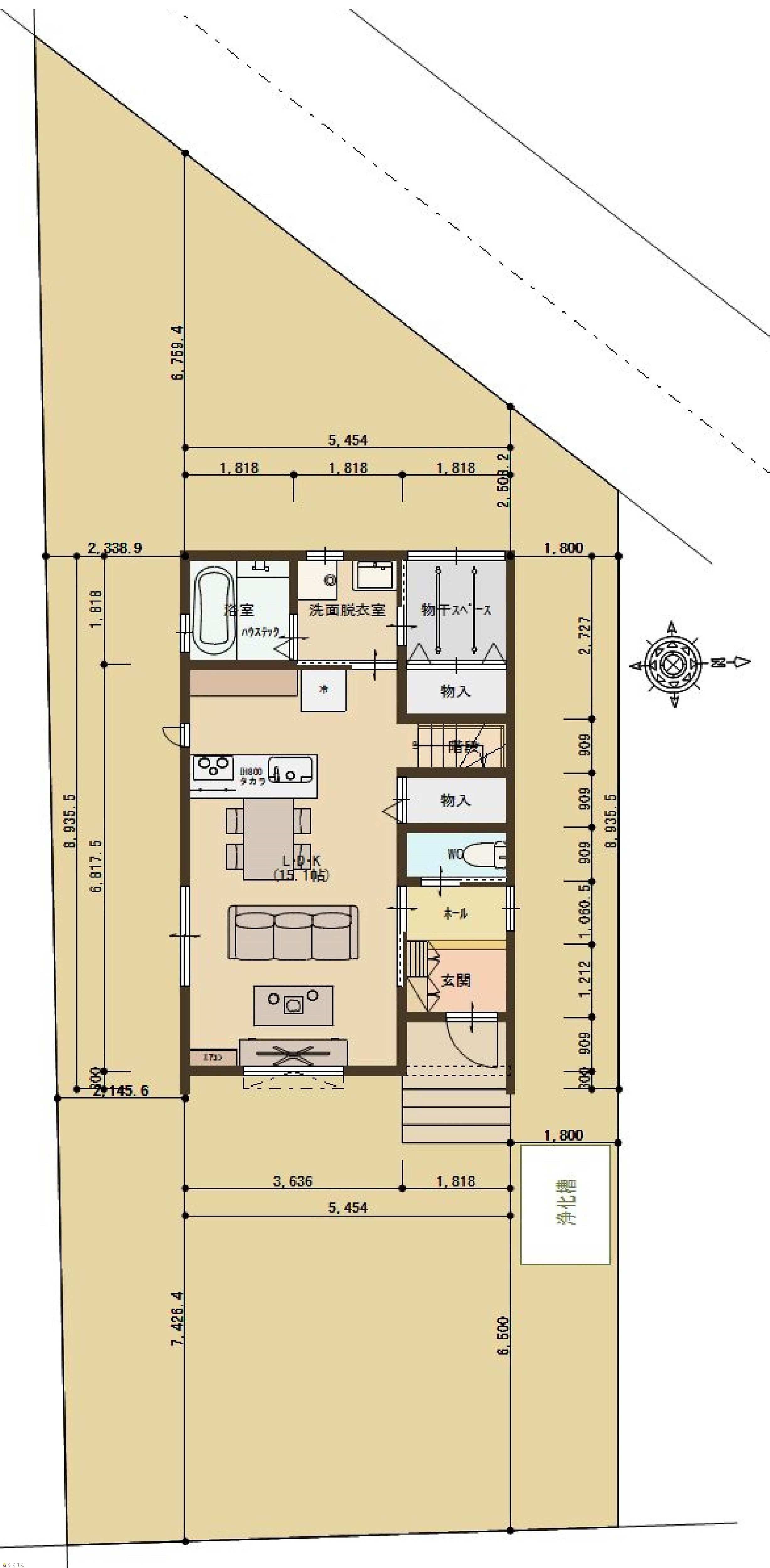
間取り
物件画像
※画像クリックで拡大表示
外観
物件画像
※画像クリックで拡大表示
地型付間取り図
詳細画像
物件画像
1階
物件画像
2階
物件画像
外観
物件画像
LDK15.1帖
物件画像
LDK15.1帖
物件画像
キッチン
物件画像
玄関ポーチ
物件画像
洗面脱衣室
物件画像
物干スペース
物件画像
ユニットバス
物件画像
1階トイレ 1階2階にトイレ完備♪
物件画像
2階洋室8帖
物件画像
2階洋室8帖のウォークインクローゼット
物件画像
TVモニター付インターホン
物件画像
キッチン水栓
物件画像
給湯器リモコン
物件画像
階段
物件画像
前面道路
物件画像
BELS/建築物省エネ基準適合認定書あり
物件画像
地図画像


物件概要

小中学校や保育園が近くにあり、商業施設が徒歩圏内に多数あります! 東三条駅まで徒歩7分♪通勤通学も便利! キッチン→洗面脱衣室→物干しスペースが隣に続き、スムーズな家事動線で時短を実現♪料理をしながらでもご家族やお客様との対話を楽しめる対面キッチン! 2階洋室にウォークインクローゼット完備で収納スペースも充実。 1階・2階にトイレ完備!
物件コード 00007-200706
物件名 三条市興野3丁目 建売住宅
交通 駅:信越線 東三条駅から徒歩13分、バス:興野3丁目から徒歩1分
物件所在地 新潟県三条市興野3丁目158番2
物件種別 新築一戸建て
構造 木造 階建 地上2階建
建ぺい率/容積率 70%/200%
建物面積 計 92.53㎡ /27.99坪
土地面積 202.48㎡ /61.25坪
築年月 2025年7月(築5ヶ月)
入居(引き渡し)時期 随時入居(引き渡し)可
用途地域 第1種住居地域 地目 宅地
都市計画 非線引き都市計画区域 学校区 一ノ木戸小学校(778m)・第二中学校(778m)
形状 - 道路 東側:市道4.8m~4.9m
私道 - その他の制限 -
  • 三条市興野3丁目 建売住宅
    有限会社 一代工務店
  • この物件を問い合わせる/無料
  • TEL: 0258-34-2221 0258-34-2221

物件詳細情報

所在階/階数 - 号室 -
販売価格 22,900,000円 方位
間取り 3LDK (洋室:8、6.7、6.7)
LDK15.1
物干しスペースあり
専有面積 - バルコニー面積 -
その他面積 - 駐車場 -
管理費 - 修繕積立金 -
現況 指定なし
仲介手数料 なし
利用制限 -
設備 角地、日当り良好、スーパー近く、BELS/省エネ基準適合認定建物、フラット35S適合、LDK15畳以上、全室フローリング、駐車場2台以上、南向き、TVインターホン、複層ガラス、ディンプルキー、システムキッチン、IHクッキングヒーター、3口コンロ、追いだき機能付き、バス1坪以上、温水洗浄便座、シャワー付き洗面台、エアコン、24時間換気システム、省エネ給湯、高気密高断熱住宅、都市ガス、上水道、浄化槽、電気、ウォークインクローゼット、全居室収納あり、床下収納、シューズBOX、照明器具付き、即引き渡し可能
取引態様 売主
備考 ※物件掲載内容と現況に相違がある場合は現況を優先と致します。
詳細はお気軽にお問い合わせください。
担当:須加
携帯:090-2644-9734
取り扱い会社

有限会社 一代工務店

新潟県長岡市信濃2-5-36

情報登録日 2025/12/21 次回更新予定日 2026/01/05
取引条件有効期限 2026/02/01
  • 三条市興野3丁目 建売住宅
    有限会社 一代工務店
  • この物件を問い合わせる/無料
  • TEL: 0258-34-2221 0258-34-2221

この物件の地図・周辺情報・行政情報

この物件の周辺情報・行政情報を詳しく見る
【周辺情報】
物件の近くにあるコンビニや銀行・学校など、アイコン付のマップで詳しく表示できます!
【行政情報】
水道料や下水道料・ガス料金など、暮らしに関係のある情報を表示しています。
ファミリーマート 三条塚野目店(コンビニ)まで600m
スーパーマルセン 興野店(スーパー)まで320m
ウオロク 興野店(スーパー)まで830m
クスリのアオキ 興野店(ドラッグストア)まで200m
東三条郵便局(郵便局)まで510m

※カメラのアイコンがある場合は、マウスをポイントするとその施設の画像がご覧いただけます。


担当取扱い店舗情報

取扱い店舗画像
有限会社 一代工務店
TEL: 0258-34-2221
所在地: 新潟県長岡市信濃2-5-36
交通: 長岡駅
営業時間: 9:00~18:00/定休日:
免許番号: 新潟県知事(12)2196号
所属団体名: 新潟県宅地建物取引業協会 長岡支部
取引態様: 売主
ホームページ: http://www.ichidai-k.co.jp/