新潟県長岡市豊2丁目1940番11 新築一戸建て 3LDK 24,800,000円の物件情報

【11/29価格改定】2560万円⇒2480万円◆川崎東小学校・東北中学校エリアの建売住宅。 原信・コメリ様の他、飲食店など至近♪ 川崎ICにも近く、アクセス性良好!

物件名/所在地 詳細 価格
長岡市豊2丁目 建売住宅 1号棟
新潟県長岡市豊2丁目1940番11
  • 土地面積
    :125.99㎡ /38.11坪
  • 建物面積
    :90.88㎡ /27.49坪
  • 間取り
    :3LDK
  • 築年月
    :2025年5月
24,800,000
  • 長岡市豊2丁目 建売住宅 1号棟
    有限会社 一代工務店
  • この物件を問い合わせる/無料
  • TEL: 0258-34-2221 0258-34-2221

物件画像

外観
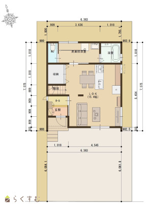
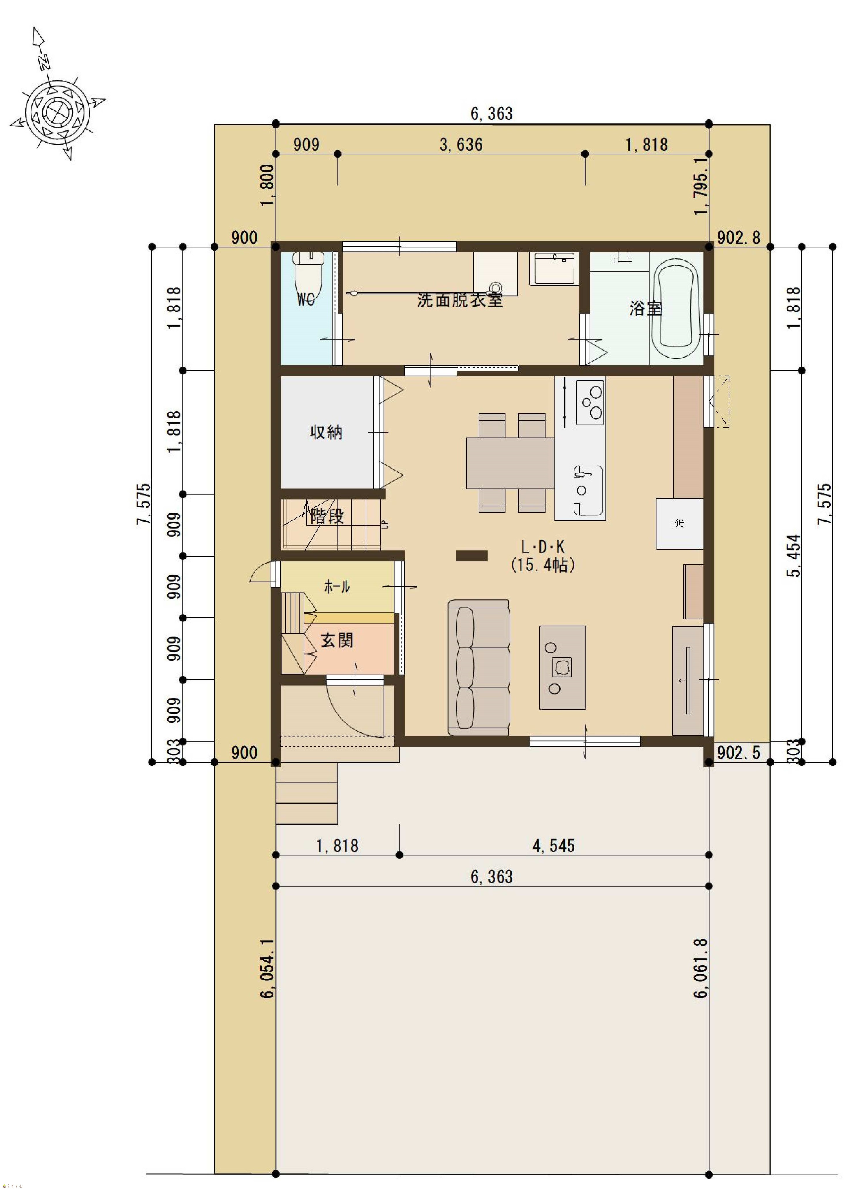
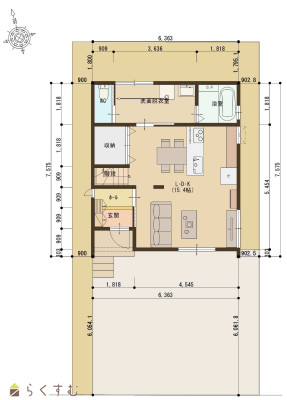
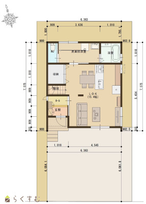
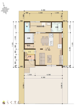
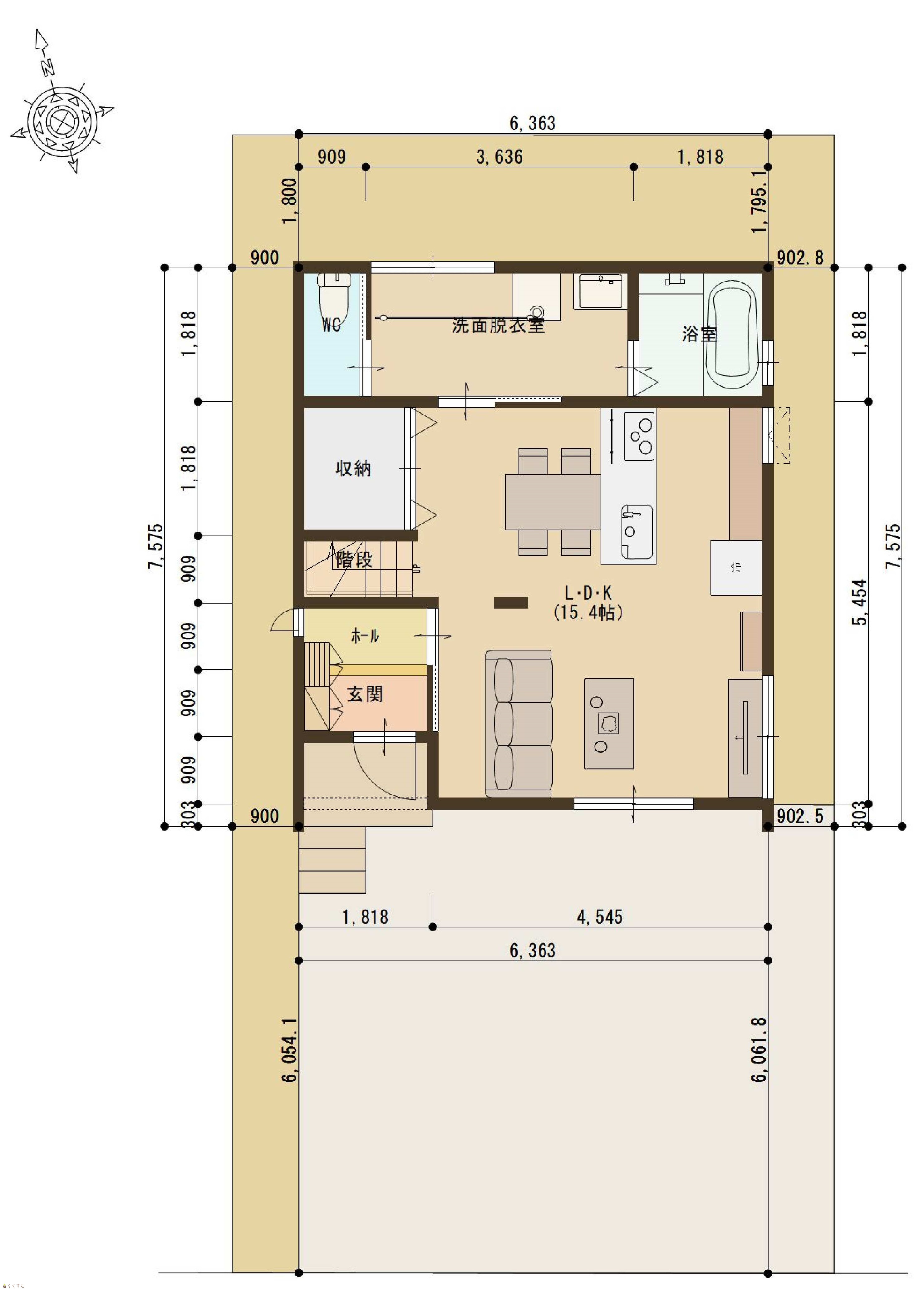
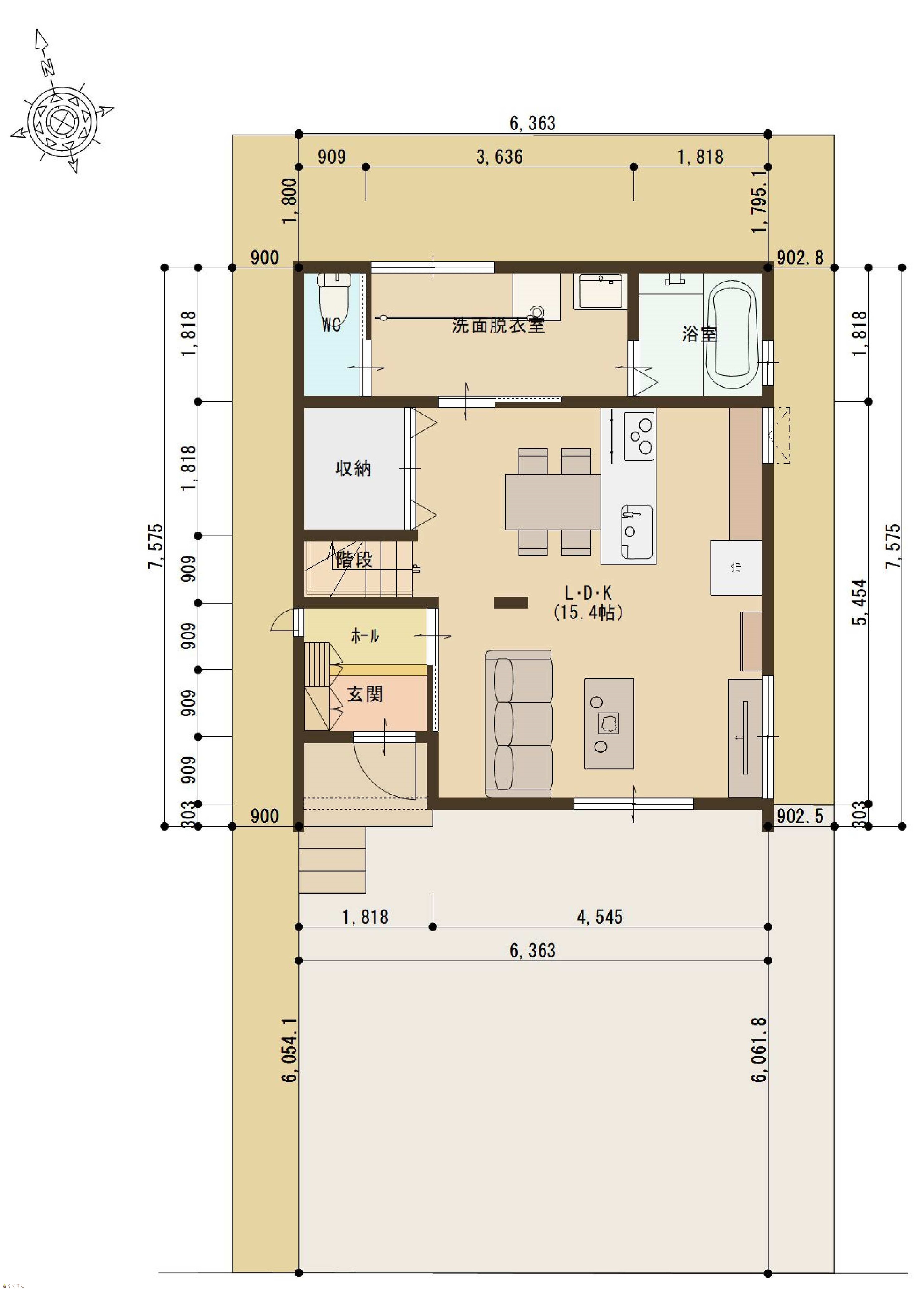
間取り
物件画像
※画像クリックで拡大表示
外観
物件画像
※画像クリックで拡大表示
地型付間取り図
詳細画像
物件画像
1階
物件画像
2階
物件画像
外観
物件画像
LDK15.4帖
物件画像
キッチン
物件画像
玄関ポーチ
物件画像
玄関ホール
物件画像
洗面脱衣室
物件画像
ユニットバス
物件画像
1階トイレ 1階2階にトイレ完備♪
物件画像
2階洋室8帖
物件画像
2階洋室8帖のウォークインクローゼット
物件画像
2階洋室6帖1
物件画像
2階洋室6帖2
物件画像
寒冷地エアコン
物件画像
給湯器リモコン
物件画像
TVモニター付インターホン
物件画像
前面道路は幅6mでゆとりがあり、消雪パイプ付きなので冬も安心
物件画像
BELS/建築物省エネ基準適合認定書あり
物件画像
地図画像
動画


物件概要

15.4帖のLDKは室内を見渡しやすい配置となっています。 室内に物干しスペースが確保されています。 2階にもトイレが設置されています。 2階寝室には3帖のウォークインクローゼットが設置されています。
物件コード 00007-200680
物件名 長岡市豊2丁目 建売住宅 1号棟
交通 駅:信越線 北長岡駅から徒歩21分、バス:豊町から徒歩3分
物件所在地 新潟県長岡市豊2丁目1940番11
物件種別 新築一戸建て
構造 木造 階建 地上2階建
建ぺい率/容積率 60%/200%
建物面積 計 90.88㎡ /27.49坪
土地面積 125.99㎡ /38.11坪
築年月 2025年5月(築10ヶ月)
入居(引き渡し)時期 随時入居(引き渡し)可
用途地域 第1種中高層住居専用地域 地目 宅地
都市計画 市街化区域 学校区 川崎東小学校(464m)・東北中学校(550m)
形状 - 道路 南側:市道6.0m
私道 - その他の制限 -
  • 長岡市豊2丁目 建売住宅 1号棟
    有限会社 一代工務店
  • この物件を問い合わせる/無料
  • TEL: 0258-34-2221 0258-34-2221

物件詳細情報

所在階/階数 - 号室 -
販売価格 24,800,000円 方位
間取り 3LDK (洋室:8、6、6)
LDK15.4
専有面積 - バルコニー面積 -
その他面積 - 駐車場 -
管理費 - 修繕積立金 -
現況 指定なし
仲介手数料 なし
利用制限 -
設備 整形地、前面道路6m以上、日当り良好、スーパー近く、BELS/省エネ基準適合認定建物、フラット35S適合、LDK15畳以上、全室フローリング、駐車場2台以上、南向き、TVインターホン、複層ガラス、ディンプルキー、システムキッチン、IHクッキングヒーター、3口コンロ、追いだき機能付き、バス1坪以上、温水洗浄便座、シャワー付き洗面台、エアコン、24時間換気システム、省エネ給湯、高気密高断熱住宅、都市ガス、上水道、下水道、電気、ウォークインクローゼット、全居室収納あり、床下収納、シューズBOX、照明器具付き、即引き渡し可能、バリアフリー
取引態様 売主
備考 【R7年11月29日価格改定しました】2560万円⇒2480万円
※旧価格公開日 R6年8月16日
 新価格公開日 R7年11月29日

※物件掲載内容と現況に相違がある場合は現況を優先と致します。
詳細はお気軽にお問い合わせください。
担当:藤崎
携帯:090-2763-5443
取り扱い会社

有限会社 一代工務店

新潟県長岡市信濃2-5-36

情報登録日 2026/03/08 次回更新予定日 2026/04/05
取引条件有効期限 2026/05/01
  • 長岡市豊2丁目 建売住宅 1号棟
    有限会社 一代工務店
  • この物件を問い合わせる/無料
  • TEL: 0258-34-2221 0258-34-2221

この物件の地図・周辺情報・行政情報

この物件の周辺情報・行政情報を詳しく見る
【周辺情報】
物件の近くにあるコンビニや銀行・学校など、アイコン付のマップで詳しく表示できます!
【行政情報】
水道料や下水道料・ガス料金など、暮らしに関係のある情報を表示しています。

担当取扱い店舗情報

取扱い店舗画像
有限会社 一代工務店
TEL: 0258-34-2221
所在地: 新潟県長岡市信濃2-5-36
交通: 長岡駅
営業時間: 9:00~18:00/定休日:
免許番号: 新潟県知事(12)2196号
所属団体名: 新潟県宅地建物取引業協会 長岡支部
取引態様: 売主
ホームページ: http://www.ichidai-k.co.jp/