新潟県燕市井土巻5丁目108番4 新築一戸建て 3LDK 28,800,000円の物件情報

イオンまで徒歩5分!毎日のお買い物に便利です。 駐車場3台可能で余裕のある駐車スペース! 2階洋室8帖に開放的なクローゼットを設けました。

物件名/所在地 詳細 価格
燕市井土巻5丁目 建売住宅④
新潟県燕市井土巻5丁目108番4
  • 土地面積
    :260.2㎡ /78.71坪
  • 建物面積
    :93.36㎡ /28.24坪
  • 間取り
    :3LDK
  • 築年月
    :2025年7月
28,800,000
  • 燕市井土巻5丁目 建売住宅④
    有限会社 一代工務店
  • この物件を問い合わせる/無料
  • TEL: 0258-34-2221 0258-34-2221

物件画像

外観
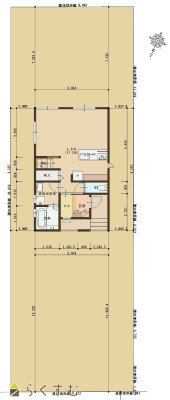
間取り
物件画像
※画像クリックで拡大表示
外構工事未完成です
物件画像
※画像クリックで拡大表示
地型付間取り図
詳細画像
物件画像
1階
物件画像
2階
物件画像
LDK17.2帖
物件画像
LDK17.2帖
物件画像
キッチン
物件画像
玄関ポーチ
物件画像
玄関ホール
物件画像
洗面脱衣室
物件画像
ユニットバス
物件画像
2階洋室8帖
物件画像
2階洋室6帖1
物件画像
2階洋室6帖2
物件画像
1階トイレ 1階・2階にトイレ完備♪
物件画像
2階洋室8帖のウォークインクローゼット
物件画像
2階サンルーム
物件画像
キッチン収納.食洗機
物件画像
キッチン収納
物件画像
BELS/建築物省エネ基準適合認定書あり
物件画像
区画図
物件画像
地図画像


物件概要

「子育てグリーン住宅支援事業」対象物件。2階サンルームは物干しスペースとして使用できます。 雨や雪、花粉なども気にせず洗濯物が干せます♪ 南側にお庭スペース付きです。お子様の遊び場や、ガーデニング、BBQなど お楽しみ頂けます。食器洗い乾燥機付きです♪食器洗いの手間が省け、他の家事やリラックスする時間が増えますね。
物件コード 00007-200664
物件名 燕市井土巻5丁目 建売住宅④
交通 駅:弥彦線 燕三条駅から徒歩7分、バス:地場産センターから徒歩7分
物件所在地 新潟県燕市井土巻5丁目108番4
物件種別 新築一戸建て
構造 木造 階建 地上2階建
建ぺい率/容積率 60%/200%
建物面積 計 93.36㎡ /28.24坪
土地面積 260.2㎡ /78.71坪
築年月 2025年7月(築3ヶ月)
入居(引き渡し)時期 随時入居(引き渡し)可
用途地域 準工業地域 地目 宅地
都市計画 非線引き都市計画区域 学校区 燕南小学校(1,295m)・燕中学校(2,498m)
形状 - 道路 北西側:市道6.0m
私道 - その他の制限 -
  • 燕市井土巻5丁目 建売住宅④
    有限会社 一代工務店
  • この物件を問い合わせる/無料
  • TEL: 0258-34-2221 0258-34-2221

物件詳細情報

所在階/階数 - 号室 -
販売価格 28,800,000円 方位 北西
間取り 3LDK (洋室:8、6、6)
LDK17.2
専有面積 - バルコニー面積 -
その他面積 - 駐車場 -
管理費 - 修繕積立金 -
現況 指定なし
仲介手数料 なし
利用制限 -
設備 整形地、前面道路6m以上、日当り良好、閑静な住宅街、スーパー近く、BELS/省エネ基準適合認定建物、フラット35S適合、LDK15畳以上、全室フローリング、駐車場2台以上、駐車場3台以上、南向き、庭あり、TVインターホン、複層ガラス、ディンプルキー、システムキッチン、IHクッキングヒーター、食器洗浄乾燥機、3口コンロ、追いだき機能付き、バス1坪以上、温水洗浄便座、シャワー付き洗面台、エアコン、24時間換気システム、省エネ給湯、高気密高断熱住宅、都市ガス、上水道、浄化槽、電気、ウォークインクローゼット、全居室収納あり、床下収納、シューズBOX、照明器具付き、即引き渡し可能
取引態様 売主
備考 ※物件掲載内容と現況に相違がある場合は現況を優先と致します。
詳細はお気軽にお問い合わせください。
担当:竹之内
携帯:090-7815-6720
取り扱い会社

有限会社 一代工務店

新潟県長岡市信濃2-5-36

情報登録日 2025/10/05 次回更新予定日 2025/11/09
取引条件有効期限 2025/12/01
  • 燕市井土巻5丁目 建売住宅④
    有限会社 一代工務店
  • この物件を問い合わせる/無料
  • TEL: 0258-34-2221 0258-34-2221

この物件の地図・周辺情報・行政情報

この物件の周辺情報・行政情報を詳しく見る
【周辺情報】
物件の近くにあるコンビニや銀行・学校など、アイコン付のマップで詳しく表示できます!
【行政情報】
水道料や下水道料・ガス料金など、暮らしに関係のある情報を表示しています。
ファミリーマート 燕井土巻店(コンビニ)まで580m
イオン 県央店(スーパー)まで360m
ウエルシア燕店 (調剤薬局)(ドラッグストア)まで820m
宮島循環器内科(病院)まで660m
三条信用金庫 燕三条支店(銀行)まで420m

※カメラのアイコンがある場合は、マウスをポイントするとその施設の画像がご覧いただけます。


担当取扱い店舗情報

取扱い店舗画像
有限会社 一代工務店
TEL: 0258-34-2221
所在地: 新潟県長岡市信濃2-5-36
交通: 長岡駅
営業時間: 9:00~18:00/定休日:
免許番号: 新潟県知事(12)2196号
所属団体名: 新潟県宅地建物取引業協会 長岡支部
取引態様: 売主
ホームページ: http://www.ichidai-k.co.jp/