物件掲載企業数:299|賃貸物件:2,911件|売買物件:3,224件|今週の登録物件:353
閲覧中のブラウザ(インターネットエクスプローラー)は非推奨ブラウザです。
物件が正しく表示されなかったり、正しく検索されない場合があります。最新のブラウザ(Google Chrome・Edgeなど)にてご利用お願いいたします。
  

新潟県糸魚川市上刈1丁目4-1 中古一戸建て 8DK 11,500,000円の物件情報

物件名/所在地 詳細 価格
【糸魚川市上刈1丁目中古住宅】
新潟県糸魚川市上刈1丁目4-1
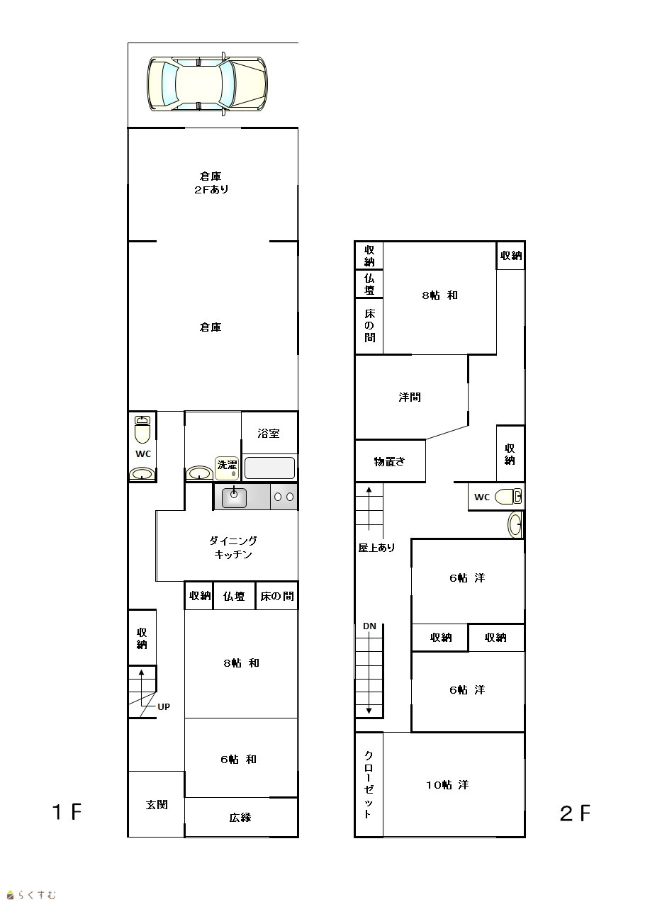
  • 土地面積
    :241.4㎡ /73.02坪
  • 建物面積
    :247.79㎡ /74.95坪
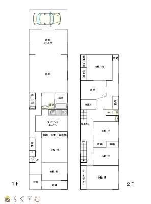
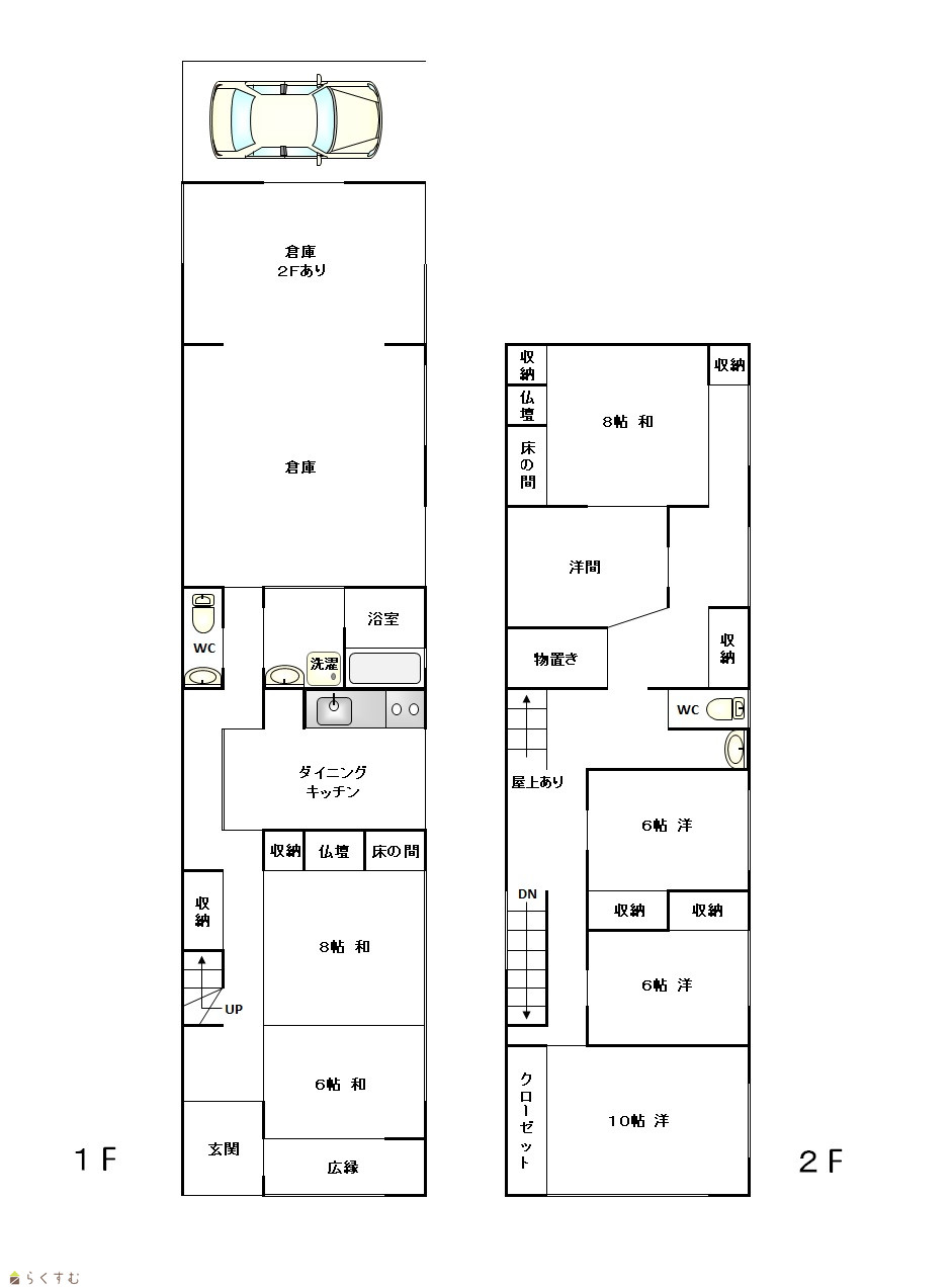
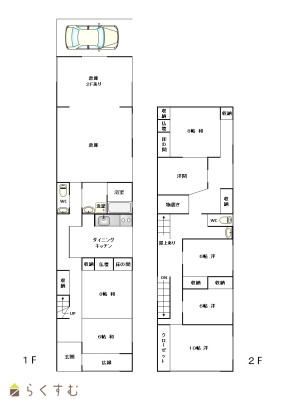
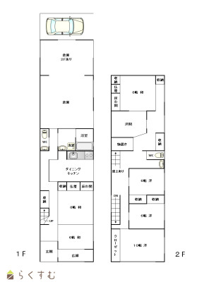
  • 間取り
    :8DK
  • 築年月
    :1996年7月
11,500,000
  • 【糸魚川市上刈1丁目中古住宅】
    株式会社 糸魚川不動産
  • この物件を問い合わせる/無料
  • TEL: 025-552-1115

物件画像

外観 間取り
物件画像
※画像クリックで拡大表示
外観
物件画像
※画像クリックで拡大表示
間取り
詳細画像


物件概要

物件コード 00388-200002
物件名 【糸魚川市上刈1丁目中古住宅】
交通 駅:北陸新幹線 糸魚川駅から徒歩9分、バス:糸魚川小学校前から徒歩2分
物件所在地 新潟県糸魚川市上刈1丁目4-1
物件種別 中古一戸建て
構造 木造鉄筋コン 階建 地上3階建
建ぺい率/容積率 70%/200%
建物面積 1階 126.87㎡/ 2階 106.05㎡/ 3階 14.87㎡/ 計 247.79㎡ /74.95坪
土地面積 241.4㎡ /73.02坪
築年月 1996年7月(築29年)
入居(引き渡し)時期 相談
用途地域 第1種住居地域 地目 宅地  (現状:建付け地)
都市計画 非線引き都市計画区域 学校区 糸魚川小学校(244m)・糸魚川中学校(704m)
形状 - 道路 糸魚川市道「上刈白馬通線 「分水道線」*消雪P敷設
私道 なし その他の制限 -
  • 【糸魚川市上刈1丁目中古住宅】
    株式会社 糸魚川不動産
  • この物件を問い合わせる/無料
  • TEL: 025-552-1115

物件詳細情報

所在階/階数 - 号室 -
販売価格 11,500,000円 方位
間取り 8DK
専有面積 - バルコニー面積 -
その他面積 - 駐車場 -
管理費 - 修繕積立金 -
現況 空家
仲介手数料 481,140円
利用制限 -
設備 角地、システムキッチン、3口コンロ、追いだき機能付き、温水洗浄便座、エアコンあり、ルーフバルコニー、都市ガス、上水道、下水道、BS端子、CS
取引態様 仲介
備考 *建物一部除却する事により駐車場スペース概ね2台分程度確保できます。
その他必要な費用
●所有権移転登記費用    概算25万円程度
●ローン利用の場合の諸経費 各種金融機関による
●物件取得後数カ月で不動産取得税を納税ください。(県税)
●詳細はお問い合わせください。

【物件予約等に関する注意事項】
当社では物件購入申込(予約)に際し以下の点をお願いしております。
①自己資金のみでご購入の場合・・・・残高証明書のご提示
②住宅ローン等利用の方の場合・・・・融資証明書のご提示
③自己資金とローン併用の場合・・・・物件価格以上のいずれかのご提示
*融資審査中においての物件取り置きはご遠慮ください。
*申し込みには本人確認書類・印鑑・住民票・申込金10万円(*契約後売買代金充当)が必要です。
取り扱い会社

株式会社 糸魚川不動産

新潟県糸魚川市中央1-7-4

情報登録日 2025/07/08 次回更新予定日 2026/04/05
取引条件有効期限 2025/09/08
  • 【糸魚川市上刈1丁目中古住宅】
    株式会社 糸魚川不動産
  • この物件を問い合わせる/無料
  • TEL: 025-552-1115

この物件の地図・周辺情報・行政情報

この物件の周辺情報・行政情報を詳しく見る
【周辺情報】
物件の近くにあるコンビニや銀行・学校など、アイコン付のマップで詳しく表示できます!
【行政情報】
水道料や下水道料・ガス料金など、暮らしに関係のある情報を表示しています。
セブン-イレブン 糸魚川上刈店(コンビニ)まで520m
(株)ハピー マルニハピー横町店外商部(スーパー)まで740m
マックスバリュ 糸魚川店(スーパー)まで790m
なかむらこどもクリニック(病院)まで790m
さいとう内科クリニック(病院)まで770m

※カメラのアイコンがある場合は、マウスをポイントするとその施設の画像がご覧いただけます。


担当取扱い店舗情報

取扱い店舗画像
株式会社 糸魚川不動産
TEL: 025-552-1115
所在地: 新潟県糸魚川市中央1-7-4
交通: JR北陸新幹線糸魚川駅
営業時間: 9:00~17:00/定休日:日曜・祝祭日他(年末年始・お盆期間・GW)
免許番号: 新潟県知事(15)第684号 この会社の情報を詳しく見る
所属団体名: 公社 新潟県宅地建物取引協会 上越支部
取引態様: 仲介
ホームページ: https://itoigawafudosan.com/