物件掲載企業数:297|賃貸物件:3,613件|売買物件:3,318件|今週の登録物件:228
閲覧中のブラウザ(インターネットエクスプローラー)は非推奨ブラウザです。
物件が正しく表示されなかったり、正しく検索されない場合があります。最新のブラウザ(Google Chrome・Edgeなど)にてご利用お願いいたします。
  

新潟県胎内市西本町18-47 中古一戸建て 2LDK 32,800,000円の物件情報

純北海道仕様の築浅スタイリッシュ物件です♪

物件名/所在地 詳細 価格
胎内市西本町中古住宅(価格交渉可)
新潟県胎内市西本町18-47
  • 土地面積
    :209.37㎡ /63.33坪
  • 建物面積
    :117.38㎡ /35.5坪
  • 間取り
    :2LDK
  • 築年月
    :2019年12月
32,800,000
  • 胎内市西本町中古住宅(価格交渉可)
    合同会社 秋桜不動産
  • この物件を問い合わせる/無料
  • TEL: 0258-86-7804

物件画像

外観 間取り
物件画像
※画像クリックで拡大表示
外観
物件画像
※画像クリックで拡大表示
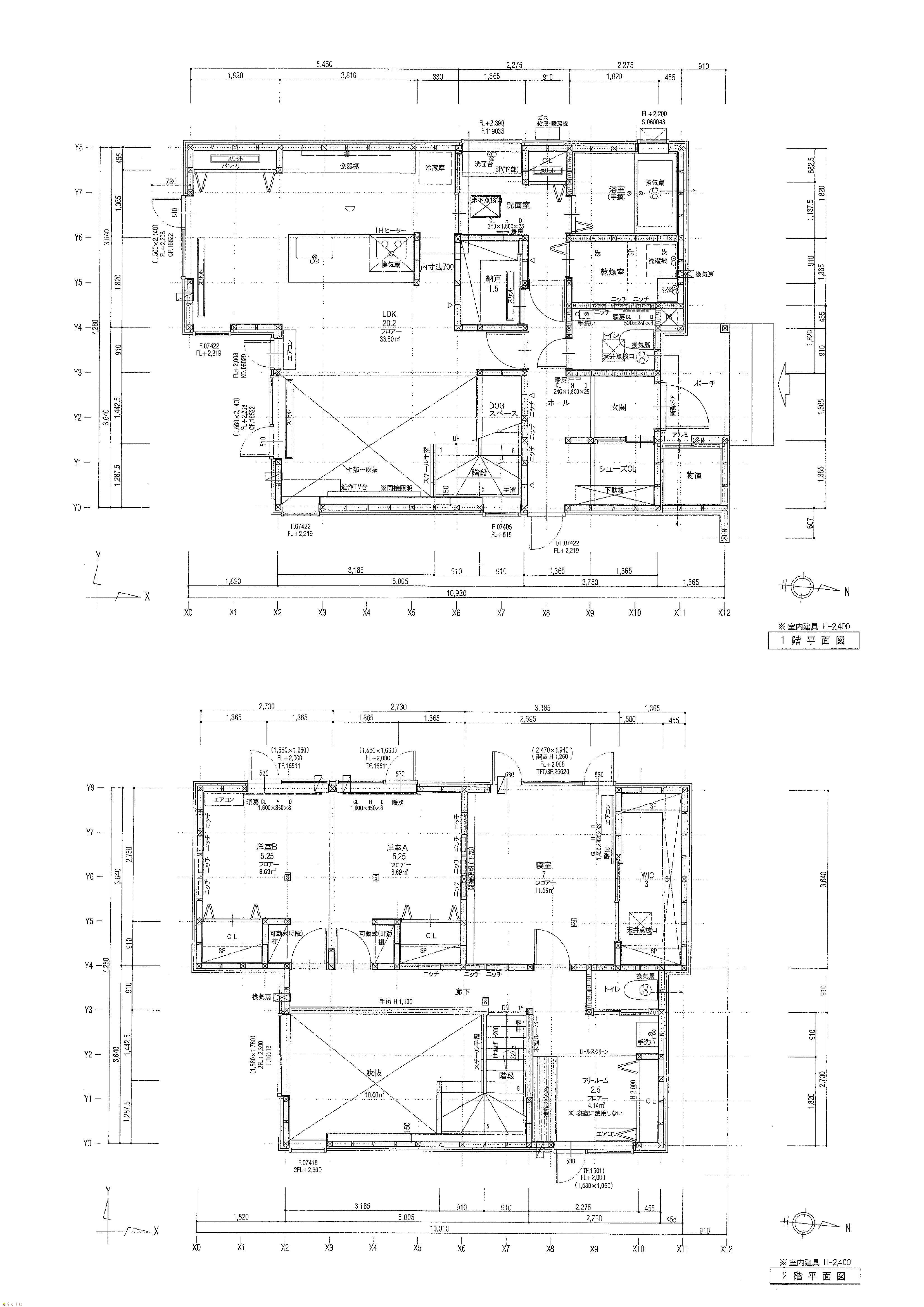
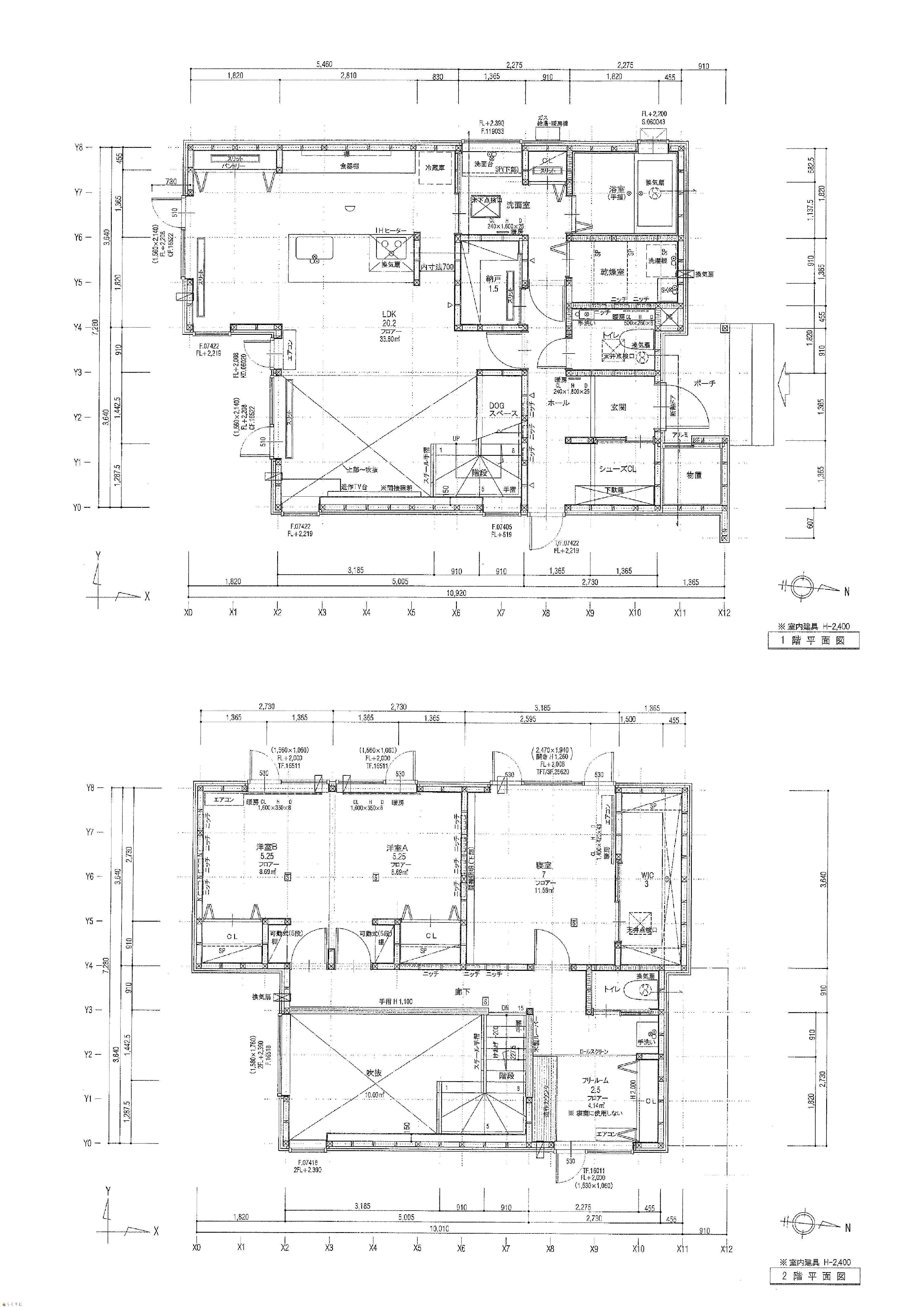
間取り
詳細画像
360度画像
玄関
※下のリンクをクリックすると、上の画像が切り替わります。

インターネットエクスプローラーでは360°画像は閲覧できません。それ以外のブラウザでご覧下さい。



物件概要

価格交渉可能ですので是非一度お問合せください。
物件コード 00382-200005
物件名 胎内市西本町中古住宅(価格交渉可)
交通 駅:羽越線 中条駅から徒歩3分
物件所在地 新潟県胎内市西本町18-47
物件種別 中古一戸建て
構造 木造 階建 地上2階建
建ぺい率/容積率 60%/200%
建物面積 1階 66.45㎡/ 2階 50.93㎡/ 計 117.38㎡ /35.5坪
土地面積 209.37㎡ /63.33坪
築年月 2019年12月(築6年)
入居(引き渡し)時期 随時入居(引き渡し)可
用途地域 第1種住居地域 地目 宅地  (現状:宅地)
都市計画 市街化区域 学校区 中条小学校(958m)・中条中学校(1,173m)
形状 間口 11.40m × 奥行 18.36m 道路 市道 西本町南1号線 幅員6.0m
私道 - その他の制限 22条指定区域
  • 胎内市西本町中古住宅(価格交渉可)
    合同会社 秋桜不動産
  • この物件を問い合わせる/無料
  • TEL: 0258-86-7804

物件詳細情報

所在階/階数 - 号室 -
販売価格 32,800,000円 方位
間取り 2LDK (洋室:10.5、7)
LDK20.2
専有面積 - バルコニー面積 -
その他面積 - 駐車場 -
管理費 - 修繕積立金 -
現況 空家
仲介手数料 1,148,400円
利用制限 -
設備 閑静な住宅街、瑕疵担保保険対象、新築時図面あり、建物確認・完了検査済証あり、瑕疵担保保険付き、LDK15帖以上、全室フローリング、築10年以内、駐車2台可能、TVインターホン、複層ガラス、デインプルキー、システムキッチン、カウンターキッチン、IHクッキングヒーター、食器洗浄乾燥機、3口コンロ、追いだき機能付き、バス1坪以上、温水洗浄便座、トイレ2か所以上、シャワー付き洗面台、エアコンあり、24時間換気システム、省エネ給湯機、都市ガス、上水道、下水道、ウォークインクローゼット、全居室収納あり、床下収納、シューズインクローゼット、BS端子、内装リフォーム済み、即引き渡し可能
取引態様 仲介
備考 令和6年7月リフォーム実施
床(フローリング等)、壁・天井(クロス・塗装等)、建具(室内ドア等)の一部キズがある箇所の補修。
ハウスクリーニング。
取り扱い会社

合同会社 秋桜不動産

新潟県長岡市土合2-6-12

情報登録日 2025/09/23 次回更新予定日 2026/01/05
取引条件有効期限 2025/10/30
  • 胎内市西本町中古住宅(価格交渉可)
    合同会社 秋桜不動産
  • この物件を問い合わせる/無料
  • TEL: 0258-86-7804

この物件の地図・周辺情報・行政情報

この物件の周辺情報・行政情報を詳しく見る
【周辺情報】
物件の近くにあるコンビニや銀行・学校など、アイコン付のマップで詳しく表示できます!
【行政情報】
水道料や下水道料・ガス料金など、暮らしに関係のある情報を表示しています。
ローソン 胎内西本町店(コンビニ)まで280m
中条中央病院(病院)まで240m

※カメラのアイコンがある場合は、マウスをポイントするとその施設の画像がご覧いただけます。


担当取扱い店舗情報

取扱い店舗画像
合同会社 秋桜不動産
TEL: 0258-86-7804
所在地: 新潟県長岡市土合2-6-12
交通: 長岡駅
営業時間: 10:00~18:00/定休日:土曜・日曜・祝日
免許番号: 新潟県知事(1)5804号 この会社の情報を詳しく見る
所属団体名: 公社 新潟県宅地建物取引協会 長岡支部
取引態様: 仲介
ホームページ: https://shuo-f.com/