物件掲載企業数:301|賃貸物件:3,175件|売買物件:3,245件|今週の登録物件:72
閲覧中のブラウザ(インターネットエクスプローラー)は非推奨ブラウザです。
物件が正しく表示されなかったり、正しく検索されない場合があります。最新のブラウザ(Google Chrome・Edgeなど)にてご利用お願いいたします。
  

新潟県柏崎市曽地977番地1 中古一戸建て 7DK 3,000,000円の物件情報

☆価格改定☆コンビニまで徒歩1分!200坪超の広い敷地で7DKのゆとりある和風住宅で田舎暮らしを満喫しませんか?

物件名/所在地 詳細 価格
柏崎市曽地中古住宅
新潟県柏崎市曽地977番地1
  • 土地面積
    :757.7㎡ /229.2坪
  • 建物面積
    :160.82㎡ /48.64坪
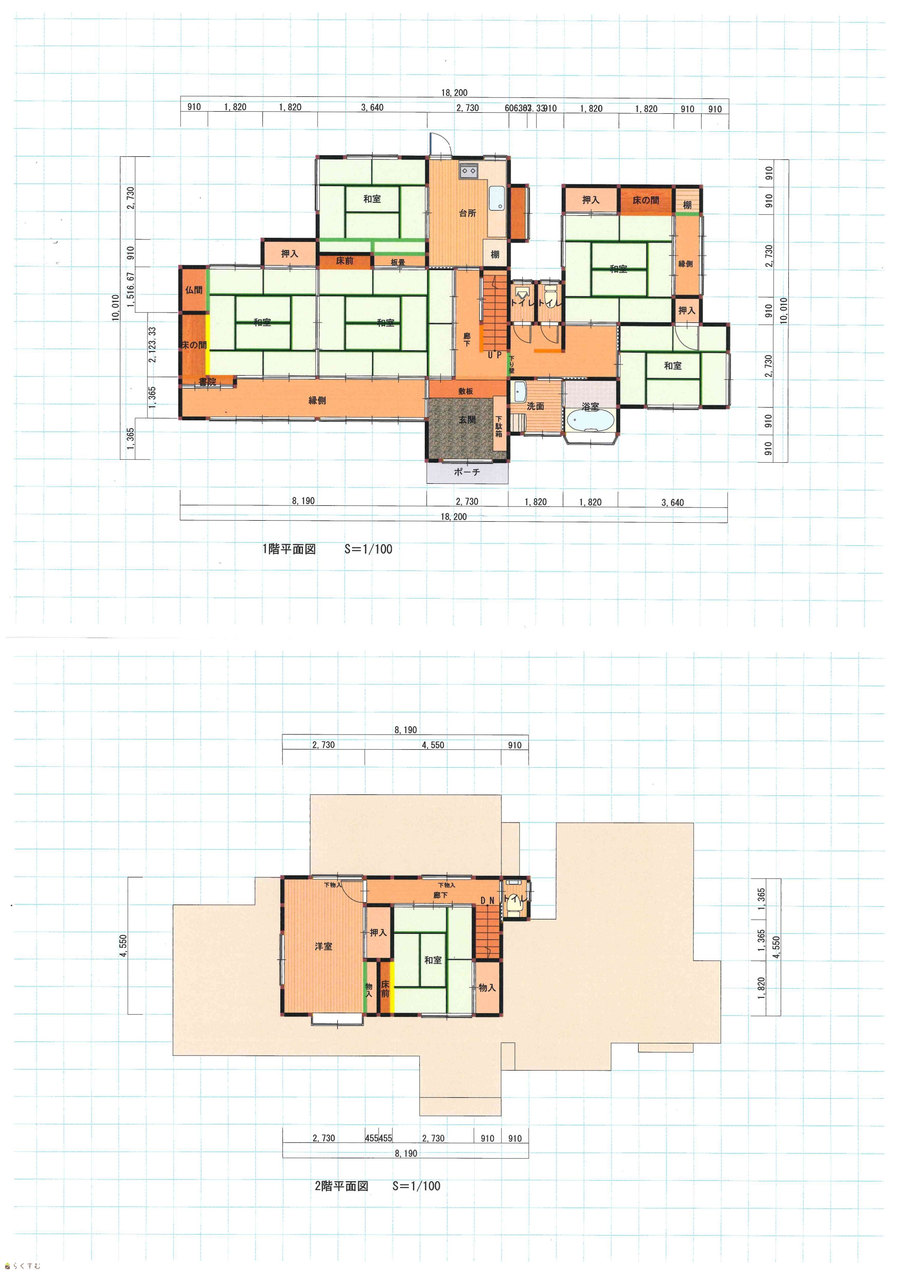
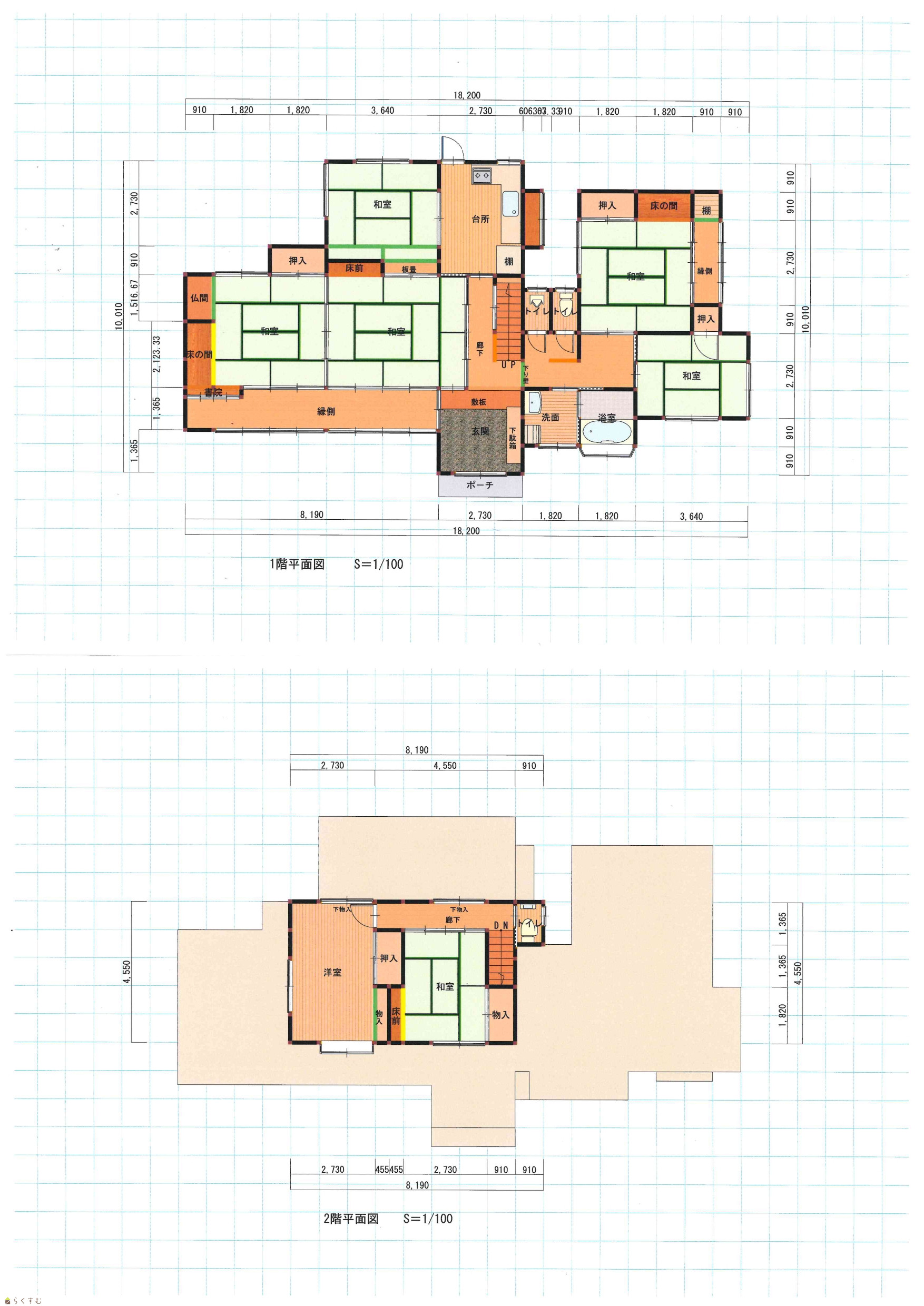
  • 間取り
    :7DK
  • 築年月
    :1980年8月
3,000,000
  • 柏崎市曽地中古住宅
    株式会社 坂詰製材所
  • この物件を問い合わせる/無料
  • TEL: 0258-86-4740

物件画像

外観 間取り
物件画像
※画像クリックで拡大表示
外観
物件画像
※画像クリックで拡大表示
間取り
詳細画像


物件概要

広い敷地と広いお庭、作業所付の住宅です。内残存物撤去済み。是非一度内見にいらしてください!ご希望に応じてご購入後のリフォームの相談も可能です。
物件コード 00371-200002
物件名 柏崎市曽地中古住宅
交通 駅:越後線 荒浜駅から徒歩52分、バス:曽地から徒歩1分
物件所在地 新潟県柏崎市曽地977番地1
物件種別 中古一戸建て
構造 木造 階建 地上2階建
建ぺい率/容積率 -
建物面積 1階 127.74㎡/ 2階 33.08㎡/ 計 160.82㎡ /48.64坪
土地面積 757.7㎡ /229.2坪
築年月 1980年8月(築45年)
入居(引き渡し)時期 随時入居(引き渡し)可
用途地域 無指定 地目 宅地・田・畑
都市計画 都市計画区域外 学校区 桜通小学校(3,630m)・瑞穂中学校(5,453m)
形状 間口 15m × 奥行 33m 道路 南側国道8号
私道 - その他の制限 -
  • 柏崎市曽地中古住宅
    株式会社 坂詰製材所
  • この物件を問い合わせる/無料
  • TEL: 0258-86-4740

物件詳細情報

所在階/階数 - 号室 -
販売価格 3,000,000円 方位
間取り 7DK
専有面積 - バルコニー面積 -
その他面積 - 駐車場 -
管理費 - 修繕積立金 -
現況 空家
仲介手数料 330,000円
利用制限 -
設備 日当り良好、駐車3台以上可能、南向き、トイレ2か所以上、都市ガス、上水道、下水道、2世帯向き、即引き渡し可能、田舎暮らし
取引態様 一般
備考 ◆売買対象物件には、農地(田:125㎡※現況畑、畑:59㎡)及び、作業所(木造瓦・亜鉛メッキ鋼板葺2階建て、1階:33.08㎡、2階:16.56㎡、昭和10年建築※課税明細書より)が含まれます。
◆本物件は、登記上昭和55年新築となっておりますが、建物の一部に昭和39年新築の部分が含まれます。詳しくはお問い合わせください。
◆売主による境界の明示なし。
◆売主による契約不適合免責とさせていただきます。
◆現況有姿でのお引渡しとなります。
◆リノベーションのご相談も承ります。
◆長岡営業所でのお打ち合わせ可能です。
取り扱い会社

株式会社 坂詰製材所

新潟県阿賀野市保田3858

情報登録日 2026/04/24 次回更新予定日 2026/05/21
取引条件有効期限 2026/07/31
  • 柏崎市曽地中古住宅
    株式会社 坂詰製材所
  • この物件を問い合わせる/無料
  • TEL: 0258-86-4740

この物件の地図・周辺情報・行政情報

この物件の周辺情報・行政情報を詳しく見る
【周辺情報】
物件の近くにあるコンビニや銀行・学校など、アイコン付のマップで詳しく表示できます!
【行政情報】
水道料や下水道料・ガス料金など、暮らしに関係のある情報を表示しています。
セブン-イレブン 柏崎曽地店(コンビニ)まで70m
曽地郵便局(郵便局)まで140m
PLANTー5刈羽店(スーパー)まで3900m
原信柏崎東店(スーパー)まで6300m
大光銀行柏崎南支店(銀行)まで7800m
第四北越銀行柏崎南支店(銀行)まで8400m
JA新潟厚生連柏崎総合医療センター(病院)まで8800m
ピアレマート東原町店(スーパー)まで4800m

※カメラのアイコンがある場合は、マウスをポイントするとその施設の画像がご覧いただけます。


担当取扱い店舗情報

取扱い店舗画像
株式会社 坂詰製材所
TEL: 0258-86-4740
所在地: 新潟県阿賀野市保田3858
交通: JR磐越西線「五泉駅」、バス停「安田新栄町団地」より徒歩約2分 
営業時間: 8:00~17:15/定休日:日・祝日 年末年始・夏季休暇
免許番号: 新潟県知事(8)第3677号 この会社の情報を詳しく見る
所属団体名: 公社 新潟県宅地建物取引協会 新発田支部
取引態様: 一般
ホームページ: https://s-housing.com/