物件掲載企業数:297|賃貸物件:3,613件|売買物件:3,318件|今週の登録物件:228
閲覧中のブラウザ(インターネットエクスプローラー)は非推奨ブラウザです。
物件が正しく表示されなかったり、正しく検索されない場合があります。最新のブラウザ(Google Chrome・Edgeなど)にてご利用お願いいたします。
  

新潟県長岡市殿町2丁目3-9 投資物件・その他 98,000,000円の物件情報

長岡駅から徒歩8分 歓楽街(殿町)から至近距離の売ホテル

物件名/所在地 詳細 価格
表面利回り
売ホテル 殿町2丁目
新潟県長岡市殿町2丁目3-9
  • 土地面積
    :459.27㎡ /138.92坪
  • 建ぺい率
    :80%
  • 容積率
    :400%
98,000,000
-
  • 売ホテル 殿町2丁目
    有限会社 小林不動産
  • この物件を問い合わせる/無料
  • TEL: 0258-34-1616

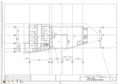
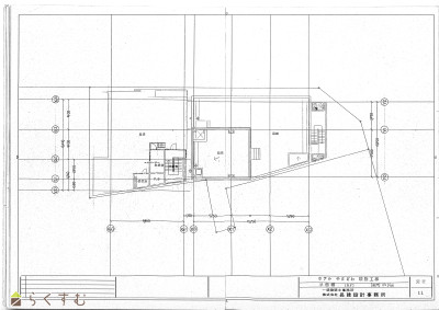
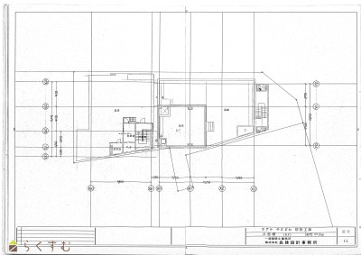
物件画像

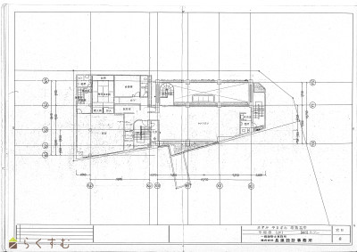
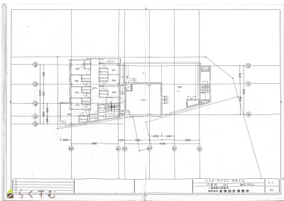
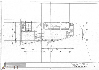
外観 間取り
物件画像
※画像クリックで拡大表示
外観写真
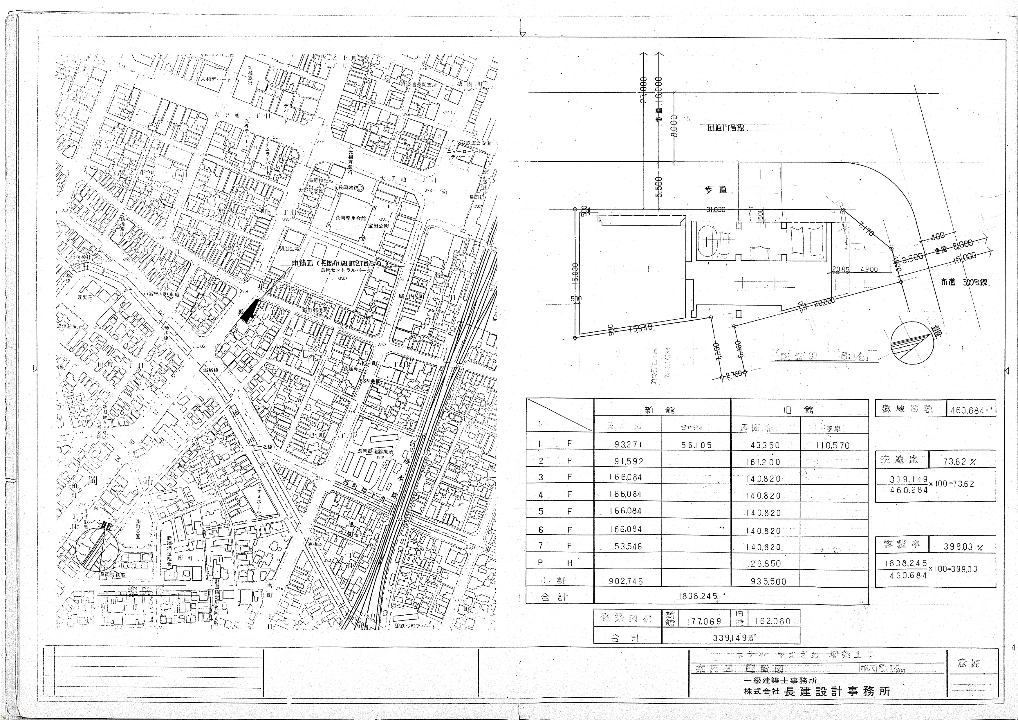
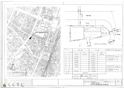
物件画像
※画像クリックで拡大表示
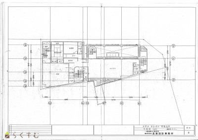
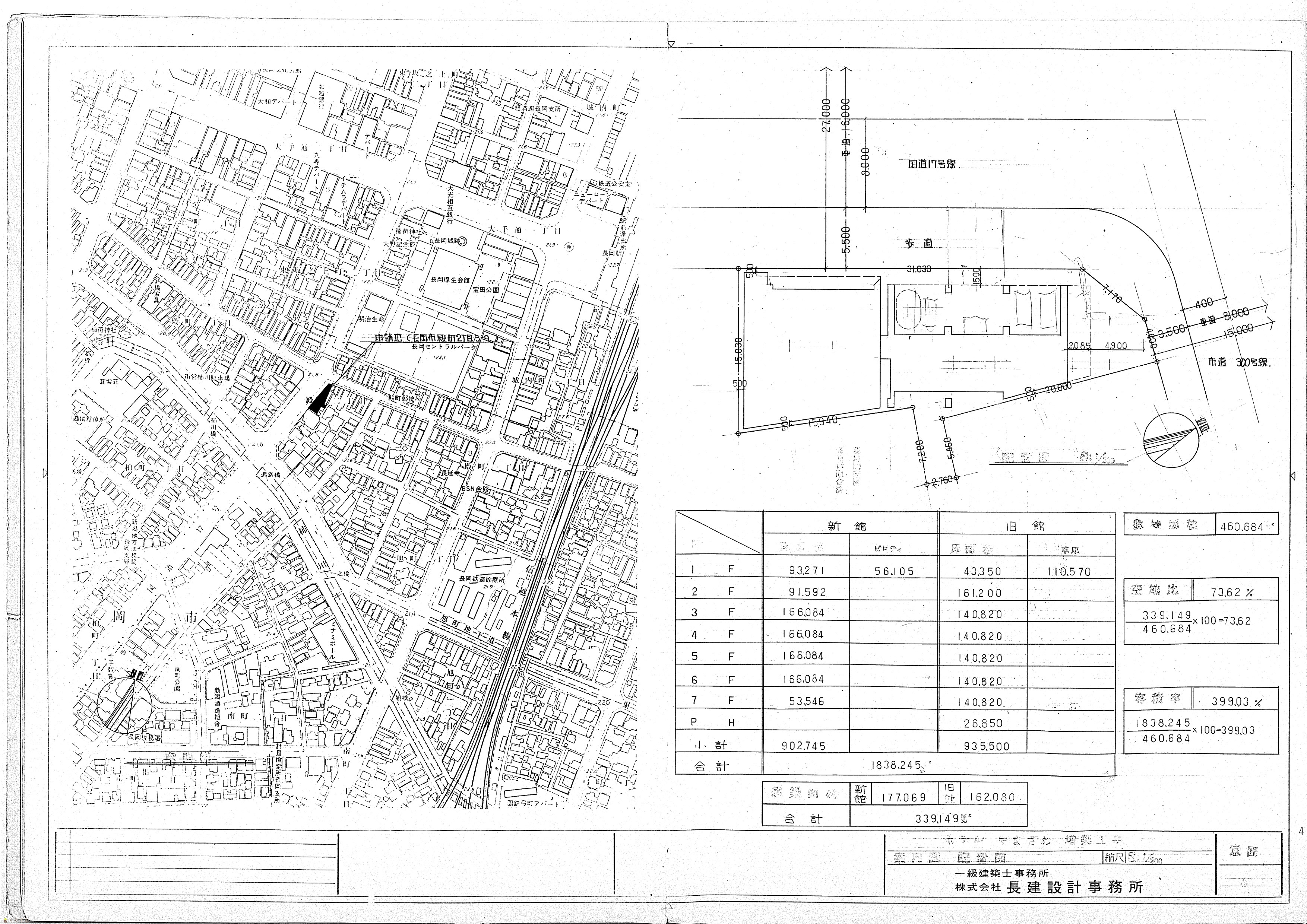
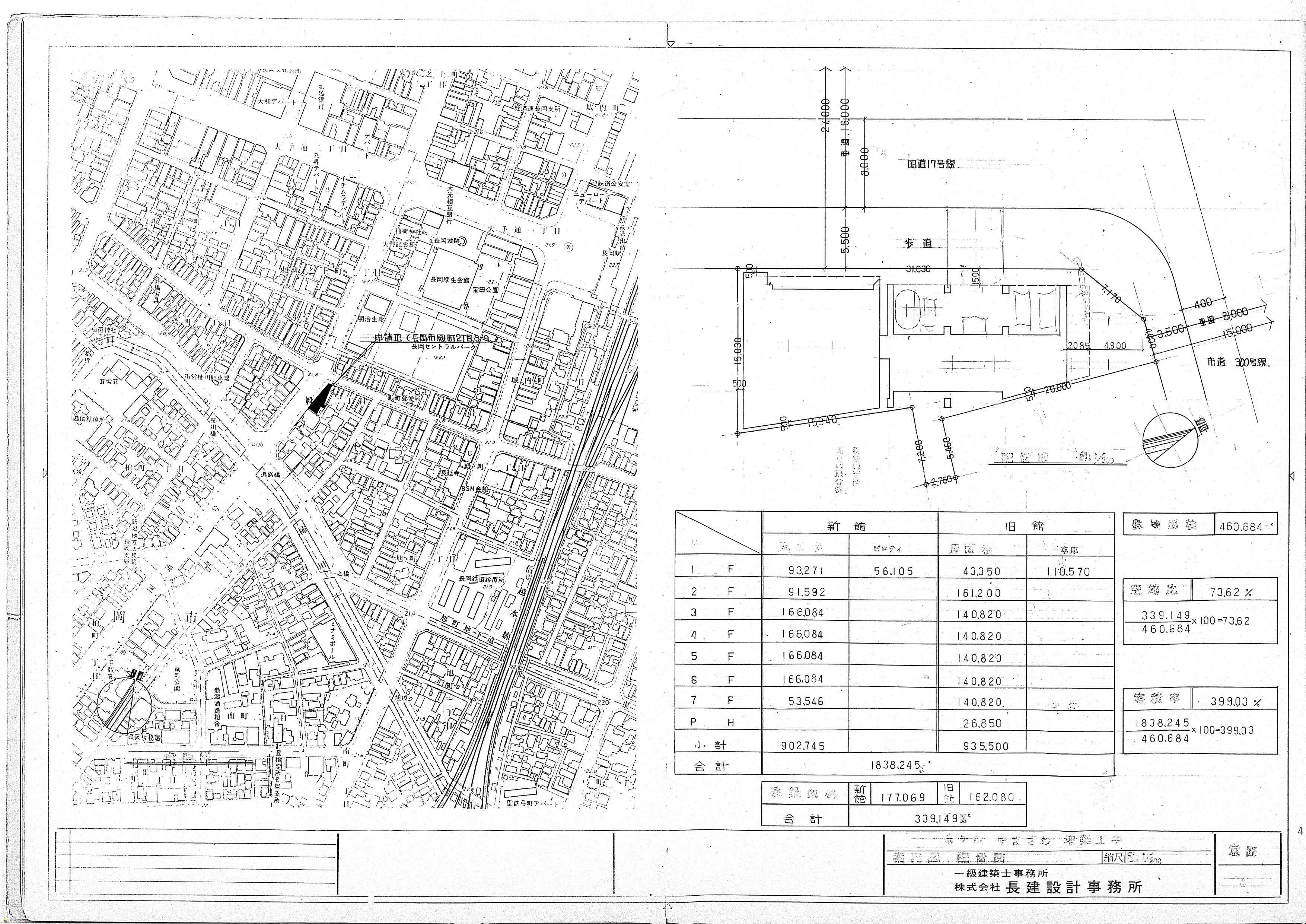
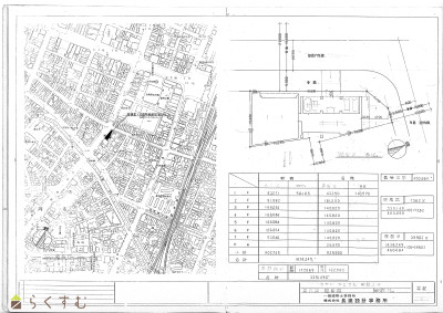
配置図
詳細画像


物件概要

長岡駅から徒歩8分 歓楽街(殿町)から至近距離の売ホテルです。
物件コード 00369-200001
物件名 売ホテル 殿町2丁目
交通 駅:上越新幹線 長岡駅から徒歩8分、バス:東坂之上から徒歩3分
物件所在地 新潟県長岡市殿町2丁目3-9
物件種別 投資物件・その他
物件区分 その他
構造 鉄筋コン 階建 地上8階建
建ぺい率/容積率 80%/400%
建物面積 1階 246.23㎡/ 2階 257.36㎡/ 3階 317.87㎡/ 4階 317.87㎡/ 計 1,992.71㎡ /602.79坪
土地面積 459.27㎡ /138.92坪
築年月 1973年10月(築52年)
入居(引き渡し)時期 随時入居(引き渡し)可
用途地域 商業地域 地目 宅地
都市計画 市街化区域 学校区 阪之上小学校(726m)・東中学校(1,624m)
形状 - 道路 北東側市道 幅員15.0m、西側国道 幅員26.9m
私道 - その他の制限 -
  • 売ホテル 殿町2丁目
    有限会社 小林不動産
  • この物件を問い合わせる/無料
  • TEL: 0258-34-1616

物件詳細情報

所在階/階数 - 号室 -
販売価格 98,000,000円 方位 -
表面利回り(満室想定時) - 満室想定年収 - (想定月収: - )
現行利回り - 現行年間年収 -
住戸数 -
間取り -
専有面積 - バルコニー面積 -
その他面積 - 駐車場 ピロティタイプ駐車場
管理費 - 修繕積立金 -
現況 -
仲介手数料 3,300,000円
利用制限 -
設備 角地、エレベーター、駐車場(近隣含む)、公営水道、都市ガス、事業向け
取引態様 専任
備考 旧ホテル崇徳館 上越新幹線長岡駅から徒歩8分 歓楽街(殿町)から至近距離の売ホテルです。
取り扱い会社

有限会社 小林不動産

新潟県長岡市旭町2-3-31

情報登録日 2024/07/04 次回更新予定日 2026/01/05
取引条件有効期限 2024/07/04
  • 売ホテル 殿町2丁目
    有限会社 小林不動産
  • この物件を問い合わせる/無料
  • TEL: 0258-34-1616

この物件の地図・周辺情報・行政情報

この物件の周辺情報・行政情報を詳しく見る
【周辺情報】
物件の近くにあるコンビニや銀行・学校など、アイコン付のマップで詳しく表示できます!
【行政情報】
水道料や下水道料・ガス料金など、暮らしに関係のある情報を表示しています。

担当取扱い店舗情報

取扱い店舗画像
有限会社 小林不動産
TEL: 0258-34-1616
所在地: 新潟県長岡市旭町2-3-31
交通: 長岡駅
営業時間: 9:00~17:00/定休日:日曜日、祝祭日、第2第4土曜日
免許番号: 新潟県知事(1)5392号 この会社の情報を詳しく見る
所属団体名: 公社 新潟県宅地建物取引協会 長岡支部
取引態様: 専任
ホームページ: https://kre1973.bsj.jp/