物件掲載企業数:297|賃貸物件:3,611件|売買物件:3,320件|今週の登録物件:237
閲覧中のブラウザ(インターネットエクスプローラー)は非推奨ブラウザです。
物件が正しく表示されなかったり、正しく検索されない場合があります。最新のブラウザ(Google Chrome・Edgeなど)にてご利用お願いいたします。
  

新潟県新潟市西区小針4丁目623-3 新築一戸建て 3LDK 29,800,000円の物件情報

北海道の仕様を取り入れた二重断熱で高気密高断熱住宅!エアコン1台で冬は暖かく、夏は涼しく快適に☆

物件名/所在地 詳細 価格
西区小針4丁目 新築建売住宅
新潟県新潟市西区小針4丁目623-3
  • 土地面積
    :211.67㎡ /64.03坪
  • 建物面積
    :92.74㎡ /28.05坪
  • 間取り
    :3LDK
  • 築年月
    :2024年8月
29,800,000
  • 西区小針4丁目 新築建売住宅
    株式会社アップデート不動産
  • この物件を問い合わせる/無料
  • TEL: 080-4887-9627

物件画像

外観 間取り
物件画像
※画像クリックで拡大表示
*外観*
物件画像
※画像クリックで拡大表示
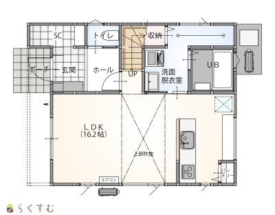
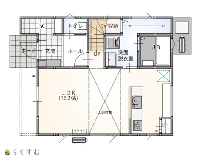
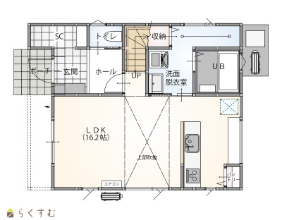
*間取り*家具の配置はイメージです
詳細画像
動画


物件概要

物件コード 00362-200002
物件名 西区小針4丁目 新築建売住宅
交通 駅:越後線 小針駅から徒歩10分、バス:小針五丁目から徒歩2分
物件所在地 新潟県新潟市西区小針4丁目623-3
物件種別 新築一戸建て
構造 木造 階建 地上2階建
建ぺい率/容積率 60%/200%
建物面積 1階 47.2㎡/ 2階 45.54㎡/ 計 92.74㎡ /28.05坪
土地面積 211.67㎡ /64.03坪
築年月 2024年8月(築1年)
入居(引き渡し)時期 相談
用途地域 第2種中高層住居専用地域 地目 宅地
都市計画 市街化区域 学校区 小針小学校(485m)・小針中学校(870m)
形状 間口 6.8m × 奥行 21m 道路 北西(道路幅:16m/接道幅:9.8m)
私道 - その他の制限 -
  • 西区小針4丁目 新築建売住宅
    株式会社アップデート不動産
  • この物件を問い合わせる/無料
  • TEL: 080-4887-9627

物件詳細情報

所在階/階数 - 号室 -
販売価格 29,800,000円 方位 -
間取り 3LDK
専有面積 - バルコニー面積 -
その他面積 - 駐車場 -
管理費 - 修繕積立金 -
現況 指定なし
仲介手数料 なし
利用制限 -
設備 整形地、前面道路6m以上、日当り良好、スーパー近く、建物確認・完了検査済証あり、LDK15畳以上、全室フローリング、駐車場2台以上、TVインターホン、複層ガラス、システムキッチン、カウンターキッチン、IHクッキングヒーター、追いだき機能付き、バス1坪以上、温水洗浄便座、シャワー付き洗面台、エアコン、24時間換気システム、オール電化、省エネ給湯、高気密高断熱住宅、上水道、下水道、電気、ウォークインクローゼット、全居室収納あり、シューズインクローゼット、シューズBOX、照明器具付き
取引態様 一般
備考 *お家の見どころポイント*
・シューズクロークやキッチンパントリー、階段下収納などたっぷりと収納が可能☆
・2階トイレ付き♪1階まで下りなくても良いのはラクですよね!
・土間コンが車2台分!乗り入れも広いので駐車しやすい◎

*周辺エリア*
・小針小学校まで 徒歩6分
・小針中学校まで 徒歩12分
・小針駅まで 徒歩10分

物件のことや住宅ローンのことなど、どんな不安や疑問にもお答えします!
お気軽にお問い合わせください(*^^*)
取り扱い会社

株式会社アップデート不動産

新潟県長岡市古正寺3-116

情報登録日 2025/11/11 次回更新予定日 2026/01/04
取引条件有効期限 2025/08/31
  • 西区小針4丁目 新築建売住宅
    株式会社アップデート不動産
  • この物件を問い合わせる/無料
  • TEL: 080-4887-9627

この物件の地図・周辺情報・行政情報

この物件の周辺情報・行政情報を詳しく見る
【周辺情報】
物件の近くにあるコンビニや銀行・学校など、アイコン付のマップで詳しく表示できます!
【行政情報】
水道料や下水道料・ガス料金など、暮らしに関係のある情報を表示しています。
ローソン 新潟小針五丁目店(コンビニ)まで190m
リオン・ドール 寺尾店(スーパー)まで770m
JA新潟厚生連 新潟医療センター(病院)まで590m
ドラッグ・トップス小針店(ドラッグストア)まで314m
新潟市立小針小学校(学校)まで485m
新潟市立小針中学校(学校)まで780m
小針パステルこども園(学校)まで619m
小針郵便局(郵便局)まで941m

※カメラのアイコンがある場合は、マウスをポイントするとその施設の画像がご覧いただけます。


担当取扱い店舗情報

取扱い店舗画像
株式会社アップデート不動産
TEL: 0258-94-4638
所在地: 新潟県長岡市古正寺3-116
交通:
営業時間: 10:00~17:00/定休日:水・木 年末年始 夏季冬季GW
免許番号: 新潟県知事(2)第5485号 この会社の情報を詳しく見る
所属団体名: 公社 新潟県宅地建物取引協会 長岡支部
取引態様: 一般