物件掲載企業数:301|賃貸物件:3,289件|売買物件:3,252件|今週の登録物件:351
閲覧中のブラウザ(インターネットエクスプローラー)は非推奨ブラウザです。
物件が正しく表示されなかったり、正しく検索されない場合があります。最新のブラウザ(Google Chrome・Edgeなど)にてご利用お願いいたします。
  

新潟県長岡市中沢2丁目1146番4 新築一戸建て 4LDK 27,800,000円の物件情報

2026年8月完成予定。南道路に面した新築戸建。LDK16帖のゆとりあるリビング。隣には5帖の洋風和室。対面式カウンターキッチンでリビングを見渡せる設計

物件名/所在地 詳細 価格
中沢2丁目 新築戸建②
新潟県長岡市中沢2丁目1146番4
  • 土地面積
    :158.89㎡ /48.06坪
  • 建物面積
    :101.25㎡ /30.62坪
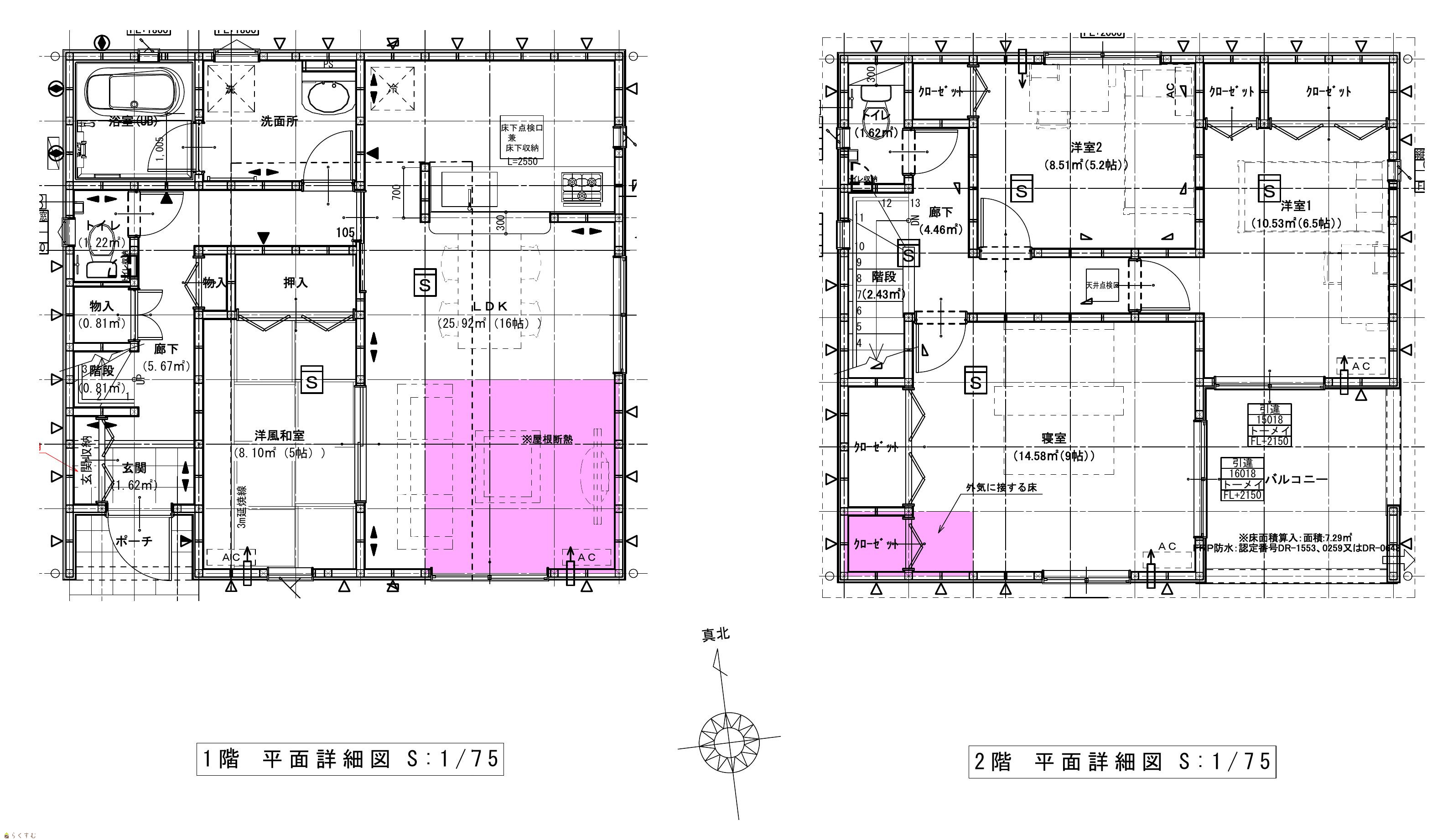
  • 間取り
    :4LDK
  • 築年月
    :2026年8月
27,800,000
  • 中沢2丁目 新築戸建②
    有限会社 ブライトサクセス
  • この物件を問い合わせる/無料
  • TEL: 0258-35-2220

物件画像

外観 間取り
物件画像
※画像クリックで拡大表示
現地写真
物件画像
※画像クリックで拡大表示
間取り
詳細画像
動画


物件概要

■ アクロスプラザ長岡まで車で約5分 ■ システムキッチン・浄水器付き ■ 浴室乾燥機・シャンプードレッサーなど水回り設備充実 ■ トイレ2か所で朝の時間帯にも使いやすい配置 ■ 各室収納に加え床下収納を確保 ■ モニター付きインターホン・防犯カメラなど防犯面にも配慮
物件コード 00320-200249
物件名 中沢2丁目 新築戸建②
交通 駅:信越線 長岡駅から徒歩33分、バス:中沢から徒歩4分
物件所在地 新潟県長岡市中沢2丁目1146番4
物件種別 新築一戸建て
構造 木造 階建 地上2階建
建ぺい率/容積率 60%/160%
建物面積 計 101.25㎡ /30.62坪
土地面積 158.89㎡ /48.06坪
築年月 2026年8月完成予定
入居(引き渡し)時期 2026年8月予定
用途地域 第1種中高層住居専用地域 地目 宅地
都市計画 市街化区域 学校区 栖吉小学校(660m)・栖吉中学校(815m)
形状 間口 9.35m × 奥行 16.99m 道路 南側前面道路幅員4m
私道 218平米 持分有1/14 その他の制限 【法令】 第2種高度地区【その他制限事項】容積率:前面道路幅員制限 法第22条区域
  • 中沢2丁目 新築戸建②
    有限会社 ブライトサクセス
  • この物件を問い合わせる/無料
  • TEL: 0258-35-2220

物件詳細情報

所在階/階数 - 号室 -
販売価格 27,800,000円 方位
間取り 4LDK (和室:5畳) (洋室:9、6.5、5.2)
LDK16
ルーフバルコニー約7.29平米有り
専有面積 - バルコニー面積 -
その他面積 - 駐車場 -
管理費 - 修繕積立金 -
現況 指定なし
仲介手数料 983,400円
利用制限 -
設備 整形地、前面道路6m以上、日当り良好、閑静な住宅街、設計住宅性能評価付き、フラット35S適合、LDK15畳以上、駐車場3台以上、南向き、庭あり、TVインターホン、複層ガラス、ディンプルキー、システムキッチン、カウンターキッチン、浄水器、3口コンロ、浴室暖房乾燥機、バス1坪以上、温水洗浄便座、シャワー付き洗面台、24時間換気システム、省エネ給湯、ルーフバルコニー、都市ガス、上水道、下水道、全居室収納あり、床下収納
取引態様 仲介
備考 -
取り扱い会社

有限会社 ブライトサクセス

新潟県長岡市新町1-1-2

情報登録日 2026/05/12 次回更新予定日 2026/05/30
取引条件有効期限 2027/03/06
  • 中沢2丁目 新築戸建②
    有限会社 ブライトサクセス
  • この物件を問い合わせる/無料
  • TEL: 0258-35-2220

この物件の地図・周辺情報・行政情報

この物件の周辺情報・行政情報を詳しく見る
【周辺情報】
物件の近くにあるコンビニや銀行・学校など、アイコン付のマップで詳しく表示できます!
【行政情報】
水道料や下水道料・ガス料金など、暮らしに関係のある情報を表示しています。
セブン-イレブン 長岡中沢4丁目店(コンビニ)まで810m
クスリのアオキ美沢店(ドラッグストア)まで1300m
長岡栖吉郵便局(郵便局)まで1100m
原信 美沢店(スーパー)まで1300m

※カメラのアイコンがある場合は、マウスをポイントするとその施設の画像がご覧いただけます。


担当取扱い店舗情報

取扱い店舗画像
有限会社 ブライトサクセス
TEL: 0258-35-2220
所在地: 新潟県長岡市新町1-1-2
交通: 長岡駅
営業時間: 午前10時00分~午後7時 /定休日:オンラインサービス:午前9時30分~午後9時
免許番号: 新潟県知事(1)第5629号 この会社の情報を詳しく見る
所属団体名: 公社 新潟県宅地建物取引協会 新潟支部
取引態様: 仲介
ホームページ: https://bright-success.net/