物件掲載企業数:301|賃貸物件:3,175件|売買物件:3,245件|今週の登録物件:72
閲覧中のブラウザ(インターネットエクスプローラー)は非推奨ブラウザです。
物件が正しく表示されなかったり、正しく検索されない場合があります。最新のブラウザ(Google Chrome・Edgeなど)にてご利用お願いいたします。
  

新潟県長岡市新保1丁目6-3 新築一戸建て 3LDK 23,300,000円の物件情報

令和8年10月完成予定【完成前なので好みのデザイン選べます!】住宅街が広がる閑静な街並み。徒歩15分圏内に原信・ドン・キホーテ・ニトリやジョーシンなどショッピング施設が充実♪長岡バイパス・東幹線86号線が近くマイカー通勤もスムーズ。

物件名/所在地 詳細 価格
長岡市新保1丁目 Bright新築戸建
新潟県長岡市新保1丁目6-3
  • 土地面積
    :138㎡ /41.74坪
  • 建物面積
    :86.11㎡ /26.04坪
  • 間取り
    :3LDK
  • 築年月
    :2026年10月
23,300,000
  • 長岡市新保1丁目 Bright新築戸建
    有限会社 ブライトサクセス
  • この物件を問い合わせる/無料
  • TEL: 0258-35-2220

物件画像

外観 間取り
物件画像
※画像クリックで拡大表示
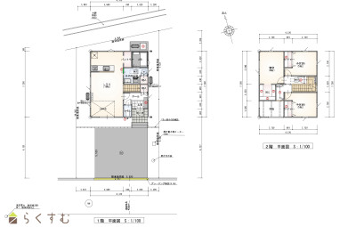
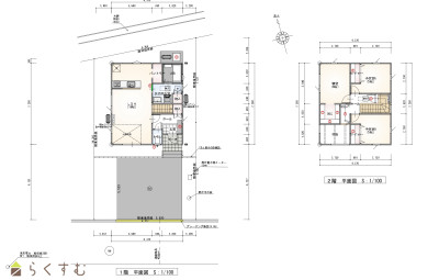
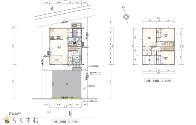
完成予想外観
物件画像
※画像クリックで拡大表示
完成予想間取り
詳細画像
動画


物件概要

南を空けた配置がしやすい、採光にこだわった家づくりが可能。富曽亀小学校・東北中学校まで徒歩10分圏内で通学も安心。
物件コード 00320-200133
物件名 長岡市新保1丁目 Bright新築戸建
交通 駅:信越線 北長岡駅から徒歩17分、バス:新保1丁目から徒歩3分
物件所在地 新潟県長岡市新保1丁目6-3
物件種別 新築一戸建て
構造 木造 階建 地上2階建
建ぺい率/容積率 60%/200%
建物面積 計 86.11㎡ /26.04坪
土地面積 138㎡ /41.74坪
築年月 2026年10月完成予定
入居(引き渡し)時期 相談
用途地域 第1種中高層住居専用地域 地目 宅地
都市計画 市街化区域 学校区 富曾亀小学校(501m)・東北中学校(760m)
形状 間口 9.1m 道路 前面道路幅員4.0m
私道 - その他の制限 -
  • 長岡市新保1丁目 Bright新築戸建
    有限会社 ブライトサクセス
  • この物件を問い合わせる/無料
  • TEL: 0258-35-2220

物件詳細情報

所在階/階数 - 号室 -
販売価格 23,300,000円 方位
間取り 3LDK (洋室:6.0、5.0、5.0)
LDK16
専有面積 - バルコニー面積 -
その他面積 - 駐車場 -
管理費 - 修繕積立金 -
現況 指定なし
仲介手数料 834,900円
利用制限 -
設備 整形地、日当り良好、閑静な住宅街、スーパー近く、LDK15畳以上、全室フローリング、駐車場2台以上、南向き、TVインターホン、複層ガラス、システムキッチン、カウンターキッチン、IHクッキングヒーター、バス1坪以上、シャワー付き洗面台、オール電化、省エネ給湯、高気密高断熱住宅、上水道、下水道、ウォークインクローゼット、全居室収納あり
取引態様 一般
備考 -
取り扱い会社

有限会社 ブライトサクセス

新潟県長岡市新町1-1-2

情報登録日 2026/04/20 次回更新予定日 2026/05/21
取引条件有効期限 2026/04/27
  • 長岡市新保1丁目 Bright新築戸建
    有限会社 ブライトサクセス
  • この物件を問い合わせる/無料
  • TEL: 0258-35-2220

この物件の地図・周辺情報・行政情報

この物件の周辺情報・行政情報を詳しく見る
【周辺情報】
物件の近くにあるコンビニや銀行・学校など、アイコン付のマップで詳しく表示できます!
【行政情報】
水道料や下水道料・ガス料金など、暮らしに関係のある情報を表示しています。
セブン-イレブン 長岡永田店(コンビニ)まで350m
良食生活館 川崎店(スーパー)まで590m
ドラッグトップス 新保薬局(ドラッグストア)まで810m
大光銀行 新保支店(銀行)まで200m
長岡永田郵便局(郵便局)まで280m

※カメラのアイコンがある場合は、マウスをポイントするとその施設の画像がご覧いただけます。


担当取扱い店舗情報

取扱い店舗画像
有限会社 ブライトサクセス
TEL: 0258-35-2220
所在地: 新潟県長岡市新町1-1-2
交通: 長岡駅
営業時間: 午前10時00分~午後7時 /定休日:オンラインサービス:午前9時30分~午後9時
免許番号: 新潟県知事(1)第5629号 この会社の情報を詳しく見る
所属団体名: 公社 新潟県宅地建物取引協会 新潟支部
取引態様: 一般
ホームページ: https://bright-success.net/