物件掲載企業数:297|賃貸物件:3,620件|売買物件:3,322件|今週の登録物件:244
閲覧中のブラウザ(インターネットエクスプローラー)は非推奨ブラウザです。
物件が正しく表示されなかったり、正しく検索されない場合があります。最新のブラウザ(Google Chrome・Edgeなど)にてご利用お願いいたします。
  

新潟県上越市富岡1874-3 中古一戸建て 2LDK 15,000,000円の物件情報

上越IC近くで交通アクセス良好!

物件名/所在地 詳細 価格
富岡 売店舗
新潟県上越市富岡1874-3
  • 土地面積
    :182.57㎡ /55.22坪
  • 建物面積
    :134.61㎡ /40.71坪
  • 間取り
    :2LDK
  • 築年月
    :1992年4月
15,000,000
  • 富岡 売店舗
    上越宅地販売株式会社
  • この物件を問い合わせる/無料
  • TEL: 025-522-3838

物件画像

外観 間取り
物件画像
※画像クリックで拡大表示
外観
物件画像
※画像クリックで拡大表示
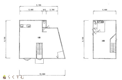
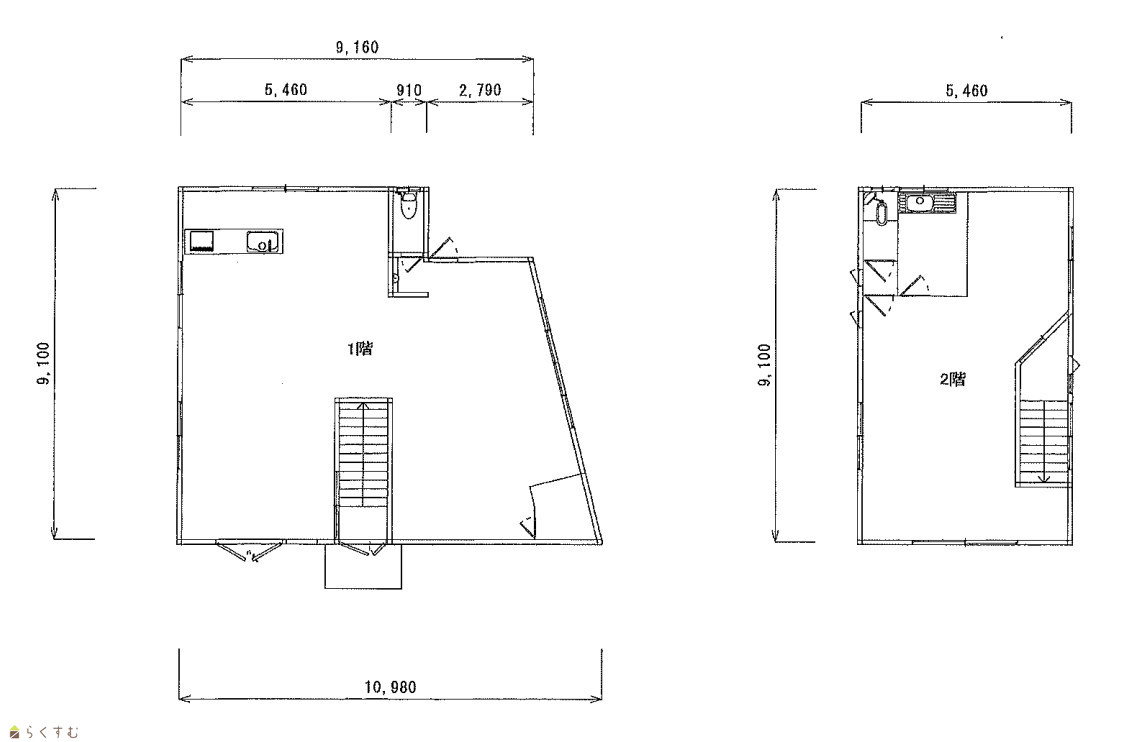
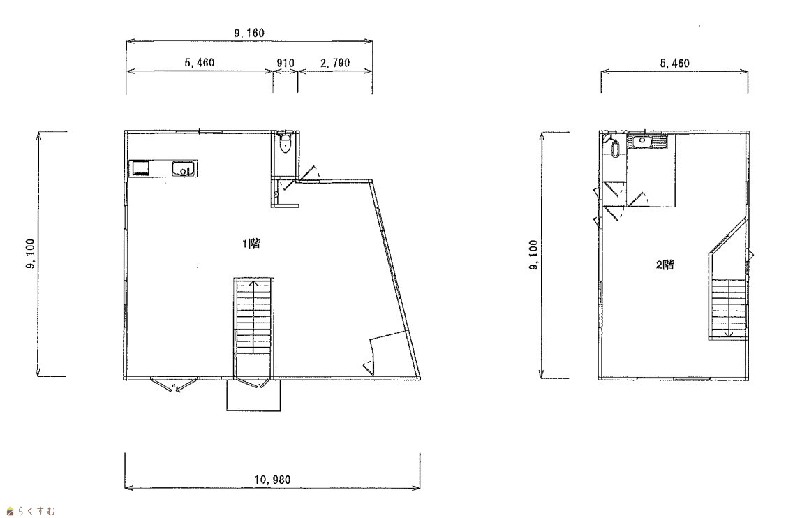
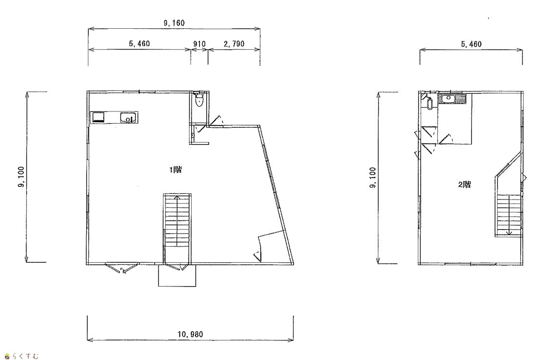
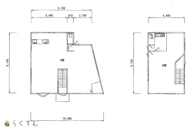
間取図
詳細画像


物件概要

物件コード 00308-200245
物件名 富岡 売店舗
交通 駅:妙高はねうまライン 春日山駅から徒歩36分、バス:富岡十字路から徒歩5分
物件所在地 新潟県上越市富岡1874-3
物件種別 中古一戸建て
構造 木造 階建 地上2階建
建ぺい率/容積率 50%/80%
建物面積 1階 84.93㎡/ 2階 49.68㎡/ 計 134.61㎡ /40.71坪
土地面積 182.57㎡ /55.22坪
築年月 1992年4月(築33年)
入居(引き渡し)時期 相談
用途地域 第1種低層住居専用地域 地目 宅地
都市計画 市街化区域 学校区 富岡小学校(657m)・城東中学校(3,838m)
形状 - 道路 -
私道 - その他の制限 -
  • 富岡 売店舗
    上越宅地販売株式会社
  • この物件を問い合わせる/無料
  • TEL: 025-522-3838

物件詳細情報

所在階/階数 - 号室 -
販売価格 15,000,000円 方位 -
間取り 2LDK
1階が店舗、2階が事務所となっています。
専有面積 - バルコニー面積 -
その他面積 - 駐車場 -
管理費 - 修繕積立金 -
現況 居住中
仲介手数料 561,000円
利用制限 -
設備 角地、日当り良好、駐車3台以上可能
取引態様 一般
備考 -
取り扱い会社

上越宅地販売株式会社

新潟県上越市南高田町1-2アサノビル1階

情報登録日 2023/12/10 次回更新予定日 2025/12/28
取引条件有効期限 2024/03/31
  • 富岡 売店舗
    上越宅地販売株式会社
  • この物件を問い合わせる/無料
  • TEL: 025-522-3838

この物件の地図・周辺情報・行政情報

この物件の周辺情報・行政情報を詳しく見る
【周辺情報】
物件の近くにあるコンビニや銀行・学校など、アイコン付のマップで詳しく表示できます!
【行政情報】
水道料や下水道料・ガス料金など、暮らしに関係のある情報を表示しています。

担当取扱い店舗情報

取扱い店舗画像
上越宅地販売株式会社
TEL: 025-522-3838
所在地: 新潟県上越市南高田町1-2アサノビル1階
交通: 妙高はねうまライン 南高田駅 徒歩1分
営業時間: 9:00~18:30/定休日:毎週水曜日・GW・夏季・臨時休業(9/21日曜日)・年末年始
免許番号: 新潟県知事(9)第3372号 この会社の情報を詳しく見る
所属団体名: 公社 新潟県宅地建物取引協会 上越支部
取引態様: 一般
ホームページ: http://takuhan.com/