物件掲載企業数:299|賃貸物件:2,912件|売買物件:3,228件|今週の登録物件:350
閲覧中のブラウザ(インターネットエクスプローラー)は非推奨ブラウザです。
物件が正しく表示されなかったり、正しく検索されない場合があります。最新のブラウザ(Google Chrome・Edgeなど)にてご利用お願いいたします。
  

新潟県上越市稲田1丁目3-14 中古一戸建て 7K 1,000,000円の物件情報

☆2軒まとめて売り!町家造りの中古住宅です☆

物件名/所在地 詳細 価格
稲田1丁目
新潟県上越市稲田1丁目3-14
  • 土地面積
    :412.89㎡ /124.89坪
  • 建物面積
    :405.28㎡ /122.59坪
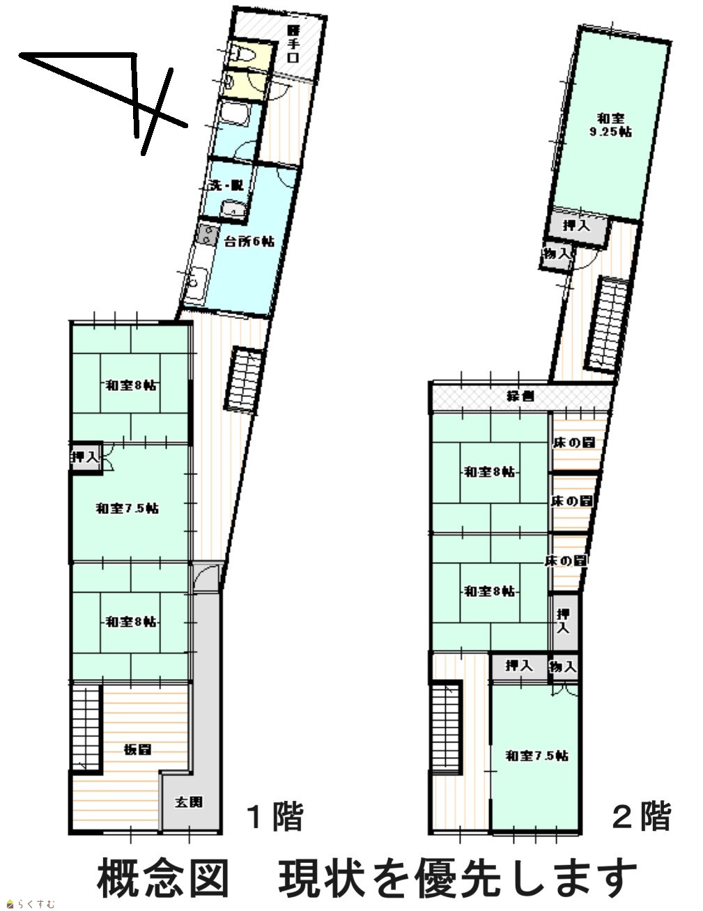
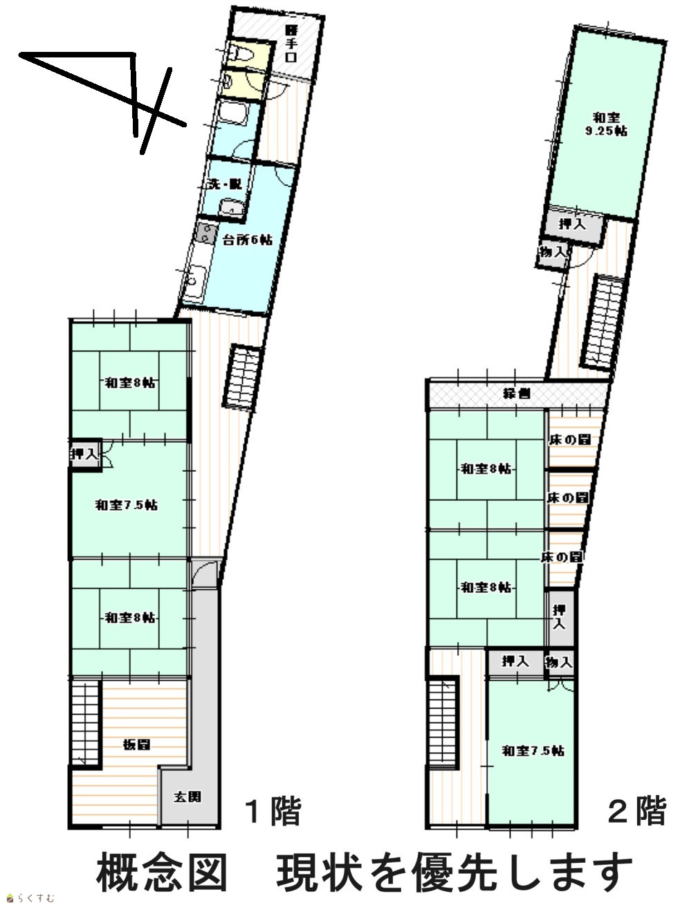
  • 間取り
    :7K
  • 築年月
    :1951年5月
1,000,000
  • 稲田1丁目
    有限会社田村家具店
  • この物件を問い合わせる/無料
  • TEL: 025-523-2438

物件画像

外観 間取り
物件画像
※画像クリックで拡大表示
現地外観
物件画像
※画像クリックで拡大表示
北側(向かって左側)の建物の間取りです
詳細画像


物件概要

物件コード 00277-200315
物件名 稲田1丁目
交通 駅:妙高はねうまライン 高田駅から徒歩41分
物件所在地 新潟県上越市稲田1丁目3-14
物件種別 中古一戸建て
構造 木造 階建 地上2階建
建ぺい率/容積率 60%/200%
建物面積 計 405.28㎡ /122.59坪
土地面積 412.89㎡ /124.89坪
築年月 1951年5月(築74年)
入居(引き渡し)時期 相談
用途地域 第1種住居地域 地目 宅地  (現状:宅地)
都市計画 市街化区域 学校区 稲田小学校(268m)・城東中学校(873m)
形状 間口 13m 道路 西側約6.8m、東側約4.0m
私道 - その他の制限 -
  • 稲田1丁目
    有限会社田村家具店
  • この物件を問い合わせる/無料
  • TEL: 025-523-2438

物件詳細情報

所在階/階数 - 号室 -
販売価格 1,000,000円 方位 -
間取り 7K
専有面積 - バルコニー面積 -
その他面積 - 駐車場 -
管理費 - 修繕積立金 -
現況 空家
仲介手数料 330,000円
利用制限 -
設備 駐車2台可能、エアコンあり、都市ガス、上水道、浄化槽
取引態様 一般
備考 ・建物が2軒付きの中古住宅です!内部で行き来が出来て実用的!
・家の横に駐車スペースがあり、敷地裏には2階建のシャッター車庫もあります!
・下水道負担金は完納済みで、必要の際に下水マスを入れてもらう事ができます☆
・裏庭に畑スペースがあるため、家庭菜園も可能です♪
・玄関から出た前面道路は約6.8mと広く、消雪パイプが設置されているので冬場も安心です☆

※本体代金に別途仲介手数料・諸費用が掛かります。
取り扱い会社

有限会社田村家具店

新潟県上越市稲田4-5-21

情報登録日 2025/12/15 次回更新予定日 2026/04/05
取引条件有効期限 2024/12/31
  • 稲田1丁目
    有限会社田村家具店
  • この物件を問い合わせる/無料
  • TEL: 025-523-2438

この物件の地図・周辺情報・行政情報

この物件の周辺情報・行政情報を詳しく見る
【周辺情報】
物件の近くにあるコンビニや銀行・学校など、アイコン付のマップで詳しく表示できます!
【行政情報】
水道料や下水道料・ガス料金など、暮らしに関係のある情報を表示しています。

担当取扱い店舗情報

取扱い店舗画像
有限会社田村家具店
TEL: 025-523-2438
所在地: 新潟県上越市稲田4-5-21
交通: 高田駅
営業時間: 午前9:00~午後18:00/定休日:水曜日 第1、第3日曜日
免許番号: 新潟県知事(10)第2792号 この会社の情報を詳しく見る
所属団体名: 公社 新潟県宅地建物取引協会 上越支部
取引態様: 一般