物件掲載企業数:299|賃貸物件:2,912件|売買物件:3,228件|今週の登録物件:348
閲覧中のブラウザ(インターネットエクスプローラー)は非推奨ブラウザです。
物件が正しく表示されなかったり、正しく検索されない場合があります。最新のブラウザ(Google Chrome・Edgeなど)にてご利用お願いいたします。
  

新潟県上越市妙油297番1他1筆 売土地・分譲地 250,000円の物件情報

石垣が特徴の住宅用地物件です♪

物件名/所在地 詳細 価格
妙油
新潟県上越市妙油297番1他1筆
  • 土地面積
    :554.43㎡ /167.71坪
  • 坪単価
    :1,490円/坪
  • 建ぺい率
    :70%
  • 容積率
    :200%
250,000
  • 妙油
    有限会社田村家具店
  • この物件を問い合わせる/無料
  • TEL: 025-523-2438

物件画像

外観 間取り
物件画像
※画像クリックで拡大表示
現地外観
物件画像
※画像クリックで拡大表示
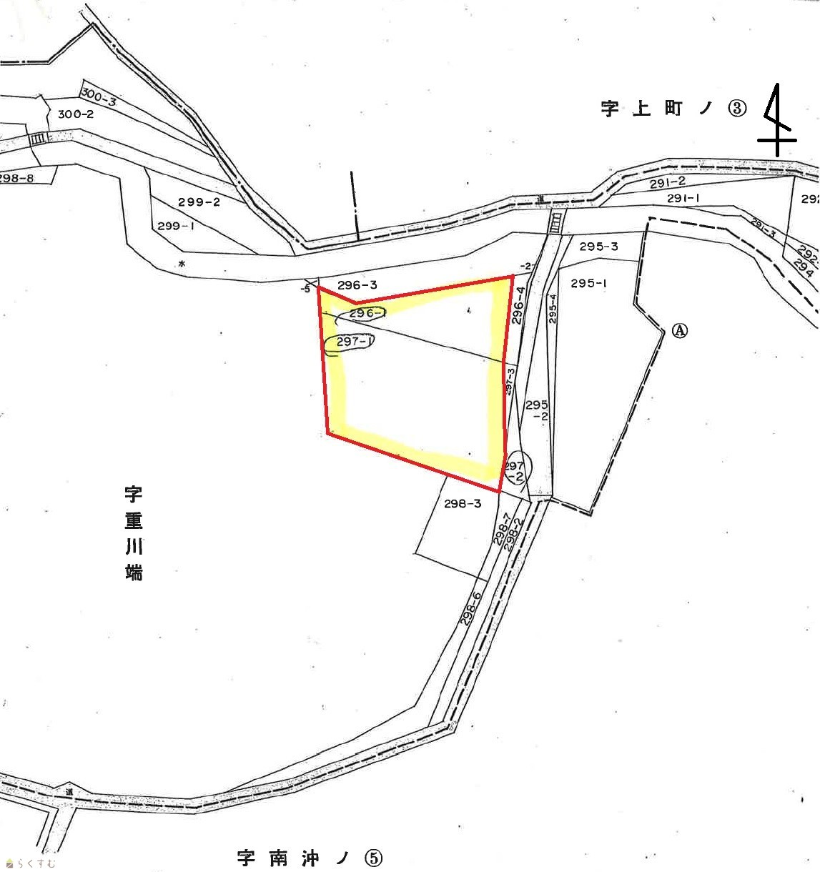
区画図
詳細画像


物件概要

物件コード 00277-200153
物件名 妙油
交通 駅:妙高はねうまライン 南高田駅から徒歩119分
物件所在地 新潟県上越市妙油297番1他1筆
物件種別 売土地・分譲地
物件区分 売土地
構造 - 階建 -
建ぺい率/容積率 70%/200%
建物面積 -
土地面積 554.43㎡ /167.71坪
築年月 -
入居(引き渡し)時期 随時入居(引き渡し)可
用途地域 用途の指定のない地域 地目 宅地  (現状:宅地)
都市計画 市街化調整区域 学校区 高士小学校(580m)・雄志中学校(4,303m)
形状 間口 32.9m 道路 東側約6.4m
私道 - その他の制限 -
  • 妙油
    有限会社田村家具店
  • この物件を問い合わせる/無料
  • TEL: 025-523-2438

物件詳細情報

所在階/階数 - 号室 -
販売価格 250,000円 方位 -
間取り -
専有面積 - バルコニー面積 -
その他面積 - 駐車場 -
管理費 - 修繕積立金 -
現況 -
仲介手数料 330,000円
利用制限 -
設備 角地、学校近く、閑静な住宅街、側溝、LPG、上水道(宅地内)、下水道(宅地内)、住宅向け
取引態様 一般
備考 ・緑に囲まれた100坪以上の住宅用地です!
・石垣があって風情を感じられる見た目です!
・自然に囲まれた心和む立地です♪

※本体代金に別途諸経費が掛かりますので予めご了承下さいませ。
取り扱い会社

有限会社田村家具店

新潟県上越市稲田4-5-21

情報登録日 2025/10/27 次回更新予定日 2026/04/05
取引条件有効期限 2025/12/31
  • 妙油
    有限会社田村家具店
  • この物件を問い合わせる/無料
  • TEL: 025-523-2438

この物件の地図・周辺情報・行政情報

この物件の周辺情報・行政情報を詳しく見る
【周辺情報】
物件の近くにあるコンビニや銀行・学校など、アイコン付のマップで詳しく表示できます!
【行政情報】
水道料や下水道料・ガス料金など、暮らしに関係のある情報を表示しています。

担当取扱い店舗情報

取扱い店舗画像
有限会社田村家具店
TEL: 025-523-2438
所在地: 新潟県上越市稲田4-5-21
交通: 高田駅
営業時間: 午前9:00~午後18:00/定休日:水曜日 第1、第3日曜日
免許番号: 新潟県知事(10)第2792号 この会社の情報を詳しく見る
所属団体名: 公社 新潟県宅地建物取引協会 上越支部
取引態様: 一般