物件掲載企業数:296|賃貸物件:3,132件|売買物件:3,292件|今週の登録物件:270
閲覧中のブラウザ(インターネットエクスプローラー)は非推奨ブラウザです。
物件が正しく表示されなかったり、正しく検索されない場合があります。最新のブラウザ(Google Chrome・Edgeなど)にてご利用お願いいたします。
  

新潟県妙高市坂口新田305-1 中古一戸建て 7DK 23,000,000円の物件情報

裏窓からみえる妙高山が絶景!スキー場にも近い物件です。

物件名/所在地 詳細 価格
R18・妙高市コメリ関山店近く 注目物件!
新潟県妙高市坂口新田305-1
  • 土地面積
    :337.03㎡ /101.95坪
  • 建物面積
    :324.7㎡ /98.22坪
  • 間取り
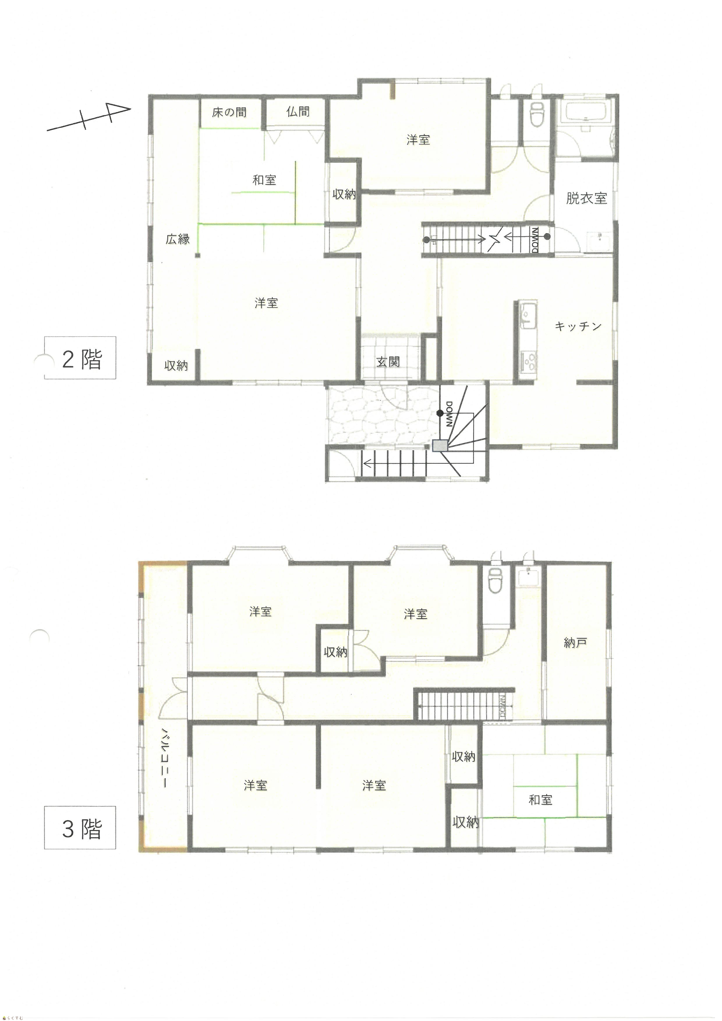
    :7DK
  • 築年月
    :1990年11月
23,000,000
  • R18・妙高市コメリ関山店近く 注目物件!
    楽栄不動産株式会社
  • この物件を問い合わせる/無料
  • TEL: 0255-72-0003

物件画像

外観 間取り
物件画像
※画像クリックで拡大表示
外観
物件画像
※画像クリックで拡大表示
間取り
詳細画像


物件概要

国道18号線沿い、コメリ、とまと近くの好立地♪
物件コード 00265-200196
物件名 R18・妙高市コメリ関山店近く 注目物件!
交通 駅:妙高はねうまライン 関山駅から徒歩35分、バス:坂口新田から徒歩4分
物件所在地 新潟県妙高市坂口新田305-1
物件種別 中古一戸建て
構造 木造 階建 地上3階建
建ぺい率/容積率 70%/200%
建物面積 1階 114.3㎡/ 2階 113.52㎡/ 3階 96.88㎡/ 計 324.7㎡ /98.22坪
土地面積 337.03㎡ /101.95坪
築年月 1990年11月(築35年)
入居(引き渡し)時期 相談
用途地域 用途の指定のない地域 地目 宅地  (現状:宅地)
都市計画 非線引き都市計画区域 学校区 妙高小学校(2,330m)・妙高中学校(2,269m)
形状 間口 40m × 奥行 20m 道路 前面道路:国道18号線、除雪道、歩道除雪あり
私道 - その他の制限 景観法、特定盛土等規制区域
  • R18・妙高市コメリ関山店近く 注目物件!
    楽栄不動産株式会社
  • この物件を問い合わせる/無料
  • TEL: 0255-72-0003

物件詳細情報

所在階/階数 - 号室 -
販売価格 23,000,000円 方位
間取り 7DK
専有面積 - バルコニー面積 -
その他面積 - 駐車場 -
管理費 - 修繕積立金 -
現況 居住中
仲介手数料 825,000円
利用制限 -
設備 日当り良好、駐車3台以上可能、システムキッチン、IHクッキングヒーター、追いだき機能付き、バス1坪以上、温水洗浄便座、トイレ2か所以上、エアコンあり、上水道、下水道、内装リフォーム済み、別荘、田舎暮らし、事業向け
取引態様 一般
備考 -
取り扱い会社

楽栄不動産株式会社

新潟県妙高市雪森645-1

情報登録日 2026/02/25 次回更新予定日 2026/03/12
取引条件有効期限 2026/05/31
  • R18・妙高市コメリ関山店近く 注目物件!
    楽栄不動産株式会社
  • この物件を問い合わせる/無料
  • TEL: 0255-72-0003

この物件の地図・周辺情報・行政情報

この物件の周辺情報・行政情報を詳しく見る
【周辺情報】
物件の近くにあるコンビニや銀行・学校など、アイコン付のマップで詳しく表示できます!
【行政情報】
水道料や下水道料・ガス料金など、暮らしに関係のある情報を表示しています。

担当取扱い店舗情報

取扱い店舗画像
楽栄不動産株式会社
TEL: 0255-72-0003
所在地: 新潟県妙高市雪森645-1
交通: 妙高はねうまライン北井駅
営業時間: 8時~17時/定休日:土・日・祝日、その他夏季・年末年始
免許番号: 新潟県知事(12)第2463号 この会社の情報を詳しく見る
所属団体名: 公社 新潟県宅地建物取引協会 上越支部
取引態様: 一般
ホームページ: https://rakuei.info/