物件掲載企業数:299|賃貸物件:2,912件|売買物件:3,228件|今週の登録物件:351
閲覧中のブラウザ(インターネットエクスプローラー)は非推奨ブラウザです。
物件が正しく表示されなかったり、正しく検索されない場合があります。最新のブラウザ(Google Chrome・Edgeなど)にてご利用お願いいたします。
  

新潟県上越市北城町4丁目8-20 中古一戸建て 6DK 12,800,000円の物件情報

物件名/所在地 詳細 価格
北城町売家
新潟県上越市北城町4丁目8-20
  • 土地面積
    :199㎡ /60.19坪
  • 建物面積
    :255.15㎡ /77.18坪
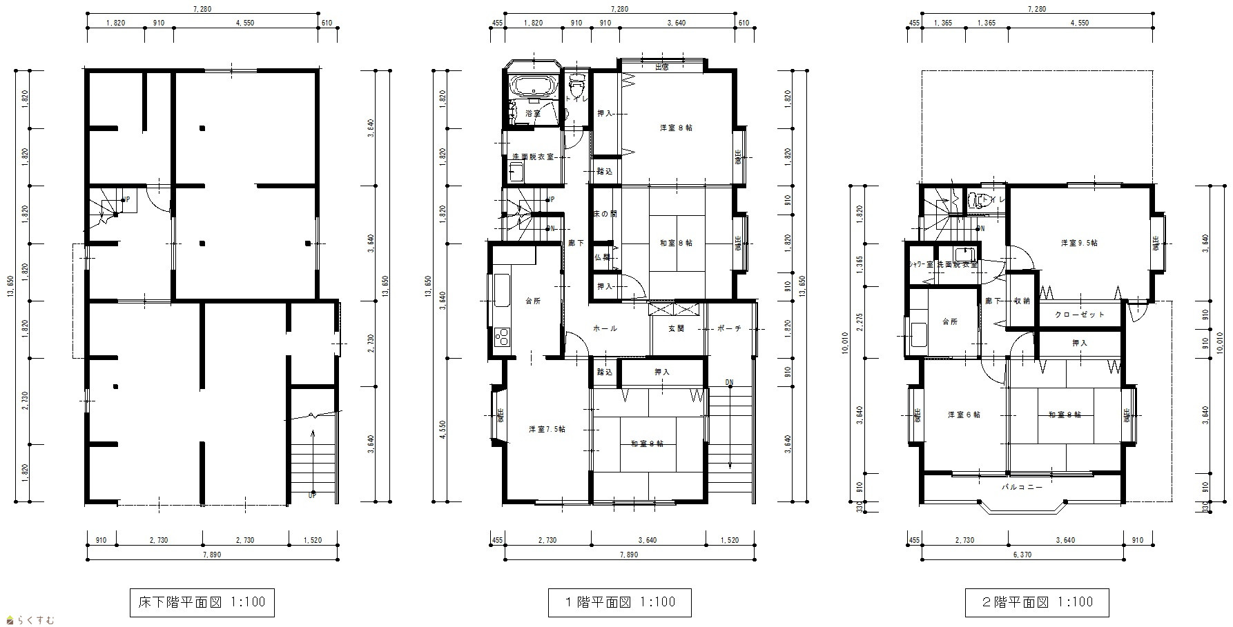
  • 間取り
    :6DK
  • 築年月
    :1993年12月
12,800,000
  • 北城町売家
    株式会社山崎建設
  • この物件を問い合わせる/無料
  • TEL: 0255-72-3129

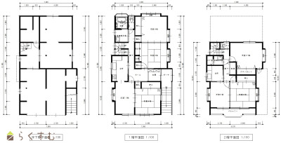
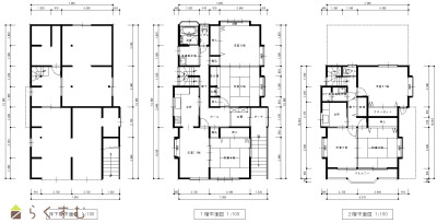
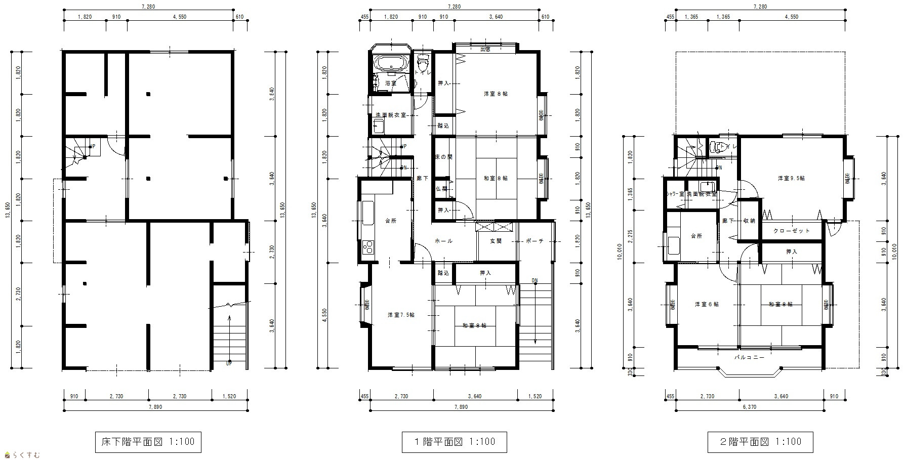
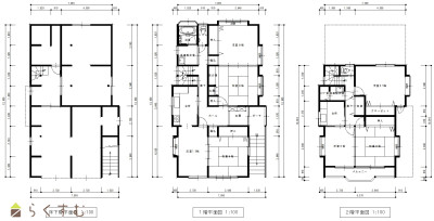
物件画像

外観 間取り
物件画像
※画像クリックで拡大表示
外観
物件画像
※画像クリックで拡大表示
間取
詳細画像


物件概要

物件コード 00259-200052
物件名 北城町売家
交通 駅:妙高はねうまライン 高田駅から徒歩25分、バス:北城町から徒歩3分
物件所在地 新潟県上越市北城町4丁目8-20
物件種別 中古一戸建て
構造 木造鉄筋コン 階建 地上3階建
建ぺい率/容積率 50%/80%
建物面積 1階 97.69㎡/ 2階 94.88㎡/ 3階 62.58㎡/ 計 255.15㎡ /77.18坪
土地面積 199㎡ /60.19坪
築年月 1993年12月(築32年)
入居(引き渡し)時期 随時入居(引き渡し)可
用途地域 第1種住居地域 地目 宅地  (現状:宅地)
都市計画 市街化区域 学校区 大町小学校(1,283m)・城北中学校(798m)
形状 - 道路 南側
私道 - その他の制限 -
  • 北城町売家
    株式会社山崎建設
  • この物件を問い合わせる/無料
  • TEL: 0255-72-3129

物件詳細情報

所在階/階数 - 号室 -
販売価格 12,800,000円 方位
間取り 6DK (和室:8畳、8畳、8畳) (洋室:9.5、8、6)
DK7.5
専有面積 - バルコニー面積 -
その他面積 - 駐車場 -
管理費 - 修繕積立金 -
現況 空家
仲介手数料 なし
利用制限 -
設備 南向き、都市ガス、上水道、下水道
取引態様 売主
備考 -
取り扱い会社

株式会社山崎建設

新潟県妙高市東陽町2-20

情報登録日 2024/06/04 次回更新予定日 2026/04/05
取引条件有効期限 2024/09/04
  • 北城町売家
    株式会社山崎建設
  • この物件を問い合わせる/無料
  • TEL: 0255-72-3129

この物件の地図・周辺情報・行政情報

この物件の周辺情報・行政情報を詳しく見る
【周辺情報】
物件の近くにあるコンビニや銀行・学校など、アイコン付のマップで詳しく表示できます!
【行政情報】
水道料や下水道料・ガス料金など、暮らしに関係のある情報を表示しています。
セブン-イレブン 上越北城店(コンビニ)まで660m
ナルス 北城店(スーパー)まで650m
クスリのアオキ 北城店(ドラッグストア)まで230m
内科さとう医院(病院)まで50m
セブン銀行ATM(銀行)まで630m
高土町郵便局(郵便局)まで640m

※カメラのアイコンがある場合は、マウスをポイントするとその施設の画像がご覧いただけます。


担当取扱い店舗情報

取扱い店舗画像
株式会社山崎建設
TEL: 0255-72-3129
所在地: 新潟県妙高市東陽町2-20
交通: えちごトキめき鉄道 新井駅から徒歩25分
営業時間: 8:00〜17:00/定休日:土日祝日
免許番号: 新潟県知事(8)第3467号 この会社の情報を詳しく見る
所属団体名: 公益社団法人新潟県宅地建物取引協会 上越支部
取引態様: 売主
ホームページ: https://www.yamazaki-k.co.jp/concept/