物件掲載企業数:299|賃貸物件:2,912件|売買物件:3,228件|今週の登録物件:348
閲覧中のブラウザ(インターネットエクスプローラー)は非推奨ブラウザです。
物件が正しく表示されなかったり、正しく検索されない場合があります。最新のブラウザ(Google Chrome・Edgeなど)にてご利用お願いいたします。
  

新潟県糸魚川市中央2丁目158番2、155番2 新築一戸建て 3LDK 32,890,000円の物件情報

すぐに入居可能!糸魚川駅、糸魚川小学校まで徒歩5分以内の距離。保育園、市役所、図書館、公園なども徒歩圏内で便利な周辺環境!

物件名/所在地 詳細 価格
糸魚川市中央B 新築戸建住宅
新潟県糸魚川市中央2丁目158番2、155番2
  • 土地面積
    :268.67㎡ /81.27坪
  • 建物面積
    :92.73㎡ /28.05坪
  • 間取り
    :3LDK
  • 築年月
    :2025年8月
32,890,000
  • 糸魚川市中央B 新築戸建住宅
    株式会社 ステーツ
  • この物件を問い合わせる/無料
  • TEL: 080-2281-7963

物件画像

外観 間取り
物件画像
※画像クリックで拡大表示
外観
物件画像
※画像クリックで拡大表示
間取り
詳細画像


物件概要

1階の寝室、回遊性のあるキッチン、十分な広さの洗面コーナー、外部収納、寝室と独立させたWICなど無駄のない間取りで心地よく暮らせる家族想いの住まいです。
物件コード 00243-200021
物件名 糸魚川市中央B 新築戸建住宅
交通 駅:北陸新幹線 糸魚川駅から徒歩5分
物件所在地 新潟県糸魚川市中央2丁目158番2、155番2
物件種別 新築一戸建て
構造 木造 階建 地上2階建
建ぺい率/容積率 60%/200%
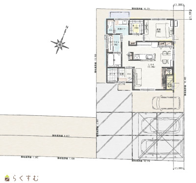
建物面積 1階 65.41㎡/ 2階 27.32㎡/ 計 92.73㎡ /28.05坪
土地面積 268.67㎡ /81.27坪
築年月 2025年8月(築7ヶ月)
入居(引き渡し)時期 随時入居(引き渡し)可
用途地域 第1種住居地域 地目 宅地
都市計画 非線引き都市計画区域 学校区 糸魚川小学校(250m)・糸魚川中学校(900m)
形状 - 道路 南西 7.8m 公道 接面2.5m
私道 - その他の制限 -
  • 糸魚川市中央B 新築戸建住宅
    株式会社 ステーツ
  • この物件を問い合わせる/無料
  • TEL: 080-2281-7963

物件詳細情報

所在階/階数 - 号室 -
販売価格 32,890,000円 方位 -
間取り 3LDK (洋室:5.2、5.2、6.0)
LDK15.8
専有面積 - バルコニー面積 -
その他面積  納戸 1帖 駐車場 -
管理費 - 修繕積立金 -
現況 指定なし
仲介手数料 なし
利用制限 -
設備 前面道路6m以上、日当り良好、閑静な住宅街、設計住宅性能評価付き、耐震構造、瑕疵担保保険付き、建物確認・完了検査済証あり、LDK15畳以上、全室フローリング、駐車場3台以上、複層ガラス、ディンプルキー、システムキッチン、カウンターキッチン、IHクッキングヒーター、食器洗浄乾燥機、追いだき機能付き、浴室暖房乾燥機、バス1坪以上、温水洗浄便座、シャワー付き洗面台、エアコン、24時間換気システム、オール電化、省エネ給湯、高気密高断熱住宅、都市ガス、上水道、下水道、電気、ウォークインクローゼット、全居室収納あり、照明器具付き、即引き渡し可能
取引態様 売主
備考 《物件の特徴》
■ホワイトを基調に木目の美しいダーク系のアクセントカラーで濃淡をつけた大人な雰囲気の外観デザイン
■キッチンを中心に生活動線を意識した間取り。
■キッチンは行き止まりのない”ペニンシュラ型タイプ”を採用。円を描けるような動線で家事がラクに♪
■リビングの一部に間接照明を取り入れ、特別な空間に仕上げました。
■タイヤ、スノーダンプ、ガーデニング用品など外回りがすっきりと片付く外部収納付

◆最高ランク「耐震等級3」の地震に強い構造
◆住宅性能評価付き!高断熱性能の基準「HEAT20 G2グレード」の家
◆住み始めてからも安心・充実保証「構造 最長60年&無償点検」
  住宅設備も10年保証でアフターケアも万全です!
取り扱い会社

株式会社 ステーツ

新潟県新潟市江南区東早通1-1-40

情報登録日 2026/02/16 次回更新予定日 2026/04/05
取引条件有効期限 2026/12/31
  • 糸魚川市中央B 新築戸建住宅
    株式会社 ステーツ
  • この物件を問い合わせる/無料
  • TEL: 080-2281-7963

この物件の地図・周辺情報・行政情報

この物件の周辺情報・行政情報を詳しく見る
【周辺情報】
物件の近くにあるコンビニや銀行・学校など、アイコン付のマップで詳しく表示できます!
【行政情報】
水道料や下水道料・ガス料金など、暮らしに関係のある情報を表示しています。
イオンタウン糸魚川(スーパー)まで1200m
ハピー 奴奈川店(スーパー)まで850m
セブン-イレブン 糸魚川中央店(コンビニ)まで56m
ドラッグ・トップス奴奈川店(ドラッグストア)まで900m
糸魚川市立糸魚川中学校(学校)まで900m
糸魚川市立糸魚川小学校(学校)まで250m
糸魚川幼稚園(市区町村機関)まで800m
糸魚川市役所(市区町村機関)まで290m
糸魚川市民図書館(市区町村機関)まで350m
駅前海望公園(公園)まで800m
なかむらこどもクリニック(小児科)(病院)まで1000m

※カメラのアイコンがある場合は、マウスをポイントするとその施設の画像がご覧いただけます。


担当取扱い店舗情報

取扱い店舗画像
株式会社 ステーツ
TEL: 025-383-3003
所在地: 新潟県新潟市江南区東早通1-1-40
交通:
営業時間: 10:00~18:00/定休日:水・木曜日
免許番号: 国土交通大臣(5)第6810号 この会社の情報を詳しく見る
所属団体名: 公社 新潟県宅地建物取引協会 新潟支部
取引態様: 売主
ホームページ: https://www.states.co.jp/