物件掲載企業数:297|賃貸物件:3,613件|売買物件:3,319件|今週の登録物件:251
閲覧中のブラウザ(インターネットエクスプローラー)は非推奨ブラウザです。
物件が正しく表示されなかったり、正しく検索されない場合があります。最新のブラウザ(Google Chrome・Edgeなど)にてご利用お願いいたします。
  

新潟県長岡市宮内2丁目10-18付近 新築一戸建て 4LDK 27,800,000円の物件情報

\駐車場完備!長岡のお店で相談できます/ 【当日予約OK】■宮内駅徒歩約4分 ■スーパーやコンビニまで徒歩10分圏内 ■全居室収納+WIC ■上組小・宮内中学校区

物件名/所在地 詳細 価格
(新築住宅)長岡市宮内 第1
新潟県長岡市宮内2丁目10-18付近
  • 土地面積
    :173.62㎡ /52.52坪
  • 建物面積
    :98.82㎡ /29.89坪
  • 間取り
    :4LDK
  • 築年月
    :2025年11月
27,800,000
  • (新築住宅)長岡市宮内 第1
    新潟土地建物販売センター 株式会社
  • この物件を問い合わせる/無料
  • TEL: 0258-89-8245

物件画像

外観 間取り
物件画像
※画像クリックで拡大表示
完成しました!お気軽にお問い合わせください♪
物件画像
※画像クリックで拡大表示
全居室収納付♪住み心地のいい大きさ。お問い合わせ下さい♪
詳細画像


物件概要

◆毎日営業中!当日のご内覧大歓迎!いつでもご案内します!!◆急なご来店でも相談出来ます◆豊富な知識と経験を基に丁寧にアドバイスします!先ずはお電話、メール、LINEにてお問合せ下さい♪
物件コード 00239-200591
物件名 (新築住宅)長岡市宮内 第1
交通 駅:信越線 宮内駅から徒歩4分、バス:宮内駅前から徒歩4分
物件所在地 新潟県長岡市宮内2丁目10-18付近
物件種別 新築一戸建て
構造 木造 階建 地上2階建
建ぺい率/容積率 60%/200%
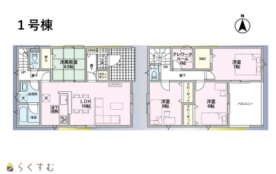
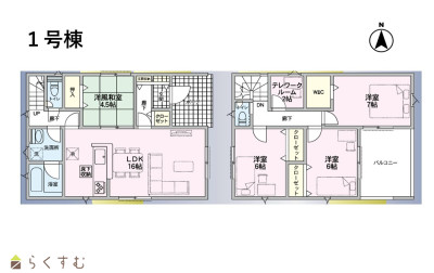
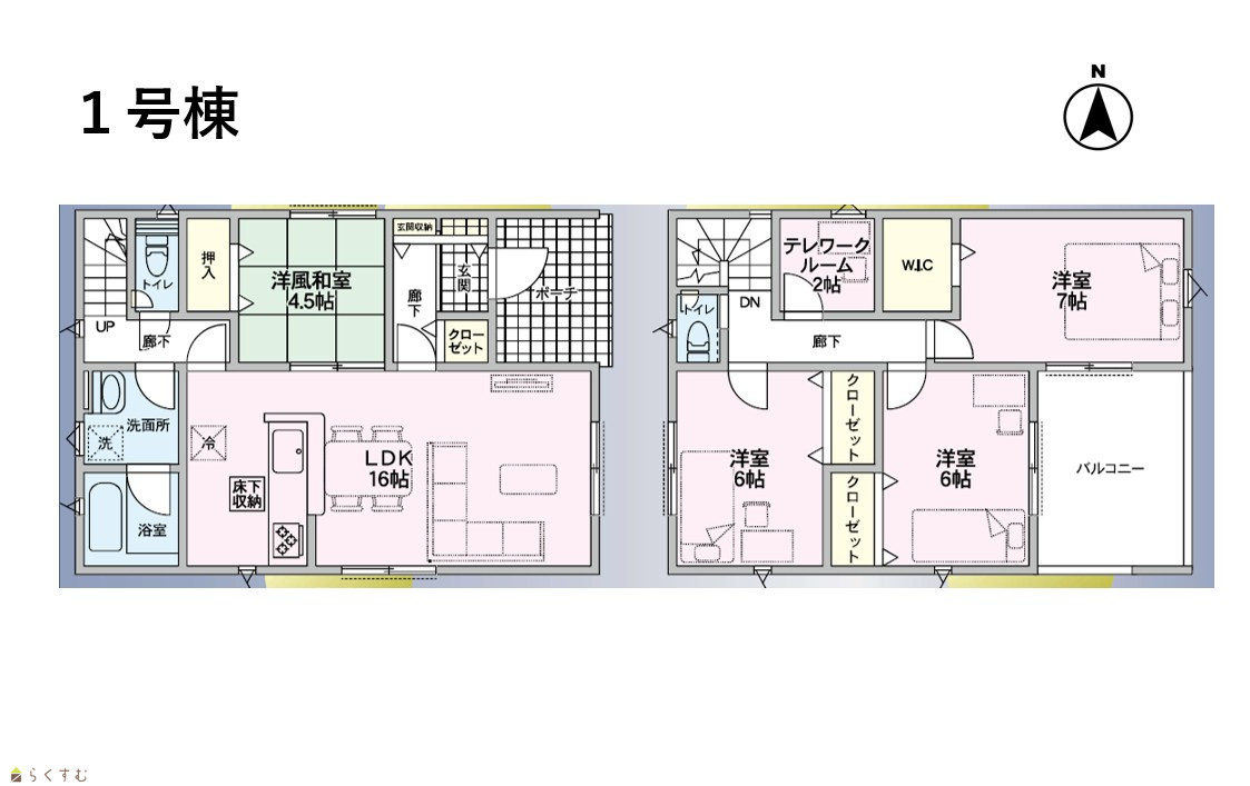
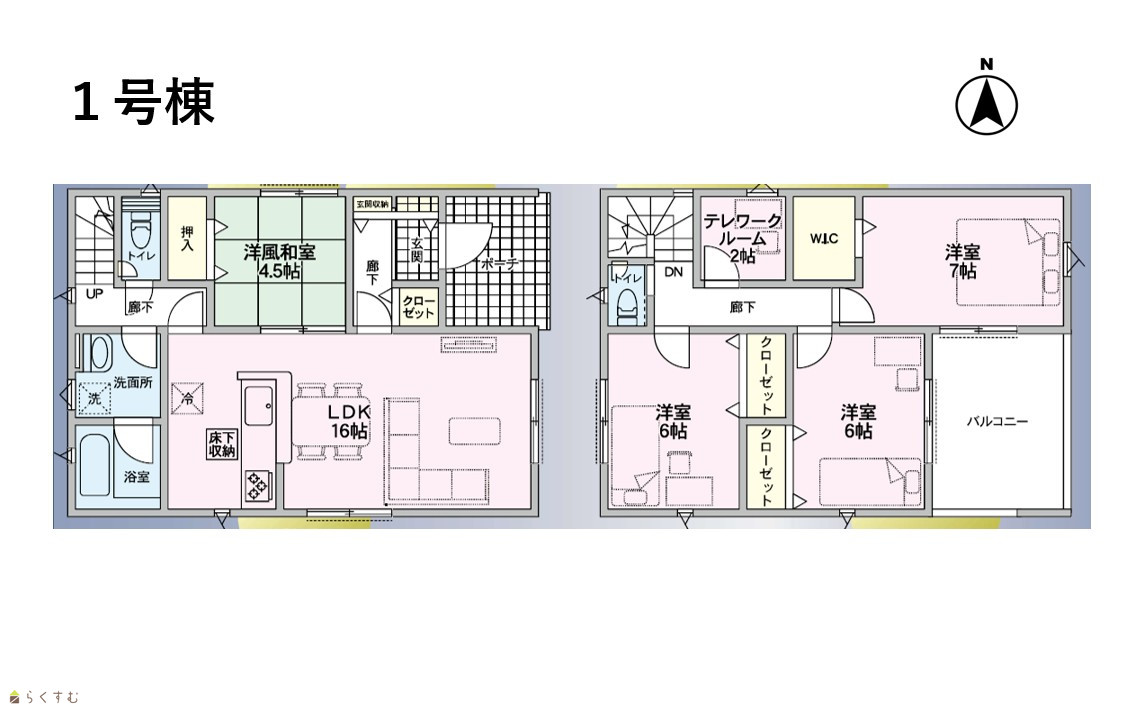
建物面積 1階 51.84㎡/ 2階 46.98㎡/ 計 98.82㎡ /29.89坪
土地面積 173.62㎡ /52.52坪
築年月 2025年11月(築1ヶ月)
入居(引き渡し)時期 随時入居(引き渡し)可
用途地域 第1種住居地域 地目 宅地
都市計画 市街化区域 学校区 上組小学校(1,500m)・宮内中学校(850m)
形状 間口 16.5m × 奥行 9.9m 道路 北側4.0m公道
私道 - その他の制限 準防火地域
  • (新築住宅)長岡市宮内 第1
    新潟土地建物販売センター 株式会社
  • この物件を問い合わせる/無料
  • TEL: 0258-89-8245

物件詳細情報

所在階/階数 - 号室 -
販売価格 27,800,000円 方位
間取り 4LDK (和室:4.5畳) (洋室:7.0、6.0、6.0)
LDK16
2階に2.0帖のテレワークルーム有
専有面積 - バルコニー面積 -
その他面積 - 駐車場 -
管理費 - 修繕積立金 -
現況 空家
仲介手数料 983,400円
利用制限 -
設備 整形地、日当り良好、閑静な住宅街、スーパー近く、耐震構造、LDK15畳以上、駐車場2台以上、南向き、TVインターホン、複層ガラス、ディンプルキー、システムキッチン、カウンターキッチン、浄水器、3口コンロ、ガスコンロ設置済み、追いだき機能付き、浴室暖房乾燥機、バス1坪以上、温水洗浄便座、シャワー付き洗面台、24時間換気システム、省エネ給湯、高気密高断熱住宅、都市ガス、上水道、下水道、電気、ウォークインクローゼット、全居室収納あり、床下収納、シューズBOX、即引き渡し可能、バリアフリー
取引態様 一般
備考 【教育】
上組小学校 約1500m 徒歩約19分
宮内中学校 約850m 徒歩約11分

【交通】
JR上越線/信越本線 宮内駅 徒歩約4分
越後交通 宮内駅前 徒歩約4分

■■売って終わりにしない、充実のアフターサービス体制■■
◎アフターサービスの専門スタッフが、迅速・丁寧にご対応
◎独自のメンテナンス制度で設備の故障や建物の傷を無償修理
◎ご購入後のお困り事も、充実した体制で手厚くサポート

■■選べるプレゼント■■
◎エアコンや照明などの新生活に必要な設備を無料でプレゼント
取り扱い会社

新潟土地建物販売センター 株式会社

新潟県長岡市台町1-7-331階

情報登録日 2025/12/19 次回更新予定日 2026/01/04
取引条件有効期限 2025/12/31
  • (新築住宅)長岡市宮内 第1
    新潟土地建物販売センター 株式会社
  • この物件を問い合わせる/無料
  • TEL: 0258-89-8245

この物件の地図・周辺情報・行政情報

この物件の周辺情報・行政情報を詳しく見る
【周辺情報】
物件の近くにあるコンビニや銀行・学校など、アイコン付のマップで詳しく表示できます!
【行政情報】
水道料や下水道料・ガス料金など、暮らしに関係のある情報を表示しています。
セブン-イレブン 長岡宮内駅前通り店(コンビニ)まで420m
原信 宮内店(スーパー)まで690m
第四北越銀行 宮内支店(銀行)まで90m

※カメラのアイコンがある場合は、マウスをポイントするとその施設の画像がご覧いただけます。


担当取扱い店舗情報

取扱い店舗画像
新潟土地建物販売センター 株式会社
TEL: 0258-89-8245
所在地: 新潟県長岡市台町1-7-331階
交通: 長岡駅
営業時間: 9:00~18:00/定休日:なし
免許番号: 新潟県知事(3)第5151号 この会社の情報を詳しく見る
所属団体名: 公社 新潟県宅地建物取引協会 新潟支部
取引態様: 一般
ホームページ: https://niigata-tochitate.jp/