物件掲載企業数:301|賃貸物件:3,175件|売買物件:3,245件|今週の登録物件:72
閲覧中のブラウザ(インターネットエクスプローラー)は非推奨ブラウザです。
物件が正しく表示されなかったり、正しく検索されない場合があります。最新のブラウザ(Google Chrome・Edgeなど)にてご利用お願いいたします。
  

新潟県長岡市川崎1丁目2664-3付近 新築一戸建て 3LDK 35,500,000円の物件情報

\贅沢な広さのエントランスと吹き抜けホールがあるお家/ ■前面道路6m以上の角地 ■駐車3台可能 ■カーテン&LDKエアコン付き ■アクロスプラザ長岡まで徒歩5分

物件名/所在地 詳細 価格
(新築住宅)長岡市川崎1丁目
新潟県長岡市川崎1丁目2664-3付近
  • 土地面積
    :226.78㎡ /68.6坪
  • 建物面積
    :94.39㎡ /28.55坪
  • 間取り
    :3LDK
  • 築年月
    :2024年8月
35,500,000
  • (新築住宅)長岡市川崎1丁目
    新潟土地建物販売センター 株式会社
  • この物件を問い合わせる/無料
  • TEL: 0258-89-8245

物件画像

外観 間取り
物件画像
※画像クリックで拡大表示
庭テラスのある重厚感溢れた外観です。
物件画像
※画像クリックで拡大表示
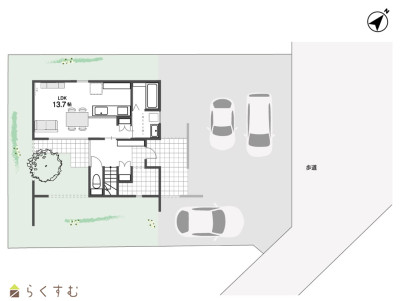
多彩な収納!各室収納・WIC・土間収納完備!
詳細画像


物件概要

■住宅設備はPanasonicで統一 ■家族でバーベキューが楽しめる、アウトドアリビング ■2階ホールには書斎やサンルームあり ■各居室に収納完備 ■屋外アイテムなどの収納に便利な土間収納あり ■火を使わない安心安全なオール電化 ■スーパー・コンビニ・薬局が徒歩9分圏内 ■アクロスプラザ長岡まで徒歩5分
物件コード 00239-200528
物件名 (新築住宅)長岡市川崎1丁目
交通 駅:上越新幹線 長岡駅から徒歩19分、バス:川崎南から徒歩2分
物件所在地 新潟県長岡市川崎1丁目2664-3付近
物件種別 新築一戸建て
構造 木造 階建 地上2階建
建ぺい率/容積率 60%/100%
建物面積 計 94.39㎡ /28.55坪
土地面積 226.78㎡ /68.6坪
築年月 2024年8月(築1年)
入居(引き渡し)時期 随時入居(引き渡し)可
用途地域 第1種低層住居専用地域 地目 宅地
都市計画 市街化区域 学校区 川崎小学校(1,000m)・東北中学校(1,200m)
形状 - 道路 東側16m市道、北側8.5m市道
私道 - その他の制限 法22条
  • (新築住宅)長岡市川崎1丁目
    新潟土地建物販売センター 株式会社
  • この物件を問い合わせる/無料
  • TEL: 0258-89-8245

物件詳細情報

所在階/階数 - 号室 -
販売価格 35,500,000円 方位 南東
間取り 3LDK (洋室:6.5、5.6、5.6)
LDK13.7
専有面積 - バルコニー面積 -
その他面積 - 駐車場 -
管理費 - 修繕積立金 -
現況 空家
仲介手数料 1,237,500円
利用制限 -
設備 角地、前面道路6m以上、日当り良好、閑静な住宅街、スーパー近く、BELS/省エネ基準適合認定建物、フラット35S適合、全室フローリング、天井高2.5m以上、駐車場3台以上、庭あり、TVインターホン、複層ガラス、システムキッチン、カウンターキッチン、IHクッキングヒーター、食器洗浄乾燥機、3口コンロ、追いだき機能付き、バス1坪以上、浴室TV、温水洗浄便座、シャワー付き洗面台、エアコン、24時間換気システム、オール電化、省エネ給湯、高気密高断熱住宅、ウッドデッキ・テラス、上水道、下水道、電気、ウォークインクローゼット、全居室収納あり、床下収納、シューズインクローゼット、シューズBOX、照明器具付き、即引き渡し可能、バリアフリー
取引態様 一般
備考 【教育】
川崎小学校 約1000m 徒歩約13分
東北中学校 約1200m 徒歩約15分

【交通】
JR上越新幹線 長岡駅 徒歩約19分
越後交通バス 川崎南 徒歩約2分

【備考】
※水道加入金:23,800円/一括
取り扱い会社

新潟土地建物販売センター 株式会社

新潟県長岡市台町1-7-331階

情報登録日 2026/04/28 次回更新予定日 2026/05/21
取引条件有効期限 2026/12/31
  • (新築住宅)長岡市川崎1丁目
    新潟土地建物販売センター 株式会社
  • この物件を問い合わせる/無料
  • TEL: 0258-89-8245

この物件の地図・周辺情報・行政情報

この物件の周辺情報・行政情報を詳しく見る
【周辺情報】
物件の近くにあるコンビニや銀行・学校など、アイコン付のマップで詳しく表示できます!
【行政情報】
水道料や下水道料・ガス料金など、暮らしに関係のある情報を表示しています。
ファミリーマート 長岡中沢町店(コンビニ)まで260m
原信 美沢店(スーパー)まで510m
クスリのアオキ 美沢店(ドラッグストア)まで660m

※カメラのアイコンがある場合は、マウスをポイントするとその施設の画像がご覧いただけます。


担当取扱い店舗情報

取扱い店舗画像
新潟土地建物販売センター 株式会社
TEL: 0258-89-8245
所在地: 新潟県長岡市台町1-7-331階
交通: 長岡駅
営業時間: 9:00~18:00/定休日:なし
免許番号: 新潟県知事(3)第5151号 この会社の情報を詳しく見る
所属団体名: 公社 新潟県宅地建物取引協会 新潟支部
取引態様: 一般
ホームページ: https://niigata-tochitate.jp/