物件掲載企業数:299|賃貸物件:2,909件|売買物件:3,224件|今週の登録物件:301
閲覧中のブラウザ(インターネットエクスプローラー)は非推奨ブラウザです。
物件が正しく表示されなかったり、正しく検索されない場合があります。最新のブラウザ(Google Chrome・Edgeなど)にてご利用お願いいたします。
  

新潟県長岡市城岡3丁目11-31付近 新築一戸建て 3LDK 23,800,000円の物件情報

【高性能×高気密×高断熱の北海道仕様住宅】 ■前面道路消雪パイプあり ■二重断熱×トリプルサッシで家中快適 ■エアコン2台付き ■スーパー・コンビニ・薬局まで徒歩6分

物件名/所在地 詳細 価格
長岡市城岡 全2棟 新築住宅
新潟県長岡市城岡3丁目11-31付近
  • 土地面積
    :132.83㎡ /40.18坪
  • 建物面積
    :93.57㎡ /28.3坪
  • 間取り
    :3LDK
  • 築年月
    :2025年7月
23,800,000
  • 長岡市城岡 全2棟 新築住宅
    新潟土地建物販売センター 株式会社
  • この物件を問い合わせる/無料
  • TEL: 0258-89-8245

物件画像

外観 間取り
物件画像
※画像クリックで拡大表示
2号棟 外観
物件画像
※画像クリックで拡大表示
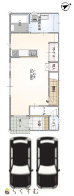
間取り図(1・2号棟共通)
詳細画像


物件概要

■空気環境を整える24時間熱交換換気扇搭載 ■各室収納・LDK収納などの多彩な収納あり ■開放的で明るい吹き抜けのあるLDK ■2箇所にホスクリーン付き!天候に左右されずお洗濯可能
物件コード 00239-200513
物件名 長岡市城岡 全2棟 新築住宅
交通 駅:信越線 北長岡駅から徒歩17分、バス:OM製作所前から徒歩7分
物件所在地 新潟県長岡市城岡3丁目11-31付近
物件種別 新築一戸建て
構造 木造 階建 地上2階建
建ぺい率/容積率 60%/200%
建物面積 計 93.57㎡ /28.3坪
土地面積 132.83㎡ /40.18坪
築年月 2025年7月(築8ヶ月)
入居(引き渡し)時期 随時入居(引き渡し)可
用途地域 準工業地域 地目 宅地
都市計画 市街化区域 学校区 新町小学校(2,100m)・北中学校(1,300m)
形状 - 道路 南東側6.0m公道
私道 - その他の制限 法22条
  • 長岡市城岡 全2棟 新築住宅
    新潟土地建物販売センター 株式会社
  • この物件を問い合わせる/無料
  • TEL: 0258-89-8245

物件詳細情報

所在階/階数 - 号室 -
販売価格 23,800,000円 方位 南西
間取り 3LDK (洋室:7.0、5.3、5.3)
LDK16.5
リビング収納・2階ホール収納・2箇所ウォークインクローゼットあり
専有面積 - バルコニー面積 -
その他面積 - 駐車場 -
管理費 - 修繕積立金 -
現況 空家
仲介手数料 851,400円
利用制限 -
設備 整形地、前面道路6m以上、日当り良好、閑静な住宅街、スーパー近く、LDK15畳以上、全室フローリング、天井高2.5m以上、駐車場2台以上、TVインターホン、複層ガラス、システムキッチン、カウンターキッチン、IHクッキングヒーター、3口コンロ、追いだき機能付き、浴室暖房乾燥機、バス1坪以上、温水洗浄便座、シャワー付き洗面台、エアコン、24時間換気システム、オール電化、省エネ給湯、高気密高断熱住宅、上水道、下水道、電気、ウォークインクローゼット、全居室収納あり、シューズBOX、照明器具付き、即引き渡し可能、バリアフリー
取引態様 一般
備考 【教育】
新町小学校 約2100m 徒歩約27分
北中学校 約1300m 徒歩約17分

【交通】
JR信越本線 北長岡駅 徒歩約17分
越後交通バス OM製作所 徒歩約7分
取り扱い会社

新潟土地建物販売センター 株式会社

新潟県長岡市台町1-7-331階

情報登録日 2026/02/24 次回更新予定日 2026/04/11
取引条件有効期限 2026/12/31
  • 長岡市城岡 全2棟 新築住宅
    新潟土地建物販売センター 株式会社
  • この物件を問い合わせる/無料
  • TEL: 0258-89-8245

この物件の地図・周辺情報・行政情報

この物件の周辺情報・行政情報を詳しく見る
【周辺情報】
物件の近くにあるコンビニや銀行・学校など、アイコン付のマップで詳しく表示できます!
【行政情報】
水道料や下水道料・ガス料金など、暮らしに関係のある情報を表示しています。
原信エクスプレスマーケット 城岡店(スーパー)まで480m
ファミリーマート長岡下々条店(コンビニ)まで350m
ウエルシア長岡稲葉町店 (調剤薬局)(ドラッグストア)まで690m

※カメラのアイコンがある場合は、マウスをポイントするとその施設の画像がご覧いただけます。


担当取扱い店舗情報

取扱い店舗画像
新潟土地建物販売センター 株式会社
TEL: 0258-89-8245
所在地: 新潟県長岡市台町1-7-331階
交通: 長岡駅
営業時間: 9:00~18:00/定休日:なし
免許番号: 新潟県知事(3)第5151号 この会社の情報を詳しく見る
所属団体名: 公社 新潟県宅地建物取引協会 新潟支部
取引態様: 一般
ホームページ: https://niigata-tochitate.jp/