物件掲載企業数:299|賃貸物件:2,912件|売買物件:3,228件|今週の登録物件:351
閲覧中のブラウザ(インターネットエクスプローラー)は非推奨ブラウザです。
物件が正しく表示されなかったり、正しく検索されない場合があります。最新のブラウザ(Google Chrome・Edgeなど)にてご利用お願いいたします。
  

新潟県見附市学校町2丁目6-12 中古一戸建て 10LDK 13,800,000円の物件情報

【10部屋の居室と2部屋のフリースペースのある邸宅です!】 ◆駐車3台以上可能! ◆各階にキッチン・トイレ完備! ◆1階部分を店舗や事務所としてもいかがでしょうか。

物件名/所在地 詳細 価格
見附市学校町 売家
新潟県見附市学校町2丁目6-12
  • 土地面積
    :413.32㎡ /125.02坪
  • 建物面積
    :341.17㎡ /103.2坪
  • 間取り
    :10LDK
  • 築年月
    :1990年7月
13,800,000
  • 見附市学校町 売家
    新潟土地建物販売センター 株式会社
  • この物件を問い合わせる/無料
  • TEL: 0258-89-8245

物件画像

外観 間取り
物件画像
※画像クリックで拡大表示
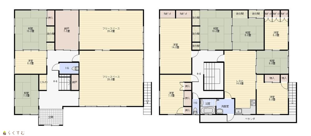
10LDK4Sの邸宅!店舗や事務所などにもいかがでしょうか。
物件画像
※画像クリックで拡大表示
各階キッチン・トイレ、1階に20帖と28帖のフリースペース有
詳細画像


物件概要

■納戸もあり収納豊富です ■前面道路に消雪パイプ完備で冬も安心ですね。 ■ゆったりとした敷地面積約125坪 ■見附小学校まで徒歩約9分 ■スーパーなどの店舗や市役所が徒歩圏内
物件コード 00239-200412
物件名 見附市学校町 売家
交通 駅:信越線 見附駅から徒歩18分、バス:ネーブルみつけ前から徒歩5分
物件所在地 新潟県見附市学校町2丁目6-12
物件種別 中古一戸建て
構造 木造 階建 地上2階建
建ぺい率/容積率 60%/200%
建物面積 1階 168.93㎡/ 2階 172.24㎡/ 計 341.17㎡ /103.2坪
土地面積 413.32㎡ /125.02坪
築年月 1990年7月(築35年)
入居(引き渡し)時期 相談
用途地域 第1種住居地域 地目 宅地
都市計画 市街化区域 学校区 見附小学校(650m)・見附中学校(1,700m)
形状 - 道路 北側4.0m位置指定
私道 有70㎡(持分1/4) その他の制限 法22条/斜線制限(道路・隣地)/日影制限
  • 見附市学校町 売家
    新潟土地建物販売センター 株式会社
  • この物件を問い合わせる/無料
  • TEL: 0258-89-8245

物件詳細情報

所在階/階数 - 号室 -
販売価格 13,800,000円 方位
間取り 10LDK (和室:10畳、10畳、8畳、7.5畳、6畳) (洋室:14、8、7.5、6、6)
LDK14
フリースペース28、20
専有面積 - バルコニー面積 -
その他面積 - 駐車場 -
管理費 - 修繕積立金 -
現況 居住中
仲介手数料 521,400円
利用制限 -
設備 日当り良好、閑静な住宅街、システムキッチン、3口コンロ、追いだき機能付き、バス1坪以上、温水洗浄便座、トイレ2か所以上、シャワー付き洗面台、都市ガス、上水道、下水道、シューズBOX、事業向け
取引態様 一般
備考 【教育機関】
見附小学校 約650m 徒歩約9分
見附中学校 約1700m 徒歩約18分

【交通機関】
JR信越本線 見附駅 徒歩約18分
みつけコミュニティバス ネーブルみつけ前/見附みどり保育園前 徒歩約5分

【お引渡し条件】
・残置物は売主にて撤去
・売主契約不適合責任免責
・境界非明示
・上記土地の他に公衆用道路70㎡(持分1/4有)
取り扱い会社

新潟土地建物販売センター 株式会社

新潟県長岡市台町1-7-331階

情報登録日 2025/12/22 次回更新予定日 2026/04/05
取引条件有効期限 2026/12/31
  • 見附市学校町 売家
    新潟土地建物販売センター 株式会社
  • この物件を問い合わせる/無料
  • TEL: 0258-89-8245

この物件の地図・周辺情報・行政情報

この物件の周辺情報・行政情報を詳しく見る
【周辺情報】
物件の近くにあるコンビニや銀行・学校など、アイコン付のマップで詳しく表示できます!
【行政情報】
水道料や下水道料・ガス料金など、暮らしに関係のある情報を表示しています。

担当取扱い店舗情報

取扱い店舗画像
新潟土地建物販売センター 株式会社
TEL: 0258-89-8245
所在地: 新潟県長岡市台町1-7-331階
交通: 長岡駅
営業時間: 9:00~18:00/定休日:なし
免許番号: 新潟県知事(3)第5151号 この会社の情報を詳しく見る
所属団体名: 公社 新潟県宅地建物取引協会 新潟支部
取引態様: 一般
ホームページ: https://niigata-tochitate.jp/