物件掲載企業数:299|賃貸物件:2,911件|売買物件:3,225件|今週の登録物件:353
閲覧中のブラウザ(インターネットエクスプローラー)は非推奨ブラウザです。
物件が正しく表示されなかったり、正しく検索されない場合があります。最新のブラウザ(Google Chrome・Edgeなど)にてご利用お願いいたします。
  

新潟県柏崎市日吉町2番66-3 中古一戸建て 4LDK 25,800,000円の物件情報

【築5年4LDK】パントリーやウォークインクローゼット、外部収納など、収納たっぷりのお家です。3~4人暮らしの方にオススメ

物件名/所在地 詳細 価格
柏崎市日吉町 中古住宅
新潟県柏崎市日吉町2番66-3
  • 土地面積
    :180.99㎡ /54.74坪
  • 建物面積
    :118.42㎡ /35.82坪
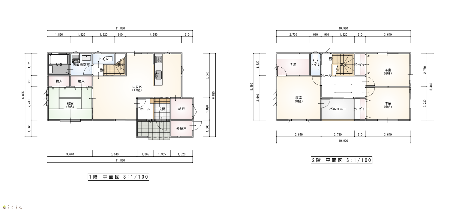
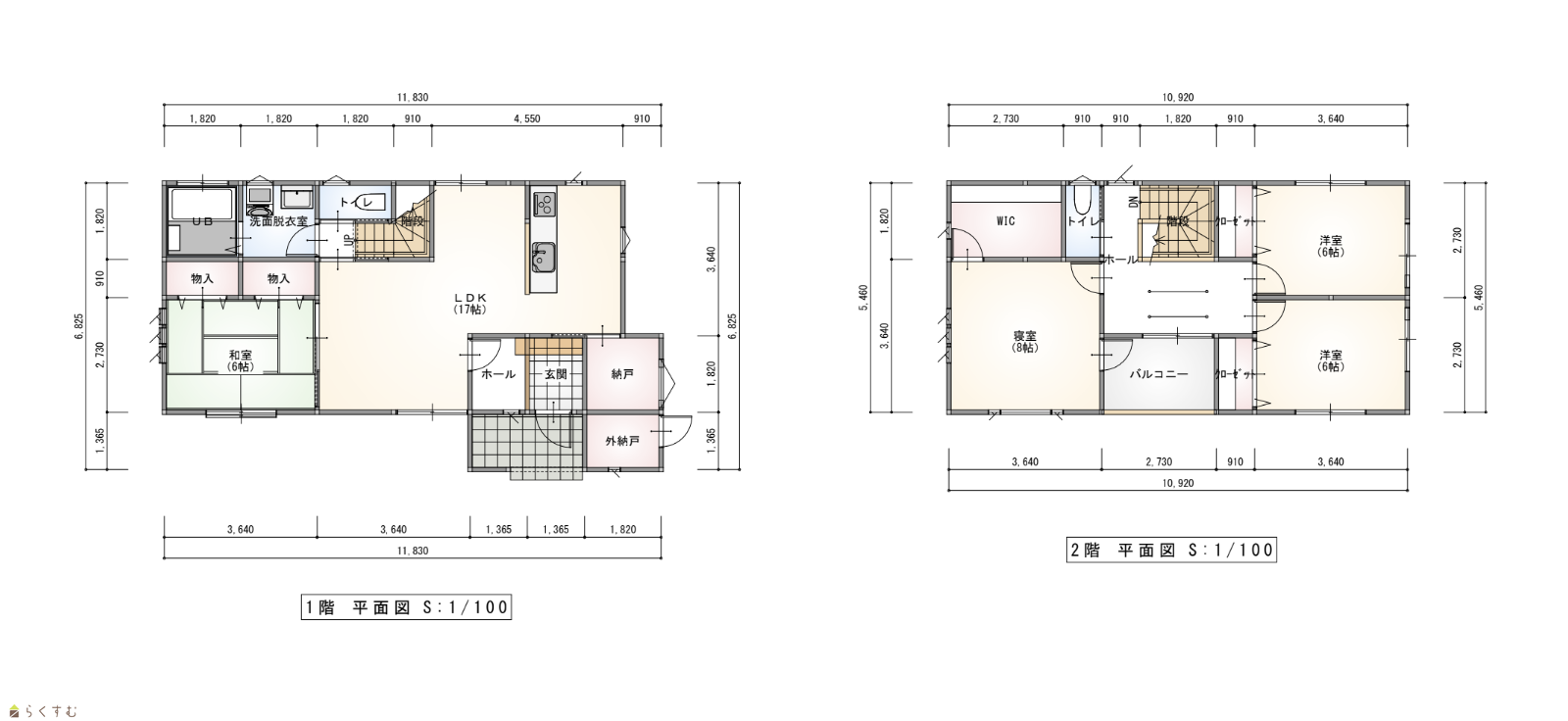
  • 間取り
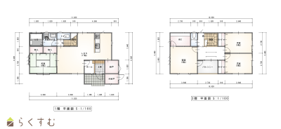
    :4LDK
  • 築年月
    :2020年5月
25,800,000
  • 柏崎市日吉町 中古住宅
    戸建エース / (株)アップデート不動産
  • この物件を問い合わせる/無料
  • TEL: 080-7289-9376

物件画像

外観 間取り
物件画像
※画像クリックで拡大表示
外観
物件画像
※画像クリックで拡大表示
間取り
詳細画像


物件概要

物件コード 00221-200245
物件名 柏崎市日吉町 中古住宅
交通 駅:越後線 東柏崎駅から徒歩15分、バス:北半田1丁目から徒歩5分
物件所在地 新潟県柏崎市日吉町2番66-3
物件種別 中古一戸建て
構造 木造 階建 地上2階建
建ぺい率/容積率 60%/200%
建物面積 1階 63.77㎡/ 2階 54.65㎡/ 計 118.42㎡ /35.82坪
土地面積 180.99㎡ /54.74坪
築年月 2020年5月(築5年)
入居(引き渡し)時期 相談
用途地域 第1種住居地域 地目 宅地
都市計画 非線引き都市計画区域 学校区 比角小学校(182m)・第二中学校(588m)
形状 - 道路 南側6.0m:位置指定道路
私道 - その他の制限 -
  • 柏崎市日吉町 中古住宅
    戸建エース / (株)アップデート不動産
  • この物件を問い合わせる/無料
  • TEL: 080-7289-9376

物件詳細情報

所在階/階数 - 号室 -
販売価格 25,800,000円 方位 -
間取り 4LDK (和室:6畳) (洋室:8、6、6)
LDK17.0
専有面積 - バルコニー面積 -
その他面積 - 駐車場 -
管理費 - 修繕積立金 -
現況 居住中
仲介手数料 917,400円
利用制限 -
設備 日当り良好、閑静な住宅街、新築時図面あり、LDK15帖以上、築10年以内、築15年以内、駐車2台可能、駐車3台以上可能、TVインターホン、複層ガラス、デインプルキー、システムキッチン、IHクッキングヒーター、食器洗浄乾燥機、3口コンロ、追いだき機能付き、バス1坪以上、温水洗浄便座、トイレ2か所以上、シャワー付き洗面台、エアコンあり、都市ガス、上水道、下水道、ウォークインクローゼット、全居室収納あり、シューズBOX、シューズインクローゼット
取引態様 専任
備考 -
取り扱い会社

戸建エース / (株)アップデート不動産

新潟県長岡市古正寺3丁目116

情報登録日 2025/10/13 次回更新予定日 2026/04/05
取引条件有効期限 2025/12/12
  • 柏崎市日吉町 中古住宅
    戸建エース / (株)アップデート不動産
  • この物件を問い合わせる/無料
  • TEL: 080-7289-9376

この物件の地図・周辺情報・行政情報

この物件の周辺情報・行政情報を詳しく見る
【周辺情報】
物件の近くにあるコンビニや銀行・学校など、アイコン付のマップで詳しく表示できます!
【行政情報】
水道料や下水道料・ガス料金など、暮らしに関係のある情報を表示しています。
ファミリーマート 柏崎扇町店(コンビニ)まで330m
セブン-イレブン 柏崎四谷3丁目店(コンビニ)まで560m
ローソン 柏崎インター店(コンビニ)まで870m
大手薬局 柏崎店(ドラッグストア)まで130m
クスリのアオキ 柏崎中央店(ドラッグストア)まで370m
柏崎信用金庫 四谷支店(銀行)まで450m
第四北越銀行 柏崎南支店(銀行)まで860m
第四北越銀行 柏崎日吉町支店(銀行)まで870m
柏崎四谷郵便局(郵便局)まで540m
柏崎岩上郵便局(郵便局)まで810m

※カメラのアイコンがある場合は、マウスをポイントするとその施設の画像がご覧いただけます。


担当取扱い店舗情報

取扱い店舗画像
戸建エース / (株)アップデート不動産
TEL: 080-7289-9376
所在地: 新潟県長岡市古正寺3丁目116
交通:
営業時間: 10:00~17:00/定休日:水曜日 木曜日
免許番号: 新潟県知事(2)第5484号 この会社の情報を詳しく見る
所属団体名: 新潟県宅地建物取引業協会 長岡支部
取引態様: 専任
ホームページ: https://update-estate.com/