物件掲載企業数:299|賃貸物件:2,912件|売買物件:3,228件|今週の登録物件:351
閲覧中のブラウザ(インターネットエクスプローラー)は非推奨ブラウザです。
物件が正しく表示されなかったり、正しく検索されない場合があります。最新のブラウザ(Google Chrome・Edgeなど)にてご利用お願いいたします。
  

新潟県長岡市与板町東与板1-8 中古一戸建て 7DK 5,500,000円の物件情報

【学校まで400m以内】小学校徒歩2分・中学校徒歩3分。お子様の登下校を見守れる安心の環境♪

物件名/所在地 詳細 価格
東与板中古住宅
新潟県長岡市与板町東与板1-8
  • 土地面積
    :330.64㎡ /100.01坪
  • 建物面積
    :146.49㎡ /44.31坪
  • 間取り
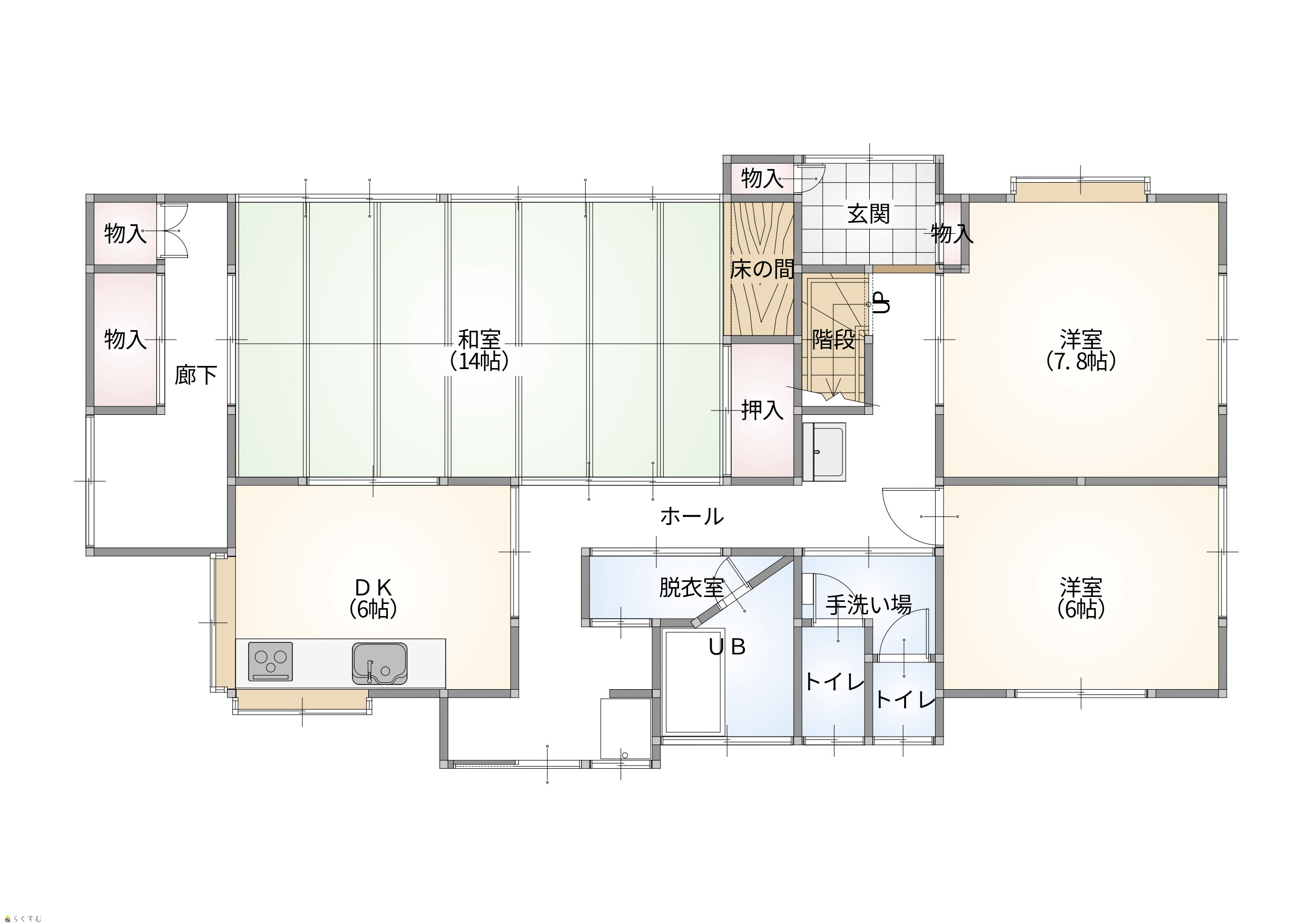
    :7DK
  • 築年月
    :1971年8月
5,500,000
  • 東与板中古住宅
    戸建エース / (株)アップデート不動産
  • この物件を問い合わせる/無料
  • TEL: 080-7289-9376

物件画像

外観 間取り
物件画像
※画像クリックで拡大表示
外観
物件画像
※画像クリックで拡大表示
1F間取り図
詳細画像


物件概要

物件コード 00221-200220
物件名 東与板中古住宅
交通 駅:越後線 小島谷駅から徒歩83分、バス:与板仲町から徒歩7分
物件所在地 新潟県長岡市与板町東与板1-8
物件種別 中古一戸建て
構造 木造 階建 地上2階建
建ぺい率/容積率 60%/200%
建物面積 計 146.49㎡ /44.31坪
土地面積 330.64㎡ /100.01坪
築年月 1971年8月(築54年)
入居(引き渡し)時期 随時入居(引き渡し)可
用途地域 第1種住居地域 地目 宅地
都市計画 市街化区域 学校区 与板小学校(214m)・与板中学校(302m)
形状 - 道路 -
私道 - その他の制限 -
  • 東与板中古住宅
    戸建エース / (株)アップデート不動産
  • この物件を問い合わせる/無料
  • TEL: 080-7289-9376

物件詳細情報

所在階/階数 - 号室 -
販売価格 5,500,000円 方位 -
間取り 7DK
専有面積 - バルコニー面積 -
その他面積 - 駐車場 -
管理費 - 修繕積立金 -
現況 空家
仲介手数料 330,000円
利用制限 -
設備 日当り良好、駐車2台可能、温水洗浄便座、即引き渡し可能
取引態様 一般
備考 -
取り扱い会社

戸建エース / (株)アップデート不動産

新潟県長岡市古正寺3丁目116

情報登録日 2026/01/27 次回更新予定日 2026/04/05
取引条件有効期限 2025/10/31
  • 東与板中古住宅
    戸建エース / (株)アップデート不動産
  • この物件を問い合わせる/無料
  • TEL: 080-7289-9376

この物件の地図・周辺情報・行政情報

この物件の周辺情報・行政情報を詳しく見る
【周辺情報】
物件の近くにあるコンビニや銀行・学校など、アイコン付のマップで詳しく表示できます!
【行政情報】
水道料や下水道料・ガス料金など、暮らしに関係のある情報を表示しています。

担当取扱い店舗情報

取扱い店舗画像
戸建エース / (株)アップデート不動産
TEL: 080-7289-9376
所在地: 新潟県長岡市古正寺3丁目116
交通:
営業時間: 10:00~17:00/定休日:水曜日 木曜日
免許番号: 新潟県知事(2)第5484号 この会社の情報を詳しく見る
所属団体名: 新潟県宅地建物取引業協会 長岡支部
取引態様: 一般
ホームページ: https://update-estate.com/