物件掲載企業数:300|賃貸物件:3,218件|売買物件:3,232件|今週の登録物件:713
閲覧中のブラウザ(インターネットエクスプローラー)は非推奨ブラウザです。
物件が正しく表示されなかったり、正しく検索されない場合があります。最新のブラウザ(Google Chrome・Edgeなど)にてご利用お願いいたします。
  

新潟県柏崎市柳橋町8番9号 中古一戸建て 3LDK 30,000,000円の物件情報

商業施設に近く立地良し、平成26年新築の築浅中古住宅!!

物件名/所在地 詳細 価格
柳橋町中古住宅
新潟県柏崎市柳橋町8番9号
  • 土地面積
    :198㎡ /59.89坪
  • 建物面積
    :142.11㎡ /42.98坪
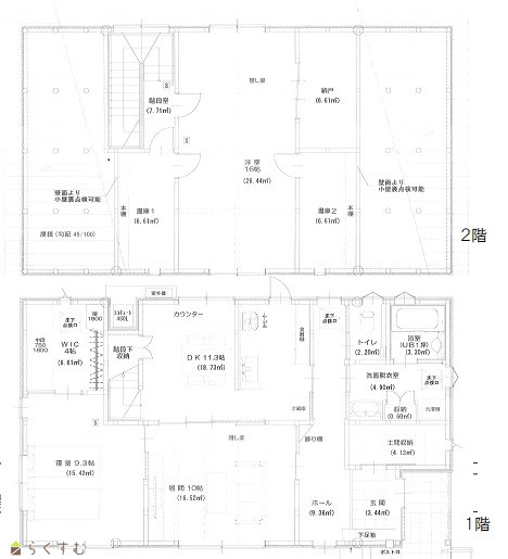
  • 間取り
    :3LDK
  • 築年月
    :2014年11月
30,000,000
  • 柳橋町中古住宅
    有限会社イッケン
  • この物件を問い合わせる/無料
  • TEL: 0257-22-1422

物件画像

外観 間取り
物件画像
※画像クリックで拡大表示
外観
物件画像
※画像クリックで拡大表示
間取り
詳細画像


物件概要

物件コード 00205-200113
物件名 柳橋町中古住宅
交通 駅:信越線 柏崎駅から徒歩8分、バス:枇杷島から徒歩4分
物件所在地 新潟県柏崎市柳橋町8番9号
物件種別 中古一戸建て
構造 木造 階建 地上2階建
建ぺい率/容積率 60%/200%
建物面積 1階 88.13㎡/ 2階 53.98㎡/ 計 142.11㎡ /42.98坪
土地面積 198㎡ /59.89坪
築年月 2014年11月(築11年)
入居(引き渡し)時期 相談
用途地域 第1種住居地域 地目 宅地
都市計画 非線引き都市計画区域 学校区 枇杷島小学校(161m)・鏡が沖中学校(1,188m)
形状 - 道路 柏崎市道 東側
私道 - その他の制限 -
  • 柳橋町中古住宅
    有限会社イッケン
  • この物件を問い合わせる/無料
  • TEL: 0257-22-1422

物件詳細情報

所在階/階数 - 号室 -
販売価格 30,000,000円 方位
間取り 3LDK (洋室:9.3、10、16)
LDK11.3
専有面積 - バルコニー面積 -
その他面積 19.83㎡ /5.99坪  書庫6.61㎡×2、納戸6.61㎡ 駐車場 -
管理費 - 修繕積立金 -
現況 空家
仲介手数料 1,056,000円
利用制限 -
設備 -
取引態様 一般
備考 現況有姿でのお引渡しとなります。※室内のお写真は近日中に掲載いたします。
取り扱い会社

有限会社イッケン

新潟県柏崎市錦町8-29

情報登録日 2026/04/21 次回更新予定日 2026/05/05
取引条件有効期限 2026/12/31
  • 柳橋町中古住宅
    有限会社イッケン
  • この物件を問い合わせる/無料
  • TEL: 0257-22-1422

この物件の地図・周辺情報・行政情報

この物件の周辺情報・行政情報を詳しく見る
【周辺情報】
物件の近くにあるコンビニや銀行・学校など、アイコン付のマップで詳しく表示できます!
【行政情報】
水道料や下水道料・ガス料金など、暮らしに関係のある情報を表示しています。
セブン-イレブン 柏崎穂波町店(コンビニ)まで860m
クスリのアオキ 穂波店(ドラッグストア)まで770m
柏崎信用金庫 南支店(銀行)まで440m
柏崎枇杷島郵便局(郵便局)まで290m

※カメラのアイコンがある場合は、マウスをポイントするとその施設の画像がご覧いただけます。


担当取扱い店舗情報

取扱い店舗画像
有限会社イッケン
TEL: 0257-22-1422
所在地: 新潟県柏崎市錦町8-29
交通: 駅前公園、向かい♪
営業時間: 9:00~17:30 土曜日10:00~15:00/定休日:日曜・祝日
免許番号: 新潟県知事(8)第3675号 この会社の情報を詳しく見る
所属団体名: 公社 新潟県宅地建物取引業協会 柏崎支部
取引態様: 一般
ホームページ: https://www.ikken.co.jp/