物件掲載企業数:299|賃貸物件:2,912件|売買物件:3,228件|今週の登録物件:351
閲覧中のブラウザ(インターネットエクスプローラー)は非推奨ブラウザです。
物件が正しく表示されなかったり、正しく検索されない場合があります。最新のブラウザ(Google Chrome・Edgeなど)にてご利用お願いいたします。
  

新潟県柏崎市土合455 中古一戸建て 8R 9,450,000円の物件情報

旧割烹店舗、広い部屋と敷地、菜園も楽しめます。

物件名/所在地 詳細 価格
土合中古住宅
新潟県柏崎市土合455
  • 土地面積
    :785.7㎡ /237.67坪
  • 建物面積
    :290.17㎡ /87.77坪
  • 間取り
    :8R
  • 築年月
    :不詳
9,450,000
  • 土合中古住宅
    有限会社 伊原建築設計事務所
  • この物件を問い合わせる/無料
  • TEL: 0257-24-1336

物件画像

外観 間取り
物件画像
※画像クリックで拡大表示
全景
物件画像
※画像クリックで拡大表示
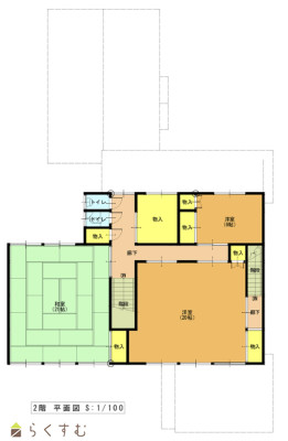
1階平面図
詳細画像


物件概要

物件コード 00108-200051
物件名 土合中古住宅
交通 駅:越後線 西中通駅から徒歩17分、バス:剣橋から徒歩8分
物件所在地 新潟県柏崎市土合455
物件種別 中古一戸建て
構造 木造 階建 地上2階建
建ぺい率/容積率 70%/200%
建物面積 1階 177.13㎡/ 2階 113.04㎡/ 計 290.17㎡ /87.77坪
土地面積 785.7㎡ /237.67坪
築年月 不詳
入居(引き渡し)時期 相談
用途地域 用途の指定のない地域 地目 宅地
都市計画 非線引き都市計画区域 学校区 日吉小学校(673m)・瑞穂中学校(2,483m)
形状 間口 28.75m × 奥行 26.31m 道路 柏崎市道11-7
私道 - その他の制限 -
  • 土合中古住宅
    有限会社 伊原建築設計事務所
  • この物件を問い合わせる/無料
  • TEL: 0257-24-1336

物件詳細情報

所在階/階数 - 号室 -
販売価格 9,450,000円 方位
間取り 8R (和室:8畳、8畳、10畳、21畳) (洋室:6、17、6、20)
専有面積 - バルコニー面積 -
その他面積 - 駐車場 -
管理費 - 修繕積立金 -
現況 居住中
仲介手数料 377,850円
利用制限 -
設備 閑静な住宅街、駐車3台以上可能、南向き、バス1坪以上、トイレ2か所以上、都市ガス、上水道、下水道
取引態様 一般
備考 家財撤去後、現況有姿での売買になります。
取り扱い会社

有限会社 伊原建築設計事務所

新潟県柏崎市大字劔281番地5

情報登録日 2024/11/06 次回更新予定日 2026/04/05
取引条件有効期限 2025/01/31
  • 土合中古住宅
    有限会社 伊原建築設計事務所
  • この物件を問い合わせる/無料
  • TEL: 0257-24-1336

この物件の地図・周辺情報・行政情報

この物件の周辺情報・行政情報を詳しく見る
【周辺情報】
物件の近くにあるコンビニや銀行・学校など、アイコン付のマップで詳しく表示できます!
【行政情報】
水道料や下水道料・ガス料金など、暮らしに関係のある情報を表示しています。

担当取扱い店舗情報

取扱い店舗画像
有限会社 伊原建築設計事務所
TEL: 0257-24-1336
所在地: 新潟県柏崎市大字劔281番地5
交通:
営業時間: 8:00~18:00/定休日:年中無休(臨時休業アリ)
免許番号: 新潟県知事(8)第3641号 この会社の情報を詳しく見る
所属団体名: 新潟県宅地建物取引業協会 柏崎支部
取引態様: 一般
ホームページ: http://www.ihara-re.co.jp/