物件掲載企業数:301|賃貸物件:3,289件|売買物件:3,252件|今週の登録物件:351
閲覧中のブラウザ(インターネットエクスプローラー)は非推奨ブラウザです。
物件が正しく表示されなかったり、正しく検索されない場合があります。最新のブラウザ(Google Chrome・Edgeなど)にてご利用お願いいたします。
  

新潟県長岡市花園3丁目10番15 新築一戸建て 4LDK 28,800,000円の物件情報

豊田小学区エリア。マルイまで徒歩7分で買い物もラクラク♪国道へのアクセスも良く、休日のお出かけも便利な立地です♪4LDKの広々LDK!

物件名/所在地 詳細 価格
花園 新築建売住宅 豊田小学校区
新潟県長岡市花園3丁目10番15
  • 土地面積
    :145.96㎡ /44.15坪
  • 建物面積
    :92.74㎡ /28.05坪
  • 間取り
    :4LDK
  • 築年月
    :2025年11月
28,800,000
  • 花園 新築建売住宅 豊田小学校区
    ダイエープロビス株式会社
  • この物件を問い合わせる/無料
  • TEL: 0258-24-1110

物件画像

外観 間取り
物件画像
※画像クリックで拡大表示
外観
物件画像
※画像クリックで拡大表示
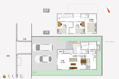
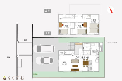
間取り
詳細画像


物件概要

LDKとつながる1部屋がある4LDK、お子様が小さいときはお昼寝や遊び場スペースとして広々過ごせます!
物件コード 00101-200404
物件名 花園 新築建売住宅 豊田小学校区
交通 駅:信越線 長岡駅から徒歩24分、バス:花園団地入口から徒歩1分
物件所在地 新潟県長岡市花園3丁目10番15
物件種別 新築一戸建て
構造 木造 階建 地上2階建
建ぺい率/容積率 50%/100%
建物面積 1階 51.34㎡/ 2階 41.4㎡/ 計 92.74㎡ /28.05坪
土地面積 145.96㎡ /44.15坪
築年月 2025年11月(築6ヶ月)
入居(引き渡し)時期 2026年2月入居
用途地域 第1種低層住居専用地域 地目 宅地  (現状:宅地)
都市計画 市街化区域 学校区 豊田小学校(1,000m)・旭岡中学校(950m)
形状 間口 8.9m × 奥行 16.2m 道路 西側 市道 16m
私道 - その他の制限 -
  • 花園 新築建売住宅 豊田小学校区
    ダイエープロビス株式会社
  • この物件を問い合わせる/無料
  • TEL: 0258-24-1110

物件詳細情報

所在階/階数 - 号室 -
販売価格 28,800,000円 方位 西
間取り 4LDK (洋室:7、6、5.2、5.2)
LDK13.6帖
専有面積 - バルコニー面積 -
その他面積  洗面室3帖 駐車場 -
管理費 - 修繕積立金 -
現況 空家
仲介手数料 なし
利用制限 -
設備 整形地、前面道路6m以上、日当り良好、閑静な住宅街、スーパー近く、BELS/省エネ基準適合認定建物、瑕疵担保保険付き、建物確認・完了検査済証あり、フラット35S適合、全室フローリング、駐車場2台以上、TVインターホン、複層ガラス、ディンプルキー、システムキッチン、カウンターキッチン、IHクッキングヒーター、追いだき機能付き、バス1坪以上、温水洗浄便座、シャワー付き洗面台、エアコン、24時間換気システム、オール電化、省エネ給湯、上水道、下水道、電気、全居室収納あり、シューズBOX、照明器具付き
取引態様 売主
備考 ↓ おすすめポイント ↓

安心のご契約!
~ニコニコ住宅の建物価格について~

表示価格には、
「土地」「建物」
「瑕疵担保責任保険」
「長期保証」「クリーニング費用」
「建物内の展示物撤収費用」
がきちんと含まれますのでご安心ください。

子育て世帯にうれしい、便利で安心な立地が魅力です。

■豊田小学校 徒歩13分
■旭岡中学校 徒歩12分
■花園団地入口バス停 徒歩1分
■マルイ長岡学校町店 徒歩7分
■原信花園店 徒歩9分
■長岡駅 車5分
毎日の通学やお買い物が徒歩圏内で!
国道へのアクセスも良好なので、休日のお出かけにも便利な立地です♪

リビングにつながる6帖の空間。

お子さまが小さいうちは、お昼寝や遊びスペースにぴったり!
キッチンやリビングから見守れるので、安心してのびのびと過ごせます。
将来的に来客時は仕切って客間にも、ご夫婦の寝室としても♪
暮らしの変化に合わせて、ずっと使いやすい場所に。


建売とは思えない!
手厚いアフターサービスが自慢の家

最長60年長期保証の家:
地盤・基礎・構造・雨漏りは基本保証20年
メンテナンス実施で最長60年

設備保証10年:
ユニットバス・システムキッチン・給湯設備・多機能便座

無料点検:10年間で4回実施

緊急駆けつけサービス:24時間365日10年間

建築確認番号 第R07-0520号
取り扱い会社

ダイエープロビス株式会社

新潟県長岡市宝4丁目2番地25

情報登録日 2025/12/20 次回更新予定日 2026/05/30
取引条件有効期限 2026/12/31
  • 花園 新築建売住宅 豊田小学校区
    ダイエープロビス株式会社
  • この物件を問い合わせる/無料
  • TEL: 0258-24-1110

この物件の地図・周辺情報・行政情報

この物件の周辺情報・行政情報を詳しく見る
【周辺情報】
物件の近くにあるコンビニや銀行・学校など、アイコン付のマップで詳しく表示できます!
【行政情報】
水道料や下水道料・ガス料金など、暮らしに関係のある情報を表示しています。
セブン-イレブン 長岡土合店(コンビニ)まで790m
マルイ 長岡学校町店(スーパー)まで510m
原信 長岡花園店(スーパー)まで730m
ながおか生協診療所(病院)まで380m
かわじ整形外科(病院)まで750m
第四北越銀行 土合支店(銀行)まで790m
長岡花園郵便局(郵便局)まで480m

※カメラのアイコンがある場合は、マウスをポイントするとその施設の画像がご覧いただけます。


担当取扱い店舗情報

取扱い店舗画像
ダイエープロビス株式会社
TEL: 0258-24-1110
所在地: 新潟県長岡市宝4丁目2番地25
交通: 「宝4丁目」バス停より徒歩2分
営業時間: 8:30 ~ 17:30/定休日:土曜・日曜・祝日
免許番号: 新潟県知事(13)1619号 この会社の情報を詳しく見る
所属団体名: 新潟県宅地建物取引業協会 長岡支部
取引態様: 売主
ホームページ: https://www.daiei-probis.com