物件掲載企業数:299|賃貸物件:2,911件|売買物件:3,226件|今週の登録物件:353
閲覧中のブラウザ(インターネットエクスプローラー)は非推奨ブラウザです。
物件が正しく表示されなかったり、正しく検索されない場合があります。最新のブラウザ(Google Chrome・Edgeなど)にてご利用お願いいたします。
  

新潟県柏崎市比角1丁目 7-11 中古一戸建て 5DK 8,000,000円の物件情報

物件名/所在地 詳細 価格
比角1丁目 中古住宅
新潟県柏崎市比角1丁目 7-11
  • 土地面積
    :414.62㎡ /125.42坪
  • 建物面積
    :140.76㎡ /42.57坪
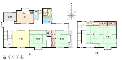
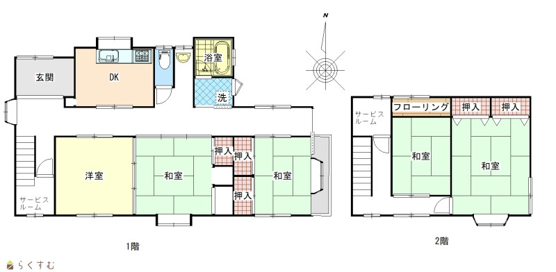
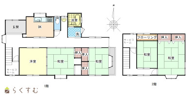
  • 間取り
    :5DK
  • 築年月
    :1998年6月
8,000,000
  • 比角1丁目 中古住宅
    有限会社小熊不動産企画
  • この物件を問い合わせる/無料
  • TEL: 0257-23-5000

物件画像

外観 間取り
物件画像
※画像クリックで拡大表示
外観
物件画像
※画像クリックで拡大表示
間取り
詳細画像


物件概要

物件コード 00095-200077
物件名 比角1丁目 中古住宅
交通 駅:越後線 東柏崎駅から徒歩6分、バス:リケン前から徒歩6分
物件所在地 新潟県柏崎市比角1丁目 7-11
物件種別 中古一戸建て
構造 木造 階建 地上2階建
建ぺい率/容積率 60%/200%
建物面積 1階 96.05㎡/ 2階 44.71㎡/ 計 140.76㎡ /42.57坪
土地面積 414.62㎡ /125.42坪
築年月 1998年6月(築27年)
入居(引き渡し)時期 随時入居(引き渡し)可
用途地域 準工業地域 地目 宅地・雑種地  (現状:宅地)
都市計画 非線引き都市計画区域 学校区 比角小学校(683m)・第二中学校(304m)
形状 - 道路 -
私道 - その他の制限 建築基準法 第22条
  • 比角1丁目 中古住宅
    有限会社小熊不動産企画
  • この物件を問い合わせる/無料
  • TEL: 0257-23-5000

物件詳細情報

所在階/階数 - 号室 -
販売価格 8,000,000円 方位
間取り 5DK (和室:8畳、6畳、6畳、8畳) (洋室:8)
6DK
敷地は建築基準法 第42条の道路に接道していません(再建築不可)
専有面積 - バルコニー面積 -
その他面積 - 駐車場 -
管理費 - 修繕積立金 -
現況 空家
仲介手数料 330,000円
利用制限 -
設備 日当り良好、閑静な住宅街、南向き、追いだき機能付き、バス1坪以上、エアコンあり、都市ガス、上水道、下水道、ウォークインクローゼット、BS端子、即引き渡し可能
取引態様 一般
備考 -
取り扱い会社

有限会社小熊不動産企画

新潟県柏崎市大久保2丁目3番2号

情報登録日 2025/11/29 次回更新予定日 2026/04/05
取引条件有効期限 2026/02/28
  • 比角1丁目 中古住宅
    有限会社小熊不動産企画
  • この物件を問い合わせる/無料
  • TEL: 0257-23-5000

この物件の地図・周辺情報・行政情報

この物件の周辺情報・行政情報を詳しく見る
【周辺情報】
物件の近くにあるコンビニや銀行・学校など、アイコン付のマップで詳しく表示できます!
【行政情報】
水道料や下水道料・ガス料金など、暮らしに関係のある情報を表示しています。

担当取扱い店舗情報

取扱い店舗画像
有限会社小熊不動産企画
TEL: 0257-23-5000
所在地: 新潟県柏崎市大久保2丁目3番2号
交通:
営業時間: 9:00~18:00/定休日:日曜・祭日
免許番号: 新潟県知事(2)第5275号 この会社の情報を詳しく見る
所属団体名: 新潟県宅地建物取引業協会 柏崎支部
取引態様: 一般