物件掲載企業数:297|賃貸物件:3,620件|売買物件:3,316件|今週の登録物件:268
閲覧中のブラウザ(インターネットエクスプローラー)は非推奨ブラウザです。
物件が正しく表示されなかったり、正しく検索されない場合があります。最新のブラウザ(Google Chrome・Edgeなど)にてご利用お願いいたします。
  

新潟県三条市中野原301番123 中古一戸建て 10DK 13,400,000円の物件情報

キャンプ場、温泉施設近く。有名アウトドアショップ近く

物件名/所在地 詳細 価格
三条市中野原売り住宅
新潟県三条市中野原301番123
  • 土地面積
    :936.79㎡ /283.37坪
  • 建物面積
    :348.62㎡ /105.45坪
  • 間取り
    :10DK
  • 築年月
    :1993年3月
13,400,000
  • 三条市中野原売り住宅
    柏越建設 株式会社
  • この物件を問い合わせる/無料
  • TEL: 0257-24-1548

物件画像

外観 間取り
物件画像
※画像クリックで拡大表示
外観
物件画像
※画像クリックで拡大表示
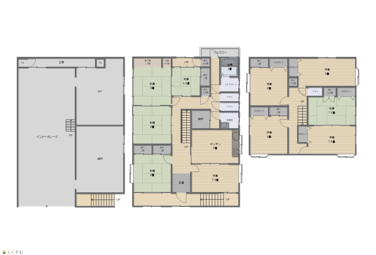
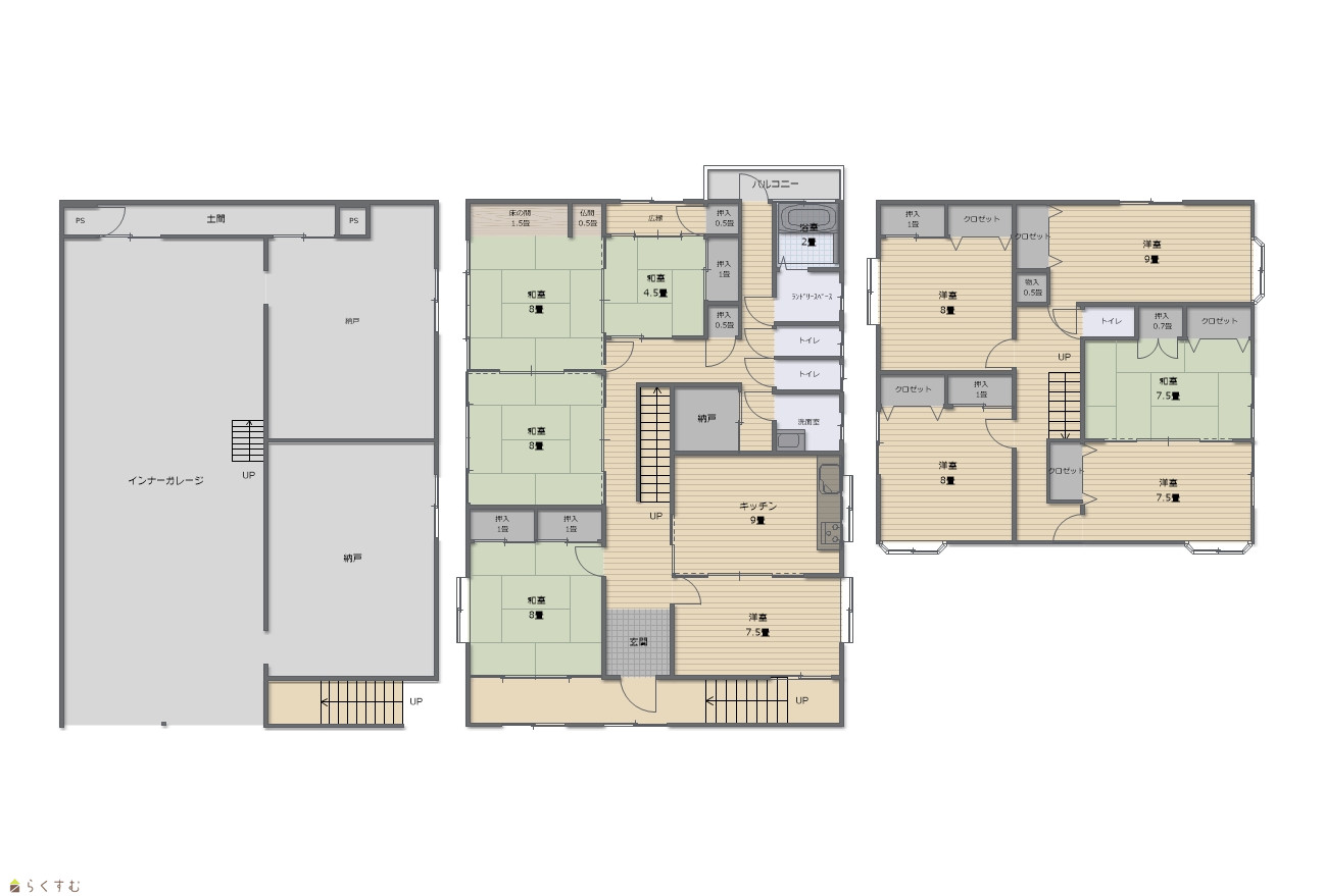
間取り
詳細画像


物件概要

高床住宅!敷地内に5台駐車可能!
物件コード 00085-200018
物件名 三条市中野原売り住宅
交通 駅:信越線 東三条駅から徒歩139分、バス:中野原(上)から徒歩2分
物件所在地 新潟県三条市中野原301番123
物件種別 中古一戸建て
構造 木造鉄筋コン 階建 地上3階建
建ぺい率/容積率 70%/200%
建物面積 1階 130.01㎡/ 2階 127.52㎡/ 3階 91.09㎡/ 計 348.62㎡ /105.45坪
土地面積 936.79㎡ /283.37坪
築年月 1993年3月(築32年)
入居(引き渡し)時期 相談
用途地域 無指定 地目 宅地  (現状:宅地)
都市計画 都市計画区域外 学校区 笹岡小学校(349m)・下田中学校(1,749m)
形状 間口 17.6m 道路 市道 やまなみ線
私道 - その他の制限 -
  • 三条市中野原売り住宅
    柏越建設 株式会社
  • この物件を問い合わせる/無料
  • TEL: 0257-24-1548

物件詳細情報

所在階/階数 - 号室 -
販売価格 13,400,000円 方位 南西
間取り 10DK (和室:8.0畳、8.0畳、4.5畳、7.5畳、7.5畳) (洋室:8.0、7.0、8.5、8.0、9.0)
DK8.75
専有面積 - バルコニー面積 -
その他面積 - 駐車場 -
管理費 - 修繕積立金 -
現況 空家
仲介手数料 508,200円
利用制限 -
設備 日当り良好、駐車3台以上可能、南向き、IHクッキングヒーター、3口コンロ、追いだき機能付き、温水洗浄便座、トイレ2か所以上、エアコンあり、上水道、浄化槽、シューズBOX、内装リフォーム済み
取引態様 専任
備考 -
取り扱い会社

柏越建設 株式会社

新潟県柏崎市半田2丁目7番5号エクシードA102

情報登録日 2025/12/09 次回更新予定日 2025/12/30
取引条件有効期限 2025/11/26
  • 三条市中野原売り住宅
    柏越建設 株式会社
  • この物件を問い合わせる/無料
  • TEL: 0257-24-1548

この物件の地図・周辺情報・行政情報

この物件の周辺情報・行政情報を詳しく見る
【周辺情報】
物件の近くにあるコンビニや銀行・学校など、アイコン付のマップで詳しく表示できます!
【行政情報】
水道料や下水道料・ガス料金など、暮らしに関係のある情報を表示しています。

担当取扱い店舗情報

取扱い店舗画像
柏越建設 株式会社
TEL: 0257-24-1548
所在地: 新潟県柏崎市半田2丁目7番5号エクシードA102
交通: 柏崎駅
営業時間: 9:00~17:00/定休日:日・祝
免許番号: 新潟県知事(9)第3408号 この会社の情報を詳しく見る
所属団体名: 柏越建設株式会社
取引態様: 専任