物件掲載企業数:301|賃貸物件:3,175件|売買物件:3,245件|今週の登録物件:72
閲覧中のブラウザ(インターネットエクスプローラー)は非推奨ブラウザです。
物件が正しく表示されなかったり、正しく検索されない場合があります。最新のブラウザ(Google Chrome・Edgeなど)にてご利用お願いいたします。
  

新潟県見附市嶺崎1丁目11-5 中古一戸建て 4LDK 11,600,000円の物件情報

閑静な住宅街に立地し、公園のそばの為、四季を体感できる住環境。

物件名/所在地 詳細 価格
見附市嶺崎1丁目土地建物
新潟県見附市嶺崎1丁目11-5
  • 土地面積
    :338.44㎡ /102.37坪
  • 建物面積
    :108.05㎡ /32.68坪
  • 間取り
    :4LDK
  • 築年月
    :2007年5月
11,600,000
  • 見附市嶺崎1丁目土地建物
    橋本建設 株式会社
  • この物件を問い合わせる/無料
  • TEL: 0258-63-1112

物件画像

外観 間取り
物件画像
※画像クリックで拡大表示
外観
物件画像
※画像クリックで拡大表示
間取り
詳細画像


物件概要

4LDKの間取りで、平成19年建築、比較的きれいな戸建です。お求めやすい価格です。
物件コード 00070-200104
物件名 見附市嶺崎1丁目土地建物
交通 駅:信越線 見附駅から徒歩39分
物件所在地 新潟県見附市嶺崎1丁目11-5
物件種別 中古一戸建て
構造 木造 階建 地上2階建
建ぺい率/容積率 70%/200%
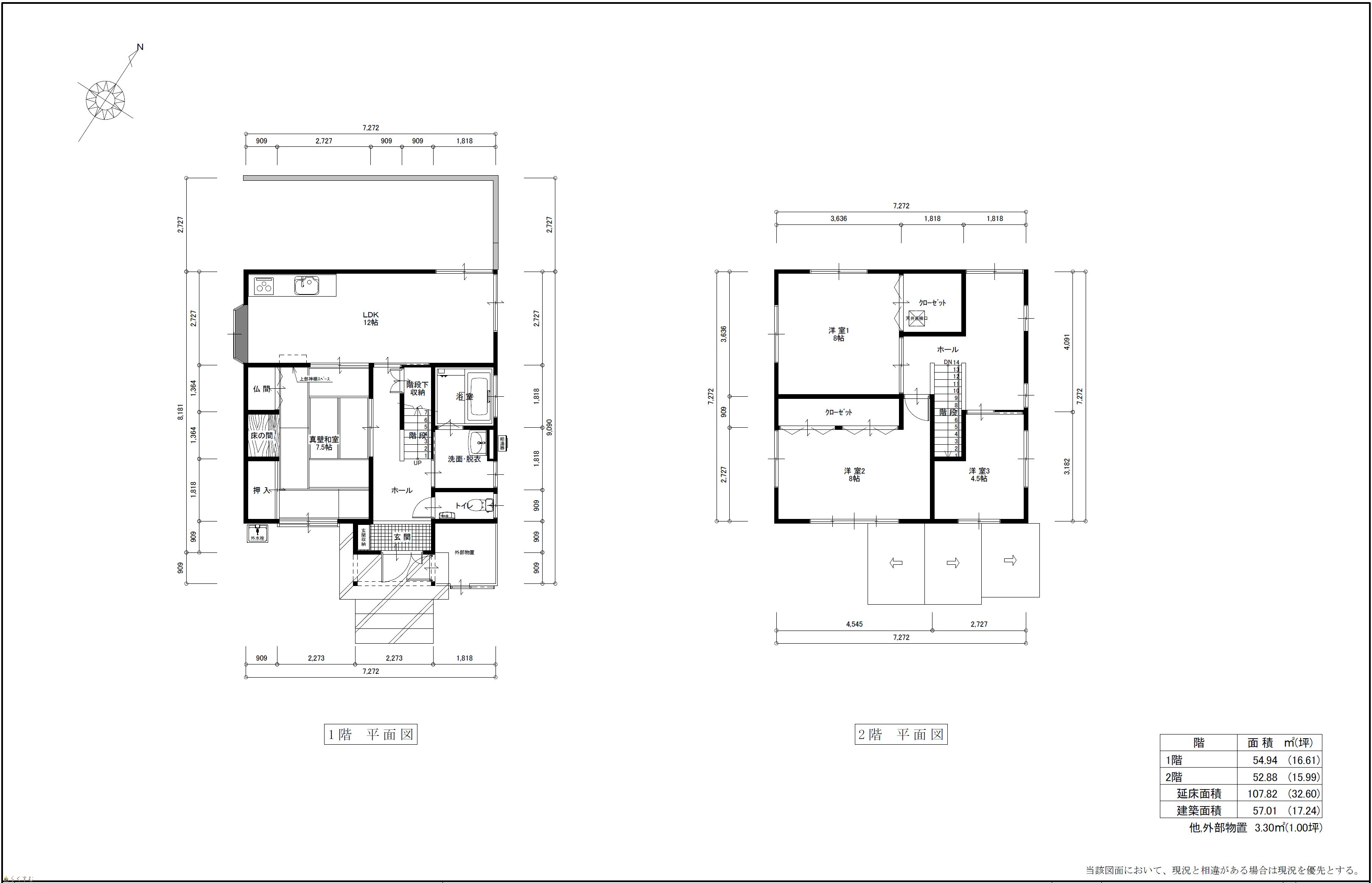
建物面積 1階 55.06㎡/ 2階 52.99㎡/ 計 108.05㎡ /32.68坪
土地面積 338.44㎡ /102.37坪
築年月 2007年5月(築19年)
入居(引き渡し)時期 随時入居(引き渡し)可
用途地域 無指定 地目 宅地
都市計画 市街化調整区域 学校区 見附小学校(1,214m)・見附中学校(1,293m)
形状 - 道路 見附市道
私道 - その他の制限 公園法、都市計画法、22条区域、開発の許可(必要な場合あり)
  • 見附市嶺崎1丁目土地建物
    橋本建設 株式会社
  • この物件を問い合わせる/無料
  • TEL: 0258-63-1112

物件詳細情報

所在階/階数 - 号室 -
販売価格 11,600,000円 方位 -
間取り 4LDK (和室:7.5畳) (洋室:8、8、4.5)
LDK12
専有面積 - バルコニー面積 -
その他面積 - 駐車場 -
管理費 - 修繕積立金 -
現況 空家
仲介手数料 448,800円
消雪費用 15,000円
年間額について詳細確認中
見附市の借地部分の費用 260円
年間260円程度
利用制限 -
設備 閑静な住宅街、駐車2台可能、TVインターホン、システムキッチン、3口コンロ、追いだき機能付き、温水洗浄便座、都市ガス、上水道、下水道、即引き渡し可能
取引態様 一般
備考 閑静な住宅街に立地している為、穏やかな生活を送ることが可能です。また、公園のそばの為、自然環境に恵まれ、四季折々を体感できる自然豊かな住環境です。近隣には郵便局やスーパーも立地しているので、生活利便性も良好です。4LDKなので、ファミリー向けとしても良好な間取りです。平成19年建築で、比較的きれいな戸建です。経済的にもバランスがとりやすい、お求めやすい価格です。
取り扱い会社

橋本建設 株式会社

新潟県見附市市野坪町31-3

情報登録日 2026/03/06 次回更新予定日 2026/05/21
取引条件有効期限 2027/03/31
  • 見附市嶺崎1丁目土地建物
    橋本建設 株式会社
  • この物件を問い合わせる/無料
  • TEL: 0258-63-1112

この物件の地図・周辺情報・行政情報

この物件の周辺情報・行政情報を詳しく見る
【周辺情報】
物件の近くにあるコンビニや銀行・学校など、アイコン付のマップで詳しく表示できます!
【行政情報】
水道料や下水道料・ガス料金など、暮らしに関係のある情報を表示しています。

担当取扱い店舗情報

取扱い店舗画像
橋本建設 株式会社
TEL: 0258-63-1112
所在地: 新潟県見附市市野坪町31-3
交通: 見附駅
営業時間: 9:00~17:00/定休日:水・木曜日
免許番号: 新潟県知事(9)第3180号 この会社の情報を詳しく見る
所属団体名: 公益社団法人 新潟県宅地建物取引業協会 三条支部
取引態様: 一般
ホームページ: http://hashikenhome.com/