物件掲載企業数:297|賃貸物件:3,625件|売買物件:3,315件|今週の登録物件:288
閲覧中のブラウザ(インターネットエクスプローラー)は非推奨ブラウザです。
物件が正しく表示されなかったり、正しく検索されない場合があります。最新のブラウザ(Google Chrome・Edgeなど)にてご利用お願いいたします。
  

新潟県長岡市栃尾原町3丁目11-28 投資物件・その他 9,800,000円の物件情報

自然豊かな立地ですが、駐車場もたっぷりあるので便利です。

物件名/所在地 詳細 価格
表面利回り
栃尾原町事務所・店舗
新潟県長岡市栃尾原町3丁目11-28
  • 土地面積
    :624.58㎡ /188.93坪
  • 建ぺい率
    :60%
  • 容積率
    :200%
9,800,000
-
  • 栃尾原町事務所・店舗
    橋本建設 株式会社
  • この物件を問い合わせる/無料
  • TEL: 0258-63-1112

物件画像

外観 間取り
物件画像
※画像クリックで拡大表示
外観
物件画像
※画像クリックで拡大表示
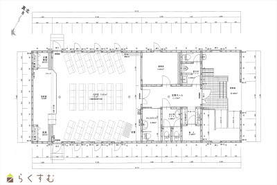
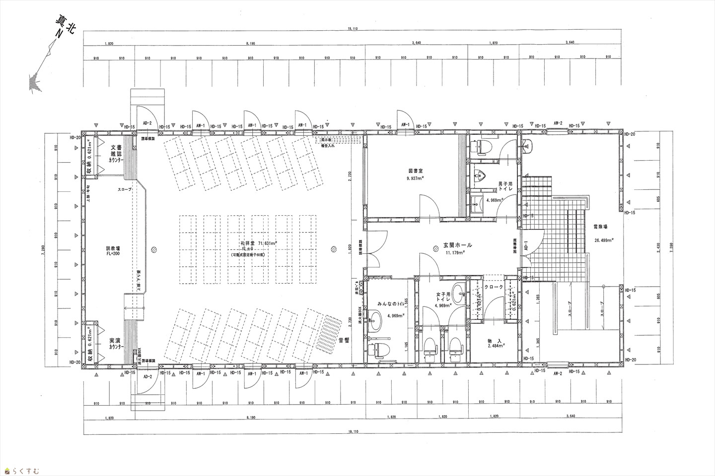
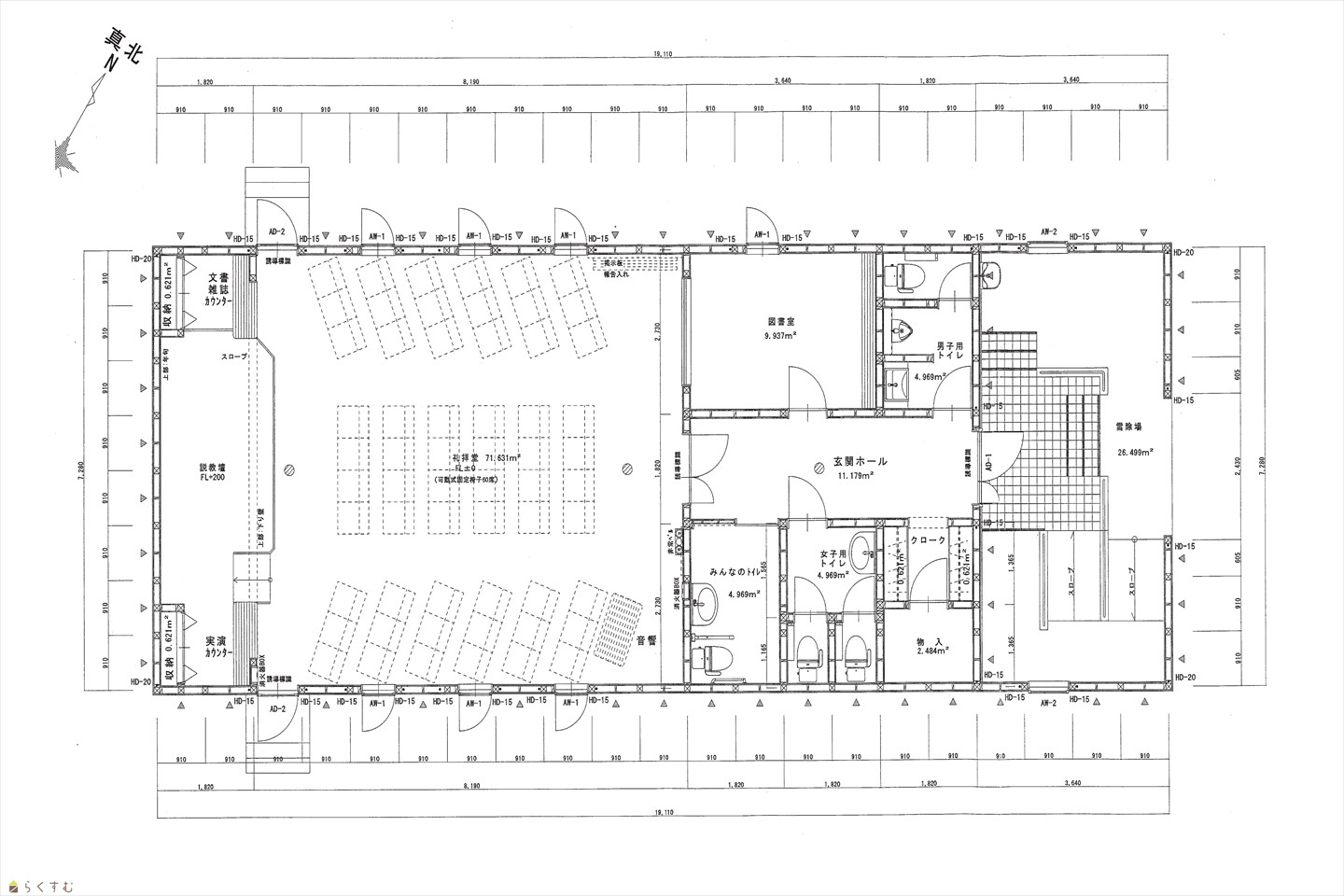
平面図
詳細画像


物件概要

物件コード 00070-200086
物件名 栃尾原町事務所・店舗
交通 駅:信越線 見附駅から徒歩161分、バス:巻渕から徒歩8分
物件所在地 新潟県長岡市栃尾原町3丁目11-28
物件種別 投資物件・その他
物件区分 その他
構造 木造 階建 地上1階建
建ぺい率/容積率 60%/200%
建物面積 -
土地面積 624.58㎡ /188.93坪
築年月 2012年11月(築13年)
入居(引き渡し)時期 相談
用途地域 第1種住居地域 地目 宅地・雑種地
都市計画 市街化区域 学校区 栃尾東小学校(719m)・刈谷田中学校(627m)
形状 - 道路 栃尾原町29号線
私道 - その他の制限 法第22条指定区域
  • 栃尾原町事務所・店舗
    橋本建設 株式会社
  • この物件を問い合わせる/無料
  • TEL: 0258-63-1112

物件詳細情報

所在階/階数 - 号室 -
販売価格 9,800,000円 方位 -
表面利回り(満室想定時) - 満室想定年収 - (想定月収: - )
現行利回り - 現行年間年収 -
住戸数 -
間取り -
専有面積 - バルコニー面積 -
その他面積 - 駐車場 -
管理費 - 修繕積立金 -
現況 空家
仲介手数料 389,400円
利用制限 -
設備 事業向け
取引態様 一般
備考 事務所や店舗・作業場として、大幅リフォームして寮の様な使い方等色々工夫次第です。
現況お引渡しの物件になります。
倉庫:平成24年築8.26㎡含む。
取り扱い会社

橋本建設 株式会社

新潟県見附市市野坪町31-3

情報登録日 2025/03/31 次回更新予定日 2025/12/29
取引条件有効期限 2025/06/30
  • 栃尾原町事務所・店舗
    橋本建設 株式会社
  • この物件を問い合わせる/無料
  • TEL: 0258-63-1112

この物件の地図・周辺情報・行政情報

この物件の周辺情報・行政情報を詳しく見る
【周辺情報】
物件の近くにあるコンビニや銀行・学校など、アイコン付のマップで詳しく表示できます!
【行政情報】
水道料や下水道料・ガス料金など、暮らしに関係のある情報を表示しています。

担当取扱い店舗情報

取扱い店舗画像
橋本建設 株式会社
TEL: 0258-63-1112
所在地: 新潟県見附市市野坪町31-3
交通: 見附駅
営業時間: 9:00~17:00/定休日:水・木曜日
免許番号: 新潟県知事(9)第3180号 この会社の情報を詳しく見る
所属団体名: 公益社団法人 新潟県宅地建物取引業協会 三条支部
取引態様: 一般
ホームページ: http://hashikenhome.com/