物件掲載企業数:299|賃貸物件:2,912件|売買物件:3,228件|今週の登録物件:351
閲覧中のブラウザ(インターネットエクスプローラー)は非推奨ブラウザです。
物件が正しく表示されなかったり、正しく検索されない場合があります。最新のブラウザ(Google Chrome・Edgeなど)にてご利用お願いいたします。
  

新潟県柏崎市高柳町門出2571 中古一戸建て 8K 500,000円の物件情報

物件名/所在地 詳細 価格
柏崎市高柳中古住宅
新潟県柏崎市高柳町門出2571
  • 土地面積
    :154.96㎡ /46.87坪
  • 建物面積
    :107.33㎡ /32.46坪
  • 間取り
    :8K
  • 築年月
    :1974年1月
500,000
  • 柏崎市高柳中古住宅
    株式会社 山六木材
  • この物件を問い合わせる/無料
  • TEL: 0258-78-4413

物件画像

外観 間取り
物件画像
※画像クリックで拡大表示
外観
物件画像
※画像クリックで拡大表示
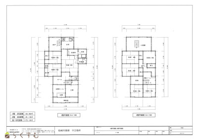
間取り
詳細画像


物件概要

物件コード 00063-200097
物件名 柏崎市高柳中古住宅
交通 駅:ほくほく線 まつだい駅から徒歩105分、バス:会沢南から徒歩90分
物件所在地 新潟県柏崎市高柳町門出2571
物件種別 中古一戸建て
構造 木造 階建 地上1階建
建ぺい率/容積率 -
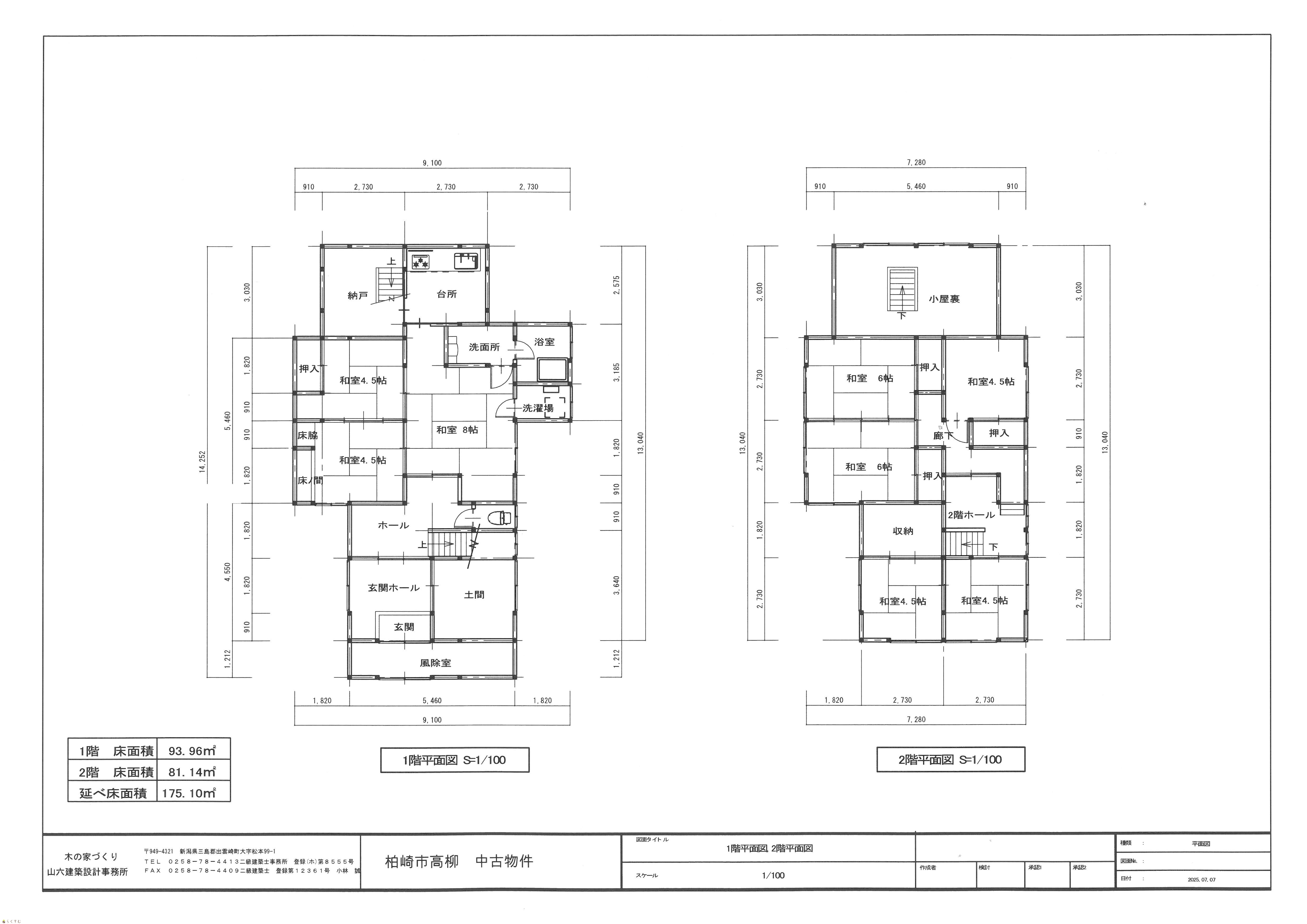
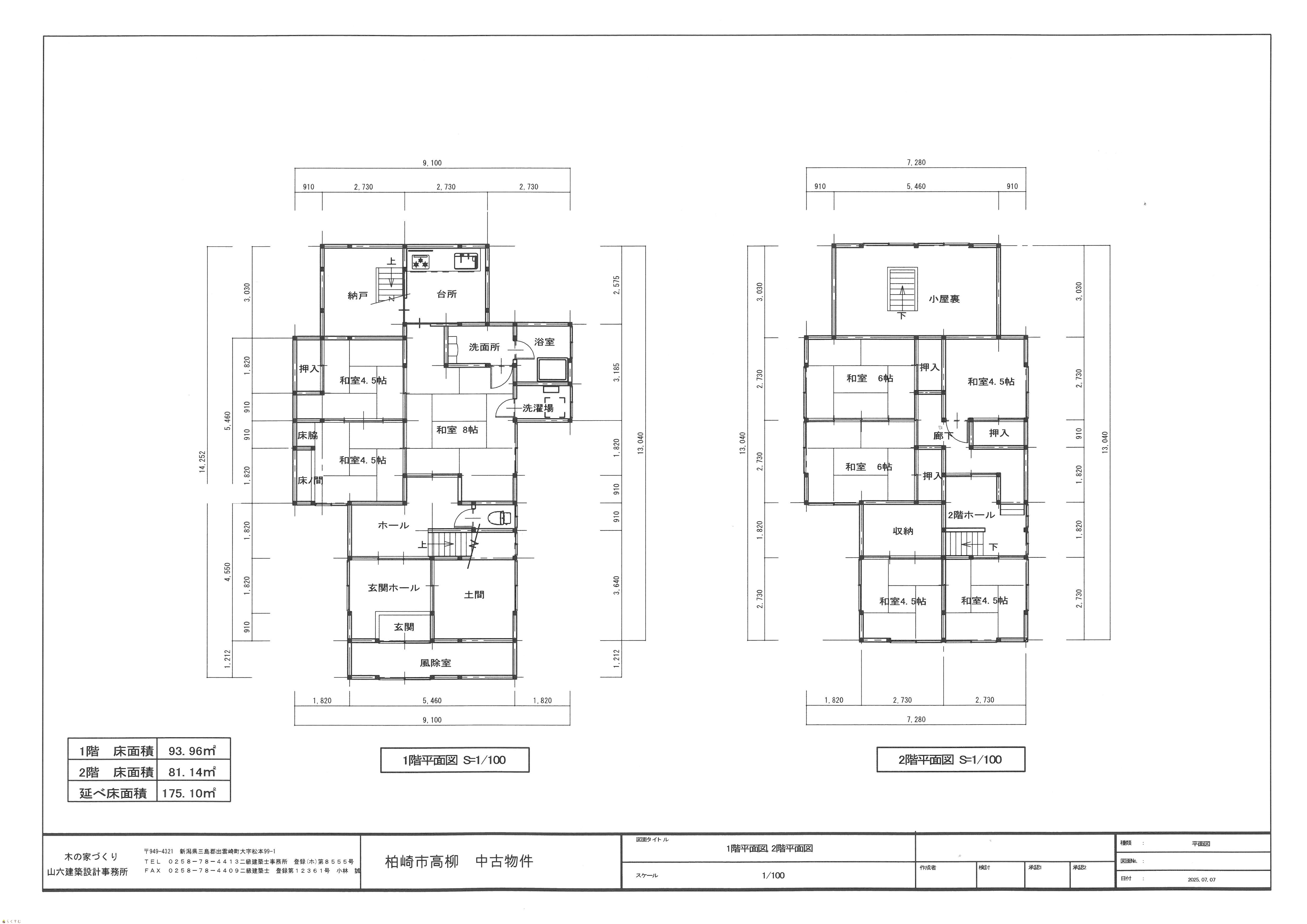
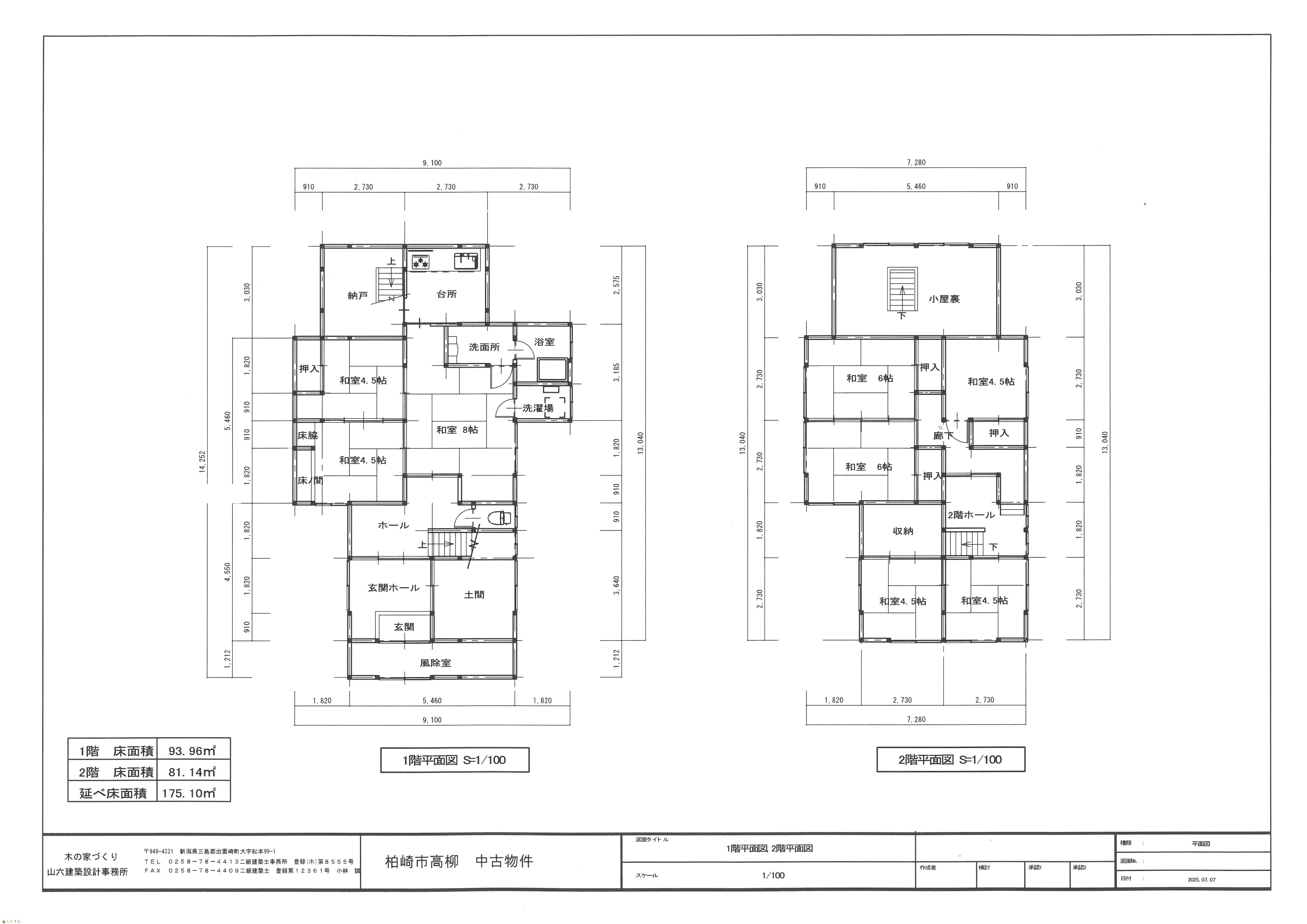
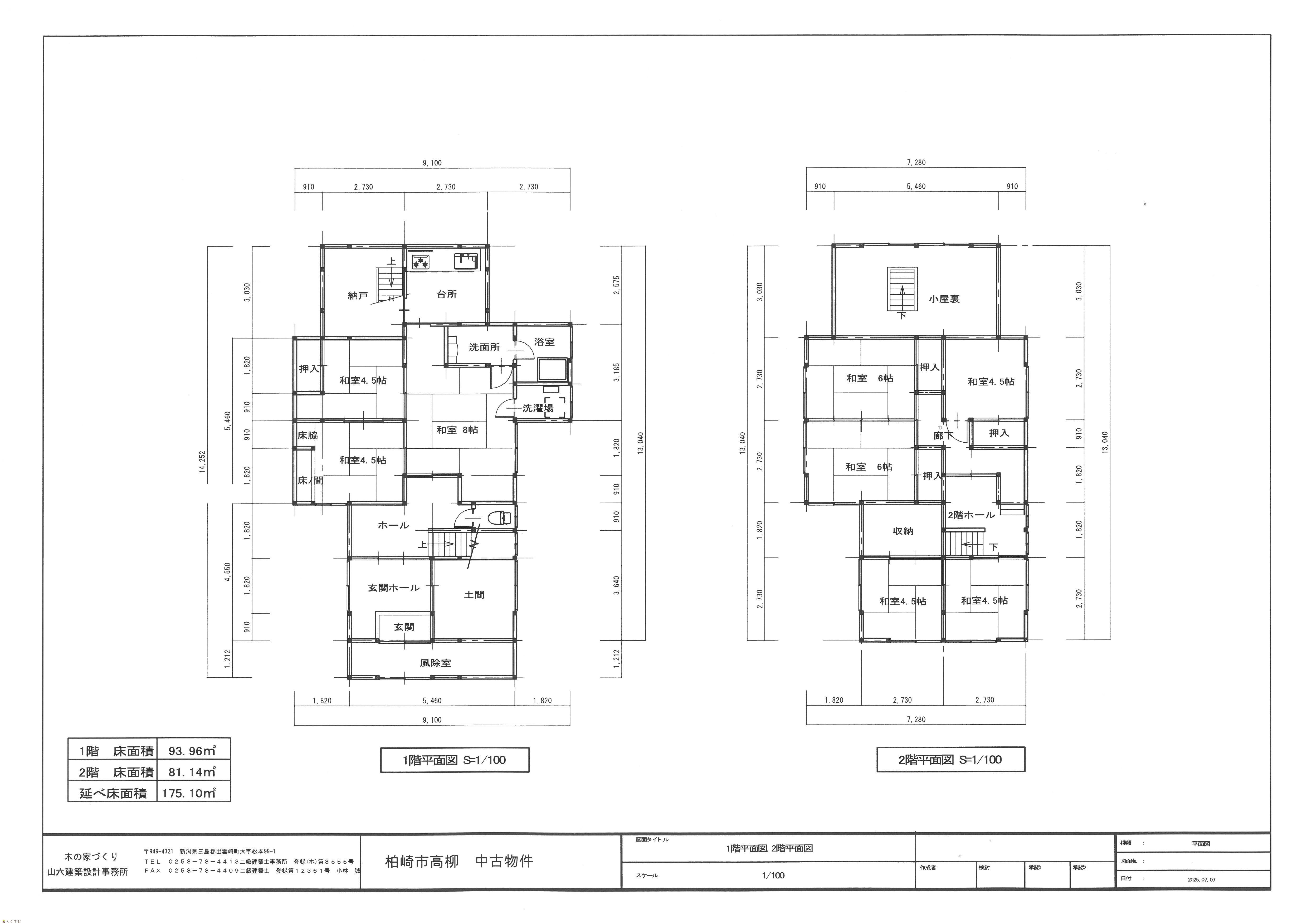
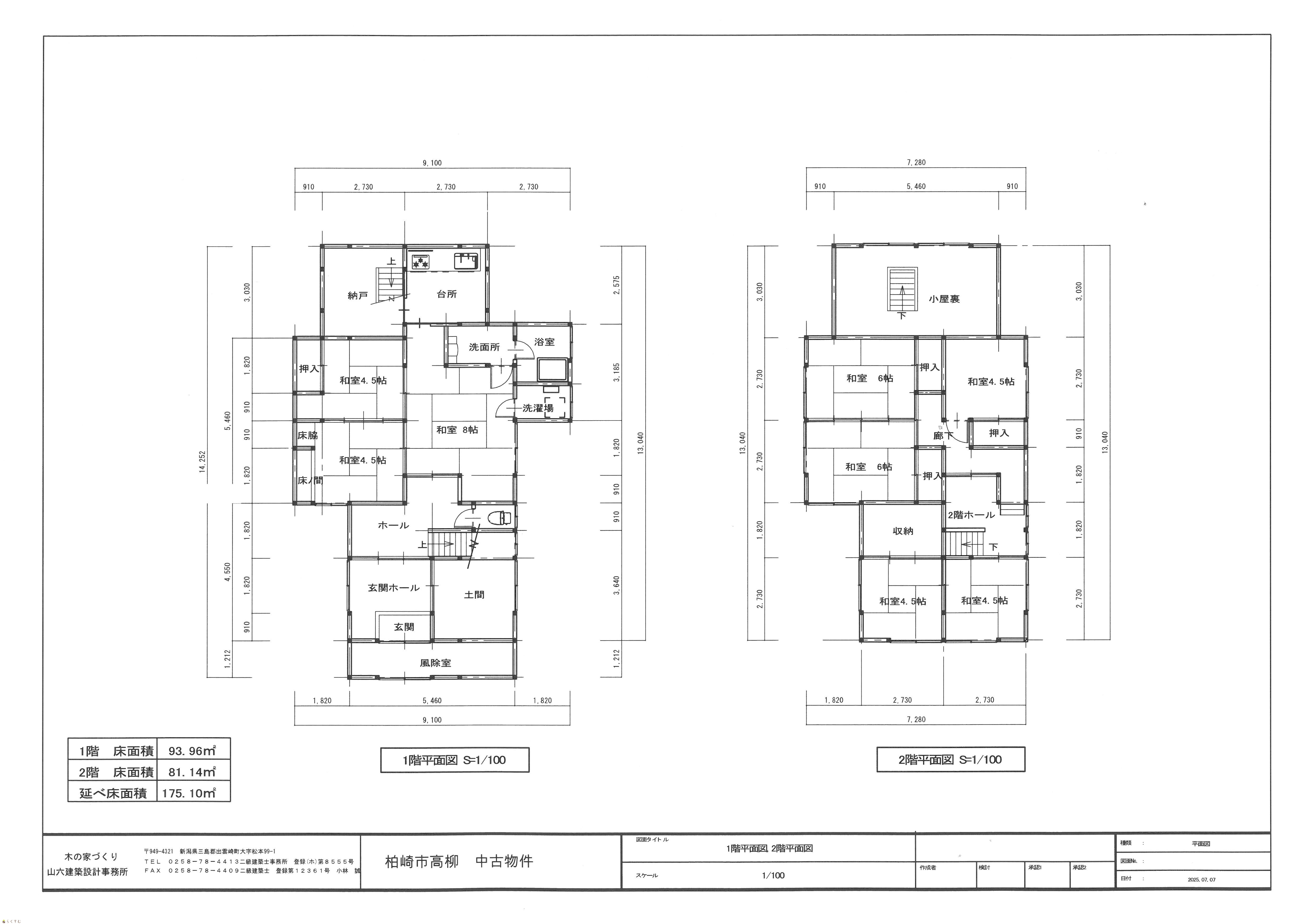
建物面積 1階 92.66㎡/ 2階 14.67㎡/ 計 107.33㎡ /32.46坪
土地面積 154.96㎡ /46.87坪
築年月 1974年1月(築52年)
入居(引き渡し)時期 相談
用途地域 用途の指定のない地域 地目 宅地
都市計画 都市計画区域外 学校区 鯖石小学校(13,403m)・第五中学校(12,064m)
形状 間口 5.26m 道路 南側:町道
私道 - その他の制限 -
  • 柏崎市高柳中古住宅
    株式会社 山六木材
  • この物件を問い合わせる/無料
  • TEL: 0258-78-4413

物件詳細情報

所在階/階数 - 号室 -
販売価格 500,000円 方位 -
間取り 8K (和室:4.5畳、4.5畳、8畳、4.5畳、6畳、6畳、4.5畳、4.5畳)
納屋、小屋裏、倉庫あり
専有面積 - バルコニー面積 -
その他面積 - 駐車場 -
管理費 - 修繕積立金 -
現況 空家
仲介手数料 330,000円
利用制限 -
設備 日当り良好、駐車2台可能、上水道、下水道、別荘、田舎暮らし
取引態様 一般
備考 現況有姿取引となります。
残置物あり。 残置物処分については要相談。
水まわり修理、 給湯機器入替必要、
倉庫(車1台)駐車可
取り扱い会社

株式会社 山六木材

新潟県三島郡出雲崎町松本99-1

情報登録日 2025/08/08 次回更新予定日 2026/04/05
取引条件有効期限 2026/07/16
  • 柏崎市高柳中古住宅
    株式会社 山六木材
  • この物件を問い合わせる/無料
  • TEL: 0258-78-4413

この物件の地図・周辺情報・行政情報

この物件の周辺情報・行政情報を詳しく見る
【周辺情報】
物件の近くにあるコンビニや銀行・学校など、アイコン付のマップで詳しく表示できます!
【行政情報】
水道料や下水道料・ガス料金など、暮らしに関係のある情報を表示しています。
門出郵便局(郵便局)まで500m
柏崎市 高柳町事務所(市区町村機関)まで20100m
ヤマザキYショップ JAえちご中越高柳店(コンビニ)まで20200m
柏崎市国民健康保険高柳診療所(病院)まで20100m

※カメラのアイコンがある場合は、マウスをポイントするとその施設の画像がご覧いただけます。


担当取扱い店舗情報

取扱い店舗画像
株式会社 山六木材
TEL: 0258-78-4413
所在地: 新潟県三島郡出雲崎町松本99-1
交通: JR 出雲崎駅
営業時間: 8:15~17:30/定休日:水曜・年末年始休暇、GW、夏季休暇
免許番号: 新潟県知事(3)第5114号 この会社の情報を詳しく見る
所属団体名: 新潟県宅地建物取引協会 長岡支部
取引態様: 一般
ホームページ: https://yama-roku-moku.com/