物件掲載企業数:299|賃貸物件:2,911件|売買物件:3,224件|今週の登録物件:320
閲覧中のブラウザ(インターネットエクスプローラー)は非推奨ブラウザです。
物件が正しく表示されなかったり、正しく検索されない場合があります。最新のブラウザ(Google Chrome・Edgeなど)にてご利用お願いいたします。
  

新潟県三島郡出雲崎町船橋18 中古一戸建て 7K 3,500,000円の物件情報

キッチン、トイレ2か所、車庫2棟あり。保育園近くの物件!

物件名/所在地 詳細 価格
出雲崎町船橋中古住宅
新潟県三島郡出雲崎町船橋18
  • 土地面積
    :396.69㎡ /119.99坪
  • 建物面積
    :165.77㎡ /50.14坪
  • 間取り
    :7K
  • 築年月
    :1983年9月
3,500,000
  • 出雲崎町船橋中古住宅
    株式会社 山六木材
  • この物件を問い合わせる/無料
  • TEL: 0258-78-4413

物件画像

外観 間取り
物件画像
※画像クリックで拡大表示
外観
物件画像
※画像クリックで拡大表示
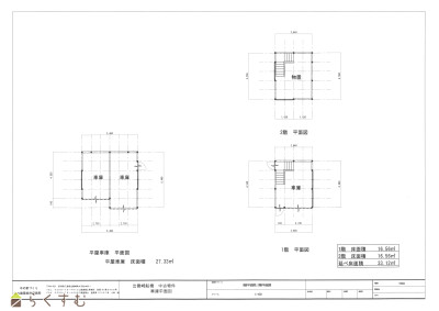
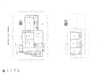
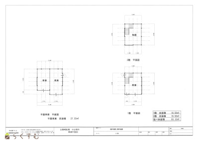
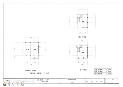
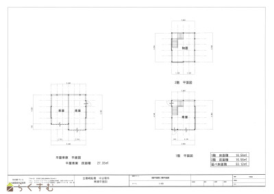
建物平面図
詳細画像


物件概要

物件コード 00063-200094
物件名 出雲崎町船橋中古住宅
交通 駅:越後線 小木ノ城駅から徒歩5分、バス:出雲崎駅前から徒歩33分
物件所在地 新潟県三島郡出雲崎町船橋18
物件種別 中古一戸建て
構造 木造 階建 地上2階建
建ぺい率/容積率 -
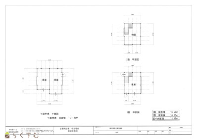
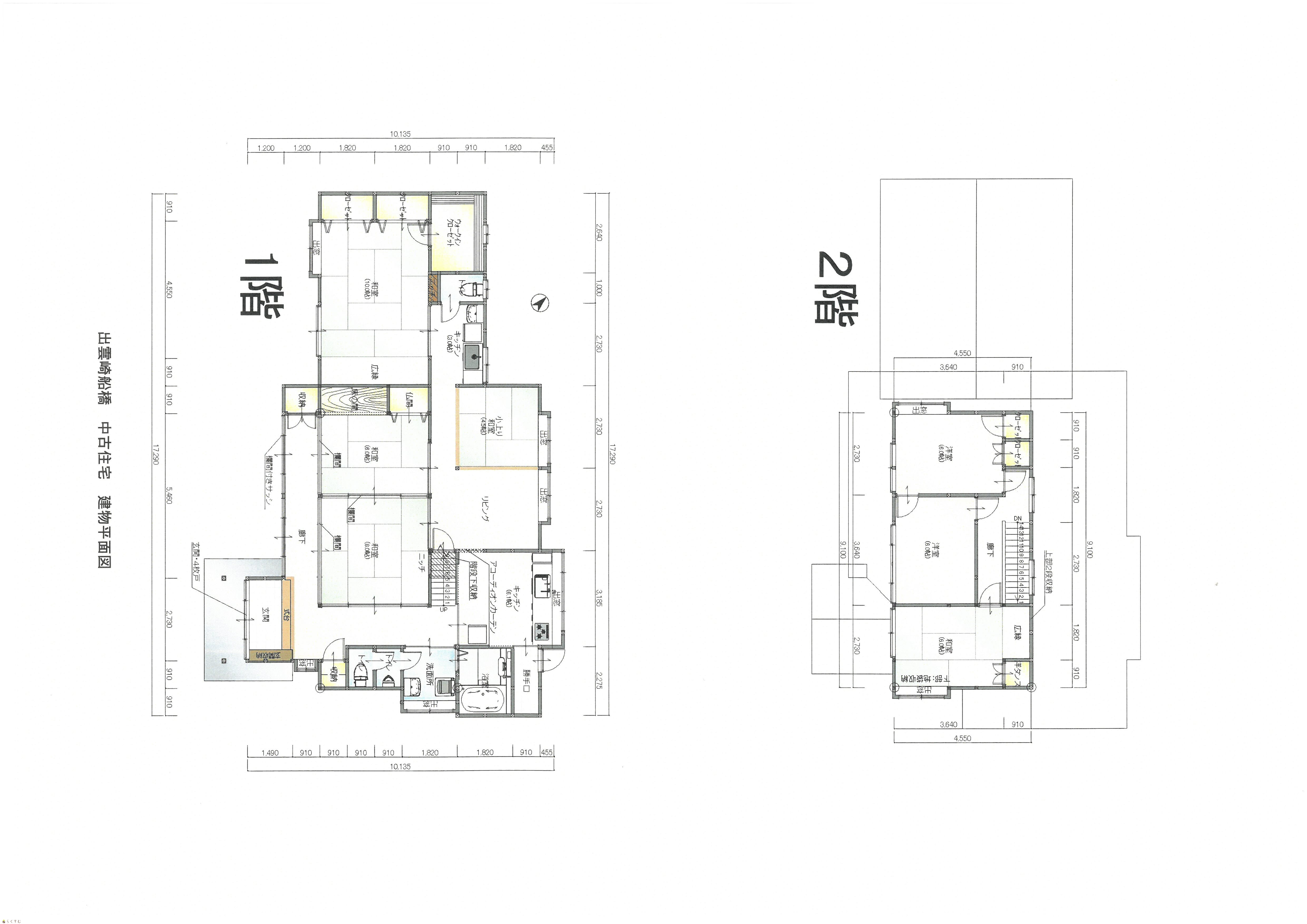
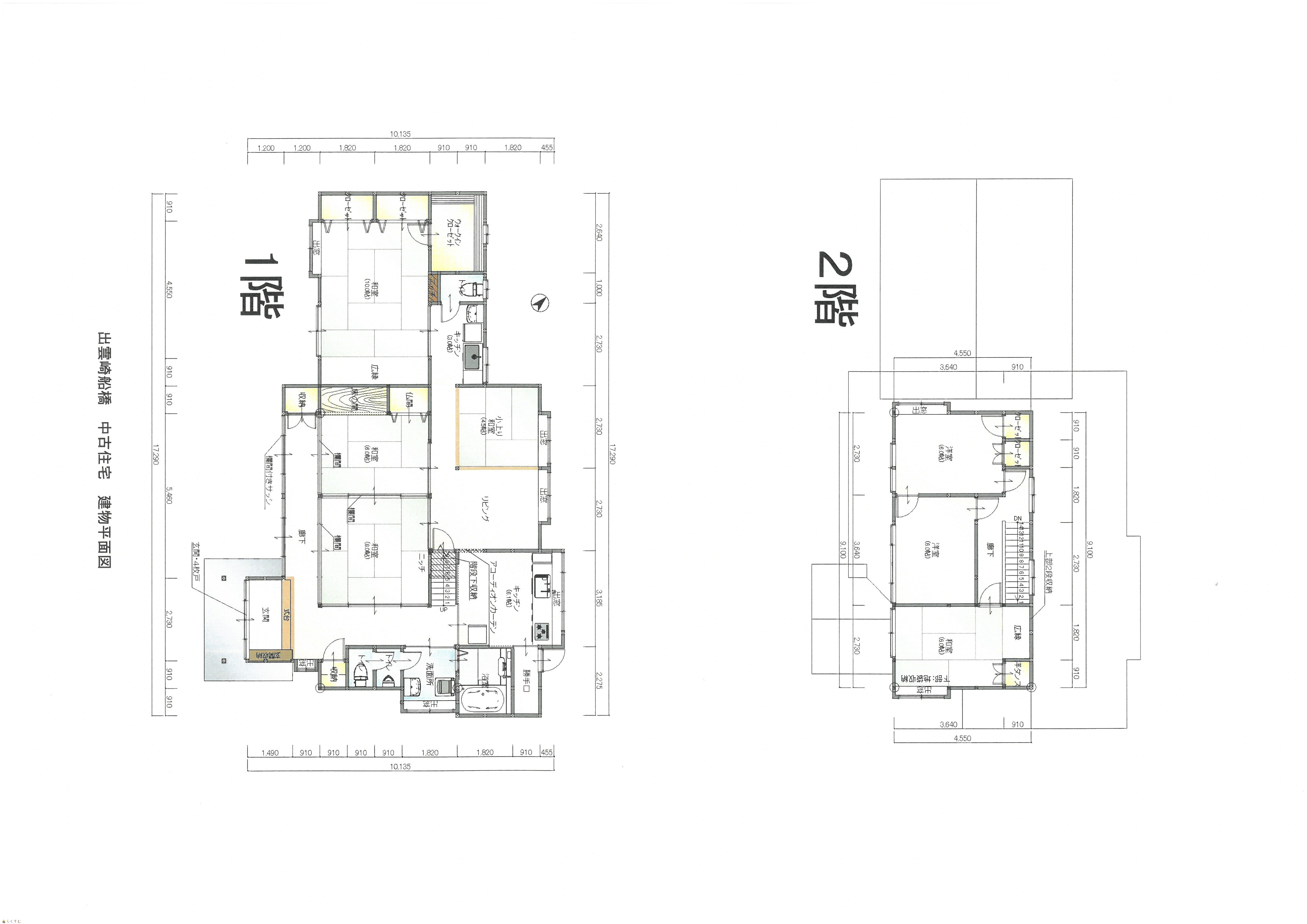
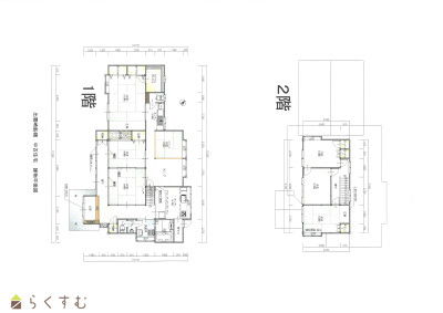
建物面積 1階 123.82㎡/ 2階 41.95㎡/ 計 165.77㎡ /50.14坪
土地面積 396.69㎡ /119.99坪
築年月 1983年9月(築42年)
入居(引き渡し)時期 相談
用途地域 用途の指定のない地域 地目 宅地
都市計画 都市計画区域外 学校区 出雲崎小学校(2,207m)・出雲崎中学校(2,413m)
形状 間口 22m 道路 南側:町道
私道 - その他の制限 -
  • 出雲崎町船橋中古住宅
    株式会社 山六木材
  • この物件を問い合わせる/無料
  • TEL: 0258-78-4413

物件詳細情報

所在階/階数 - 号室 -
販売価格 3,500,000円 方位 -
間取り 7K (和室:8畳、6畳、4.5畳、10畳、6畳) (洋室:6、6)
専有面積 - バルコニー面積 -
その他面積 - 駐車場 -
管理費 - 修繕積立金 -
現況 空家
仲介手数料 330,000円
利用制限 -
設備 日当り良好、閑静な住宅街、駐車2台可能、追いだき機能付き、トイレ2か所以上、LPG、上水道、下水道、別荘、田舎暮らし
取引態様 一般
備考 ・未登記建物(車庫)
・車庫2棟あり
・トイレ2か所あり、ミニキッチン、洗面
・現況有姿取引となります。
取り扱い会社

株式会社 山六木材

新潟県三島郡出雲崎町松本99-1

情報登録日 2026/01/09 次回更新予定日 2026/04/06
取引条件有効期限 2025/07/31
  • 出雲崎町船橋中古住宅
    株式会社 山六木材
  • この物件を問い合わせる/無料
  • TEL: 0258-78-4413

この物件の地図・周辺情報・行政情報

この物件の周辺情報・行政情報を詳しく見る
【周辺情報】
物件の近くにあるコンビニや銀行・学校など、アイコン付のマップで詳しく表示できます!
【行政情報】
水道料や下水道料・ガス料金など、暮らしに関係のある情報を表示しています。
出雲崎町立出雲崎小学校(学校)まで2500m
出雲崎町立出雲崎中学校(学校)まで3500m
出雲崎郵便局(郵便局)まで2700m
柏崎信用金庫出雲崎支店(銀行)まで2900m
出雲崎町役場(市区町村機関)まで2900m
出雲崎町町民体育館(市区町村機関)まで4100m
小木之城保育園(学校)まで240m

※カメラのアイコンがある場合は、マウスをポイントするとその施設の画像がご覧いただけます。


担当取扱い店舗情報

取扱い店舗画像
株式会社 山六木材
TEL: 0258-78-4413
所在地: 新潟県三島郡出雲崎町松本99-1
交通: JR 出雲崎駅
営業時間: 8:15~17:30/定休日:水曜・年末年始休暇、GW、夏季休暇
免許番号: 新潟県知事(3)第5114号 この会社の情報を詳しく見る
所属団体名: 新潟県宅地建物取引協会 長岡支部
取引態様: 一般
ホームページ: https://yama-roku-moku.com/