物件掲載企業数:299|賃貸物件:2,911件|売買物件:3,224件|今週の登録物件:320
閲覧中のブラウザ(インターネットエクスプローラー)は非推奨ブラウザです。
物件が正しく表示されなかったり、正しく検索されない場合があります。最新のブラウザ(Google Chrome・Edgeなど)にてご利用お願いいたします。
  

新潟県三島郡出雲崎町大字上野山字滝ノ上甲375番乙 中古一戸建て 2DK 3,000,000円の物件情報

高台から海が見わたせます! 自然豊かな環境です。

物件名/所在地 詳細 価格
出雲崎町上野山別荘
新潟県三島郡出雲崎町大字上野山字滝ノ上甲375番乙
  • 土地面積
    :69.42㎡ /20.99坪
  • 建物面積
    :69.56㎡ /21.04坪
  • 間取り
    :2DK
  • 築年月
    :不詳
3,000,000
  • 出雲崎町上野山別荘
    株式会社 山六木材
  • この物件を問い合わせる/無料
  • TEL: 0258-78-4413

物件画像

外観 間取り
物件画像
※画像クリックで拡大表示
外観
物件画像
※画像クリックで拡大表示
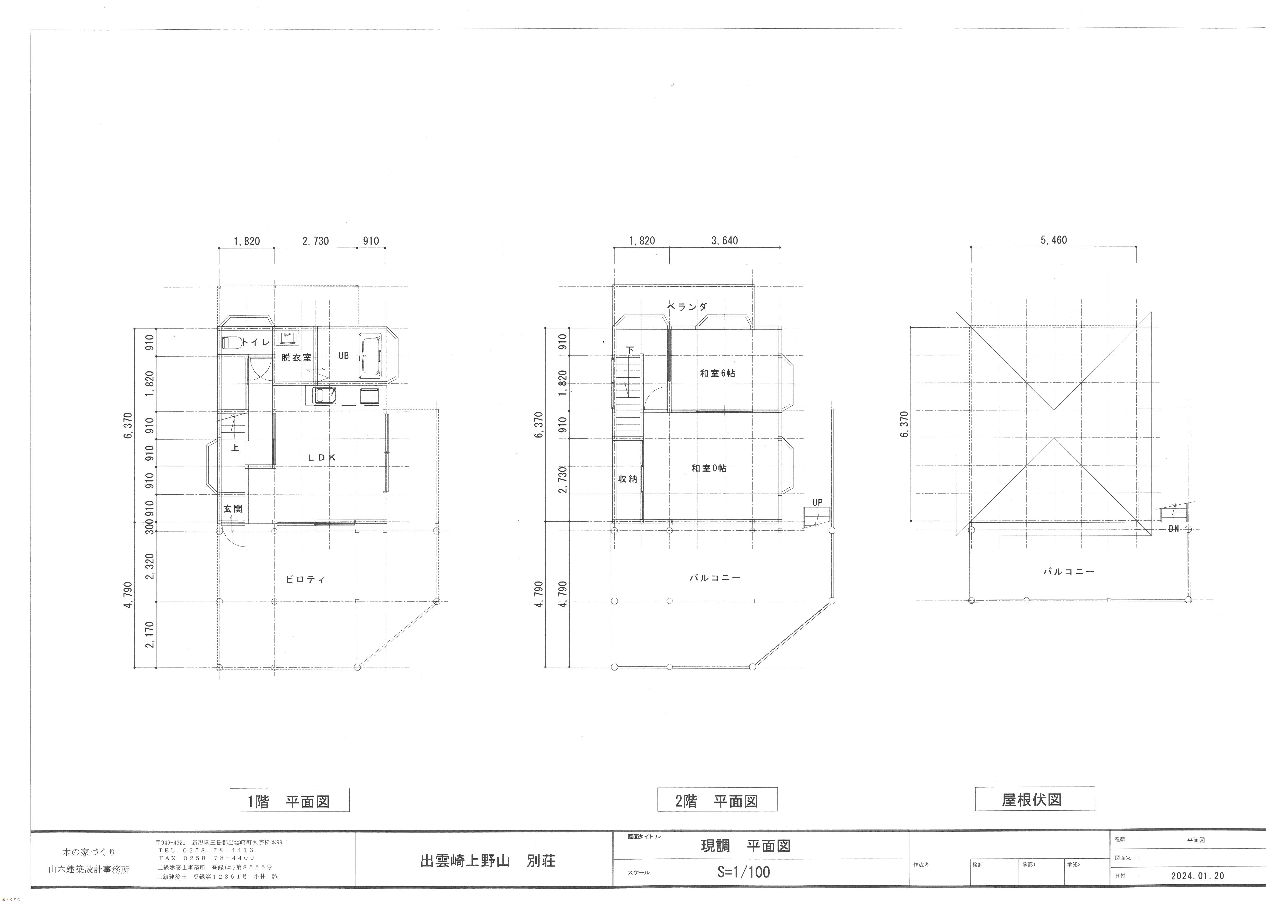
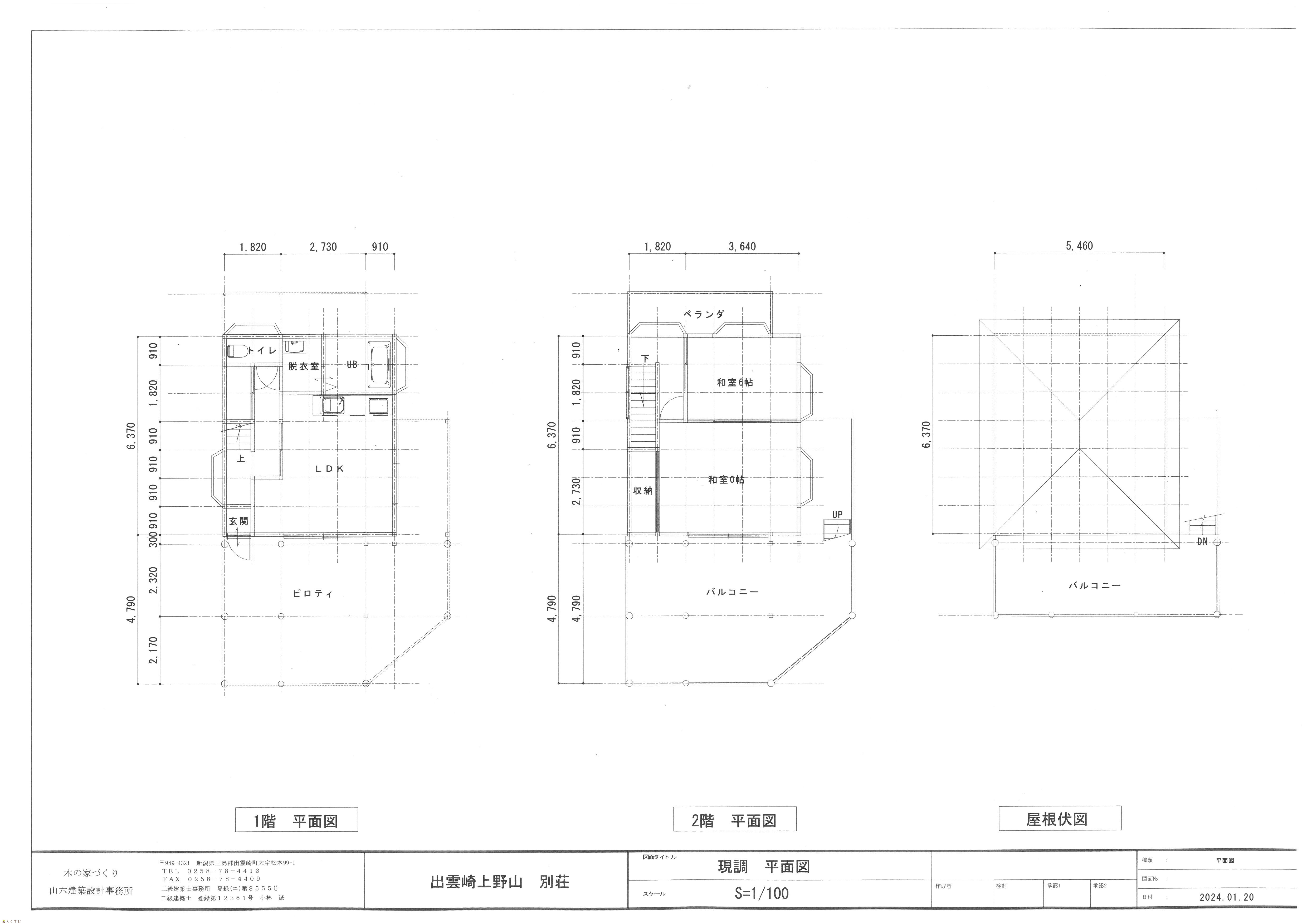
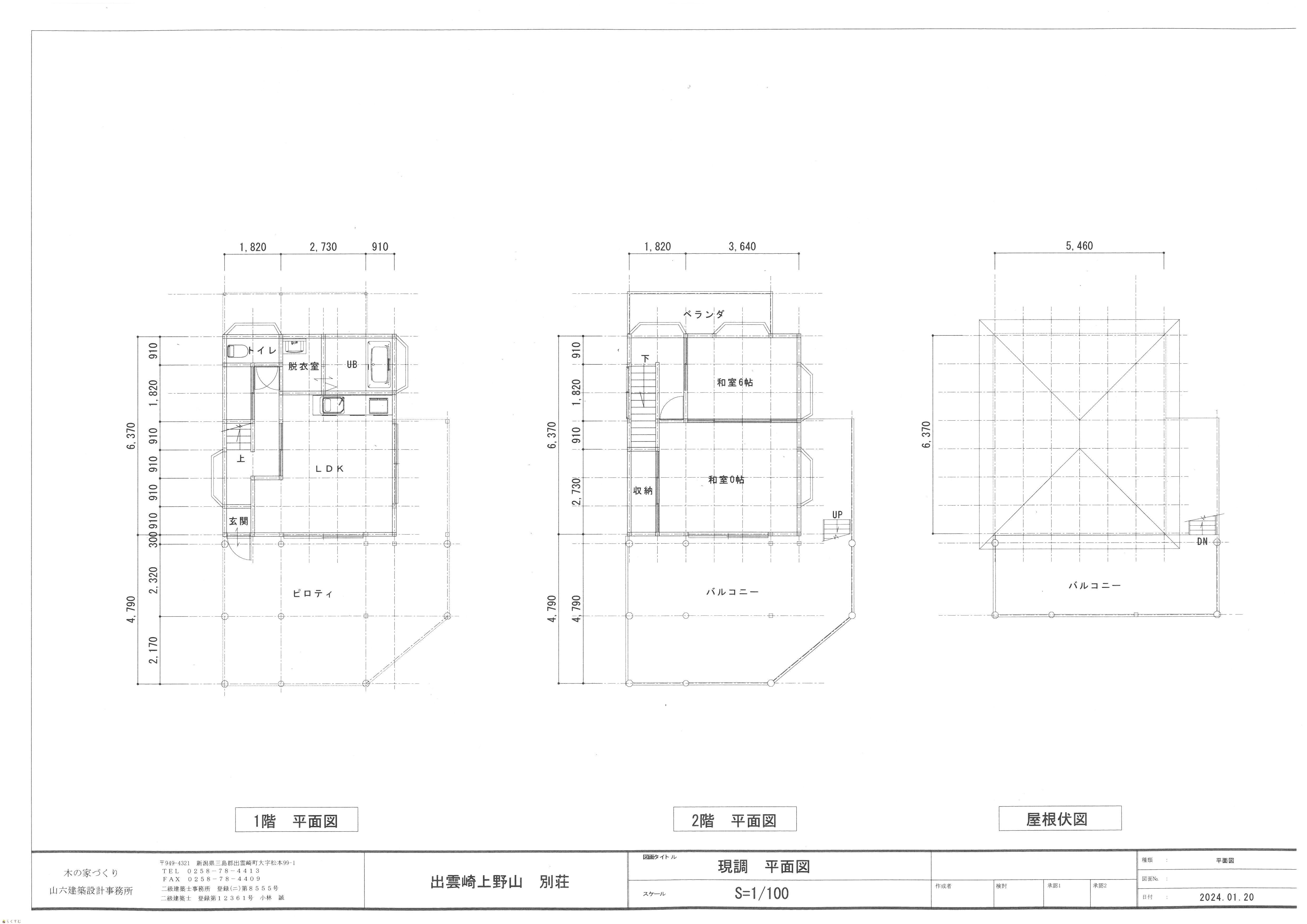
建物平面図
詳細画像


物件概要

物件コード 00063-200083
物件名 出雲崎町上野山別荘
交通 駅:越後線 出雲崎駅から徒歩52分
物件所在地 新潟県三島郡出雲崎町大字上野山字滝ノ上甲375番乙
物件種別 中古一戸建て
構造 木造鉄筋コン 階建 地上2階建
建ぺい率/容積率 -
建物面積 1階 34.78㎡/ 2階 34.78㎡/ 計 69.56㎡ /21.04坪
土地面積 69.42㎡ /20.99坪
築年月 不詳
入居(引き渡し)時期 相談
用途地域 用途の指定のない地域 地目 宅地
都市計画 都市計画区域外 学校区 出雲崎小学校(2,315m)・出雲崎中学校(1,482m)
形状 - 道路 町道 東側 鳴滝町上野山線
私道 - その他の制限 -
  • 出雲崎町上野山別荘
    株式会社 山六木材
  • この物件を問い合わせる/無料
  • TEL: 0258-78-4413

物件詳細情報

所在階/階数 - 号室 -
販売価格 3,000,000円 方位 -
間取り 2DK (和室:6畳、10畳) (洋室:8)
専有面積 - バルコニー面積 -
その他面積 - 駐車場 -
管理費 - 修繕積立金 -
現況 空家
仲介手数料 154,000円
利用制限 -
設備 高台に立地、日当り良好、LPG、上水道、下水道、別荘
取引態様 一般
備考 建物未登記、建築年:平成5年
駐車場なし
海側からは物件まで徒歩、車の通行できません。
町道鳴滝町上野山線は車(軽自動車)1台通行可能。
トイレ、洗面、ベランダ修繕必要。
取り扱い会社

株式会社 山六木材

新潟県三島郡出雲崎町松本99-1

情報登録日 2024/01/26 次回更新予定日 2026/04/06
取引条件有効期限 2024/03/23
  • 出雲崎町上野山別荘
    株式会社 山六木材
  • この物件を問い合わせる/無料
  • TEL: 0258-78-4413

この物件の地図・周辺情報・行政情報

この物件の周辺情報・行政情報を詳しく見る
【周辺情報】
物件の近くにあるコンビニや銀行・学校など、アイコン付のマップで詳しく表示できます!
【行政情報】
水道料や下水道料・ガス料金など、暮らしに関係のある情報を表示しています。
出雲崎井鼻簡易郵便局(郵便局)まで510m
出雲崎町役場(市区町村機関)まで3.8km
全日食フードセンター出雲崎店(スーパー)まで4.5m

※カメラのアイコンがある場合は、マウスをポイントするとその施設の画像がご覧いただけます。


担当取扱い店舗情報

取扱い店舗画像
株式会社 山六木材
TEL: 0258-78-4413
所在地: 新潟県三島郡出雲崎町松本99-1
交通: JR 出雲崎駅
営業時間: 8:15~17:30/定休日:水曜・年末年始休暇、GW、夏季休暇
免許番号: 新潟県知事(3)第5114号 この会社の情報を詳しく見る
所属団体名: 新潟県宅地建物取引協会 長岡支部
取引態様: 一般
ホームページ: https://yama-roku-moku.com/